Verkocht onder voorbehoud
€ {{ product.price.replace(/\B(?=(\d{4})+(?!\d))/g, ".") }} {{ __(product.price_condition) }}
Foto’s
{{ product.images.length }}
Plattegrond
{{ product.plans.length }}
360° foto's {{ product.panoramas.length }}
Video’s {{ product.videos.length }}
Kaarten
Alle media
Woonhuis te koop Maarstraat 63 Kerkrade
€ {{ product.price.replace(/\B(?=(\d{4})+(?!\d))/g, ".") }} {{ __(product.price_condition) }}
Verkocht onder voorbehoud
Omschrijving
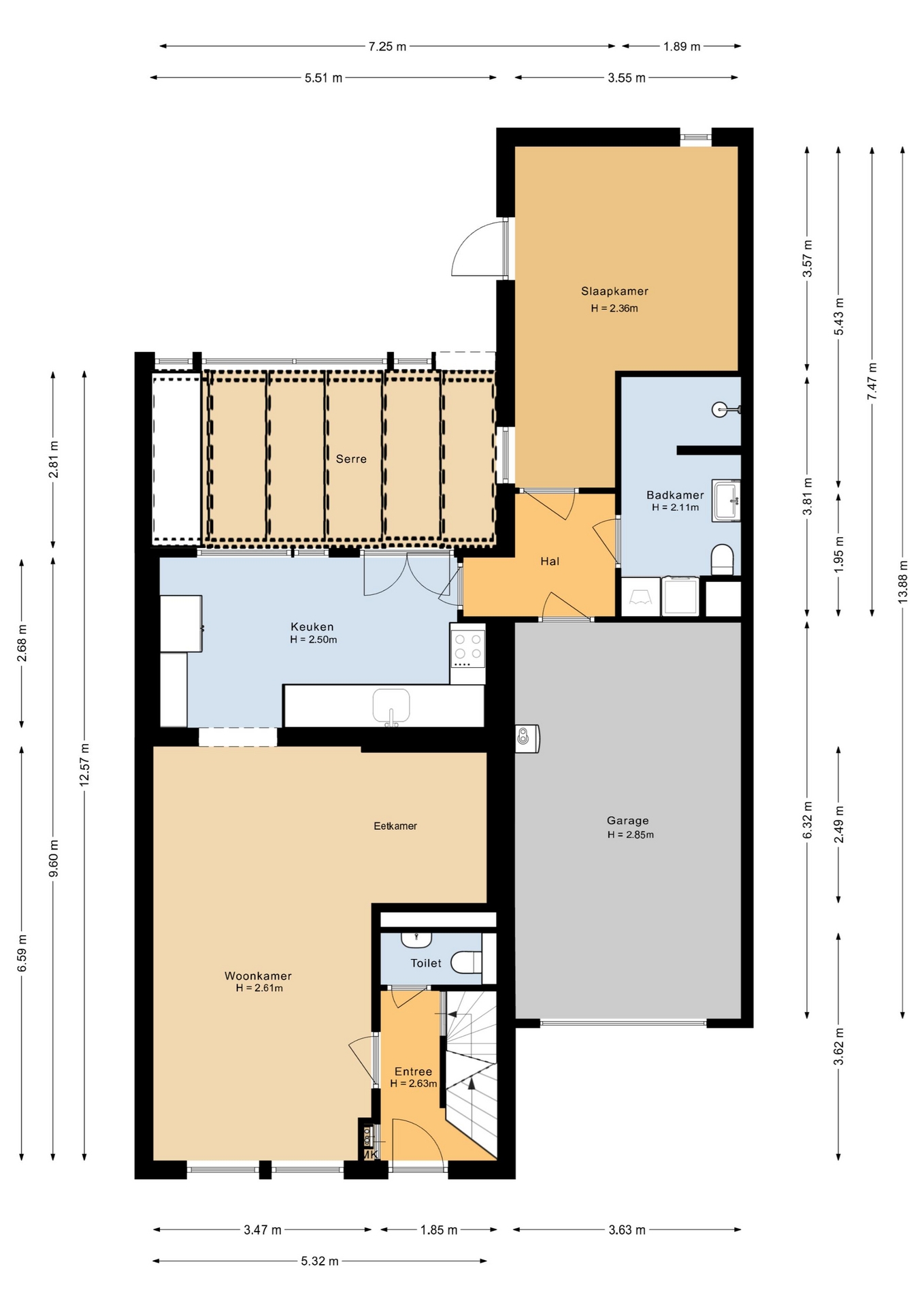
Op een goede locatie gelegen in de geliefde woonkern "Terwinselen" ( “D’r Sjtaat”) en op loopafstand van de winkels ligt dit royaal half vrijstaand uitgebouwd levensloop bestendig woonhuis met een serre, grote garage en flinke onderhoudsvriendelijke tuin.
Indeling:
Souterrain:
Provisieruimte v.v. tegelvloer.
Begane grond:
Geheel v.v. kunststof kozijnwerk met dubbele beglazing en rolluiken (m.u.v. voordeur)
Hal/entree v.v. tegelvloer en meterkast, betegelde toiletruimte met fonteintje.
Royale L-woonkamer v.v. een laminaatvloer. Ruime aanbouw alwaar moderne keukeninstallatie (1 jaar oud) incl. apparatuur, te weten, vaatwasser, inductie kookplaat incl. kookveldafzuiging, losse koelkast. Via de aanbouw middels een dubbele deur toegang naar de achtergelegen serre.
Verdeelportaal v.v. tegelvloer met toegang naar de inpandig bereikbare garage v.v. elektrisch bedienbare sectionaalpoort en standplaats c.v.-combi (huur, VOLTA).
Betegelde badkamer v.v. inloopdouche, vaste wastafel, 2e toilet en aansluitpunt voor wasmachine en droger.
Royale slaapkamer v.v. laminaatvloer en v.v. rolluiken.
Ruime serre v.v. kunststoffen puien met dubbele beglazing en toegang naar de 14m diepe grotendeels beklinkerde achtertuin met houten tuinberging en naastgelegen overdekte opslag.
1e Verdieping:
Geheel v.v. kunststoffen kozijnen en dubbele beglazing.
Overloop v.v. laminaatvloer.
3e separate toiletruimte
Slaapkamer 1 v.v. laminaatvloer
Slaapkamer 2 v.v. laminaatvloer en rolluiken
Betegelde badkamer v.v. ligbad (DUO) met glazen douchedeel, vaste wastafel en rolluik.
2e Verdieping:
Middels een vaste trap te bereiken royale zolderkamer/slaapkamer v.v. laminaatvloer en ruime dakkapel v.v. kunststof kozijnwerk en dubbele beglazing en rolluiken
2 separate bergruimten.
Algemeen:
- Geheel v.v. dubbel glas in kunststoffen kozijnen
- 8 zonnepanelen (eigendom)
- Bouwjaar 1950
- Inhoud: 583.73.M3
- Woonoppervlak 132M2
- Energielabel: D
Indien er in de woning huurtoestellen aanwezig zijn zoals CV-ketel, boiler, zonnepanelen, mechanische ventilatie etc. dan dienen deze door de koper te worden overgenomen.
De termijn die wordt opgenomen voor eventuele (overeengekomen) ontbindende voorwaarden (bv. Financiering) is in de regel 4 tot 6 weken na het sluiten van de mondelinge wilsovereenkomst.
De waarborgsom/bankgarantie is 10% van de koopsom. De koper dient deze 3 dagen ná het vervallen van de ontbindende voorwaarden bij de desbetreffende notaris te deponeren.
Koper is te allen tijde gerechtigd voor eigen rekening een bouwkundige keuring te (laten) verrichten dan wel andere adviseurs te raadplegen teneinde een goed inzicht te verkrijgen over de staat van onderhoud.
Deze informatie is door ons, Zuyderhuys Makelaardij met de nodige zorgvuldigheid samengesteld. Onzerzijds wordt echter geen enkele aansprakelijkheid aanvaard voor enige onvolledigheid, onjuist of anderszins, dan wel de gevolgen daarvan. Alle opgegeven maten en oppervlakten zijn indicatief.
Indeling:
Souterrain:
Provisieruimte v.v. tegelvloer.
Begane grond:
Geheel v.v. kunststof kozijnwerk met dubbele beglazing en rolluiken (m.u.v. voordeur)
Hal/entree v.v. tegelvloer en meterkast, betegelde toiletruimte met fonteintje.
Royale L-woonkamer v.v. een laminaatvloer. Ruime aanbouw alwaar moderne keukeninstallatie (1 jaar oud) incl. apparatuur, te weten, vaatwasser, inductie kookplaat incl. kookveldafzuiging, losse koelkast. Via de aanbouw middels een dubbele deur toegang naar de achtergelegen serre.
Verdeelportaal v.v. tegelvloer met toegang naar de inpandig bereikbare garage v.v. elektrisch bedienbare sectionaalpoort en standplaats c.v.-combi (huur, VOLTA).
Betegelde badkamer v.v. inloopdouche, vaste wastafel, 2e toilet en aansluitpunt voor wasmachine en droger.
Royale slaapkamer v.v. laminaatvloer en v.v. rolluiken.
Ruime serre v.v. kunststoffen puien met dubbele beglazing en toegang naar de 14m diepe grotendeels beklinkerde achtertuin met houten tuinberging en naastgelegen overdekte opslag.
1e Verdieping:
Geheel v.v. kunststoffen kozijnen en dubbele beglazing.
Overloop v.v. laminaatvloer.
3e separate toiletruimte
Slaapkamer 1 v.v. laminaatvloer
Slaapkamer 2 v.v. laminaatvloer en rolluiken
Betegelde badkamer v.v. ligbad (DUO) met glazen douchedeel, vaste wastafel en rolluik.
2e Verdieping:
Middels een vaste trap te bereiken royale zolderkamer/slaapkamer v.v. laminaatvloer en ruime dakkapel v.v. kunststof kozijnwerk en dubbele beglazing en rolluiken
2 separate bergruimten.
Algemeen:
- Geheel v.v. dubbel glas in kunststoffen kozijnen
- 8 zonnepanelen (eigendom)
- Bouwjaar 1950
- Inhoud: 583.73.M3
- Woonoppervlak 132M2
- Energielabel: D
Indien er in de woning huurtoestellen aanwezig zijn zoals CV-ketel, boiler, zonnepanelen, mechanische ventilatie etc. dan dienen deze door de koper te worden overgenomen.
De termijn die wordt opgenomen voor eventuele (overeengekomen) ontbindende voorwaarden (bv. Financiering) is in de regel 4 tot 6 weken na het sluiten van de mondelinge wilsovereenkomst.
De waarborgsom/bankgarantie is 10% van de koopsom. De koper dient deze 3 dagen ná het vervallen van de ontbindende voorwaarden bij de desbetreffende notaris te deponeren.
Koper is te allen tijde gerechtigd voor eigen rekening een bouwkundige keuring te (laten) verrichten dan wel andere adviseurs te raadplegen teneinde een goed inzicht te verkrijgen over de staat van onderhoud.
Deze informatie is door ons, Zuyderhuys Makelaardij met de nodige zorgvuldigheid samengesteld. Onzerzijds wordt echter geen enkele aansprakelijkheid aanvaard voor enige onvolledigheid, onjuist of anderszins, dan wel de gevolgen daarvan. Alle opgegeven maten en oppervlakten zijn indicatief.
+ Lees meer
- Lees minder
Bouw: {{
product.build_year }}
Bouw: {{ product.build_period.start }} -
{{ product.build_period.end }}
Woonhuis
, Eengezinswoning
{{ product.rooms }} Kamers
{{ product.bedrooms
}} Slaapkamers
Woonruimte: {{
product.living_space }} m²
Perceel: {{
product.plot_surface }} m²
Energielabel: {{ product.energy_class }}
Energie index: {{ product.energy_index }}
Kenmerken
{{ field.label }}
{{ field.value }}
+ Lees meer
{{ field.label }}
{{ field.value }}
- Lees minder
{{ product.company.name }}
Contact opnemen
{{ product.company.phone.replace('-', ' ').substr(0, 7) }}...
{{ product.company.phone.replace('-', ' ') }}
Delen:
Datum