Sold
€ {{ product.price.replace(/\B(?=(\d{4})+(?!\d))/g, ".") }} {{ __(product.price_condition) }}
Photo’s
{{ product.images.length }}
Floorplan
{{ product.plans.length }}
360° photo’s {{ product.panoramas.length }}
Video’s {{ product.videos.length }}
Maps
All media
House for sale Groene Kruisstraat 26 Kerkrade
€ {{ product.price.replace(/\B(?=(\d{4})+(?!\d))/g, ".") }} {{ __(product.price_condition) }}
Sold
Description
If you like modern and spacious living, but don't feel like maintaining a garden, then this is the ideal home for you!
This ready-to-use, detached house in contemporary modern architecture has a large basement, a spacious garage, a carport and is located in one of the most popular parts of Kerkrade West on the border of Heerlerbaan.
The building is characterized firstly by the zinc pyramid roof and by the unusual architectural style. It has a playful layout with a beautiful spiral staircase in the center of the house from the basement to the 1st floor, which, like the rest of the house, enjoys a lot of natural light through the high windows around the stairwell.
Beautiful garden contact from the kitchen with the green surroundings that you can enjoy in privacy.
The house has an ideal location in relation to the highways to Heerlen, Eindhoven and Aachen, Dusseldorf.
All shops and supermarkets, schools, GP, playground and dog walking area are all within a very short walking distance.
And then we have nature, beautiful walking areas are in the immediate vicinity. What else do you want?
Layout:
Basement (almost entirely sub-basement):
Spacious 1st bedroom with modern ensuite bathroom and a storage room. office space.
Ground floor:
Spacious entrance hall with high ceilings and a view of the beautiful mezzanine of the 1st floor. Separate modern toilet with sink.
Through a double glass door you reach an attractive living room with a high ceiling and modern gas fireplace from the entrance hall.
The living room also has split air conditioning.
There is a playful level difference of 2 steps to the open kitchen with a modern layout including a combination oven, dishwasher, refrigerator, 4-burner gas hob and extractor hood. There is a lot of contact with the outside through the large sliding doors and when you open them you bring the outside feeling inside.
This entire floor has a concrete floor with underfloor heating. Spacious garage with electrically operated sectional gate.
The beautifully landscaped and low-maintenance garden has 2 spacious large patio covers with robust tree trunk constructions, translucent roofs and zinc rainwater drainage.
There is a covered carport in front of the entrance on the side of the house.
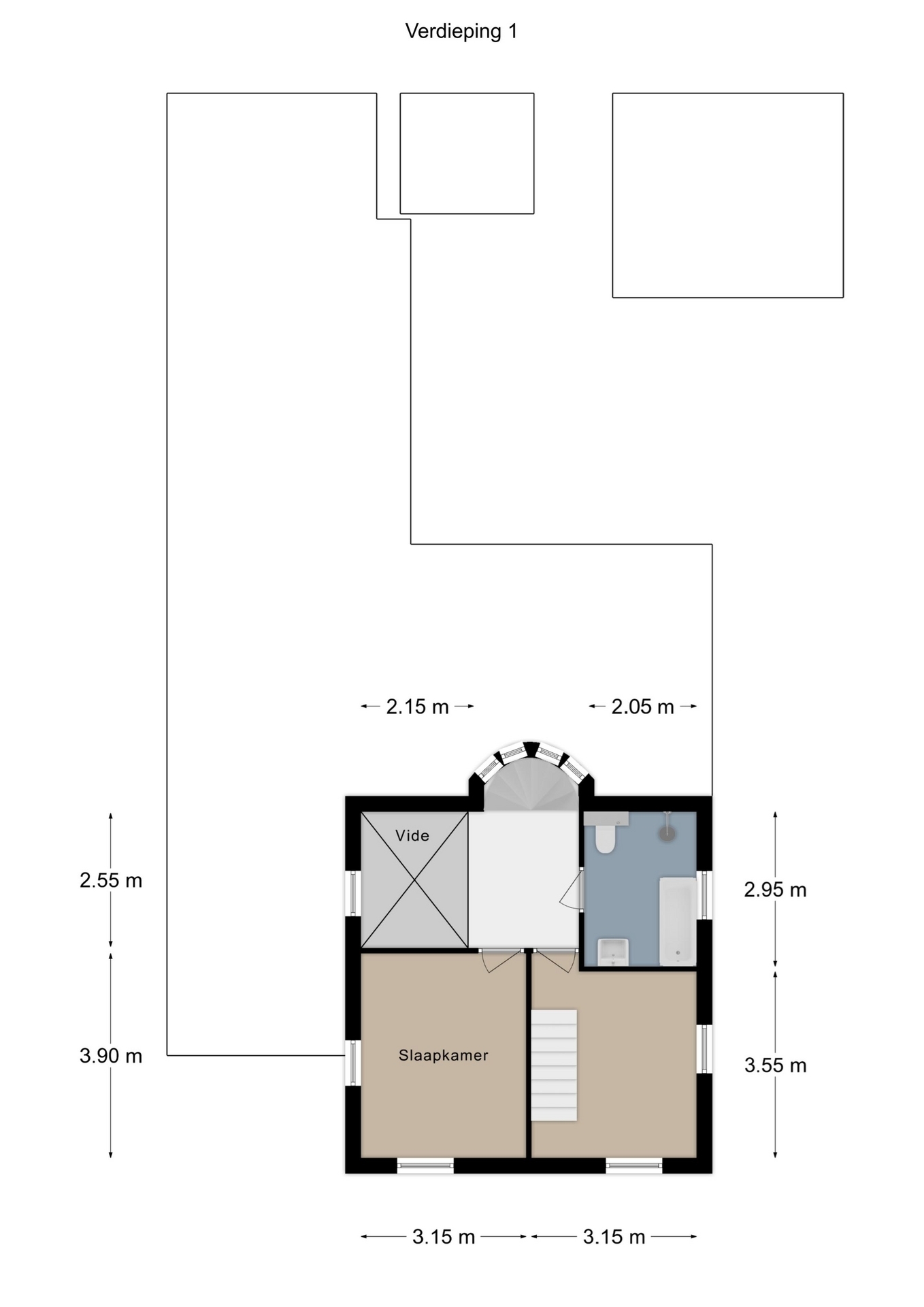
1st floor:
Landing / Vide. 2nd bedroom with air conditioning. The 3rd bedroom is used as a wardrobe room and has a fixed stainless steel staircase to the loft room on the 2nd floor, which is currently used as a hobby/sports room.
Neat bathroom with bathroom furniture, bath, shower cabin and 2nd toilet.
Outside:
Nice, fully enclosed and low-maintenance garden with hardwood patio deck and natural stone stairs, a 6-person Finnish pod sauna with infusion stove and, above all, lots of privacy.
Covered lounge area/garden house made in bamboo style.
At the rear of the garage is a second wide sectional gate with a pedestrian door through which a car, trailer or the like can be parked at the back of the garden under the large canopy.
On the right side of the house is a beautifully landscaped cobbled path with a closed gate. The ownership rights belong to the plot, with right of way for 2 neighbors who have access to their garden via this path.
GOOD TO KNOW
• Living area 165 m²
• Other indoor space approx. 38 m²
• Plot 295 m²
• Capacity 625 m³
• Year of construction 2002
• Energy label B
• 2 x LG air conditioning
• Alarm system and camera surveillance
• LED lighting recessed spotlights throughout the home
• Solidly built with very high quality materials
• Garage with underfloor heating
• Completely isolated
• Hardwood frames with HR++ insulated glass
• Living in peace and privacy
• Located near nature/outside areas
• Located near shops/roads
• Well maintained and easy to maintain
• Lots of daylight thanks to the many windows
• Possible to take over when purchasing furniture
Disclaimer:
This presentation has been prepared as carefully as possible, changes are reserved, stated sizes are approximate. No rights can therefore be derived from this presentation.
Written requirement:
To protect the interests of both buyer and seller, it is expressly stated that a purchase agreement with regard to this immovable property will only be concluded after the buyer and seller have signed the purchase agreement.
Purchase deed:
The purchase deed is drawn up in accordance with the NVM model.
Dissolution:
The period included for any (agreed) resolutive conditions (e.g. financing reservation) is generally 4 to 6 weeks after the conclusion of the oral will agreement.
Deposit:
The deposit/bank guarantee is 10% of the purchase price. The buyer must deposit this with the relevant notary within 2 weeks after the termination of the resolutive conditions.
Research obligation of the buyer:
The buyer is at all times entitled to have a structural inspection carried out at his own expense or to consult other advisors in order to obtain a good insight into the state of maintenance.
This ready-to-use, detached house in contemporary modern architecture has a large basement, a spacious garage, a carport and is located in one of the most popular parts of Kerkrade West on the border of Heerlerbaan.
The building is characterized firstly by the zinc pyramid roof and by the unusual architectural style. It has a playful layout with a beautiful spiral staircase in the center of the house from the basement to the 1st floor, which, like the rest of the house, enjoys a lot of natural light through the high windows around the stairwell.
Beautiful garden contact from the kitchen with the green surroundings that you can enjoy in privacy.
The house has an ideal location in relation to the highways to Heerlen, Eindhoven and Aachen, Dusseldorf.
All shops and supermarkets, schools, GP, playground and dog walking area are all within a very short walking distance.
And then we have nature, beautiful walking areas are in the immediate vicinity. What else do you want?
Layout:
Basement (almost entirely sub-basement):
Spacious 1st bedroom with modern ensuite bathroom and a storage room. office space.
Ground floor:
Spacious entrance hall with high ceilings and a view of the beautiful mezzanine of the 1st floor. Separate modern toilet with sink.
Through a double glass door you reach an attractive living room with a high ceiling and modern gas fireplace from the entrance hall.
The living room also has split air conditioning.
There is a playful level difference of 2 steps to the open kitchen with a modern layout including a combination oven, dishwasher, refrigerator, 4-burner gas hob and extractor hood. There is a lot of contact with the outside through the large sliding doors and when you open them you bring the outside feeling inside.
This entire floor has a concrete floor with underfloor heating. Spacious garage with electrically operated sectional gate.
The beautifully landscaped and low-maintenance garden has 2 spacious large patio covers with robust tree trunk constructions, translucent roofs and zinc rainwater drainage.
There is a covered carport in front of the entrance on the side of the house.
1st floor:
Landing / Vide. 2nd bedroom with air conditioning. The 3rd bedroom is used as a wardrobe room and has a fixed stainless steel staircase to the loft room on the 2nd floor, which is currently used as a hobby/sports room.
Neat bathroom with bathroom furniture, bath, shower cabin and 2nd toilet.
Outside:
Nice, fully enclosed and low-maintenance garden with hardwood patio deck and natural stone stairs, a 6-person Finnish pod sauna with infusion stove and, above all, lots of privacy.
Covered lounge area/garden house made in bamboo style.
At the rear of the garage is a second wide sectional gate with a pedestrian door through which a car, trailer or the like can be parked at the back of the garden under the large canopy.
On the right side of the house is a beautifully landscaped cobbled path with a closed gate. The ownership rights belong to the plot, with right of way for 2 neighbors who have access to their garden via this path.
GOOD TO KNOW
• Living area 165 m²
• Other indoor space approx. 38 m²
• Plot 295 m²
• Capacity 625 m³
• Year of construction 2002
• Energy label B
• 2 x LG air conditioning
• Alarm system and camera surveillance
• LED lighting recessed spotlights throughout the home
• Solidly built with very high quality materials
• Garage with underfloor heating
• Completely isolated
• Hardwood frames with HR++ insulated glass
• Living in peace and privacy
• Located near nature/outside areas
• Located near shops/roads
• Well maintained and easy to maintain
• Lots of daylight thanks to the many windows
• Possible to take over when purchasing furniture
Disclaimer:
This presentation has been prepared as carefully as possible, changes are reserved, stated sizes are approximate. No rights can therefore be derived from this presentation.
Written requirement:
To protect the interests of both buyer and seller, it is expressly stated that a purchase agreement with regard to this immovable property will only be concluded after the buyer and seller have signed the purchase agreement.
Purchase deed:
The purchase deed is drawn up in accordance with the NVM model.
Dissolution:
The period included for any (agreed) resolutive conditions (e.g. financing reservation) is generally 4 to 6 weeks after the conclusion of the oral will agreement.
Deposit:
The deposit/bank guarantee is 10% of the purchase price. The buyer must deposit this with the relevant notary within 2 weeks after the termination of the resolutive conditions.
Research obligation of the buyer:
The buyer is at all times entitled to have a structural inspection carried out at his own expense or to consult other advisors in order to obtain a good insight into the state of maintenance.
+ Read more
- Read less
Construction: {{
product.build_year }}
Construction: {{ product.build_period.start }} -
{{ product.build_period.end }}
House
, Single-family house
{{ product.rooms }} rooms
{{ product.bedrooms
}} bedrooms
Living space: {{
product.living_space }} m²
Plot: {{
product.plot_surface }} m²
Energy class: {{ product.energy_class }}
Energy index: {{ product.energy_index }}
Characteristics
{{ field.label }}
{{ field.value }}
+ Read more
{{ field.label }}
{{ field.value }}
- Read less
{{ product.company.name }}
Contact us
{{ product.company.phone.replace('-', ' ').substr(0, 7) }}...
{{ product.company.phone.replace('-', ' ') }}
Share:
Date