Sold
€ {{ product.price.replace(/\B(?=(\d{4})+(?!\d))/g, ".") }} {{ __(product.price_condition) }}
Photo’s
{{ product.images.length }}
Floorplan
{{ product.plans.length }}
360° photo’s {{ product.panoramas.length }}
Video’s {{ product.videos.length }}
Maps
All media
House for sale Europaweg-zuid 200 Landgraaf
€ {{ product.price.replace(/\B(?=(\d{4})+(?!\d))/g, ".") }} {{ __(product.price_condition) }}
Sold
Description
VRIJSTAANDE BUNGALOW MET VRIJSTAANDE GARAGE OP LOOPAFSTAND VAN EEN NATUURRIJKE OMGEVING
KELDER:
Hal; 2 voorraadruimtes.
BEGANE GROND:
Hal met modern toilet, trap naar kelder, alarm en meterkast; woonkamer met parketvloer, schuifpui naar tuin en open haard; dichte keuken met verzorgde keukeninstallatie voorzien van inbouwapparatuur (keramische kookplaat - afzuigkap - oven - koelkast - vaatwasser); wasruimte met toegang tot tuin, aansluiting wasautomaat en cv-combiketel (huur); moderne badkamer met ligbad, vaste wastafel met meubel en inloopdouche; 3 slaapkamers; tussenportaal met vaste trap naar zolder; zonnig gesitueerde en privacyvolle tuin met diverse terrassen, gazon, plantenborders, tuinhuis en achterom; vrijstaande garage met kantelpoort.
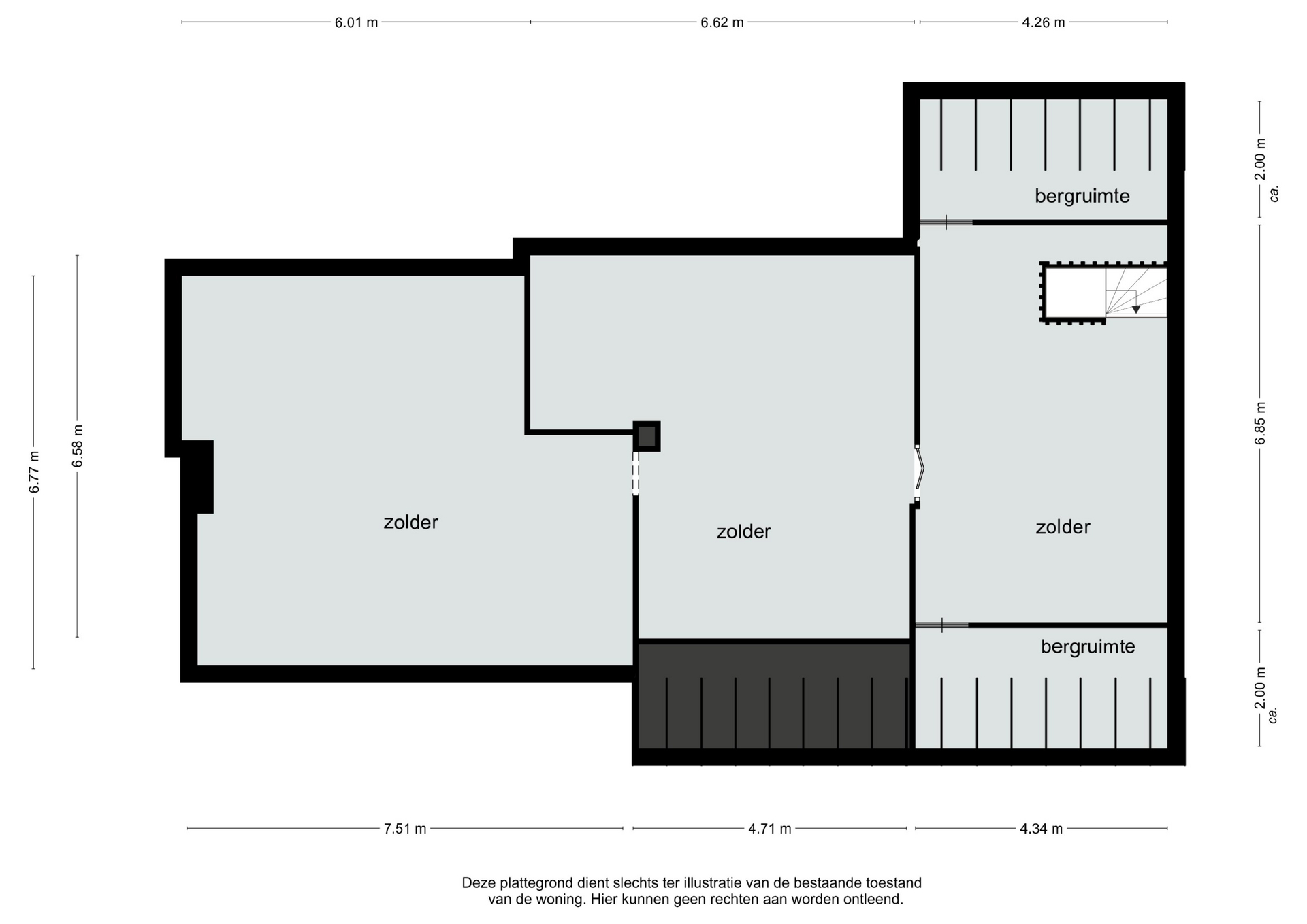
ZOLDER:
3 ruimtes, momenteel in gebruik als berg- en speelruimte, maar tevens geschikt als woonruimte na enige aanpassingen.
BIJZONDERHEDEN:
Bij deze vrijstaande bungalow zijn in de achterliggende jaren vernieuwd het dak, de meterkast, keukeninstallatie, toilet, badkamer, parketvloer en nagenoeg alle kozijnen door kunststof kozijnen met HR++-beglazing. De cv-ketel is gehuurd, de 15 zonnepanelen zijn aangeschaft middels een leningsovereenkomst en is de open haard al enige tijd niet meer in gebruik.
Bouwjaar: 1966. Inhoud: 790 m3. Woonoppervlakte: 133 m2. Overige inpandige ruimte: 91 m2. Externe bergruimte: 31 m2. Perceelgrootte: 651 m2.
HET BETREFT HIER EEN COLLEGIALE VERKOOP MET OPS ADVIES MAKELAARDIJ
De waarborgsom/bankgarantie is 10% van de koopsom. De koper dient deze binnen 2 weken nadat het financieringsvoorbehoud is verlopen bij de desbetreffende notaris te deponeren.
Ter bescherming van de belangen van zowel koper als ook verkoper wordt uitdrukkelijk gesteld dat een koopovereenkomst met betrekking tot deze onroerende zaak eerst dan tot stand komt nadat koper en verkoper de koopovereenkomst hebben getekend (schriftelijkheids vereiste).
Alle door ons kantoor verstrekte informatie omtrent onroerende zaken, moet beschouwd worden als een uitnodiging om in onderhandeling te treden, en is geheel vrijblijvend! Aangegeven maten zijn slechts bij benadering. Aan deze beperkte info kunnen geen rechten worden ontleend. Indien c.v.ketel en/of warmwatervoorziening een huurtoestel is, dient koper de huurovereenkomst over te nemen.
Een (eventueel) bijgevoegde plattegrond dient uitsluitend als globale indicatie/visualisatie. Hieraan kunnen uitdrukkelijk tevens geen rechten worden ontleend
KELDER:
Hal; 2 voorraadruimtes.
BEGANE GROND:
Hal met modern toilet, trap naar kelder, alarm en meterkast; woonkamer met parketvloer, schuifpui naar tuin en open haard; dichte keuken met verzorgde keukeninstallatie voorzien van inbouwapparatuur (keramische kookplaat - afzuigkap - oven - koelkast - vaatwasser); wasruimte met toegang tot tuin, aansluiting wasautomaat en cv-combiketel (huur); moderne badkamer met ligbad, vaste wastafel met meubel en inloopdouche; 3 slaapkamers; tussenportaal met vaste trap naar zolder; zonnig gesitueerde en privacyvolle tuin met diverse terrassen, gazon, plantenborders, tuinhuis en achterom; vrijstaande garage met kantelpoort.
ZOLDER:
3 ruimtes, momenteel in gebruik als berg- en speelruimte, maar tevens geschikt als woonruimte na enige aanpassingen.
BIJZONDERHEDEN:
Bij deze vrijstaande bungalow zijn in de achterliggende jaren vernieuwd het dak, de meterkast, keukeninstallatie, toilet, badkamer, parketvloer en nagenoeg alle kozijnen door kunststof kozijnen met HR++-beglazing. De cv-ketel is gehuurd, de 15 zonnepanelen zijn aangeschaft middels een leningsovereenkomst en is de open haard al enige tijd niet meer in gebruik.
Bouwjaar: 1966. Inhoud: 790 m3. Woonoppervlakte: 133 m2. Overige inpandige ruimte: 91 m2. Externe bergruimte: 31 m2. Perceelgrootte: 651 m2.
HET BETREFT HIER EEN COLLEGIALE VERKOOP MET OPS ADVIES MAKELAARDIJ
De waarborgsom/bankgarantie is 10% van de koopsom. De koper dient deze binnen 2 weken nadat het financieringsvoorbehoud is verlopen bij de desbetreffende notaris te deponeren.
Ter bescherming van de belangen van zowel koper als ook verkoper wordt uitdrukkelijk gesteld dat een koopovereenkomst met betrekking tot deze onroerende zaak eerst dan tot stand komt nadat koper en verkoper de koopovereenkomst hebben getekend (schriftelijkheids vereiste).
Alle door ons kantoor verstrekte informatie omtrent onroerende zaken, moet beschouwd worden als een uitnodiging om in onderhandeling te treden, en is geheel vrijblijvend! Aangegeven maten zijn slechts bij benadering. Aan deze beperkte info kunnen geen rechten worden ontleend. Indien c.v.ketel en/of warmwatervoorziening een huurtoestel is, dient koper de huurovereenkomst over te nemen.
Een (eventueel) bijgevoegde plattegrond dient uitsluitend als globale indicatie/visualisatie. Hieraan kunnen uitdrukkelijk tevens geen rechten worden ontleend
+ Read more
- Read less
Construction: {{
product.build_year }}
Construction: {{ product.build_period.start }} -
{{ product.build_period.end }}
House
, Bungalow
{{ product.rooms }} rooms
{{ product.bedrooms
}} bedrooms
Living space: {{
product.living_space }} m²
Plot: {{
product.plot_surface }} m²
Energy class: {{ product.energy_class }}
Energy index: {{ product.energy_index }}
Characteristics
{{ field.label }}
{{ field.value }}
+ Read more
{{ field.label }}
{{ field.value }}
- Read less
{{ product.company.name }}
Contact us
{{ product.company.phone.replace('-', ' ').substr(0, 7) }}...
{{ product.company.phone.replace('-', ' ') }}
Share:
Date