Available
€ {{ product.price.replace(/\B(?=(\d{4})+(?!\d))/g, ".") }} {{ __(product.price_condition) }}
Photo’s
{{ product.images.length }}
Floorplan
{{ product.plans.length }}
360° photo’s {{ product.panoramas.length }}
Video’s {{ product.videos.length }}
Maps
All media
House for sale Eiswinkel 23 Eygelshoven
€ {{ product.price.replace(/\B(?=(\d{4})+(?!\d))/g, ".") }} {{ __(product.price_condition) }}
Available
Description
Mooie 2 onder 1 kap woning in de wijk Vijverpark aan de rand van Eygelshoven centrum. Met een woonoppervlakte van 111,8m2 , 4 slaapkamers en een ruime zolder is er voldoende leefruimte. En de grote serre maakt het extraatje aan deze woonplek.
De woning is voorzien van een royale woonkamer met zithoek en eetgelegenheid. Een open keuken in L-opstelling, Vier slaapkamers. Een nette badkamer met aparte douche en ligbad en een ruime bergzolder met mogelijkheid voor een extra kamer of hobbyruimte.
Eiswinkel is een rustige straat. Met het centrum van Eygelshoven op 800m lopen. Mis ook niet de markt op zaterdag. Het is een aanrader. De BSO en speeltuintje Veldhof zijn zo’n 5 minuten lopen verwijderd en dagelijkse voorzieningen binnen bereik.
Natuurpark Haanrade is een goed vertrekpunt voor prachtige fietstochten en vandaaruit ben je ook in luttele minuten over de Duitse grens.
Via de N300 richting Landgraaf brengt je richting Brunssum, Landgraaf en verder, of richting Heerlen over de N281 naar Maastricht en verder.
INDELING
Begane grond:
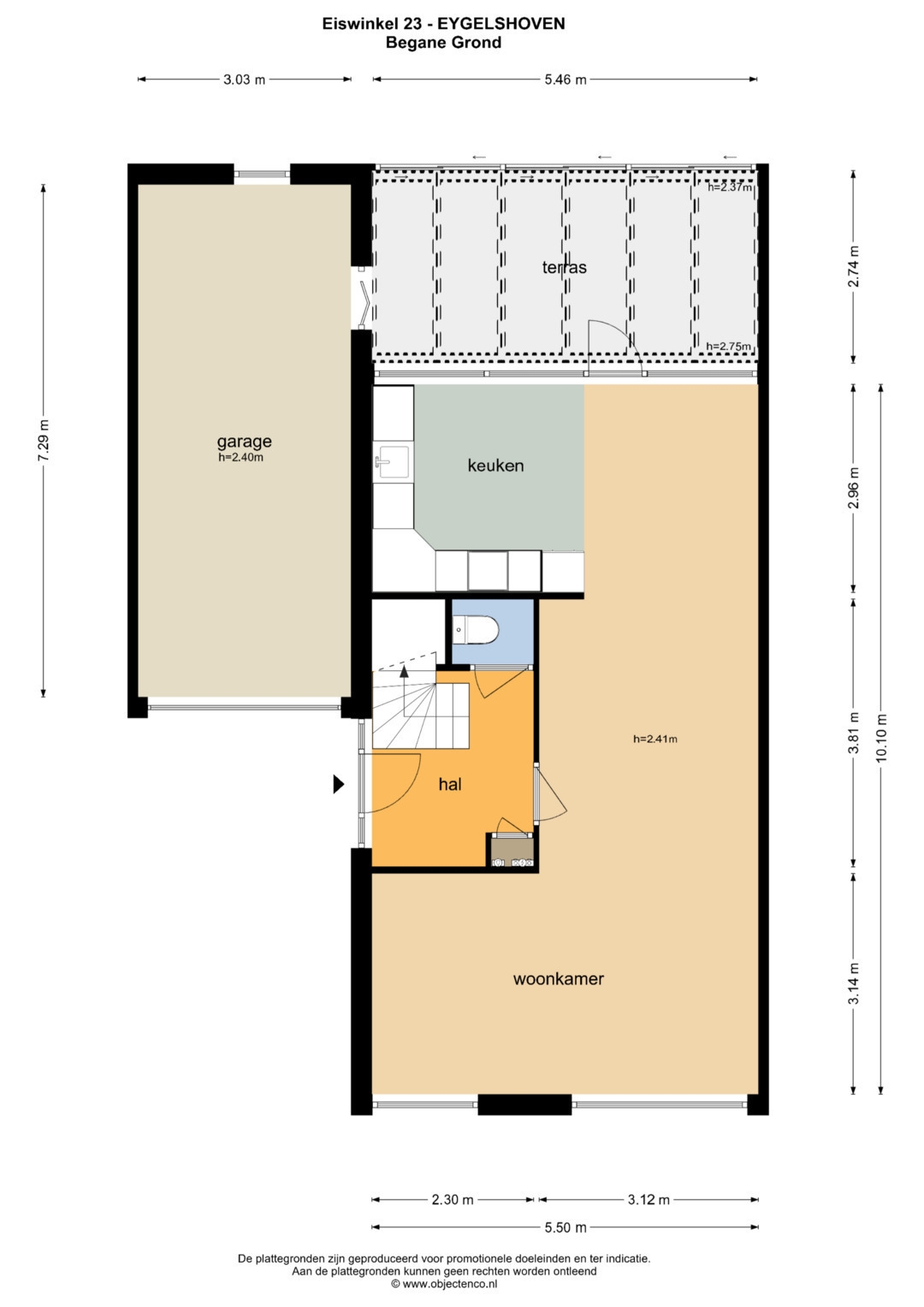
Ontvangsthal met garderobe, toilet, open trap en toegang tot de woonkamer (1010 x 555cm-breedste punt). Op de vloer in de woonkamer ligt een Rosa graniet (zoals ook in keuken en hal) en de wanden zijn voorzien van een speciaal behang met reliëf.
De open keuken is voorzien van een hoekopstelling en uitgerust met verschillende (Miele) inbouwapparaten: 2x 2-pitsgaskookzones, 1x grillplaat, koeler, vaatwasmachine en afzuigunit met directe afvoer naar buiten. Het werkblad heeft een grote spoelbak met kraan en dezelfde kleur vinden we terug in de achterwand. Onderhoud is geen probleem meer.
Een verrassing bevindt zich in één van de keukenkasten. Mocht je werkblad tekort komen, dan is hierin de oplossing te vinden. Vraag er naar bij de bezichtiging.
Het overdekt terras over de gehele breedte van het huis heeft een glazen schuifpui welke ’s zomers geheel open is te schuiven. Hierdoor kan in zomer en winter genoten worden van de buitenlucht. Lange zomeravonden zijn gewaarborgd en fijne wintermiddagen liggen in het vooruitzicht.
1e Verdieping:
Overloop waaraan de 4 slaapkamers en de badkamer grenzen. 2 Slaapkamer aan de voorzijde (383 x 312cm/469 x 232cm). Aan de achterzijde de andere 2 (322 x 311cm/322 x 229cm). De kleinste kamer heeft momenteel een aansluiting voor wasmachine en droger.
In de volledig in natuursteen uitgevoerde badkamer is het goed vertoeven met de aparte douche en het ligbad. Relaxen in eigen huis. Het toilet en de wastafel met meubelombouw maken het geheel compleet.
Zolder:
Deze ruimte bestaat momenteel uit 1 bergruimte waarin ook de CV-ketel is geplaatst.
Tuin:
De voortuin met oprit naar de stenen garage (729 x 303cm-plaats voor 1 auto en fietsen en berging) is netjes aangelegd. De achtertuin, welke buitenom is te bereiken via de garage, is dit ook. Een mooi bankirai terras, diverse grindpaden, een mooie vijver en de diversiteit aan planten tonen de passie waarmee het is aangelegd.
BIJZONDERHEDEN:
? Zeer ruime woning.
? Rustige en centrale ligging.
? Zomer- en winterserre.
? Aangelegde en onderhouden tuin.
KENMERKEN
Bouwjaar: 1977
Inhoud: 543,7 m³
Woonoppervlakte: 111,8 m²
Grondoppervlakte: 285 m²
Isolatievoorzieningen: isolerende beglazing in kunststof kozijnen
Energielabel: C, geldig tot 06-05-2034
CV-ketel: huur
Aanvaarding: In overleg
BEZICHTIGINGSAFSPRAAK MAKEN
Wil je deze woning graag bezichtigen?
Voor een bezichtigingsafspraak, stuur ons een mail met uw telefoonnummer: Wij maken met u een afspraak.
Van maandag t/m vrijdag zijn wij bereikbaar tussen 9:00 uur tot 17.00 uur. Ook voor andere vragen over hypotheken, verzekeringen, makelaardij en alle bijbehorende zaken.
Ter bescherming van de belangen van zowel koper als verkoper, wordt uitdrukkelijk gesteld dat een koopovereenkomst met betrekking tot deze onroerende zaak eerst dan tot stand komt nadat koper en verkoper de koopovereenkomst hebben getekend (“schriftelijkheidsvereiste”).
Indien er in de woning huurtoestellen aanwezig zijn zoals CV-ketel, boiler, zonnepanelen, mechanische ventilatie etc. dan dienen deze in overleg door de koper te worden overgenomen.
Koper is te allen tijde gerechtigd voor eigen rekening een bouwkundige keuring te (laten) verrichten dan wel andere adviseurs te raadplegen teneinde een goed inzicht te verkrijgen over de staat van onderhoud.
Deze informatie is door Zuyderhuys Makelaardij met de nodige zorgvuldigheid samengesteld. Onzerzijds wordt echter geen enkele aansprakelijkheid aanvaard voor enige onvolledigheid, onjuist of anderszins, dan wel de gevolgen daarvan. Alle opgegeven maten en oppervlakten zijn indicatief.
De woning is voorzien van een royale woonkamer met zithoek en eetgelegenheid. Een open keuken in L-opstelling, Vier slaapkamers. Een nette badkamer met aparte douche en ligbad en een ruime bergzolder met mogelijkheid voor een extra kamer of hobbyruimte.
Eiswinkel is een rustige straat. Met het centrum van Eygelshoven op 800m lopen. Mis ook niet de markt op zaterdag. Het is een aanrader. De BSO en speeltuintje Veldhof zijn zo’n 5 minuten lopen verwijderd en dagelijkse voorzieningen binnen bereik.
Natuurpark Haanrade is een goed vertrekpunt voor prachtige fietstochten en vandaaruit ben je ook in luttele minuten over de Duitse grens.
Via de N300 richting Landgraaf brengt je richting Brunssum, Landgraaf en verder, of richting Heerlen over de N281 naar Maastricht en verder.
INDELING
Begane grond:
Ontvangsthal met garderobe, toilet, open trap en toegang tot de woonkamer (1010 x 555cm-breedste punt). Op de vloer in de woonkamer ligt een Rosa graniet (zoals ook in keuken en hal) en de wanden zijn voorzien van een speciaal behang met reliëf.
De open keuken is voorzien van een hoekopstelling en uitgerust met verschillende (Miele) inbouwapparaten: 2x 2-pitsgaskookzones, 1x grillplaat, koeler, vaatwasmachine en afzuigunit met directe afvoer naar buiten. Het werkblad heeft een grote spoelbak met kraan en dezelfde kleur vinden we terug in de achterwand. Onderhoud is geen probleem meer.
Een verrassing bevindt zich in één van de keukenkasten. Mocht je werkblad tekort komen, dan is hierin de oplossing te vinden. Vraag er naar bij de bezichtiging.
Het overdekt terras over de gehele breedte van het huis heeft een glazen schuifpui welke ’s zomers geheel open is te schuiven. Hierdoor kan in zomer en winter genoten worden van de buitenlucht. Lange zomeravonden zijn gewaarborgd en fijne wintermiddagen liggen in het vooruitzicht.
1e Verdieping:
Overloop waaraan de 4 slaapkamers en de badkamer grenzen. 2 Slaapkamer aan de voorzijde (383 x 312cm/469 x 232cm). Aan de achterzijde de andere 2 (322 x 311cm/322 x 229cm). De kleinste kamer heeft momenteel een aansluiting voor wasmachine en droger.
In de volledig in natuursteen uitgevoerde badkamer is het goed vertoeven met de aparte douche en het ligbad. Relaxen in eigen huis. Het toilet en de wastafel met meubelombouw maken het geheel compleet.
Zolder:
Deze ruimte bestaat momenteel uit 1 bergruimte waarin ook de CV-ketel is geplaatst.
Tuin:
De voortuin met oprit naar de stenen garage (729 x 303cm-plaats voor 1 auto en fietsen en berging) is netjes aangelegd. De achtertuin, welke buitenom is te bereiken via de garage, is dit ook. Een mooi bankirai terras, diverse grindpaden, een mooie vijver en de diversiteit aan planten tonen de passie waarmee het is aangelegd.
BIJZONDERHEDEN:
? Zeer ruime woning.
? Rustige en centrale ligging.
? Zomer- en winterserre.
? Aangelegde en onderhouden tuin.
KENMERKEN
Bouwjaar: 1977
Inhoud: 543,7 m³
Woonoppervlakte: 111,8 m²
Grondoppervlakte: 285 m²
Isolatievoorzieningen: isolerende beglazing in kunststof kozijnen
Energielabel: C, geldig tot 06-05-2034
CV-ketel: huur
Aanvaarding: In overleg
BEZICHTIGINGSAFSPRAAK MAKEN
Wil je deze woning graag bezichtigen?
Voor een bezichtigingsafspraak, stuur ons een mail met uw telefoonnummer: Wij maken met u een afspraak.
Van maandag t/m vrijdag zijn wij bereikbaar tussen 9:00 uur tot 17.00 uur. Ook voor andere vragen over hypotheken, verzekeringen, makelaardij en alle bijbehorende zaken.
Ter bescherming van de belangen van zowel koper als verkoper, wordt uitdrukkelijk gesteld dat een koopovereenkomst met betrekking tot deze onroerende zaak eerst dan tot stand komt nadat koper en verkoper de koopovereenkomst hebben getekend (“schriftelijkheidsvereiste”).
Indien er in de woning huurtoestellen aanwezig zijn zoals CV-ketel, boiler, zonnepanelen, mechanische ventilatie etc. dan dienen deze in overleg door de koper te worden overgenomen.
Koper is te allen tijde gerechtigd voor eigen rekening een bouwkundige keuring te (laten) verrichten dan wel andere adviseurs te raadplegen teneinde een goed inzicht te verkrijgen over de staat van onderhoud.
Deze informatie is door Zuyderhuys Makelaardij met de nodige zorgvuldigheid samengesteld. Onzerzijds wordt echter geen enkele aansprakelijkheid aanvaard voor enige onvolledigheid, onjuist of anderszins, dan wel de gevolgen daarvan. Alle opgegeven maten en oppervlakten zijn indicatief.
+ Read more
- Read less
Construction: {{
product.build_year }}
Construction: {{ product.build_period.start }} -
{{ product.build_period.end }}
House
, Single-family house
{{ product.rooms }} rooms
{{ product.bedrooms
}} bedrooms
Living space: {{
product.living_space }} m²
Plot: {{
product.plot_surface }} m²
Energy class: {{ product.energy_class }}
Energy index: {{ product.energy_index }}
Characteristics
{{ field.label }}
{{ field.value }}
+ Read more
{{ field.label }}
{{ field.value }}
- Read less
{{ product.company.name }}
Contact us
{{ product.company.phone.replace('-', ' ').substr(0, 7) }}...
{{ product.company.phone.replace('-', ' ') }}
Share:
Date