Sold
€ {{ product.price.replace(/\B(?=(\d{4})+(?!\d))/g, ".") }} {{ __(product.price_condition) }}
Photo’s
{{ product.images.length }}
Floorplan
{{ product.plans.length }}
360° photo’s {{ product.panoramas.length }}
Video’s {{ product.videos.length }}
Maps
All media
House for sale Kleikoeleweg 57 Landgraaf
€ {{ product.price.replace(/\B(?=(\d{4})+(?!\d))/g, ".") }} {{ __(product.price_condition) }}
Sold
Description
Deze charmante twee-onder-een-kapwoning biedt u een perfecte combinatie van comfort en gemak. Met een energielabel C, een woonoppervlakte van 74m², en gelegen op een perceel van 218m², is dit een ideale plek voor uw nieuwe thuis.
Dankzij de gunstige ligging is de woning ideaal voor woon- en werkverkeer. Kom langs en ervaar zelf de warme en uitnodigende sfeer van dit gezellige huis.
INDELING:
Begane grond:
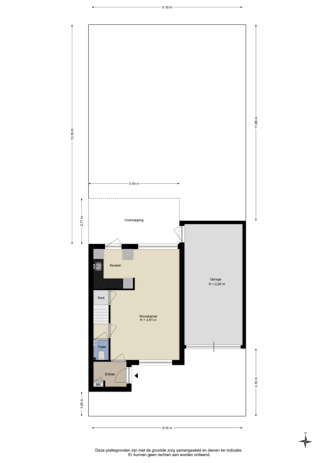
Bij binnenkomst via de voordeur betreedt u de ruime entree, waar zich de meterkast bevindt. De lichte woonkamer met een hoogte van 2,61 meter biedt een gezellige en ruime leefruimte. Dankzij de grote ramen is er veel natuurlijk lichtinval, wat bijdraagt aan een warme en uitnodigende sfeer. De praktische keuken is direct verbonden met de woonkamer, wat zorgt voor een open en luchtig gevoel. Een handige opbergkast onder de trap is ideaal voor het opslaan van diverse huishoudelijke spullen. Het toilet bevindt zich bij de opgang naar de eerste verdieping. Daarnaast beschikt de woning over een aan de woning grenzende garage van 3,52 x 7,34 meter met voldoende ruimte voor een auto en extra opslag.
Eerste verdieping:
De eerste verdieping beschikt over twee ruime slaapkamers en een badkamer. De overloop biedt toegang tot alle vertrekken. De badkamer is uitgerust met een ligbad, wastafel en toilet, wat zorgt voor een comfortabel begin van de dag. In de kleine slaapkamer bevinden zich momenteel de witgoedaansluitingen, wat deze ruimte ideaal maakt voor het plaatsen van uw wasmachine en droger.
Zolder:
De zolder biedt extra opbergruimte en mogelijkheden voor uitbreiding, zoals een extra slaapkamer of hobbyruimte. Met een hoogte van 1,96 meter is deze ruimte praktisch en veelzijdig te gebruiken.
Tuin:
De tuin, gelegen op het westen, heeft zowel een bestraat gedeelte met overkapping als een fijn gazon met groene borders. Via de tuin heeft u toegang tot de garage, die is voorzien van een elektrische sectionaalpoort en aansluitingen voor elektra en water. De rustige en groene omgeving zorgt voor een perfecte balans tussen stadse voorzieningen en een serene woonomgeving.
Leuk om te weten:
- Bouwjaar 1983 (conform BAG), eigen perceel: 218 m² eigen grond (conform kadaster);
- Woonoppervlakte ca. 74 m² (meetrapport aanwezig);
- Inhoud: ca. 391m³;
- 8 zonnepanelen aanwezig (eigendom);
- Grotendeels v.v. kunststof kozijnen, dubbele beglazing en rolluiken;
- CV-combiketel (Vaillant);
- Aanvaarding in overleg!
Interesse? Wij nemen graag de tijd voor u! Neem contact op via het contactformulier op de diverse websites of op onze website en we laten u de woning graag zien.
Overige informatie:
De gebruikelijke waarborgsom/bankgarantie is 10% van de koopsom. De koper dient deze, indien de verkoper en koper dit overeenkomen, binnen 2 weken nadat het financieringsvoorbehoud is verlopen bij de desbetreffende notaris te deponeren.
Toelichtingsclausule NEN2580
De Meetinstructie is gebaseerd op de NEN2580. De Meetinstructie is bedoeld om een meer eenduidige manier van meten toe te passen voor het geven van een indicatie van de gebruiksoppervlakte. De Meetinstructie sluit verschillen in meetuitkomsten niet volledig uit, door bijvoorbeeld interpretatiever- schillen, afrondingen of beperkingen bij het uitvoeren van de meting.
Schriftelijkheidsvereiste
Conform artikel 7:2 Burgerlijk Wetboek, is er pas sprake van een rechtsgeldige koopovereenkomst als de particuliere verkoper en de particuliere koper de koopovereenkomst hebben ondertekend. Een mondelinge overeenstemming tussen de particuliere verkoper en de particuliere koper is niet rechts- geldig.
Disclaimer
Alle door ons kantoor verstrekte informatie omtrent onroerende zaken, moet beschouwd worden als een uitnodiging om in onderhandeling te treden, en is geheel vrijblijvend! Alle vermelde maten en afmetingen zijn slechts bij benadering. Aan deze beperkte informatie kunnen geen rechten worden ontleend. Indien in enige documentatie of op enige website informatie staat die niet overeen komt met de werkelijkheid, dan geldt de feitelijke situatie waarin de woning zich bevindt, zoals koper deze tijdens de bezichtiging heeft kunnen waarnemen, en wordt de woning in deze feitelijke situatie/staat verkocht. Een (eventueel) bijgevoegde plattegrond dient uitsluitend als globale indicatie/visualisatie. Hieraan kunnen uitdrukkelijk geen rechten worden ontleend.
De makelaar Roy Ubachs nodigt u graag uit voor een bezichtiging.
Dankzij de gunstige ligging is de woning ideaal voor woon- en werkverkeer. Kom langs en ervaar zelf de warme en uitnodigende sfeer van dit gezellige huis.
INDELING:
Begane grond:
Bij binnenkomst via de voordeur betreedt u de ruime entree, waar zich de meterkast bevindt. De lichte woonkamer met een hoogte van 2,61 meter biedt een gezellige en ruime leefruimte. Dankzij de grote ramen is er veel natuurlijk lichtinval, wat bijdraagt aan een warme en uitnodigende sfeer. De praktische keuken is direct verbonden met de woonkamer, wat zorgt voor een open en luchtig gevoel. Een handige opbergkast onder de trap is ideaal voor het opslaan van diverse huishoudelijke spullen. Het toilet bevindt zich bij de opgang naar de eerste verdieping. Daarnaast beschikt de woning over een aan de woning grenzende garage van 3,52 x 7,34 meter met voldoende ruimte voor een auto en extra opslag.
Eerste verdieping:
De eerste verdieping beschikt over twee ruime slaapkamers en een badkamer. De overloop biedt toegang tot alle vertrekken. De badkamer is uitgerust met een ligbad, wastafel en toilet, wat zorgt voor een comfortabel begin van de dag. In de kleine slaapkamer bevinden zich momenteel de witgoedaansluitingen, wat deze ruimte ideaal maakt voor het plaatsen van uw wasmachine en droger.
Zolder:
De zolder biedt extra opbergruimte en mogelijkheden voor uitbreiding, zoals een extra slaapkamer of hobbyruimte. Met een hoogte van 1,96 meter is deze ruimte praktisch en veelzijdig te gebruiken.
Tuin:
De tuin, gelegen op het westen, heeft zowel een bestraat gedeelte met overkapping als een fijn gazon met groene borders. Via de tuin heeft u toegang tot de garage, die is voorzien van een elektrische sectionaalpoort en aansluitingen voor elektra en water. De rustige en groene omgeving zorgt voor een perfecte balans tussen stadse voorzieningen en een serene woonomgeving.
Leuk om te weten:
- Bouwjaar 1983 (conform BAG), eigen perceel: 218 m² eigen grond (conform kadaster);
- Woonoppervlakte ca. 74 m² (meetrapport aanwezig);
- Inhoud: ca. 391m³;
- 8 zonnepanelen aanwezig (eigendom);
- Grotendeels v.v. kunststof kozijnen, dubbele beglazing en rolluiken;
- CV-combiketel (Vaillant);
- Aanvaarding in overleg!
Interesse? Wij nemen graag de tijd voor u! Neem contact op via het contactformulier op de diverse websites of op onze website en we laten u de woning graag zien.
Overige informatie:
De gebruikelijke waarborgsom/bankgarantie is 10% van de koopsom. De koper dient deze, indien de verkoper en koper dit overeenkomen, binnen 2 weken nadat het financieringsvoorbehoud is verlopen bij de desbetreffende notaris te deponeren.
Toelichtingsclausule NEN2580
De Meetinstructie is gebaseerd op de NEN2580. De Meetinstructie is bedoeld om een meer eenduidige manier van meten toe te passen voor het geven van een indicatie van de gebruiksoppervlakte. De Meetinstructie sluit verschillen in meetuitkomsten niet volledig uit, door bijvoorbeeld interpretatiever- schillen, afrondingen of beperkingen bij het uitvoeren van de meting.
Schriftelijkheidsvereiste
Conform artikel 7:2 Burgerlijk Wetboek, is er pas sprake van een rechtsgeldige koopovereenkomst als de particuliere verkoper en de particuliere koper de koopovereenkomst hebben ondertekend. Een mondelinge overeenstemming tussen de particuliere verkoper en de particuliere koper is niet rechts- geldig.
Disclaimer
Alle door ons kantoor verstrekte informatie omtrent onroerende zaken, moet beschouwd worden als een uitnodiging om in onderhandeling te treden, en is geheel vrijblijvend! Alle vermelde maten en afmetingen zijn slechts bij benadering. Aan deze beperkte informatie kunnen geen rechten worden ontleend. Indien in enige documentatie of op enige website informatie staat die niet overeen komt met de werkelijkheid, dan geldt de feitelijke situatie waarin de woning zich bevindt, zoals koper deze tijdens de bezichtiging heeft kunnen waarnemen, en wordt de woning in deze feitelijke situatie/staat verkocht. Een (eventueel) bijgevoegde plattegrond dient uitsluitend als globale indicatie/visualisatie. Hieraan kunnen uitdrukkelijk geen rechten worden ontleend.
De makelaar Roy Ubachs nodigt u graag uit voor een bezichtiging.
+ Read more
- Read less
Construction: {{
product.build_year }}
Construction: {{ product.build_period.start }} -
{{ product.build_period.end }}
House
, Single-family house
{{ product.rooms }} rooms
{{ product.bedrooms
}} bedrooms
Living space: {{
product.living_space }} m²
Plot: {{
product.plot_surface }} m²
Energy class: {{ product.energy_class }}
Energy index: {{ product.energy_index }}
Characteristics
{{ field.label }}
{{ field.value }}
+ Read more
{{ field.label }}
{{ field.value }}
- Read less
{{ product.company.name }}
Contact us
{{ product.company.phone.replace('-', ' ').substr(0, 7) }}...
{{ product.company.phone.replace('-', ' ') }}
Share:
Date