Sold
€ {{ product.price.replace(/\B(?=(\d{4})+(?!\d))/g, ".") }} {{ __(product.price_condition) }}
Photo’s
{{ product.images.length }}
Floorplan
{{ product.plans.length }}
360° photo’s {{ product.panoramas.length }}
Video’s {{ product.videos.length }}
Maps
All media
House for sale Bleijerheiderstraat 81 Kerkrade
€ {{ product.price.replace(/\B(?=(\d{4})+(?!\d))/g, ".") }} {{ __(product.price_condition) }}
Sold
Description
Op goede en centrale aan de Bleijerheidestraat (Kerkrade) gelegen riante tussenwoning, deze woning is o.a. v.v. 5 slaapkamers, riante living, en ruime garage met dakterras. De mogelijkheid voor het realiseren van een kantoor/ praktijkruimte is aanwezig.
Souterrain:
Vanuit de hal te bereiken souterrain is verdeeld in kelderruimte (6,13 m x 3,92 m), kelderruimte II (3,97 m x 3,95 m) en provisieruimte (3,70 m x 2,84 m)
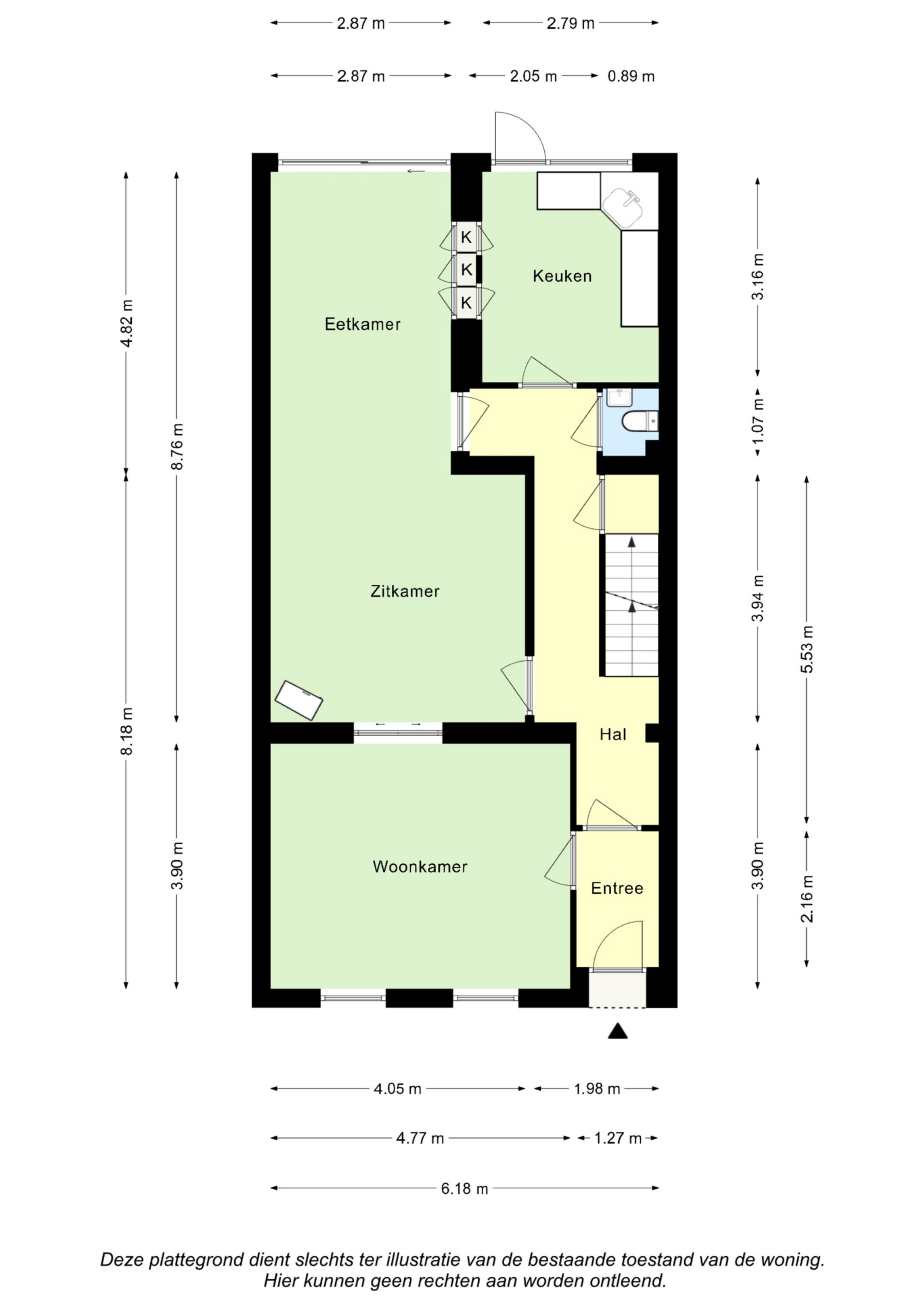
Begane grond:
Middels vestibule te bereiken hal, de ruime hal v.v. authentieke tegelvloer biedt toegang toiletruimte, deur naar kelder en toegang tot living en keuken. Vanuit de vestibule heeft men toegang tot voor/ woonkamer. De aan de voorzijde gelegen woonkamer (4,77 m x 3,90 m) biedt middels ensuite deuren toegang tot de zitkamer (4,05 m x 3,95 m). De eetkamer (4,82 m x 2,87 m) heeft een open verbinding met de zitkamer en biedt middels een schuifpui toegang tot tuin. De gesloten keuken (3,16 m x 2,79 m) heeft een doorgeefluik naar de eetkamer, deur naar tuin en is v.v. een plavuizenvloer.
Tuin:
Vanuit de zonnige tuin heeft men toegang tot de garage en dakterras. De garage (5,94 m x 5,93 m) is v.v. een dubbele schuifpoort, plavuizenvloer, verwarming en wateraansluiting. Middels trap vanuit de tuin is het riante dakterras (6,26 m x 6,23 m) bereikbaar.
1e verdieping:
De ruime overloop biedt toegang tot 3 slaapkamers en badkamer. Slaapkamer I (3,88 m x 3,49 m) en slaapkamer II (3,89 m x 2,61 m) zijn beide aan de voorzijde gelegen. Slaapkamer III (4,06 m x 4,05 m) is aan achterzijde gelegen een heeft middels schuifpui toegang tot het 2e dakterras (4,58 m 4,05 m). De ruime geheel betegelde badkamer (4,34 m x 2,79 m) is v.v. een vaste wastafel, douche, ligbad, 2e toilet en aansluiting voor witgoed apparatuur, tevens heeft men vanuit de badkamer toegang tot het dakterras.
2e verdieping:
Middels vaste trap te bereiken overloop, vanuit de overloop heeft men toegang tot slaapkamer IV (4,14 m x 4,08 m) en slaapkamer V (6,15 m 3,98 m)
Extra's:
- Centrale ligging t.o.v. invalswegen (Maastricht, Heerlen, Aken en Eindhoven)
- Deels v.v. rolluiken
- Energielabel C
- Mogelijkheid voor kantoor/ praktijk aan huis
- Achterom met auto bereikbaar
Ligging : centraal gelegen
Isolatie :dakisolatie deels en deels dubbele beglazing
Installatie: combiketel, geiser
Woonoppervlakte: 189 m2
Bouwjaar: 1925
Aanvaarding : in overleg
Vraagprijs : € 274.500,= k.k.
Alle door ons verstrekte informatie omtrent onroerende zaken moet worden beschouwd als een uitnodiging om in onderhandeling te treden en is geheel vrijblijvend. Maten en informatie bij benadering. Aan deze beperkte informatie kunnen geen rechten worden ontleend. Koper is te allen tijde gerechtigd voor eigen rekening een bouwkundige keuring te (laten) verrichten dan wel andere adviseurs te raadplegen teneinde een goed inzicht te verkrijgen over de staat van onderhoud. De waarborgsom/bankgarantie bedraagt 10% van de koopsom. De koper dient deze 2 weken ná het vervallen van de ontbindende voorwaarden bij de desbetreffende notaris te deponeren. Voor nadere inlichtingen kunt u contact opnemen of een afspraak maken met ons kantoor.
Souterrain:
Vanuit de hal te bereiken souterrain is verdeeld in kelderruimte (6,13 m x 3,92 m), kelderruimte II (3,97 m x 3,95 m) en provisieruimte (3,70 m x 2,84 m)
Begane grond:
Middels vestibule te bereiken hal, de ruime hal v.v. authentieke tegelvloer biedt toegang toiletruimte, deur naar kelder en toegang tot living en keuken. Vanuit de vestibule heeft men toegang tot voor/ woonkamer. De aan de voorzijde gelegen woonkamer (4,77 m x 3,90 m) biedt middels ensuite deuren toegang tot de zitkamer (4,05 m x 3,95 m). De eetkamer (4,82 m x 2,87 m) heeft een open verbinding met de zitkamer en biedt middels een schuifpui toegang tot tuin. De gesloten keuken (3,16 m x 2,79 m) heeft een doorgeefluik naar de eetkamer, deur naar tuin en is v.v. een plavuizenvloer.
Tuin:
Vanuit de zonnige tuin heeft men toegang tot de garage en dakterras. De garage (5,94 m x 5,93 m) is v.v. een dubbele schuifpoort, plavuizenvloer, verwarming en wateraansluiting. Middels trap vanuit de tuin is het riante dakterras (6,26 m x 6,23 m) bereikbaar.
1e verdieping:
De ruime overloop biedt toegang tot 3 slaapkamers en badkamer. Slaapkamer I (3,88 m x 3,49 m) en slaapkamer II (3,89 m x 2,61 m) zijn beide aan de voorzijde gelegen. Slaapkamer III (4,06 m x 4,05 m) is aan achterzijde gelegen een heeft middels schuifpui toegang tot het 2e dakterras (4,58 m 4,05 m). De ruime geheel betegelde badkamer (4,34 m x 2,79 m) is v.v. een vaste wastafel, douche, ligbad, 2e toilet en aansluiting voor witgoed apparatuur, tevens heeft men vanuit de badkamer toegang tot het dakterras.
2e verdieping:
Middels vaste trap te bereiken overloop, vanuit de overloop heeft men toegang tot slaapkamer IV (4,14 m x 4,08 m) en slaapkamer V (6,15 m 3,98 m)
Extra's:
- Centrale ligging t.o.v. invalswegen (Maastricht, Heerlen, Aken en Eindhoven)
- Deels v.v. rolluiken
- Energielabel C
- Mogelijkheid voor kantoor/ praktijk aan huis
- Achterom met auto bereikbaar
Ligging : centraal gelegen
Isolatie :dakisolatie deels en deels dubbele beglazing
Installatie: combiketel, geiser
Woonoppervlakte: 189 m2
Bouwjaar: 1925
Aanvaarding : in overleg
Vraagprijs : € 274.500,= k.k.
Alle door ons verstrekte informatie omtrent onroerende zaken moet worden beschouwd als een uitnodiging om in onderhandeling te treden en is geheel vrijblijvend. Maten en informatie bij benadering. Aan deze beperkte informatie kunnen geen rechten worden ontleend. Koper is te allen tijde gerechtigd voor eigen rekening een bouwkundige keuring te (laten) verrichten dan wel andere adviseurs te raadplegen teneinde een goed inzicht te verkrijgen over de staat van onderhoud. De waarborgsom/bankgarantie bedraagt 10% van de koopsom. De koper dient deze 2 weken ná het vervallen van de ontbindende voorwaarden bij de desbetreffende notaris te deponeren. Voor nadere inlichtingen kunt u contact opnemen of een afspraak maken met ons kantoor.
+ Read more
- Read less
Construction: {{
product.build_year }}
Construction: {{ product.build_period.start }} -
{{ product.build_period.end }}
House
, Single-family house
{{ product.rooms }} rooms
{{ product.bedrooms
}} bedrooms
Living space: {{
product.living_space }} m²
Plot: {{
product.plot_surface }} m²
Energy class: {{ product.energy_class }}
Energy index: {{ product.energy_index }}
Characteristics
{{ field.label }}
{{ field.value }}
+ Read more
{{ field.label }}
{{ field.value }}
- Read less
{{ product.company.name }}
Contact us
{{ product.company.phone.replace('-', ' ').substr(0, 7) }}...
{{ product.company.phone.replace('-', ' ') }}
Share:
Date