Rented
€ {{ product.price_rental.replace(/\B(?=(\d{4})+(?!\d))/g, ".") }} {{ __(product.price_rental_condition) }}
Photo’s
{{ product.images.length }}
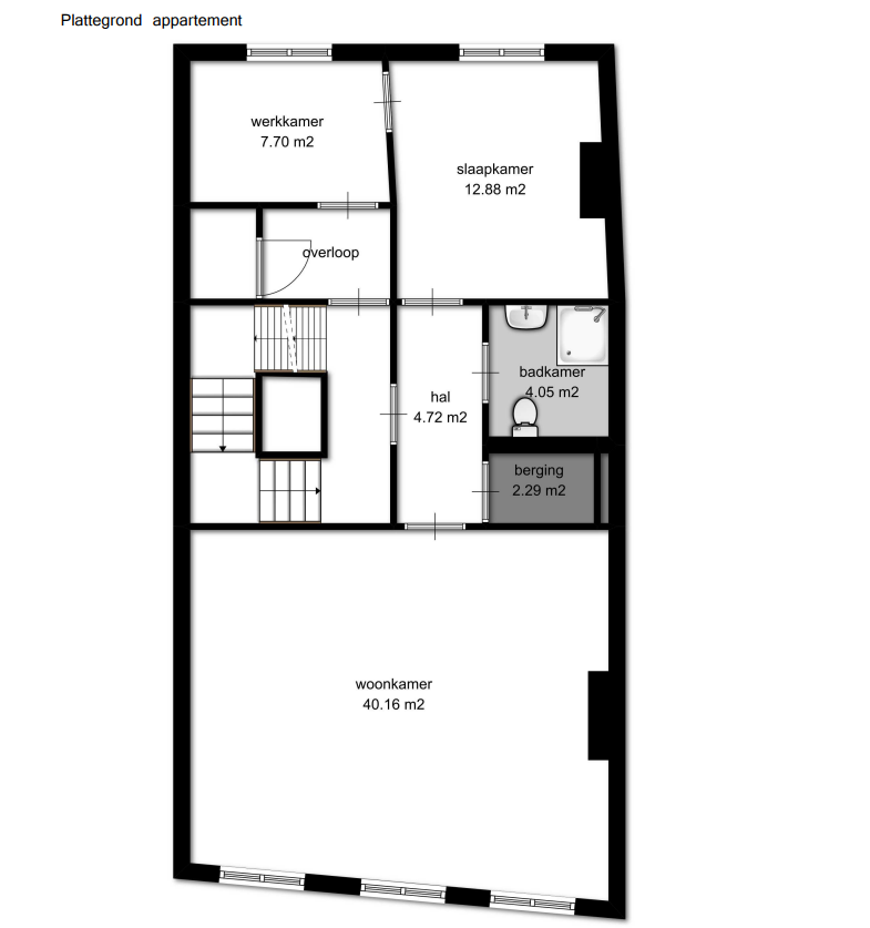
Floorplan
{{ product.plans.length }}
360° photo’s {{ product.panoramas.length }}
Video’s {{ product.videos.length }}
Maps
All media
Apartment for rent Kesselskade 63 C Maastricht
€ {{ product.price_rental.replace(/\B(?=(\d{4})+(?!\d))/g, ".") }} {{ __(product.price_rental_condition) }}
Rented
Description
GEEN STUDENTEN / NO STUDENTS
In 2017 gerealiseerd met lift bereikbaar appartement op de tweede verdieping van een statig herenhuis in hartje Maastricht en met vrij uitzicht over de Maas.
LIGGING
De Kesselskade is gelegen aan de Maas, aldus aan de rand van het historische stadscentrum van Maastricht. De kade is in de loop der jaren getransformeerd in een sfeervolle boulevard met leuke terrasjes en winkels.
INDELING
Begane grond
- Centrale entree met bellentableau, brievenbus, lift en trappenhuis.
Tweede verdieping
- Ontvangsthal met toegang tot de vertrekken.
- Woonkamer met open de keuken van totaal ca. 40 m². De hoge plafons en raampartijen benadrukken het ruimtelijk effect en de lichtinval. Vanuit de woonkamer heeft men uitzicht over de Maas. De luxe keukenopstelling (2017) is o.a. voorzien van een 4 pits inductie kookplaat, combi magnetron, vaatwasser en een koelkast.
- Twee slaapkamers van respectievelijk 8 m² en 13 m².
- Luxe badkamer (ca. 4 m²) voorzien van inloopdouche, toilet en wastafel.
- Berging met de CV installatie (HRcombi) wasmachine aansluiting.
BIJZONDERHEDEN
- Verhuur aan studenten/kamergewijze verhuur behoort niet tot de mogelijkheden.
- Hoogwaardig afgewerkt (luxe keukenopstelling en luxe sanitair) en instapklaar.
- Geheel voorzien van houten kozijnen met dubbele voorzetramen.
- Voorschot gas, water en elektra: € 155,- per maand.
- Servicekosten: € 75,- per maand.
- Er is sprake van een inkomenseis van 3,5 keer de maandhuur
- Minimale huurperiode: 12 maanden.
- Appartement beschikbaar vanaf medio augustus
AANSPRAKELIJKHEID
Het bovenstaande behelst slechts een globale omschrijving van een object. De informatie berust deels op door derden aan onze kantoren verstrekte gegevens. Met de meeste zorg hebben wij deze informatie verwerkt doch kunnen ten aanzien van de juistheid van deze gegevens geen aansprakelijkheid aanvaarden. Aan deze presentatie kunnen geen rechten worden ontleend.
In 2017 gerealiseerd met lift bereikbaar appartement op de tweede verdieping van een statig herenhuis in hartje Maastricht en met vrij uitzicht over de Maas.
LIGGING
De Kesselskade is gelegen aan de Maas, aldus aan de rand van het historische stadscentrum van Maastricht. De kade is in de loop der jaren getransformeerd in een sfeervolle boulevard met leuke terrasjes en winkels.
INDELING
Begane grond
- Centrale entree met bellentableau, brievenbus, lift en trappenhuis.
Tweede verdieping
- Ontvangsthal met toegang tot de vertrekken.
- Woonkamer met open de keuken van totaal ca. 40 m². De hoge plafons en raampartijen benadrukken het ruimtelijk effect en de lichtinval. Vanuit de woonkamer heeft men uitzicht over de Maas. De luxe keukenopstelling (2017) is o.a. voorzien van een 4 pits inductie kookplaat, combi magnetron, vaatwasser en een koelkast.
- Twee slaapkamers van respectievelijk 8 m² en 13 m².
- Luxe badkamer (ca. 4 m²) voorzien van inloopdouche, toilet en wastafel.
- Berging met de CV installatie (HRcombi) wasmachine aansluiting.
BIJZONDERHEDEN
- Verhuur aan studenten/kamergewijze verhuur behoort niet tot de mogelijkheden.
- Hoogwaardig afgewerkt (luxe keukenopstelling en luxe sanitair) en instapklaar.
- Geheel voorzien van houten kozijnen met dubbele voorzetramen.
- Voorschot gas, water en elektra: € 155,- per maand.
- Servicekosten: € 75,- per maand.
- Er is sprake van een inkomenseis van 3,5 keer de maandhuur
- Minimale huurperiode: 12 maanden.
- Appartement beschikbaar vanaf medio augustus
AANSPRAKELIJKHEID
Het bovenstaande behelst slechts een globale omschrijving van een object. De informatie berust deels op door derden aan onze kantoren verstrekte gegevens. Met de meeste zorg hebben wij deze informatie verwerkt doch kunnen ten aanzien van de juistheid van deze gegevens geen aansprakelijkheid aanvaarden. Aan deze presentatie kunnen geen rechten worden ontleend.
+ Read more
- Read less
Construction: {{
product.build_year }}
Construction: {{ product.build_period.start }} -
{{ product.build_period.end }}
Apartment
, Porch flat
{{ product.rooms }} rooms
{{ product.bedrooms
}} bedrooms
Living space: {{
product.living_space }} m²
Plot: {{
product.plot_surface }} m²
Energy class: {{ product.energy_class }}
Energy index: {{ product.energy_index }}
Characteristics
{{ field.label }}
{{ field.value }}
+ Read more
{{ field.label }}
{{ field.value }}
- Read less
{{ product.company.name }}
Contact us
{{ product.company.phone.replace('-', ' ').substr(0, 7) }}...
{{ product.company.phone.replace('-', ' ') }}
Share:
Date