Available
€ {{ product.price.replace(/\B(?=(\d{4})+(?!\d))/g, ".") }} {{ __(product.price_condition) }}
Photo’s
{{ product.images.length }}
Floorplan
{{ product.plans.length }}
360° photo’s {{ product.panoramas.length }}
Video’s {{ product.videos.length }}
Maps
All media
Apartment for sale Oranjeplein 92 D Maastricht
€ {{ product.price.replace(/\B(?=(\d{4})+(?!\d))/g, ".") }} {{ __(product.price_condition) }}
Available
Description
Ruim appartement met Groene Loper-view: stadsgevoel, groen en comfort in één
Wonen pal aan de Groene Loper in Maastricht is niet zomaar een appartement kopen. Het is kiezen voor een comfortabele, groene en goed bereikbare stadsplek. Vanuit dit ruime 2- (voorheen 3-)kamerappartement met twee balkons en eigen berging loop je zo naar het historisch centrum en Wyck, of juist de Groene Loper op voor een wandeling of hardlooprondje.
Waarom je hier wilt wonen
- Toplocatie aan de Groene Loper: elke dag genieten van groen, brede trottoirs en een rustig straatbeeld.
- Binnen een paar minuten in hartje Maastricht en Wyck: horeca, boetiekjes en alle voorzieningen om de hoek.
- Twee balkons: ’s middags en ’s avonds zon op het balkon aan de zuidwestkant met uitzicht op de Groene Loper, plus een tweede balkon aan de achterzijde.
- Praktische indeling: nu 2 slaapkamers, voorheen 3, ideaal voor werken aan huis, hobbykamer of extra slaapkamer.
- Eigen berging in het souterrain: altijd ruimte voor fietsen, voorraad en seizoensspullen.
- Perfect bereikbaar: op loopafstand van Centraal Station, busstation, MUMC+, UWC en diverse UM-faculteiten, én een snelle aansluiting op de A2 en A79.
- Zorgeloos wonen: actieve VvE, recent groot onderhoud en een actueel energielabel C.
INDELING
Souterrain
- In het souterrain beschikt het appartement over een privéberging van circa 6 m². Ideaal voor fietsen, koffers en overige opslag.
Begane grond
- Verzorgde, gezamenlijke entree met brievenbussen, bellentableau en trappenhuis. De liftinstallatie is recent volledig vernieuwd.
Appartement / vierde verdieping
- Hal/gang met toegang tot de vertrekken.
- Betegelde toiletruimte met wandcloset en fontein.
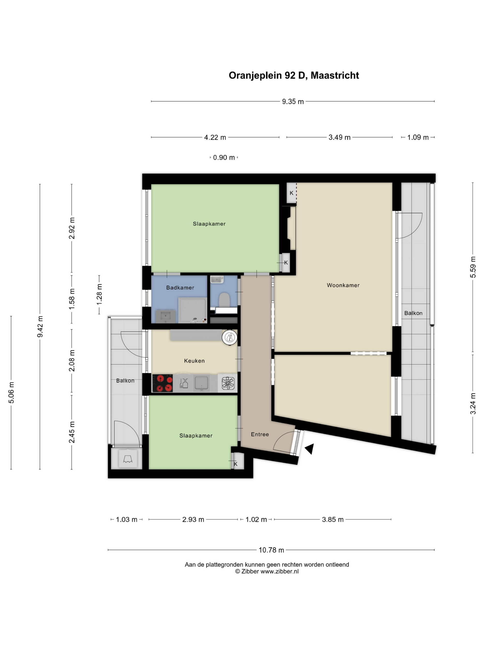
- Woonkamer en eetkamer (samen ca. 28 m²)
Een lichte leefruimte met grote raampartijen en een open verbinding tussen woon- en eetgedeelte. Vanuit de woonkamer stap je het balkon op de zuidwestzijde op. Hier geniet je van het uitzicht op de Groene Loper en de zon in de middag en avond: een perfecte plek voor een borrel of een rustig moment met een boek.
- Keuken (ca. 6 m²) met tweede balkon
Aan de achterzijde ligt de keuken met een rechte opstelling. Deze is voorzien van een keramische kookplaat, afzuigkap, koelkast met vriesvak, combimagnetron en een losse vaatwasser. Vanuit de keuken heb je toegang tot het tweede balkon. Op dit balkon bevindt zich een kast met de aansluiting en afvoer voor de wasmachine.
- Slaapkamers
Aan de rustige achterzijde bevinden zich twee slaapkamers, van circa 12 m² en circa 8 m².
De grootste kamer is ideaal als master bedroom. De tweede kamer kan uitstekend dienen als logeer- of kinderkamer, werkkamer of inloopkast.
- Betegelde badkamer met ruime douche, wastafel en handdoekradiator.
BIJZONDERHEDEN:
- Keurig onderhouden appartement aan de geliefde Groene Loper.
- Gemeenschappelijke fietsenstalling op het afgesloten terrein aan de achterzijde.
- Parkeren voor het complex is mogelijk via een parkeervergunning.
- De maandelijkse VvE-bijdrage bedraagt € 281,32. Deze bijdrage is inclusief onder andere opstal-, brand- en glasverzekering, water, reservering voor groot onderhoud, onderhoud van gemeenschappelijke ruimtes en de kosten van de administrateur.
- Het voorschot stookkosten bedraagt € 100,- per maand.
- In 2023 en 2024 heeft grootschalig onderhoud plaatsgevonden. Daarbij zijn onder meer de liftinstallatie volledig vervangen, de standleidingen vernieuwd, de dakbedekking vervangen en is asbestsanering uitgevoerd.
- Energielabel C, recent vernieuwd.
- Oplevering is per direct mogelijk.
Let op: een deel van de getoonde foto’s betreft impressies. Hieraan kunnen geen rechten worden ontleend; de huidige staat van het appartement kan afwijken van deze impressies.
ONDERHOUD
De staat van onderhoud en beoordeling van de bouwkundige staat geldt op basis van visuele waarnemingen, gerelateerd aan de ouderdom van het object. Een uitgebreide bouwkundige opname valt nadrukkelijk buiten het kader van deze brochure. Dit behoort eventueel tot de onderzoeksplicht van de kandidaat-koper(s).
AANSPRAKELIJKHEID
Het bovenstaande behelst slechts een globale omschrijving van een object. De informatie berust deels op door derden aan onze kantoren verstrekte gegevens. Met de meeste zorg hebben wij deze informatie verwerkt doch kunnen ten aanzien van de juistheid van deze gegevens geen aansprakelijkheid aanvaarden. Aan deze brochure kunnen geen rechten worden ontleend.
KOOPAKTE
De koopakte wordt opgesteld volgens model NVM. De keuze van de notaris is voorbehouden aan verkoper.
TOELICHTINGSCLAUSULE NEN2580
De Meetinstructie is gebaseerd op de NEN2580. De Meetinstructie is bedoeld om een meer eenduidige manier van meten toe te passen voor het geven van een indicatie van de gebruiksoppervlakte. De Meetinstructie sluit verschillen in meetuitkomsten niet volledig uit, door bijvoorbeeld interpretatieverschillen, afrondingen of beperkingen bij het uitvoeren van de meting.
ONTBINDING
De termijn die wordt opgenomen voor eventuele (overeengekomen) ontbindende voorwaarden (b.v. financiering) is in de regel circa 4 weken na het sluiten van de mondelinge wilsovereenkomst.
ZEKERHEIDSSTELLING
De waarborgsom/ bankgarantie is 10% van de koopsom. De koper dient deze uiterlijk binnen 7 dagen na het verlopen van de ontbindende voorwaarden bij de desbetreffende notaris te deponeren.
ONDERZOEKSPLICHT VAN DE KOPER
Koper is te allen tijde gerechtigd voor eigen rekening een bouwkundige keuring te (laten) verrichten dan wel andere adviseurs te raadplegen teneinde een goed inzicht te verkrijgen over de staat van onderhoud.
Wonen pal aan de Groene Loper in Maastricht is niet zomaar een appartement kopen. Het is kiezen voor een comfortabele, groene en goed bereikbare stadsplek. Vanuit dit ruime 2- (voorheen 3-)kamerappartement met twee balkons en eigen berging loop je zo naar het historisch centrum en Wyck, of juist de Groene Loper op voor een wandeling of hardlooprondje.
Waarom je hier wilt wonen
- Toplocatie aan de Groene Loper: elke dag genieten van groen, brede trottoirs en een rustig straatbeeld.
- Binnen een paar minuten in hartje Maastricht en Wyck: horeca, boetiekjes en alle voorzieningen om de hoek.
- Twee balkons: ’s middags en ’s avonds zon op het balkon aan de zuidwestkant met uitzicht op de Groene Loper, plus een tweede balkon aan de achterzijde.
- Praktische indeling: nu 2 slaapkamers, voorheen 3, ideaal voor werken aan huis, hobbykamer of extra slaapkamer.
- Eigen berging in het souterrain: altijd ruimte voor fietsen, voorraad en seizoensspullen.
- Perfect bereikbaar: op loopafstand van Centraal Station, busstation, MUMC+, UWC en diverse UM-faculteiten, én een snelle aansluiting op de A2 en A79.
- Zorgeloos wonen: actieve VvE, recent groot onderhoud en een actueel energielabel C.
INDELING
Souterrain
- In het souterrain beschikt het appartement over een privéberging van circa 6 m². Ideaal voor fietsen, koffers en overige opslag.
Begane grond
- Verzorgde, gezamenlijke entree met brievenbussen, bellentableau en trappenhuis. De liftinstallatie is recent volledig vernieuwd.
Appartement / vierde verdieping
- Hal/gang met toegang tot de vertrekken.
- Betegelde toiletruimte met wandcloset en fontein.
- Woonkamer en eetkamer (samen ca. 28 m²)
Een lichte leefruimte met grote raampartijen en een open verbinding tussen woon- en eetgedeelte. Vanuit de woonkamer stap je het balkon op de zuidwestzijde op. Hier geniet je van het uitzicht op de Groene Loper en de zon in de middag en avond: een perfecte plek voor een borrel of een rustig moment met een boek.
- Keuken (ca. 6 m²) met tweede balkon
Aan de achterzijde ligt de keuken met een rechte opstelling. Deze is voorzien van een keramische kookplaat, afzuigkap, koelkast met vriesvak, combimagnetron en een losse vaatwasser. Vanuit de keuken heb je toegang tot het tweede balkon. Op dit balkon bevindt zich een kast met de aansluiting en afvoer voor de wasmachine.
- Slaapkamers
Aan de rustige achterzijde bevinden zich twee slaapkamers, van circa 12 m² en circa 8 m².
De grootste kamer is ideaal als master bedroom. De tweede kamer kan uitstekend dienen als logeer- of kinderkamer, werkkamer of inloopkast.
- Betegelde badkamer met ruime douche, wastafel en handdoekradiator.
BIJZONDERHEDEN:
- Keurig onderhouden appartement aan de geliefde Groene Loper.
- Gemeenschappelijke fietsenstalling op het afgesloten terrein aan de achterzijde.
- Parkeren voor het complex is mogelijk via een parkeervergunning.
- De maandelijkse VvE-bijdrage bedraagt € 281,32. Deze bijdrage is inclusief onder andere opstal-, brand- en glasverzekering, water, reservering voor groot onderhoud, onderhoud van gemeenschappelijke ruimtes en de kosten van de administrateur.
- Het voorschot stookkosten bedraagt € 100,- per maand.
- In 2023 en 2024 heeft grootschalig onderhoud plaatsgevonden. Daarbij zijn onder meer de liftinstallatie volledig vervangen, de standleidingen vernieuwd, de dakbedekking vervangen en is asbestsanering uitgevoerd.
- Energielabel C, recent vernieuwd.
- Oplevering is per direct mogelijk.
Let op: een deel van de getoonde foto’s betreft impressies. Hieraan kunnen geen rechten worden ontleend; de huidige staat van het appartement kan afwijken van deze impressies.
ONDERHOUD
De staat van onderhoud en beoordeling van de bouwkundige staat geldt op basis van visuele waarnemingen, gerelateerd aan de ouderdom van het object. Een uitgebreide bouwkundige opname valt nadrukkelijk buiten het kader van deze brochure. Dit behoort eventueel tot de onderzoeksplicht van de kandidaat-koper(s).
AANSPRAKELIJKHEID
Het bovenstaande behelst slechts een globale omschrijving van een object. De informatie berust deels op door derden aan onze kantoren verstrekte gegevens. Met de meeste zorg hebben wij deze informatie verwerkt doch kunnen ten aanzien van de juistheid van deze gegevens geen aansprakelijkheid aanvaarden. Aan deze brochure kunnen geen rechten worden ontleend.
KOOPAKTE
De koopakte wordt opgesteld volgens model NVM. De keuze van de notaris is voorbehouden aan verkoper.
TOELICHTINGSCLAUSULE NEN2580
De Meetinstructie is gebaseerd op de NEN2580. De Meetinstructie is bedoeld om een meer eenduidige manier van meten toe te passen voor het geven van een indicatie van de gebruiksoppervlakte. De Meetinstructie sluit verschillen in meetuitkomsten niet volledig uit, door bijvoorbeeld interpretatieverschillen, afrondingen of beperkingen bij het uitvoeren van de meting.
ONTBINDING
De termijn die wordt opgenomen voor eventuele (overeengekomen) ontbindende voorwaarden (b.v. financiering) is in de regel circa 4 weken na het sluiten van de mondelinge wilsovereenkomst.
ZEKERHEIDSSTELLING
De waarborgsom/ bankgarantie is 10% van de koopsom. De koper dient deze uiterlijk binnen 7 dagen na het verlopen van de ontbindende voorwaarden bij de desbetreffende notaris te deponeren.
ONDERZOEKSPLICHT VAN DE KOPER
Koper is te allen tijde gerechtigd voor eigen rekening een bouwkundige keuring te (laten) verrichten dan wel andere adviseurs te raadplegen teneinde een goed inzicht te verkrijgen over de staat van onderhoud.
+ Read more
- Read less
Construction: {{
product.build_year }}
Construction: {{ product.build_period.start }} -
{{ product.build_period.end }}
Apartment
, Porch flat
{{ product.rooms }} rooms
{{ product.bedrooms
}} bedrooms
Living space: {{
product.living_space }} m²
Plot: {{
product.plot_surface }} m²
Energy class: {{ product.energy_class }}
Energy index: {{ product.energy_index }}
Characteristics
{{ field.label }}
{{ field.value }}
+ Read more
{{ field.label }}
{{ field.value }}
- Read less
{{ product.company.name }}
Contact us
{{ product.company.phone.replace('-', ' ').substr(0, 7) }}...
{{ product.company.phone.replace('-', ' ') }}
Share:
Date