Rented
€ {{ product.price_rental.replace(/\B(?=(\d{4})+(?!\d))/g, ".") }} {{ __(product.price_rental_condition) }}
Photo’s
{{ product.images.length }}
Floorplan
{{ product.plans.length }}
360° photo’s {{ product.panoramas.length }}
Video’s {{ product.videos.length }}
Maps
All media
Apartment for rent Bergerstraat 66 B Maastricht
€ {{ product.price_rental.replace(/\B(?=(\d{4})+(?!\d))/g, ".") }} {{ __(product.price_rental_condition) }}
Rented
Description
Neat 1 bedroom apartment in the Scharn district, Maastricht.
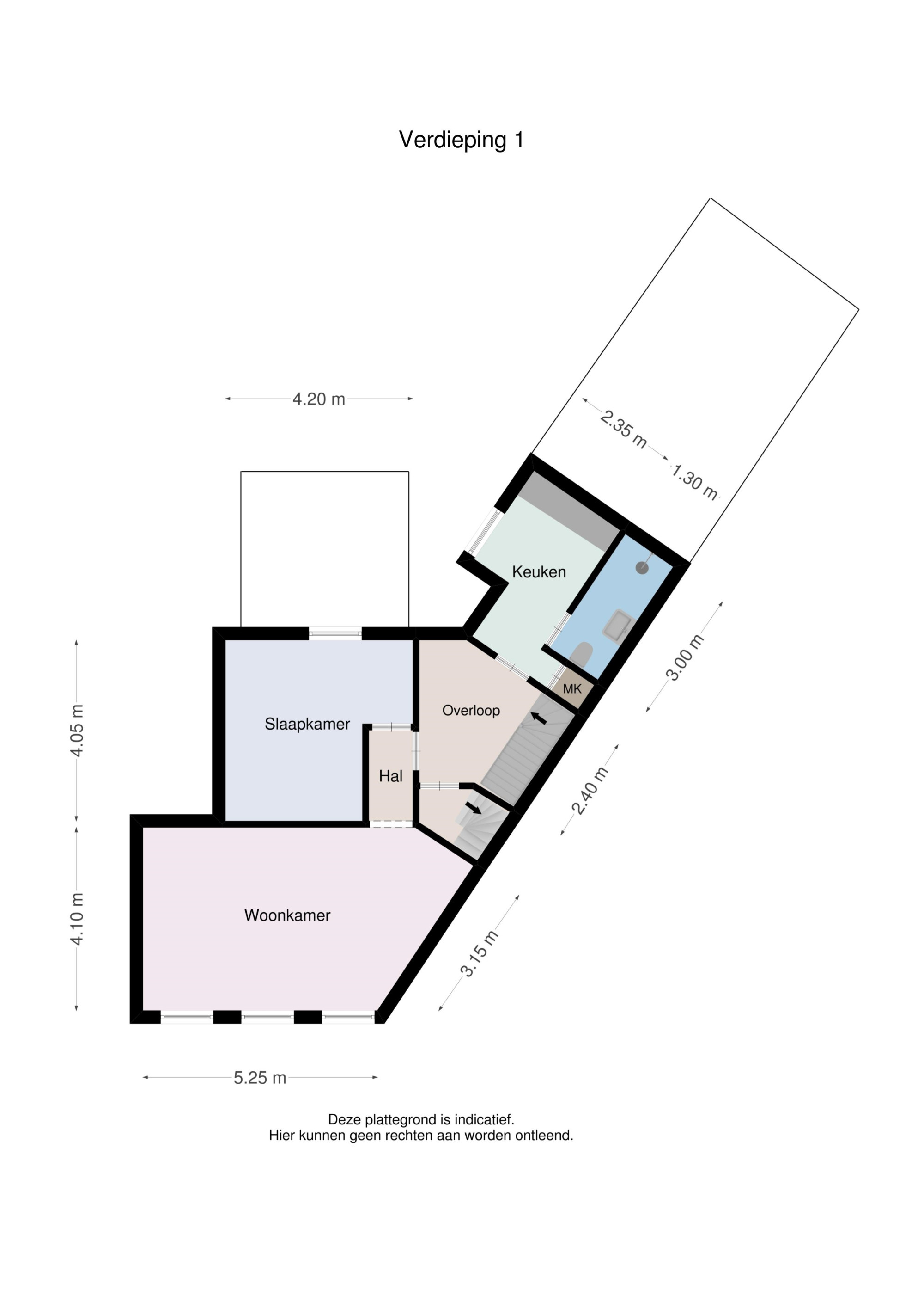
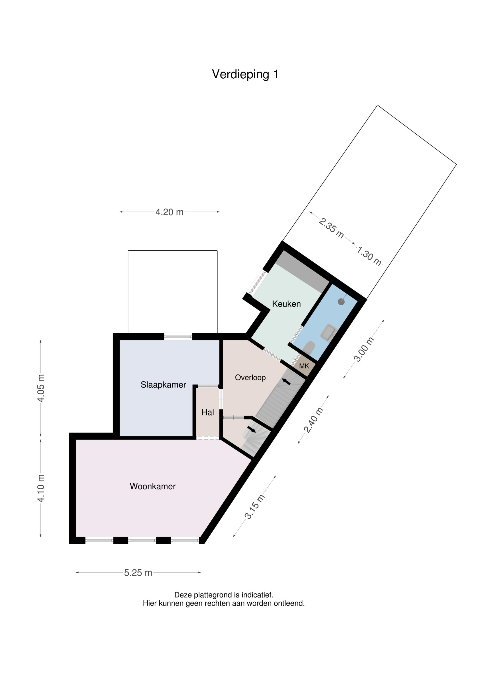
The apartment is located on the first floor. The living room which is located at the front of the building is spacious and enjoys a lot of light through the 3 large windows.
The bedroom of 12 m2 is located at the rear.
Be aware, the kitchen and bathroom can only be reached via the general landing which you only share with the upstairs neighbors.
The closed kitchen is equipped with a 4-burner stove, extractor hood and a separate refrigerator. The bathroom is also accessible from the kitchen, which is equipped with a shower, sink and toilet.
Particularities:
- There is a shared washing machine in the building.
- The bicycle can be parked in the shared bicycle shed at the rear of the building.
- The kitchen and bathroom can only be reached via the general landing which you only share with the upstairs neighbors.
Rental details:
- The rent incl. advance utilities, TV and internet is € 1000,- per month.
- Deposit is € 1700,-
- Rent allowance is possible.
We work in accordance with the allocation protocol of Pararius. More information can be found via this link: https://www.pararius.nl/info/selectieprocedure-huurder
The apartment is located on the first floor. The living room which is located at the front of the building is spacious and enjoys a lot of light through the 3 large windows.
The bedroom of 12 m2 is located at the rear.
Be aware, the kitchen and bathroom can only be reached via the general landing which you only share with the upstairs neighbors.
The closed kitchen is equipped with a 4-burner stove, extractor hood and a separate refrigerator. The bathroom is also accessible from the kitchen, which is equipped with a shower, sink and toilet.
Particularities:
- There is a shared washing machine in the building.
- The bicycle can be parked in the shared bicycle shed at the rear of the building.
- The kitchen and bathroom can only be reached via the general landing which you only share with the upstairs neighbors.
Rental details:
- The rent incl. advance utilities, TV and internet is € 1000,- per month.
- Deposit is € 1700,-
- Rent allowance is possible.
We work in accordance with the allocation protocol of Pararius. More information can be found via this link: https://www.pararius.nl/info/selectieprocedure-huurder
+ Read more
- Read less
Construction: {{
product.build_year }}
Construction: {{ product.build_period.start }} -
{{ product.build_period.end }}
Apartment
, Top floor
{{ product.rooms }} rooms
{{ product.bedrooms
}} bedrooms
Living space: {{
product.living_space }} m²
Plot: {{
product.plot_surface }} m²
Energy class: {{ product.energy_class }}
Energy index: {{ product.energy_index }}
Characteristics
{{ field.label }}
{{ field.value }}
+ Read more
{{ field.label }}
{{ field.value }}
- Read less
{{ product.company.name }}
Contact us
{{ product.company.phone.replace('-', ' ').substr(0, 7) }}...
{{ product.company.phone.replace('-', ' ') }}
Share:
Date