Verkocht
€ {{ product.price.replace(/\B(?=(\d{4})+(?!\d))/g, ".") }} {{ __(product.price_condition) }}
Foto’s
{{ product.images.length }}
Plattegrond
{{ product.plans.length }}
360° foto's {{ product.panoramas.length }}
Video’s {{ product.videos.length }}
Kaarten
Alle media
Woonhuis te koop Groenstraat 36 Venlo
€ {{ product.price.replace(/\B(?=(\d{4})+(?!\d))/g, ".") }} {{ __(product.price_condition) }}
Verkocht
Omschrijving
In goede staat door middel van 10 zonnepanelen in 2021 verduurzaamde tussenwoning welke in Venlo Oost aan hofje is gelegen met tuin op het zuidwesten met vrije achterom, aluminium overdekt terras (2008) met inbouwspotjes en aparte berging waarvan de buiten muren van binnen geïsoleerd zijn met PIR + OSB platen.
Indeling:
Provisiekelder.
Begane grond: entree met garderobe en keramische tegelvloer. Zwevend toilet (2000). Woonkamer met laminaatvloer (vloer is in 2022 aan de onderzijde geïsoleerd). Nette keuken uit 2002 waarvan vrijwel alle apparatuur in 2021 en 2022 zijn vervangen (koelkast, diepvries, inductiekookplaat en vaatwasser), tevens beschikt de keuken over een afzuigkap en oven met spit.
1ste verdieping: overloop met laminaatvloer en muurkast (de muurkast is de voormalige badkamer welke uitermate geschikt is voor het plaatsen van het witgoed). 3 slaapkamers met laminaatvloer waarvan 2 met muurkast. Moderne badkamer (2004) met douche, wastafel, 2de zwevend toilet, designradiator.
Middels Vlizotrap te bereiken zolderruimte waar de cv-ketel en omvormer zich bevinden.
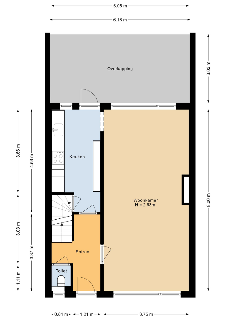
Bijzonderheden: bouwjaar 1961. Oppervlakte perceel 160m2. Woonoppervlakte 96m2. Overige inpandige ruimte 27m2. Gebouwgebonden buitenruimte 18m2. Externe buitenruimte 8m2. Inhoud 433m3. In 2021 is de spouwmuur geïsoleerd. In 2000 is de woning voorzien van nieuwe kunststof kozijnen met dubbele beglazing met op de begane grond rolluiken waarvan de voorzijde elektrisch te bedienen. Woning is in 2020 voorzien van een nieuwe HR Atag cv-ketel. Aanvaarding in overleg.
Indeling:
Provisiekelder.
Begane grond: entree met garderobe en keramische tegelvloer. Zwevend toilet (2000). Woonkamer met laminaatvloer (vloer is in 2022 aan de onderzijde geïsoleerd). Nette keuken uit 2002 waarvan vrijwel alle apparatuur in 2021 en 2022 zijn vervangen (koelkast, diepvries, inductiekookplaat en vaatwasser), tevens beschikt de keuken over een afzuigkap en oven met spit.
1ste verdieping: overloop met laminaatvloer en muurkast (de muurkast is de voormalige badkamer welke uitermate geschikt is voor het plaatsen van het witgoed). 3 slaapkamers met laminaatvloer waarvan 2 met muurkast. Moderne badkamer (2004) met douche, wastafel, 2de zwevend toilet, designradiator.
Middels Vlizotrap te bereiken zolderruimte waar de cv-ketel en omvormer zich bevinden.
Bijzonderheden: bouwjaar 1961. Oppervlakte perceel 160m2. Woonoppervlakte 96m2. Overige inpandige ruimte 27m2. Gebouwgebonden buitenruimte 18m2. Externe buitenruimte 8m2. Inhoud 433m3. In 2021 is de spouwmuur geïsoleerd. In 2000 is de woning voorzien van nieuwe kunststof kozijnen met dubbele beglazing met op de begane grond rolluiken waarvan de voorzijde elektrisch te bedienen. Woning is in 2020 voorzien van een nieuwe HR Atag cv-ketel. Aanvaarding in overleg.
+ Lees meer
- Lees minder
Bouw: {{
product.build_year }}
Bouw: {{ product.build_period.start }} -
{{ product.build_period.end }}
Woonhuis
, Eengezinswoning
{{ product.rooms }} Kamers
{{ product.bedrooms
}} Slaapkamers
Woonruimte: {{
product.living_space }} m²
Perceel: {{
product.plot_surface }} m²
Energielabel: {{ product.energy_class }}
Energie index: {{ product.energy_index }}
Kenmerken
{{ field.label }}
{{ field.value }}
+ Lees meer
{{ field.label }}
{{ field.value }}
- Lees minder
{{ product.company.name }}
Contact opnemen
{{ product.company.phone.replace('-', ' ').substr(0, 7) }}...
{{ product.company.phone.replace('-', ' ') }}
Delen:
Datum