Beschikbaar
€ {{ product.price.replace(/\B(?=(\d{4})+(?!\d))/g, ".") }} {{ __(product.price_condition) }}
Foto’s
{{ product.images.length }}
Plattegrond
{{ product.plans.length }}
360° foto's {{ product.panoramas.length }}
Video’s {{ product.videos.length }}
Kaarten
Alle media
Woonhuis te koop Aldenhovener Strasse 4-d Puffendorf
€ {{ product.price.replace(/\B(?=(\d{4})+(?!\d))/g, ".") }} {{ __(product.price_condition) }}
Beschikbaar
Omschrijving
NIEUWE PRIJS!!
Ruim, halfvrijstaand woonhuis in een gezellig, klein dorp op ca. 12 km van de Nederlands/Duitse grens.
De woning beschikt o.a. over 3 slaapkamers, een ruime woonkamer, garage en kleine volledig omsloten tuin.
De woonoppervlakte bedraagt 117 m2 met een inhoud van 526 m3 . Het perceel is 243 m2 groot.
Het dorp Puffendorf, deel uitmakend van de gemeente Baesweiler, is zeer landelijk gelegen, grotere plaatsen als Baesweiler, Geilenkirchen en Setterich en Herzogenrath bevinden zich op korte afstand.
Begane grond:
Woonkamer (7.53 x 5.41/5.06 m) met tegelvloer en 2 dubbele tuindeuren.
Gesloten keuken (3.56 x 2.90 m) met tegelvloer zonder aanbouwopstelling.
Hal met toilet, bergkast en meterkast.
Garage (5.98 x 3.04 m) met stalen kantelpoort.
1e Verdieping:
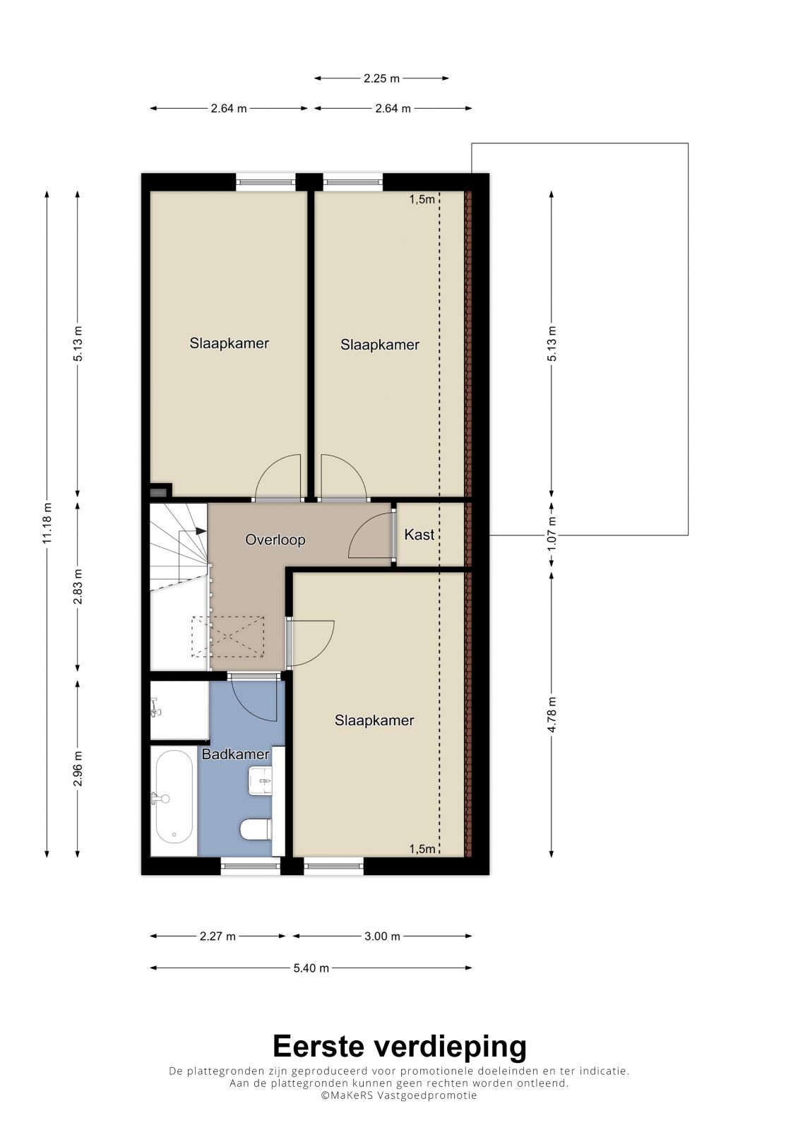
Hoofdslaapkamer (4.78 x 3.00 m) met laminaatvloer.
2e Slaapkamer (5.13 x 2.64 m) met laminaatvloer.
3e Slaapkamer (5.13 x 2.64 m) met laminaatvloer.
Badkamer (2.96 x 2.27 m) met ligbad, douche, toilet en wastafel.
Overloop.
Bergkast.
2e Verdieping:
Bergzolder bereikbaar via vlizotrap, opstelling cv-ketel.
Buiten:
Volledig omsloten achtertuin met terras en gazon.
Voortuin met oprit naar garage.
GOED OM TE WETEN
· Woonoppervlakte 117 m².
· Overige inpandige ruimte( Zolder/garage) 27 m².
· Perceel 243 m².
· Inhoud 526 m³.
· Bouwjaar 2003.
· Energielabel C.
· Op ca. 12 km van de Nederlands/Duitse grens gelegen.
· Rustig gelegen in een klein dorp nabij Baesweiler, Geilenkirchen en Setterich.
· Netjes onderhouden.
· Kunststof kozijnen met dubbel glas | rolluiken
· Goede daglichttoetreding dankzij de vele ramen.
· Vraagprijs € 299.000,-.
· Koperscourtage 2,38% incl. btw.
Ruim, halfvrijstaand woonhuis in een gezellig, klein dorp op ca. 12 km van de Nederlands/Duitse grens.
De woning beschikt o.a. over 3 slaapkamers, een ruime woonkamer, garage en kleine volledig omsloten tuin.
De woonoppervlakte bedraagt 117 m2 met een inhoud van 526 m3 . Het perceel is 243 m2 groot.
Het dorp Puffendorf, deel uitmakend van de gemeente Baesweiler, is zeer landelijk gelegen, grotere plaatsen als Baesweiler, Geilenkirchen en Setterich en Herzogenrath bevinden zich op korte afstand.
Begane grond:
Woonkamer (7.53 x 5.41/5.06 m) met tegelvloer en 2 dubbele tuindeuren.
Gesloten keuken (3.56 x 2.90 m) met tegelvloer zonder aanbouwopstelling.
Hal met toilet, bergkast en meterkast.
Garage (5.98 x 3.04 m) met stalen kantelpoort.
1e Verdieping:
Hoofdslaapkamer (4.78 x 3.00 m) met laminaatvloer.
2e Slaapkamer (5.13 x 2.64 m) met laminaatvloer.
3e Slaapkamer (5.13 x 2.64 m) met laminaatvloer.
Badkamer (2.96 x 2.27 m) met ligbad, douche, toilet en wastafel.
Overloop.
Bergkast.
2e Verdieping:
Bergzolder bereikbaar via vlizotrap, opstelling cv-ketel.
Buiten:
Volledig omsloten achtertuin met terras en gazon.
Voortuin met oprit naar garage.
GOED OM TE WETEN
· Woonoppervlakte 117 m².
· Overige inpandige ruimte( Zolder/garage) 27 m².
· Perceel 243 m².
· Inhoud 526 m³.
· Bouwjaar 2003.
· Energielabel C.
· Op ca. 12 km van de Nederlands/Duitse grens gelegen.
· Rustig gelegen in een klein dorp nabij Baesweiler, Geilenkirchen en Setterich.
· Netjes onderhouden.
· Kunststof kozijnen met dubbel glas | rolluiken
· Goede daglichttoetreding dankzij de vele ramen.
· Vraagprijs € 299.000,-.
· Koperscourtage 2,38% incl. btw.
+ Lees meer
- Lees minder
Bouw: {{
product.build_year }}
Bouw: {{ product.build_period.start }} -
{{ product.build_period.end }}
Woonhuis
, Eengezinswoning
{{ product.rooms }} Kamers
{{ product.bedrooms
}} Slaapkamers
Woonruimte: {{
product.living_space }} m²
Perceel: {{
product.plot_surface }} m²
Energielabel: {{ product.energy_class }}
Energie index: {{ product.energy_index }}
Kenmerken
{{ field.label }}
{{ field.value }}
+ Lees meer
{{ field.label }}
{{ field.value }}
- Lees minder
{{ product.company.name }}
Contact opnemen
{{ product.company.phone.replace('-', ' ').substr(0, 7) }}...
{{ product.company.phone.replace('-', ' ') }}
Delen:
Datum