Beschikbaar
€ {{ product.price.replace(/\B(?=(\d{4})+(?!\d))/g, ".") }} {{ __(product.price_condition) }}
Foto’s
{{ product.images.length }}
Plattegrond
{{ product.plans.length }}
360° foto's {{ product.panoramas.length }}
Video’s {{ product.videos.length }}
Kaarten
Alle media
Woonhuis te koop Herenhuis Extra Hoog - Type B6 ong Maastricht
€ {{ product.price.replace(/\B(?=(\d{4})+(?!\d))/g, ".") }} {{ __(product.price_condition) }}
Beschikbaar
Omschrijving
Extra ruim wonen midden in de stad, dat kan in deze hoge herenhuizen van Fleur. Met vier volwaardige woonlagen bieden deze woningen álle ruimte.
De eetkamer bevindt zich aan de voorkant van de woning waardoor je een mooi zicht hebt op het straatbeeld.
Op de eerste en tweede verdieping bevinden zich vier ruime (slaap)kamers en een badkamer. Op de derde verdieping bevindt zich ook nog een ruime kamer en opbergruimte.
Varianten
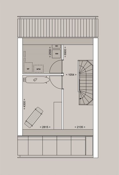
De types hebben meerdere varianten in plattegronden. Het grootste verschil zit in de dubbelhoge erker (B6) en bijbehorend balkon. Ook de toepassing van ramen verschilt, dit is goed te zien op de plattegrond.
KENMERKEN:
Woonoppervlakte: 165 - 172 m2
Kaveloppervlakte: 111 - 177 m2
Inhoud: 641 - 671 m3
Slaapkamers: 5
Tuin: Noord-Oost, Zuid of Noord
Energie-neutraal
Parkeerplaats: 1 (op achtergelegen parkeerhof)
Met openslaande tuindeuren
Casco badkamer en toilet
De eetkamer bevindt zich aan de voorkant van de woning waardoor je een mooi zicht hebt op het straatbeeld.
Op de eerste en tweede verdieping bevinden zich vier ruime (slaap)kamers en een badkamer. Op de derde verdieping bevindt zich ook nog een ruime kamer en opbergruimte.
Varianten
De types hebben meerdere varianten in plattegronden. Het grootste verschil zit in de dubbelhoge erker (B6) en bijbehorend balkon. Ook de toepassing van ramen verschilt, dit is goed te zien op de plattegrond.
KENMERKEN:
Woonoppervlakte: 165 - 172 m2
Kaveloppervlakte: 111 - 177 m2
Inhoud: 641 - 671 m3
Slaapkamers: 5
Tuin: Noord-Oost, Zuid of Noord
Energie-neutraal
Parkeerplaats: 1 (op achtergelegen parkeerhof)
Met openslaande tuindeuren
Casco badkamer en toilet
+ Lees meer
- Lees minder
Bouw: {{
product.build_year }}
Bouw: {{ product.build_period.start }} -
{{ product.build_period.end }}
Woonhuis
, Herenhuis
{{ product.rooms }} Kamers
{{ product.bedrooms
}} Slaapkamers
Woonruimte: {{
product.living_space }} m²
Perceel: {{
product.plot_surface }} m²
Energielabel: {{ product.energy_class }}
Energie index: {{ product.energy_index }}
Kenmerken
{{ field.label }}
{{ field.value }}
+ Lees meer
{{ field.label }}
{{ field.value }}
- Lees minder
{{ product.company.name }}
Contact opnemen
{{ product.company.phone.replace('-', ' ').substr(0, 7) }}...
{{ product.company.phone.replace('-', ' ') }}
Delen:
Datum