Beschikbaar
€ {{ product.price.replace(/\B(?=(\d{4})+(?!\d))/g, ".") }} {{ __(product.price_condition) }}
Foto’s
{{ product.images.length }}
Plattegrond
{{ product.plans.length }}
360° foto's {{ product.panoramas.length }}
Video’s {{ product.videos.length }}
Kaarten
Alle media
Woonhuis te koop Voltalaan 32 Hoensbroek
€ {{ product.price.replace(/\B(?=(\d{4})+(?!\d))/g, ".") }} {{ __(product.price_condition) }}
Beschikbaar
Omschrijving
WELKOM BIJ VOLTALAAN 32 IN HOENSBROEK!
In het hart van Hoensbroek, met alle centrumvoorzieningen en faciliteiten op loopafstand, ligt dit energiezuinige en verrassend ruime tussengelegen woonhuis. Een woning die comfort, licht en leefruimte moeiteloos combineert met een moderne afwerking en een uitstekende energieprestatie.
Bij binnenkomst valt direct de lichte doorzon woonkamer op, met aan de voorzijde de sfeervolle living/lounge voorzien van audio-/visuele aansluitingen. Centraal in de ruimte is een airconditioning geplaatst, wat zorgt voor een aangenaam binnenklimaat in elk seizoen. Aan de achterzijde bevindt zich de eetkamer met dubbele openslaande tuindeuren die directe toegang geven tot het overdekte terras – ideaal voor binnen-buitenleven.
De halfopen keuken is uitgerust met een eigentijdse inbouwkeuken in hoekopstelling, uitgevoerd in landelijke stijl met RVS-grepen. De gehele begane grond is afgewerkt met een eiken parketvloer. Het moderne gastentoilet beschikt over een zwevend wandcloset en een fonteintje.
Op de eerste verdieping bevindt zich de royale hoofdslaapkamer met toegang tot het dakterras aan de achterzijde. De en-suite badkamer is volledig betegeld en luxueus uitgevoerd met een badkamermeubel met dubbele wastafels, een inloop regendouche én een sauna – een privé wellness aan huis.
De tweede verdieping biedt plaats aan twee ruime slaapkamers, waarvan de voorgelegen kamer is voorzien van een praktische kleedruimte.
Extra bergruimte is aanwezig op de vliering en in de kelder, waar tevens de witgoedaansluitingen en de standplaats van de CV-combiketel zijn gesitueerd.
De keurig aangelegde en goed onderhouden achtertuin beschikt over een ruim terras met overkapping. Daarnaast is er een verdiept gelegen berging met hobbyruimte, bereikbaar via een zijingang.
Deze woning is uitstekend geïsoleerd met dak- en spouwmuurisolatie, kunststof kozijnen met dubbele beglazing en deels rolluiken. Verder is de woning voorzien van een Intergas HRE CV-combiketel (bouwjaar 2022, eigendom), airconditioning en 8 zonnepanelen. Het geheel resulteert in een energielabel A.
De ligging is uitstekend: op loopafstand bevinden zich een basisschool, voortgezet onderwijs, speeltuin, winkels, restaurants, cafetaria, binnenzwembad en diverse sportaccommodaties.
Ook natuurliefhebbers komen aan hun trekken dankzij het nabijgelegen wandelgebied aan het karakteristieke Kasteel Hoensbroek.
De bereikbaarheid is optimaal met openbaar vervoer, de Parkstadring N300 en de A76 richting Maastricht, Eindhoven en Aken, evenals het Duitse achterland.
Voltalaan 32 is een instapklare woning voor wie ruim, comfortabel én duurzaam wil wonen op een centrale locatie. Een bezichtiging laat u pas echt ervaren hoeveel deze woning te bieden heeft.
Kortom: een ideale gezinswoning met verrassend veel ruimte, comfort en een toplocatie.
Neem contact met ons op om een afspraak te plannen!
INDELING:
KELDER:
Voorraad-/provisiekelder met opslagruimte, waar geplaatst de witgoedaansluitingen voor wasmachine/droger en standplaats voor de Intergas HRE CV-Combiketel (Bouwjaar 2022 / Eigendom).
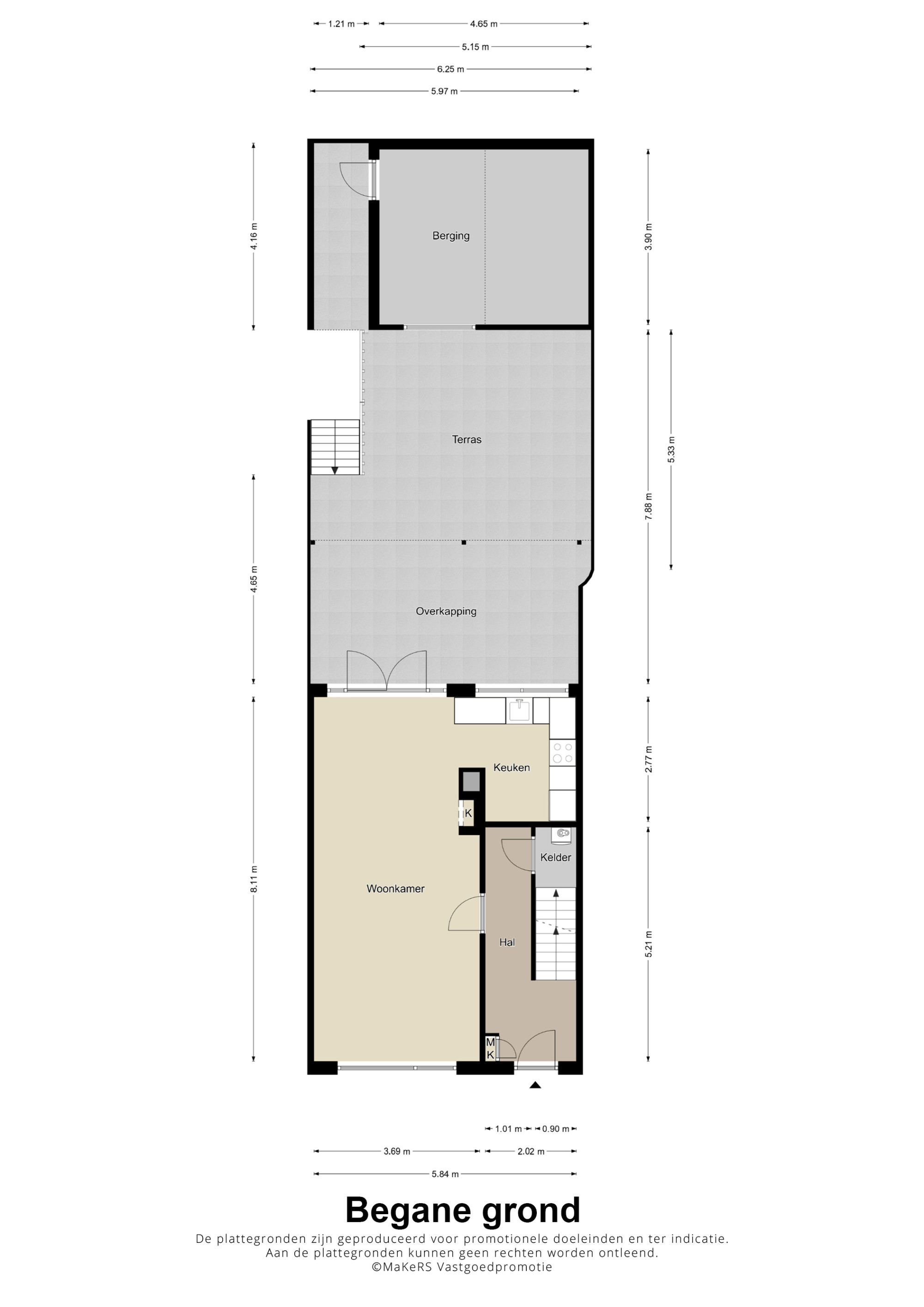
BEGANE GROND:
Entree/hal met kapstok, trappenhuis naar de verdieping en de kelder. Meterkast met 5 groepsinstallatie / 3-fase aansluiting / aardlekschakelaar / aparte groep voor zonnepanelen / digitale meters en dag-/nachtstroomaansluiting. Toegang tot de woonkamer en de kelder.
Ruime sfeervolle woonkamer met veel lichtinval via grote raampartijen, afgewerkt met een parketvloer, met aan de voorzijde de living/lounge voorzien van audio-/visuele-aansluitingen. Achter gelegen eetkamer met airconditioning, waar dubbele openslaande tuindeuren toegang bieden tot het overdekte terras.
Halfopen keukenruimte waar geplaatst een inbouwkeuken in moderne landelijke stijl voorzien van RVS -grepen met apparatuur, te weten: 4 zones inductie kookplaat / RVS wandschouwafzuigkap / combi-oven / wasbak / vaatwasmachine / koelkast en veel opbergruimte.
Geheel omsloten onderhoudsvriendelijke achtertuin gelegen op het zuidoosten, met uitstekende bezonning. Terras voorzien van overkapping, verdiept gelegen royale tuinberging, bereikbaar via een zijingang en pad van de buren.
VERDIEPING:
Overloop met toegang tot de slaapkamer en het toilet.
Linksachter vindt men de hoofdslaapkamer, waar dubbele openslaande tuindeuren toegang bieden tot het dakterras.
De badkamer is en-suite en voorzien van een inloopdouche / wastafel met dubbele kranen in een badkamermeubel en een sauna.
Separaat geheel betegeld eigentijds toilet, voorzien van een zwevend wandcloset en fonteintje.
VERDIEPING:
Overloop met toegang tot de slaapvertrekken.
Linksachter gelegen slaapkamer.
De slaapkamer aan de voorzijde is voorzien van een kleedruimte.
VLIERING:
Bergruimte waar geplaatste de omvormer voor de zonnepanelen.
BIJZONDERHEDEN:
* VERRASSEND RUIM EN ENERGIEZUINIG TUSSENGELEGEN WOONHUIS OP CENTRUMLOCATIE
* WOONKAMER VOORZIEN VAN LIVING MET ZITHOEK AAN DE VOORZIJDE
* CENTRAAL GEPLAATSTE AIRCONDITIOING
* EETKAMER AAN DE ACHTERZIJDE MET TOEGANG TOT HET OVERDEKTE TERRAS
* HALFOPEN KEUKENRUIMTE VOORZIEN VAN MODERNE INBOUWKEUKEN MET APPARATUUR
* GEHEEL BETEGELD GASTENTOILET MET ZWEVEND WANDCLOSET EN FONTEINTJE
* TRAPPENHUIS NAAR DE VERDIEPINGEN MET BORDESTRAP
* HOOFDSLAAPKAMER MET DAKTERRAS OP DE EERSTE VERDIEPING
* EN SUITE BADKAMER VOORZIEN VAN INLOOPDOUCHE, BADKAMERMEUBEL EN SAUNA
* 2 SLAAPKAMERS OP DE TWEEDE VERDIEPING
* VLIERING MET BERGRUIMTE
* KELDERRUIMTE VOORZIEN VAN WITGOEDAANSLUITINGEN
* ONDERHOUDSVRIENDELIJKE ACHTERTUIN MET RUIM OVERDEKT TERRAS
* VERDIEPT GELEGEN TUINBERGING MET HOBBYRUIMTE BEREIKBAAR VIA ZIJINGANG
* DAK- EN SPOUWMUURISOLATIE
* DUBBELE BEGLAZING IN KUNSTSTOF KOZIJNEN
* DEELS VOORZIEN VAN ROLLUIKEN
* INTERGAS HRE CV-COMBIKETEL (BOUWJAAR 2022 / EIGENDOM)
* AIRCONDITIONING
* 8 ZONNEPANELEN
* ENERGIELABEL "A"
DEZE WONING IS KERUIG ONDERHOUDEN EN MAAKT EEN ZEER VERZORGDE INDRUK. VOORZIEN VAN DAK- EN SPOUWMUURISOLATIE. KUNSTSTOF KOZIJNEN MET DUBBELE BEGLAZING EN DEELS ROLLUIKEN. INTERGAS HRE CV-COMBIKETEL (BOUWJAAR 2022 / EIGENDOM). AIRCONDITIONING EN 8 ZONNEPANELEN. 3 SLAAPKAMERS. DAKTERRAS AAN DE HOOFDSLAAPKAMER. BADKAMER MET SAUNA. GEHEEL OMSLOTEN ONDERHOUDSVRIENDELIJKE ACHTERTUIN MET UITSTEKENDE BEZONNING, VOORZIEN VAN OVERDEKT TERRAS, EEN VERDIEPT GELEGEN TUINBERGING MET HOBBYRUIMTE, BEREIKBAAR VIA EEN ZIJINGANG BIJ DE BUREN.
HET GEHEEL IS GELEGEN NABIJ DE DORPSKERN VAN HOENSBROEK MET ALLE VOORZIENINGEN, WINKELS, RESTAURANTS, EEN BASISSCHOOL, VOORTGEZET ONDERWIJS, DIVERSE SPORTFACILITEITEN EN EEN BINNEN ZWEMBAD IN DE DIRECTE OMGEVING EN EEN WANDELGEBIED IS OP LOOPAFSTAND BEREIKBAAR.
GOEDE BEREIKBAARHEID MIDDELS OPENBAAR VERVOER, AANSLUITING OP UITVALSWEGEN, DE PARKSTADRING N300 EN DE AUTOSNELWEG A76 RICHTING MAASTRICHT, AKEN EN EINDHOVEN ALSMEDE HET DUITSE ACHTERLAND.
Ter bescherming van de belangen van zowel koper als ook verkoper wordt uitdrukkelijk gesteld dat een koopovereenkomst met betrekking tot deze onroerende zaak eerst dan tot stand komt nadat koper en verkoper de koopovereenkomst hebben ondertekend (schriftelijkheidsvereiste).
De waarborgsom/bankgarantie is 10% van de koopsom. De koper dient deze binnen 2 weken nadat het financieringsvoorbehoud is verlopen bij de desbetreffende notaris te deponeren.
Indien cv-ketel en/of warmwatervoorziening een huurtoestel is, dient koper de huurovereenkomst over te nemen. Dit is eveneens van toepassing indien dit zonnepanelen betreft.
Alle door ons kantoor verstrekte informatie omtrent onroerende zaken, moet beschouwd worden als een uitnodiging om in onderhandeling te treden en is geheel vrijblijvend! Alle vermelde maten en afmetingen zijn slechts bij benadering. Een (eventueel) bijgevoegde plattegrond dient uitsluitend als globale indicatie/visualisatie. Aan deze beperkte informatie kunnen geen rechten worden ontleend.
Indien in enige documentatie of op enige website informatie staat die niet overeen komt met de werkelijkheid, dan geldt de feitelijke situatie waarin de woning zich bevindt, zoals koper deze tijdens de bezichtiging heeft kunnen waarnemen, en wordt de woning in deze feitelijke situatie/staat verkocht.
In het hart van Hoensbroek, met alle centrumvoorzieningen en faciliteiten op loopafstand, ligt dit energiezuinige en verrassend ruime tussengelegen woonhuis. Een woning die comfort, licht en leefruimte moeiteloos combineert met een moderne afwerking en een uitstekende energieprestatie.
Bij binnenkomst valt direct de lichte doorzon woonkamer op, met aan de voorzijde de sfeervolle living/lounge voorzien van audio-/visuele aansluitingen. Centraal in de ruimte is een airconditioning geplaatst, wat zorgt voor een aangenaam binnenklimaat in elk seizoen. Aan de achterzijde bevindt zich de eetkamer met dubbele openslaande tuindeuren die directe toegang geven tot het overdekte terras – ideaal voor binnen-buitenleven.
De halfopen keuken is uitgerust met een eigentijdse inbouwkeuken in hoekopstelling, uitgevoerd in landelijke stijl met RVS-grepen. De gehele begane grond is afgewerkt met een eiken parketvloer. Het moderne gastentoilet beschikt over een zwevend wandcloset en een fonteintje.
Op de eerste verdieping bevindt zich de royale hoofdslaapkamer met toegang tot het dakterras aan de achterzijde. De en-suite badkamer is volledig betegeld en luxueus uitgevoerd met een badkamermeubel met dubbele wastafels, een inloop regendouche én een sauna – een privé wellness aan huis.
De tweede verdieping biedt plaats aan twee ruime slaapkamers, waarvan de voorgelegen kamer is voorzien van een praktische kleedruimte.
Extra bergruimte is aanwezig op de vliering en in de kelder, waar tevens de witgoedaansluitingen en de standplaats van de CV-combiketel zijn gesitueerd.
De keurig aangelegde en goed onderhouden achtertuin beschikt over een ruim terras met overkapping. Daarnaast is er een verdiept gelegen berging met hobbyruimte, bereikbaar via een zijingang.
Deze woning is uitstekend geïsoleerd met dak- en spouwmuurisolatie, kunststof kozijnen met dubbele beglazing en deels rolluiken. Verder is de woning voorzien van een Intergas HRE CV-combiketel (bouwjaar 2022, eigendom), airconditioning en 8 zonnepanelen. Het geheel resulteert in een energielabel A.
De ligging is uitstekend: op loopafstand bevinden zich een basisschool, voortgezet onderwijs, speeltuin, winkels, restaurants, cafetaria, binnenzwembad en diverse sportaccommodaties.
Ook natuurliefhebbers komen aan hun trekken dankzij het nabijgelegen wandelgebied aan het karakteristieke Kasteel Hoensbroek.
De bereikbaarheid is optimaal met openbaar vervoer, de Parkstadring N300 en de A76 richting Maastricht, Eindhoven en Aken, evenals het Duitse achterland.
Voltalaan 32 is een instapklare woning voor wie ruim, comfortabel én duurzaam wil wonen op een centrale locatie. Een bezichtiging laat u pas echt ervaren hoeveel deze woning te bieden heeft.
Kortom: een ideale gezinswoning met verrassend veel ruimte, comfort en een toplocatie.
Neem contact met ons op om een afspraak te plannen!
INDELING:
KELDER:
Voorraad-/provisiekelder met opslagruimte, waar geplaatst de witgoedaansluitingen voor wasmachine/droger en standplaats voor de Intergas HRE CV-Combiketel (Bouwjaar 2022 / Eigendom).
BEGANE GROND:
Entree/hal met kapstok, trappenhuis naar de verdieping en de kelder. Meterkast met 5 groepsinstallatie / 3-fase aansluiting / aardlekschakelaar / aparte groep voor zonnepanelen / digitale meters en dag-/nachtstroomaansluiting. Toegang tot de woonkamer en de kelder.
Ruime sfeervolle woonkamer met veel lichtinval via grote raampartijen, afgewerkt met een parketvloer, met aan de voorzijde de living/lounge voorzien van audio-/visuele-aansluitingen. Achter gelegen eetkamer met airconditioning, waar dubbele openslaande tuindeuren toegang bieden tot het overdekte terras.
Halfopen keukenruimte waar geplaatst een inbouwkeuken in moderne landelijke stijl voorzien van RVS -grepen met apparatuur, te weten: 4 zones inductie kookplaat / RVS wandschouwafzuigkap / combi-oven / wasbak / vaatwasmachine / koelkast en veel opbergruimte.
Geheel omsloten onderhoudsvriendelijke achtertuin gelegen op het zuidoosten, met uitstekende bezonning. Terras voorzien van overkapping, verdiept gelegen royale tuinberging, bereikbaar via een zijingang en pad van de buren.
VERDIEPING:
Overloop met toegang tot de slaapkamer en het toilet.
Linksachter vindt men de hoofdslaapkamer, waar dubbele openslaande tuindeuren toegang bieden tot het dakterras.
De badkamer is en-suite en voorzien van een inloopdouche / wastafel met dubbele kranen in een badkamermeubel en een sauna.
Separaat geheel betegeld eigentijds toilet, voorzien van een zwevend wandcloset en fonteintje.
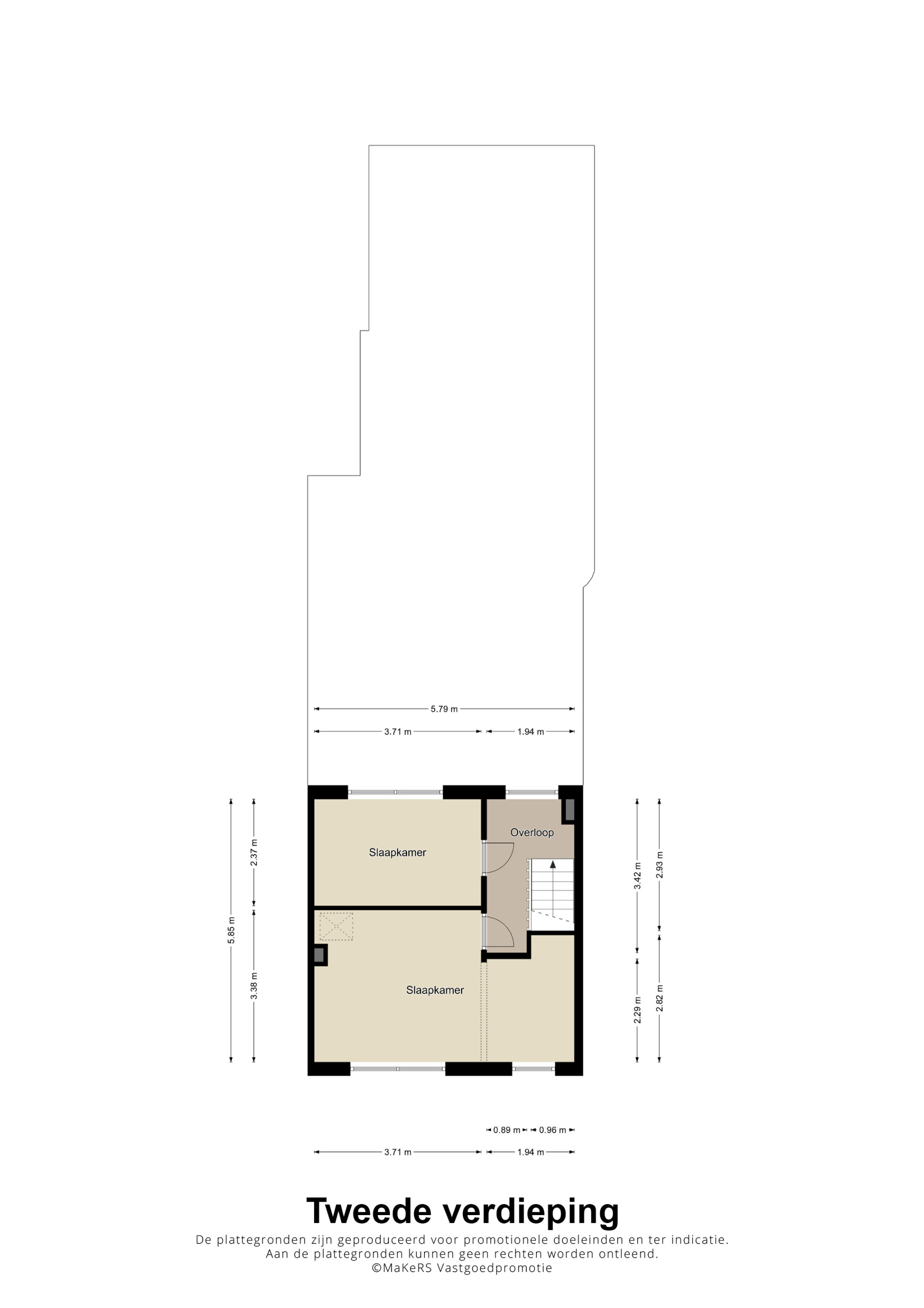
VERDIEPING:
Overloop met toegang tot de slaapvertrekken.
Linksachter gelegen slaapkamer.
De slaapkamer aan de voorzijde is voorzien van een kleedruimte.
VLIERING:
Bergruimte waar geplaatste de omvormer voor de zonnepanelen.
BIJZONDERHEDEN:
* VERRASSEND RUIM EN ENERGIEZUINIG TUSSENGELEGEN WOONHUIS OP CENTRUMLOCATIE
* WOONKAMER VOORZIEN VAN LIVING MET ZITHOEK AAN DE VOORZIJDE
* CENTRAAL GEPLAATSTE AIRCONDITIOING
* EETKAMER AAN DE ACHTERZIJDE MET TOEGANG TOT HET OVERDEKTE TERRAS
* HALFOPEN KEUKENRUIMTE VOORZIEN VAN MODERNE INBOUWKEUKEN MET APPARATUUR
* GEHEEL BETEGELD GASTENTOILET MET ZWEVEND WANDCLOSET EN FONTEINTJE
* TRAPPENHUIS NAAR DE VERDIEPINGEN MET BORDESTRAP
* HOOFDSLAAPKAMER MET DAKTERRAS OP DE EERSTE VERDIEPING
* EN SUITE BADKAMER VOORZIEN VAN INLOOPDOUCHE, BADKAMERMEUBEL EN SAUNA
* 2 SLAAPKAMERS OP DE TWEEDE VERDIEPING
* VLIERING MET BERGRUIMTE
* KELDERRUIMTE VOORZIEN VAN WITGOEDAANSLUITINGEN
* ONDERHOUDSVRIENDELIJKE ACHTERTUIN MET RUIM OVERDEKT TERRAS
* VERDIEPT GELEGEN TUINBERGING MET HOBBYRUIMTE BEREIKBAAR VIA ZIJINGANG
* DAK- EN SPOUWMUURISOLATIE
* DUBBELE BEGLAZING IN KUNSTSTOF KOZIJNEN
* DEELS VOORZIEN VAN ROLLUIKEN
* INTERGAS HRE CV-COMBIKETEL (BOUWJAAR 2022 / EIGENDOM)
* AIRCONDITIONING
* 8 ZONNEPANELEN
* ENERGIELABEL "A"
DEZE WONING IS KERUIG ONDERHOUDEN EN MAAKT EEN ZEER VERZORGDE INDRUK. VOORZIEN VAN DAK- EN SPOUWMUURISOLATIE. KUNSTSTOF KOZIJNEN MET DUBBELE BEGLAZING EN DEELS ROLLUIKEN. INTERGAS HRE CV-COMBIKETEL (BOUWJAAR 2022 / EIGENDOM). AIRCONDITIONING EN 8 ZONNEPANELEN. 3 SLAAPKAMERS. DAKTERRAS AAN DE HOOFDSLAAPKAMER. BADKAMER MET SAUNA. GEHEEL OMSLOTEN ONDERHOUDSVRIENDELIJKE ACHTERTUIN MET UITSTEKENDE BEZONNING, VOORZIEN VAN OVERDEKT TERRAS, EEN VERDIEPT GELEGEN TUINBERGING MET HOBBYRUIMTE, BEREIKBAAR VIA EEN ZIJINGANG BIJ DE BUREN.
HET GEHEEL IS GELEGEN NABIJ DE DORPSKERN VAN HOENSBROEK MET ALLE VOORZIENINGEN, WINKELS, RESTAURANTS, EEN BASISSCHOOL, VOORTGEZET ONDERWIJS, DIVERSE SPORTFACILITEITEN EN EEN BINNEN ZWEMBAD IN DE DIRECTE OMGEVING EN EEN WANDELGEBIED IS OP LOOPAFSTAND BEREIKBAAR.
GOEDE BEREIKBAARHEID MIDDELS OPENBAAR VERVOER, AANSLUITING OP UITVALSWEGEN, DE PARKSTADRING N300 EN DE AUTOSNELWEG A76 RICHTING MAASTRICHT, AKEN EN EINDHOVEN ALSMEDE HET DUITSE ACHTERLAND.
Ter bescherming van de belangen van zowel koper als ook verkoper wordt uitdrukkelijk gesteld dat een koopovereenkomst met betrekking tot deze onroerende zaak eerst dan tot stand komt nadat koper en verkoper de koopovereenkomst hebben ondertekend (schriftelijkheidsvereiste).
De waarborgsom/bankgarantie is 10% van de koopsom. De koper dient deze binnen 2 weken nadat het financieringsvoorbehoud is verlopen bij de desbetreffende notaris te deponeren.
Indien cv-ketel en/of warmwatervoorziening een huurtoestel is, dient koper de huurovereenkomst over te nemen. Dit is eveneens van toepassing indien dit zonnepanelen betreft.
Alle door ons kantoor verstrekte informatie omtrent onroerende zaken, moet beschouwd worden als een uitnodiging om in onderhandeling te treden en is geheel vrijblijvend! Alle vermelde maten en afmetingen zijn slechts bij benadering. Een (eventueel) bijgevoegde plattegrond dient uitsluitend als globale indicatie/visualisatie. Aan deze beperkte informatie kunnen geen rechten worden ontleend.
Indien in enige documentatie of op enige website informatie staat die niet overeen komt met de werkelijkheid, dan geldt de feitelijke situatie waarin de woning zich bevindt, zoals koper deze tijdens de bezichtiging heeft kunnen waarnemen, en wordt de woning in deze feitelijke situatie/staat verkocht.
+ Lees meer
- Lees minder
Bouw: {{
product.build_year }}
Bouw: {{ product.build_period.start }} -
{{ product.build_period.end }}
Woonhuis
, Eengezinswoning
{{ product.rooms }} Kamers
{{ product.bedrooms
}} Slaapkamers
Woonruimte: {{
product.living_space }} m²
Perceel: {{
product.plot_surface }} m²
Energielabel: {{ product.energy_class }}
Energie index: {{ product.energy_index }}
Kenmerken
{{ field.label }}
{{ field.value }}
+ Lees meer
{{ field.label }}
{{ field.value }}
- Lees minder
{{ product.company.name }}
Contact opnemen
{{ product.company.phone.replace('-', ' ').substr(0, 7) }}...
{{ product.company.phone.replace('-', ' ') }}
Delen:
Datum