Verkocht
€ {{ product.price.replace(/\B(?=(\d{4})+(?!\d))/g, ".") }} {{ __(product.price_condition) }}
Foto’s
{{ product.images.length }}
Plattegrond
{{ product.plans.length }}
360° foto's {{ product.panoramas.length }}
Video’s {{ product.videos.length }}
Kaarten
Alle media
Woonhuis te koop Heerenweg 160 Heerlen
€ {{ product.price.replace(/\B(?=(\d{4})+(?!\d))/g, ".") }} {{ __(product.price_condition) }}
Verkocht
Omschrijving
Op goede en centrale locatie, aan de Heerenweg (Heksenberg) gelegen halfvrijstaand woonhuis met o.a. 3 slaapkamers, riante zolderverdieping, ruime living + leefkeuken, eigen oprit met garage en diepe zonnige achtertuin. Het object wordt gekenmerkt door de vele daglichttoetreding en het behoudt van authentieke elementen.
Indeling:
Souterrain:
Vanuit de hal te bereiken kelderruimte (5,90 m x 1,87 m) welke toegang biedt tot wasruimte (4,27 m x 2,49 m)
Begane grond:
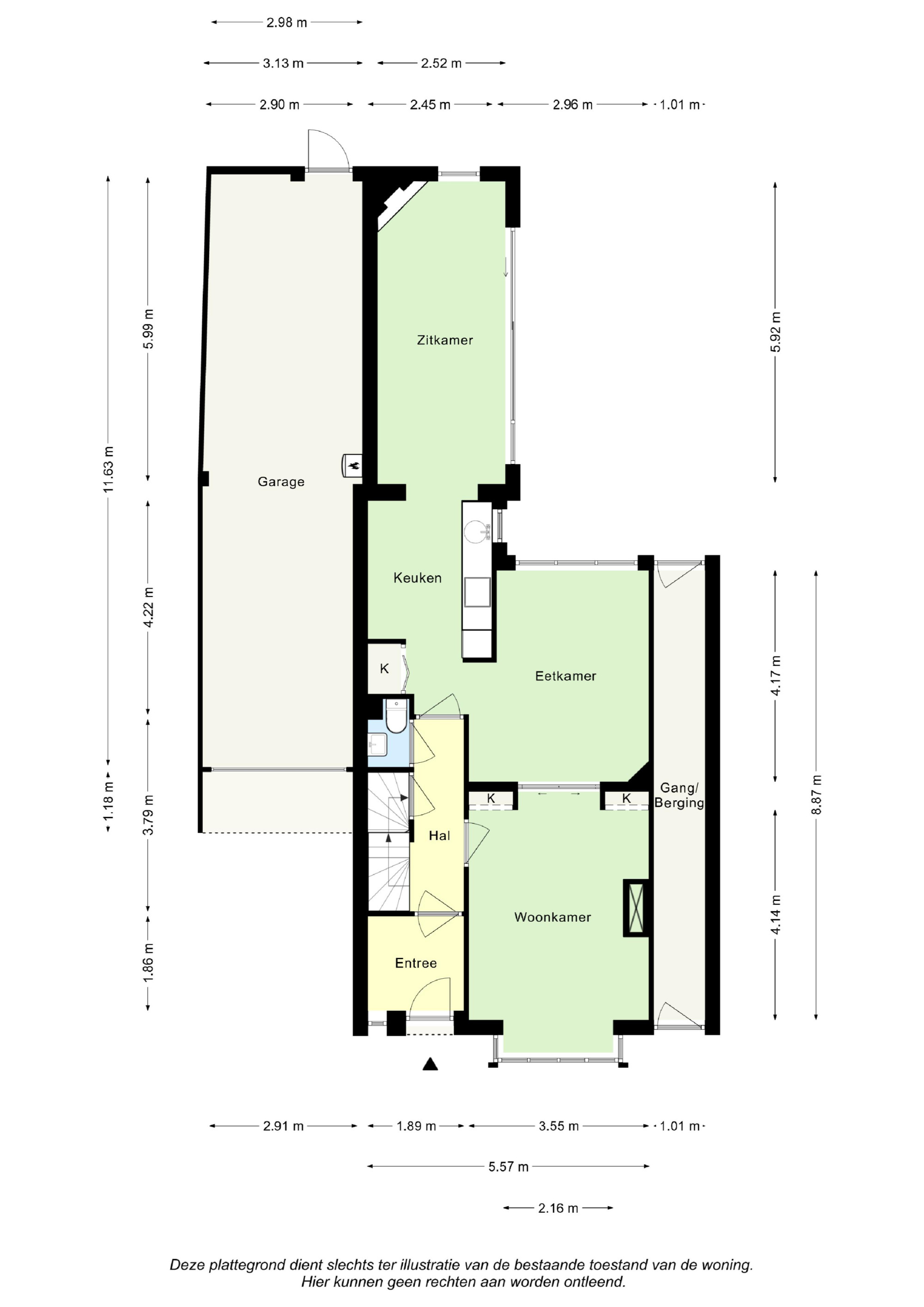
De entree/ vestibule biedt toegang tot de hal, vanuit de hal heeft men toegang tot keuken, woonkamer ensuite, kelder en toiletruimte v.v. closet en fonteintje. De woonkamer (4,14 m x 3,55 m) aan de voorzijde gelegen is v.v. een parketvloer, openhaard en erker. Middels door originele ensuite deuren heeft men toegang tot de eetkamer (4,17 m x 3,55 m/2,96 m), de eetkamer heeft een open verbinding naar de keuken. De keuken (4,22 m x 2,45 m) deze is v.v. een plavuizenvloer, bergkast en de navolgende apparatuur: 4-pits gasfornuis oven, afzuigkap en koelkast. Vanuit de keuken heeft men een open verbinding naar de zit/tuinkamer (5,99 m x 2,55 m) deze is v.v. een openhaard en middels schuifpui heeft men toegang tot terras/ tuin.
De diepe zonnige tuin grenzend aan de Brunssummerheide is v.v. een riant terras (v.v. zonnescherm) met toegang tot gang/ berging naar voorzijde en garage (11,63 m x 3,13 m x 2,90 m). De garage is v.v. een elektrische poort en aansluiting cv-ketel en wasmachine. Het tuinhuis/ berging is achterin de tuin gelegen
1e verdieping:
De ruime overloop met toegang tot 3 slaapkamers, badkamer en trapopgang naar zolder. Slaapkamer I (3,31 m x 2,55
m) en slaapkamer II (3,66 m x 3,30 m) zijn beide aan de voorzijde gelegen en v.v. een muurkast. Slaapkamer III (4,18 m x 4,12 m) is aan de achterzijde gelegen en v.v. een muurkast. De geheel betegelde badkamer (2,88 m x 2,51 m) v.v.
ligbad, douche en wastafel met meubel biedt toegang tot het balkon (2,89 m x 1,26 m)
Zolderruimte:
Middels vaste trap te bereiken riante zolderverdieping verdeeld in bergzolder (6,70 m x 5,29 m), zolderkamer I (3,35 m x 2,77 m) en zolderkamer II (3,29 m x 2,76 m). Deze verdieping is ideaal geschikt voor het realiseren van een 4e & 5e slaapkamer.
Extra's:
- Centrale ligging t.o.v. winkels, scholen en invalswegen (Maastricht, Heerlen, Aken en Eindhoven)
- Energielabel G
- Riante garage + eigen oprit
Ligging : aan rand Brunssummerheide, centrale ligging, op loopafstand van diverse voorzieningen
Installatie: cv-ketel (Nefit 2005 eigendom)
Woonoppervlakte: 132 m2
Bouwjaar: 1937
Aanvaarding : in overleg
Vraagprijs : €345.000,= k.k.
Alle door ons verstrekte informatie omtrent onroerende zaken moet worden beschouwd als een uitnodiging om in onderhandeling te treden en is geheel vrijblijvend. Maten en informatie bij benadering. Aan deze beperkte informatie kunnen geen rechten worden ontleend. Koper is te allen tijde gerechtigd voor eigen rekening een bouwkundige keuring te (laten) verrichten dan wel andere adviseurs te raadplegen teneinde een goed inzicht te verkrijgen over de staat van onderhoud. De waarborgsom/bankgarantie bedraagt 10% van de koopsom. De koper dient deze 2 weken ná het vervallen van de ontbindende voorwaarden bij de desbetreffende notaris te deponeren. Voor nadere inlichtingen kunt u contact opnemen of een afspraak maken met ons kantoor.
Indeling:
Souterrain:
Vanuit de hal te bereiken kelderruimte (5,90 m x 1,87 m) welke toegang biedt tot wasruimte (4,27 m x 2,49 m)
Begane grond:
De entree/ vestibule biedt toegang tot de hal, vanuit de hal heeft men toegang tot keuken, woonkamer ensuite, kelder en toiletruimte v.v. closet en fonteintje. De woonkamer (4,14 m x 3,55 m) aan de voorzijde gelegen is v.v. een parketvloer, openhaard en erker. Middels door originele ensuite deuren heeft men toegang tot de eetkamer (4,17 m x 3,55 m/2,96 m), de eetkamer heeft een open verbinding naar de keuken. De keuken (4,22 m x 2,45 m) deze is v.v. een plavuizenvloer, bergkast en de navolgende apparatuur: 4-pits gasfornuis oven, afzuigkap en koelkast. Vanuit de keuken heeft men een open verbinding naar de zit/tuinkamer (5,99 m x 2,55 m) deze is v.v. een openhaard en middels schuifpui heeft men toegang tot terras/ tuin.
De diepe zonnige tuin grenzend aan de Brunssummerheide is v.v. een riant terras (v.v. zonnescherm) met toegang tot gang/ berging naar voorzijde en garage (11,63 m x 3,13 m x 2,90 m). De garage is v.v. een elektrische poort en aansluiting cv-ketel en wasmachine. Het tuinhuis/ berging is achterin de tuin gelegen
1e verdieping:
De ruime overloop met toegang tot 3 slaapkamers, badkamer en trapopgang naar zolder. Slaapkamer I (3,31 m x 2,55
m) en slaapkamer II (3,66 m x 3,30 m) zijn beide aan de voorzijde gelegen en v.v. een muurkast. Slaapkamer III (4,18 m x 4,12 m) is aan de achterzijde gelegen en v.v. een muurkast. De geheel betegelde badkamer (2,88 m x 2,51 m) v.v.
ligbad, douche en wastafel met meubel biedt toegang tot het balkon (2,89 m x 1,26 m)
Zolderruimte:
Middels vaste trap te bereiken riante zolderverdieping verdeeld in bergzolder (6,70 m x 5,29 m), zolderkamer I (3,35 m x 2,77 m) en zolderkamer II (3,29 m x 2,76 m). Deze verdieping is ideaal geschikt voor het realiseren van een 4e & 5e slaapkamer.
Extra's:
- Centrale ligging t.o.v. winkels, scholen en invalswegen (Maastricht, Heerlen, Aken en Eindhoven)
- Energielabel G
- Riante garage + eigen oprit
Ligging : aan rand Brunssummerheide, centrale ligging, op loopafstand van diverse voorzieningen
Installatie: cv-ketel (Nefit 2005 eigendom)
Woonoppervlakte: 132 m2
Bouwjaar: 1937
Aanvaarding : in overleg
Vraagprijs : €345.000,= k.k.
Alle door ons verstrekte informatie omtrent onroerende zaken moet worden beschouwd als een uitnodiging om in onderhandeling te treden en is geheel vrijblijvend. Maten en informatie bij benadering. Aan deze beperkte informatie kunnen geen rechten worden ontleend. Koper is te allen tijde gerechtigd voor eigen rekening een bouwkundige keuring te (laten) verrichten dan wel andere adviseurs te raadplegen teneinde een goed inzicht te verkrijgen over de staat van onderhoud. De waarborgsom/bankgarantie bedraagt 10% van de koopsom. De koper dient deze 2 weken ná het vervallen van de ontbindende voorwaarden bij de desbetreffende notaris te deponeren. Voor nadere inlichtingen kunt u contact opnemen of een afspraak maken met ons kantoor.
+ Lees meer
- Lees minder
Bouw: {{
product.build_year }}
Bouw: {{ product.build_period.start }} -
{{ product.build_period.end }}
Woonhuis
, Eengezinswoning
{{ product.rooms }} Kamers
{{ product.bedrooms
}} Slaapkamers
Woonruimte: {{
product.living_space }} m²
Perceel: {{
product.plot_surface }} m²
Energielabel: {{ product.energy_class }}
Energie index: {{ product.energy_index }}
Kenmerken
{{ field.label }}
{{ field.value }}
+ Lees meer
{{ field.label }}
{{ field.value }}
- Lees minder
{{ product.company.name }}
Contact opnemen
{{ product.company.phone.replace('-', ' ').substr(0, 7) }}...
{{ product.company.phone.replace('-', ' ') }}
Delen:
Datum