Verkocht onder voorbehoud
€ {{ product.price.replace(/\B(?=(\d{4})+(?!\d))/g, ".") }} {{ __(product.price_condition) }}
Foto’s
{{ product.images.length }}
Plattegrond
{{ product.plans.length }}
360° foto's {{ product.panoramas.length }}
Video’s {{ product.videos.length }}
Kaarten
Alle media
Woonhuis te koop Prins Hendriklaan 9 Brunssum
€ {{ product.price.replace(/\B(?=(\d{4})+(?!\d))/g, ".") }} {{ __(product.price_condition) }}
Verkocht onder voorbehoud
Omschrijving
Onze makelaars uit Brunssum bieden je aan…..
Goed onderhouden halfvrijstaande woning MET AANBOUW, terrasoverkapping, JAPANSE TUIN MET RELAXTERRAS AAN KOI-VIJVER GELEGEN, garage en volledige onderkeldering.
De tuin loopt van de voorzijde van de woning helemaal door naar de poort aan de achterzijde , gelegen aan een openbare weg. Ideaal dus voor het bouwen van een kleine woning, of een tweede garage/ hobbyruimte( indien gemeente meewerkt) .
De huidige eigenaar heeft achterom dan ook nog een extra stalling voor aanhanger, maar het is ook goed mogelijk om een CAMPER OF CARAVAN ACHTEROM EEN FIJNE EIGEN PLEK GEVEN OP EIGEN TERREIN.
GOED OM TE WETEN.
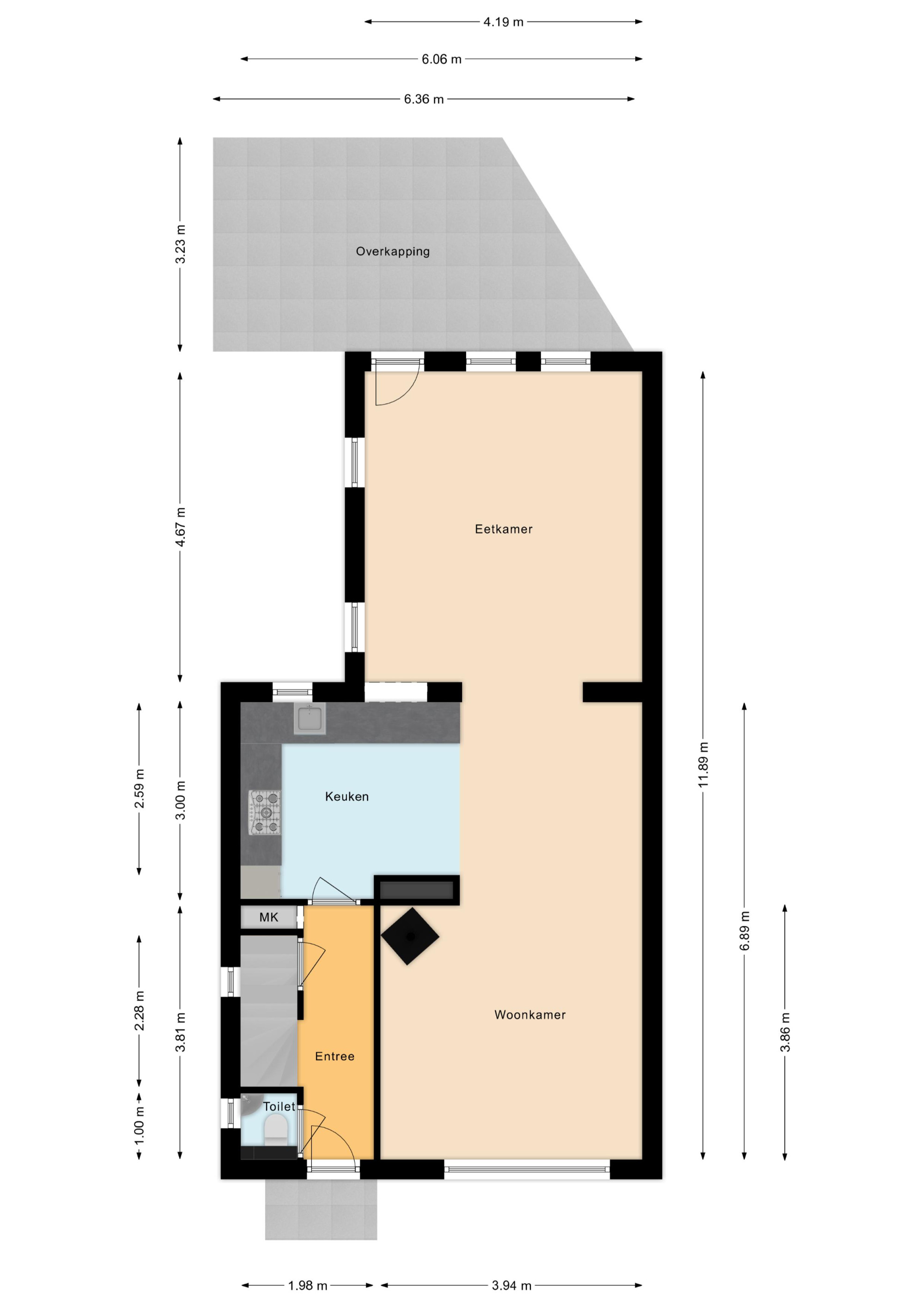
Woonoppervlakte 105m² en daarnaast door kelder en de zolder via vaste trap NOG EENS 88M² gebruiksoppervlakte.
INHOUD MAAR LIEFST 613M³.
Zonnepanelen.
LUXE KEUKEN UIT 2022.
Perceel 389m².
Alle 4 de etages voorzien van kunststoffen kozijnen met dubbel glas.
Rolluiken.
Kunststoffen kozijnen met dubbel glas.
Ook aan de achterzijde per auto bereikbaar.
Met aanbouw.
De zolder biedt geen mogelijkheden om een slaapkamer te maken.
Prins Hendriklaan 9 is gelegen in de buurt Oeloven. Dit is een kindvriendelijke buurt met relatief veel gezinnen. De buurt heeft naar verhouding veel oudere inwoners van 65 jaar en ouder. Verder is het een betrekkelijk rustige buurt gekeken naar de bevolkingsdichtheid.
De woning is redelijk tot goed bereikbaar met veel voorzieningen in de buurt. Gesitueerd op fietsafstand van het centrum van Brunssum, loopafstand van een supermarkt. Daarnaast is de dichtstbijzijnde uitvalsweg in de nabije omgeving op slechts 2 minuten rijden.
DE WONING IS VOLLEDIG GEÏSOLEERD.
Mooi aangelegde Japanse tuin met Koivijver.
Volledig onderkelderd.
Gelegen aan een ventweg.
Fijne terrasoverkapping grenzend aan de eetkamer.
Cv-gas huur.
Garagedak en dak uitbouw nog in 2018 vernieuwd.
Diepe tuin welke vanaf de straat helemaal doorloopt naar de achtergelegen openbare weg.
Goed onderhouden halfvrijstaande woning MET AANBOUW, terrasoverkapping, JAPANSE TUIN MET RELAXTERRAS AAN KOI-VIJVER GELEGEN, garage en volledige onderkeldering.
De tuin loopt van de voorzijde van de woning helemaal door naar de poort aan de achterzijde , gelegen aan een openbare weg. Ideaal dus voor het bouwen van een kleine woning, of een tweede garage/ hobbyruimte( indien gemeente meewerkt) .
De huidige eigenaar heeft achterom dan ook nog een extra stalling voor aanhanger, maar het is ook goed mogelijk om een CAMPER OF CARAVAN ACHTEROM EEN FIJNE EIGEN PLEK GEVEN OP EIGEN TERREIN.
GOED OM TE WETEN.
Woonoppervlakte 105m² en daarnaast door kelder en de zolder via vaste trap NOG EENS 88M² gebruiksoppervlakte.
INHOUD MAAR LIEFST 613M³.
Zonnepanelen.
LUXE KEUKEN UIT 2022.
Perceel 389m².
Alle 4 de etages voorzien van kunststoffen kozijnen met dubbel glas.
Rolluiken.
Kunststoffen kozijnen met dubbel glas.
Ook aan de achterzijde per auto bereikbaar.
Met aanbouw.
De zolder biedt geen mogelijkheden om een slaapkamer te maken.
Prins Hendriklaan 9 is gelegen in de buurt Oeloven. Dit is een kindvriendelijke buurt met relatief veel gezinnen. De buurt heeft naar verhouding veel oudere inwoners van 65 jaar en ouder. Verder is het een betrekkelijk rustige buurt gekeken naar de bevolkingsdichtheid.
De woning is redelijk tot goed bereikbaar met veel voorzieningen in de buurt. Gesitueerd op fietsafstand van het centrum van Brunssum, loopafstand van een supermarkt. Daarnaast is de dichtstbijzijnde uitvalsweg in de nabije omgeving op slechts 2 minuten rijden.
DE WONING IS VOLLEDIG GEÏSOLEERD.
Mooi aangelegde Japanse tuin met Koivijver.
Volledig onderkelderd.
Gelegen aan een ventweg.
Fijne terrasoverkapping grenzend aan de eetkamer.
Cv-gas huur.
Garagedak en dak uitbouw nog in 2018 vernieuwd.
Diepe tuin welke vanaf de straat helemaal doorloopt naar de achtergelegen openbare weg.
+ Lees meer
- Lees minder
Bouw: {{
product.build_year }}
Bouw: {{ product.build_period.start }} -
{{ product.build_period.end }}
Woonhuis
, Eengezinswoning
{{ product.rooms }} Kamers
{{ product.bedrooms
}} Slaapkamers
Woonruimte: {{
product.living_space }} m²
Perceel: {{
product.plot_surface }} m²
Energielabel: {{ product.energy_class }}
Energie index: {{ product.energy_index }}
Kenmerken
{{ field.label }}
{{ field.value }}
+ Lees meer
{{ field.label }}
{{ field.value }}
- Lees minder
{{ product.company.name }}
Contact opnemen
{{ product.company.phone.replace('-', ' ').substr(0, 7) }}...
{{ product.company.phone.replace('-', ' ') }}
Delen:
Datum