Verkocht
€ {{ product.price.replace(/\B(?=(\d{4})+(?!\d))/g, ".") }} {{ __(product.price_condition) }}
Foto’s
{{ product.images.length }}
Plattegrond
{{ product.plans.length }}
360° foto's {{ product.panoramas.length }}
Video’s {{ product.videos.length }}
Kaarten
Alle media
Woonhuis te koop Brugstraat 31 Born
€ {{ product.price.replace(/\B(?=(\d{4})+(?!\d))/g, ".") }} {{ __(product.price_condition) }}
Verkocht
Omschrijving
Welkom bij deze prachtige vrijstaande woning, gelegen aan de Brugstraat 31 in het maasdorp Obbicht. Deze woning, gebouwd in 1987, biedt een royale woonoppervlakte van 179 m² en is gelegen op een riant perceel van 1485 m². Met een energielabel B en drie slaapkamers is deze woning ideaal voor gezinnen die op zoek zijn naar comfort, ruimte en een goede energieprestatie.
INDELING:
Souterrain:
De kelder biedt verrassend veel ruimte met een totale oppervlakte van 51,9 m², verdeeld over drie compartimenten. De grootste ruimte van 27,9 m² is ideaal voor opslag of kan dienen als hobbyruimte. Daarnaast zijn er nog twee afzonderlijke ruimtes van respectievelijk 13 m² en 11 m², perfect voor het creëren van een wijnkelder of extra bergruimte. De kelder is volledig droog en biedt tal van mogelijkheden.
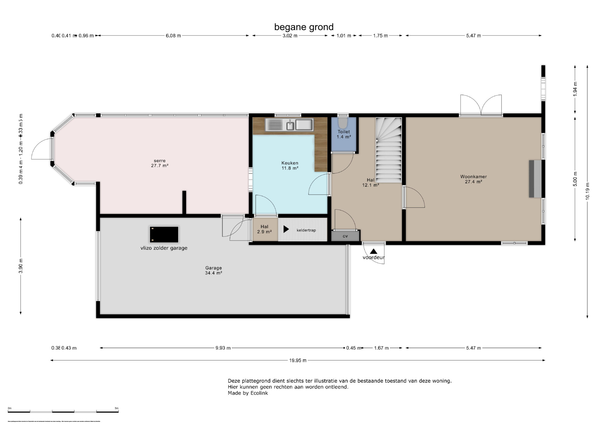
Begane grond:
Bij binnenkomst op de begane grond wordt u verwelkomd in een ruime hal die toegang biedt tot de living, keuken, meterkast, opgang naar de verdieping en de separate toiletruimte. De woonkamer, met een royale oppervlakte van 27,4 m², is licht en ruim opgezet, met openslaande deuren naar een leuk terras met veel privacy. De keuken van 11,8 m² is praktisch ingericht en grenst direct aan de royale tuinkamer van 27,7 m², die een prachtige plek biedt om te ontspannen met uitzicht op de tuin. Verder vindt u op deze verdieping een handige garage (met verdieping) van 34,4 m².
Eerste verdieping:
Op de eerste verdieping bevinden zich drie comfortabele slaapkamers. De grootste slaapkamer, met een oppervlakte van 27 m², biedt volop ruimte voor een kingsize bed en een zithoek. De twee andere slaapkamers, elk circa 7 m² groot, zijn perfect voor kinderen of als thuiswerkplek. De badkamer van 7,5 m² is uitgerust met een ligbad, douche en wastafel, en biedt alles wat u nodig heeft voor uw dagelijkse routine.
Zolder:
De zolder boven de garage biedt diverse mogelijkheden en heeft een oppervlakte van 33,7 m². Dit ruime vertrek kan eenvoudig worden omgetoverd tot een extra slaapkamer, kantoor of een speelkamer voor de kinderen. De zolder biedt tevens voldoende bergruimte en herbergt de cv-installatie (Intergas HRE, 2010, eigendom), die gemakkelijk toegankelijk is.
Tuin
De woning beschikt over een diepe, op het oosten gelegen tuin die rust en privacy biedt. Het uitgestrekte gazon nodigt uit tot ontspanning en spel, terwijl de twee vrijstaande houten bergingen praktische opslagruimte bieden voor tuinbenodigdheden en meer. Met vrij uitzicht en veel privacy is deze tuin een ware oase waar u optimaal kunt genieten van uw buitenruimte.
Leuk om te weten!
- Bouwjaar 1987 (conform BAG), eigen perceel: 1485 m² (conform kadaster);
- Woonoppervlakte ca. 179 m² (meetrapport aanwezig);
- Inhoud: ca. 616 m³;
- Energielabel B;
- 14 zonnepanelen (eigendom);
- Cv-installatie (Intergas HRE, 2010, eigendom);
- Alarmsysteem;
- Vloerverwarming;
- Aanvaarding per direct!
De waarborgsom/bankgarantie is 10% van de koopsom. De koper dient deze, indien de verkoper en koper dit overeenkomen, binnen 2 weken nadat het financieringsvoorbehoud is verlopen bij de desbetreffende notaris te deponeren.
Ter bescherming van de belangen van zowel koper als ook verkoper wordt uitdrukkelijk gesteld dat een koopovereenkomst met betrekking tot deze onroerende zaak eerst dan tot stand komt nadat koper en verkoper de koopovereenkomst hebben getekend (schriftelijkheidsvereiste).
Indien c.v.ketel en/of warmwatervoorziening een huurtoestel is, dient koper de huurovereenkomst over te nemen.
Alle door ons kantoor verstrekte informatie omtrent onroerende zaken, moet beschouwd worden als een uitnodiging om in onderhandeling te treden, en is geheel vrijblijvend! Alle vermelde maten en afmetingen zijn slechts bij benadering. Aan deze beperkte info kunnen geen rechten worden ontleend. Indien in enige documentatie of op enige website informatie staat die niet overeen komt met de werkelijkheid, dan geldt de feitelijke situatie waarin de woning zich bevindt, zoals koper deze tijdens de bezichtiging heeft kunnen waarnemen, en wordt de woning in deze feitelijke situatie/staat verkocht. Een (eventueel) bijgevoegde plattegrond dient uitsluitend als globale indicatie/visualisatie. Hieraan kunnen uitdrukkelijk geen rechten worden ontleend.
De makelaar Ray van der Venne nodigt u uit voor een bezichtiging.
INDELING:
Souterrain:
De kelder biedt verrassend veel ruimte met een totale oppervlakte van 51,9 m², verdeeld over drie compartimenten. De grootste ruimte van 27,9 m² is ideaal voor opslag of kan dienen als hobbyruimte. Daarnaast zijn er nog twee afzonderlijke ruimtes van respectievelijk 13 m² en 11 m², perfect voor het creëren van een wijnkelder of extra bergruimte. De kelder is volledig droog en biedt tal van mogelijkheden.
Begane grond:
Bij binnenkomst op de begane grond wordt u verwelkomd in een ruime hal die toegang biedt tot de living, keuken, meterkast, opgang naar de verdieping en de separate toiletruimte. De woonkamer, met een royale oppervlakte van 27,4 m², is licht en ruim opgezet, met openslaande deuren naar een leuk terras met veel privacy. De keuken van 11,8 m² is praktisch ingericht en grenst direct aan de royale tuinkamer van 27,7 m², die een prachtige plek biedt om te ontspannen met uitzicht op de tuin. Verder vindt u op deze verdieping een handige garage (met verdieping) van 34,4 m².
Eerste verdieping:
Op de eerste verdieping bevinden zich drie comfortabele slaapkamers. De grootste slaapkamer, met een oppervlakte van 27 m², biedt volop ruimte voor een kingsize bed en een zithoek. De twee andere slaapkamers, elk circa 7 m² groot, zijn perfect voor kinderen of als thuiswerkplek. De badkamer van 7,5 m² is uitgerust met een ligbad, douche en wastafel, en biedt alles wat u nodig heeft voor uw dagelijkse routine.
Zolder:
De zolder boven de garage biedt diverse mogelijkheden en heeft een oppervlakte van 33,7 m². Dit ruime vertrek kan eenvoudig worden omgetoverd tot een extra slaapkamer, kantoor of een speelkamer voor de kinderen. De zolder biedt tevens voldoende bergruimte en herbergt de cv-installatie (Intergas HRE, 2010, eigendom), die gemakkelijk toegankelijk is.
Tuin
De woning beschikt over een diepe, op het oosten gelegen tuin die rust en privacy biedt. Het uitgestrekte gazon nodigt uit tot ontspanning en spel, terwijl de twee vrijstaande houten bergingen praktische opslagruimte bieden voor tuinbenodigdheden en meer. Met vrij uitzicht en veel privacy is deze tuin een ware oase waar u optimaal kunt genieten van uw buitenruimte.
Leuk om te weten!
- Bouwjaar 1987 (conform BAG), eigen perceel: 1485 m² (conform kadaster);
- Woonoppervlakte ca. 179 m² (meetrapport aanwezig);
- Inhoud: ca. 616 m³;
- Energielabel B;
- 14 zonnepanelen (eigendom);
- Cv-installatie (Intergas HRE, 2010, eigendom);
- Alarmsysteem;
- Vloerverwarming;
- Aanvaarding per direct!
De waarborgsom/bankgarantie is 10% van de koopsom. De koper dient deze, indien de verkoper en koper dit overeenkomen, binnen 2 weken nadat het financieringsvoorbehoud is verlopen bij de desbetreffende notaris te deponeren.
Ter bescherming van de belangen van zowel koper als ook verkoper wordt uitdrukkelijk gesteld dat een koopovereenkomst met betrekking tot deze onroerende zaak eerst dan tot stand komt nadat koper en verkoper de koopovereenkomst hebben getekend (schriftelijkheidsvereiste).
Indien c.v.ketel en/of warmwatervoorziening een huurtoestel is, dient koper de huurovereenkomst over te nemen.
Alle door ons kantoor verstrekte informatie omtrent onroerende zaken, moet beschouwd worden als een uitnodiging om in onderhandeling te treden, en is geheel vrijblijvend! Alle vermelde maten en afmetingen zijn slechts bij benadering. Aan deze beperkte info kunnen geen rechten worden ontleend. Indien in enige documentatie of op enige website informatie staat die niet overeen komt met de werkelijkheid, dan geldt de feitelijke situatie waarin de woning zich bevindt, zoals koper deze tijdens de bezichtiging heeft kunnen waarnemen, en wordt de woning in deze feitelijke situatie/staat verkocht. Een (eventueel) bijgevoegde plattegrond dient uitsluitend als globale indicatie/visualisatie. Hieraan kunnen uitdrukkelijk geen rechten worden ontleend.
De makelaar Ray van der Venne nodigt u uit voor een bezichtiging.
+ Lees meer
- Lees minder
Bouw: {{
product.build_year }}
Bouw: {{ product.build_period.start }} -
{{ product.build_period.end }}
Woonhuis
, Eengezinswoning
{{ product.rooms }} Kamers
{{ product.bedrooms
}} Slaapkamers
Woonruimte: {{
product.living_space }} m²
Perceel: {{
product.plot_surface }} m²
Energielabel: {{ product.energy_class }}
Energie index: {{ product.energy_index }}
Kenmerken
{{ field.label }}
{{ field.value }}
+ Lees meer
{{ field.label }}
{{ field.value }}
- Lees minder
{{ product.company.name }}
Contact opnemen
{{ product.company.phone.replace('-', ' ').substr(0, 7) }}...
{{ product.company.phone.replace('-', ' ') }}
Delen:
Datum