Verhuurd
€ {{ product.price_rental.replace(/\B(?=(\d{4})+(?!\d))/g, ".") }} {{ __(product.price_rental_condition) }}
Foto’s
{{ product.images.length }}
Plattegrond
{{ product.plans.length }}
360° foto's {{ product.panoramas.length }}
Video’s {{ product.videos.length }}
Kaarten
Alle media
Appartement te huur Schoolstraat 37 Tegelen
€ {{ product.price_rental.replace(/\B(?=(\d{4})+(?!\d))/g, ".") }} {{ __(product.price_rental_condition) }}
Verhuurd
Omschrijving
In het centrum van Tegelen ligt op de begane grond dit luxe gemeubileerd appartement welke is voorzien van patiotuin, kelder en aparte berging. Het complex is in 2023 getransformeerd naar 3 luxe appartementen en is voorzien van zonnepanelen. Het appartement beschikt over een energielabel A.
Indeling:
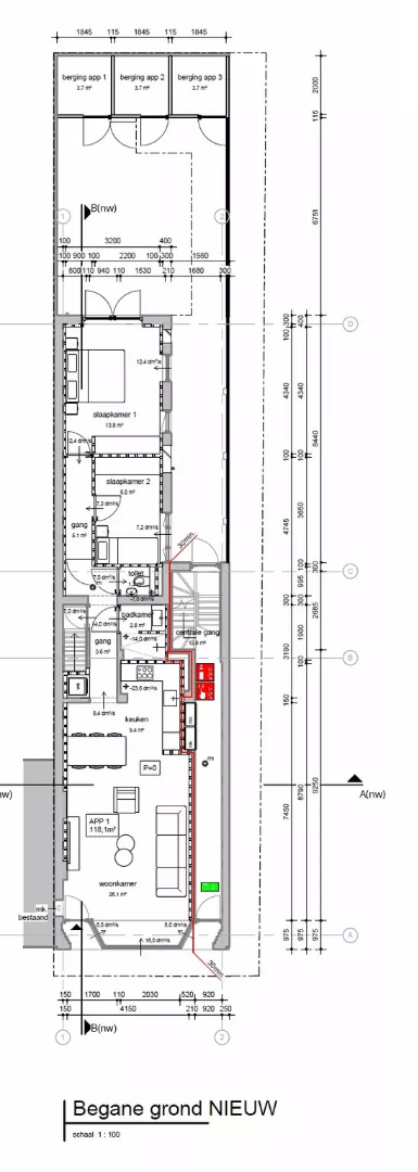
Begane grond: portaal met toegang tot het appartement. Woonkamer voorzien van een visgraatvloer en erker (ca. 26 m²) met open keuken (ca. 9 m²). De keuken is voorzien van inbouwapparatuur zoals inductiekookplaat, vaatwasser, combi-oven en een koel-vriescombinatie.
2 slaapkamers (resp. ca. 8 en 14 m²) waarvan één slaapkamer toegang geeft tot de patiotuin (ca. 24 m²) middels openslaande deuren. Badkamer met inloopdouche en wastafelmeubel. Separate toilet met fonteintje. Gang met toegang tot de grote provisiekelder (ca. 48 m²). Muurkast welke is voorzien van de witgoedaansluiting.
Bijzonderheden: Woonoppervlak ca. 73m2. Overig inpandige ruimte (kelder) 48m2. Externe berging ca. 4 m².
Aanvaarding in overleg. Minimale huurtermijn van 1 jaar (voorkeur verhuurder 2 jaar).
Huurprijs: € 1.195, -- per maand, exclusief internet en energiekosten
Stoffering + meubilering: € 275,-- per maand
Voorschot servicekosten: € 10,-- per maand
Voorwaarden:
- Als inkomenseis hanteert verhuurder de norm dat uw bruto maandinkomen (inclusief vakantiegeld) minimaal gelijk dient te zijn aan 3,5 - 4 maal de maandhuur (bespreekbaar)
- Uw arbeidsovereenkomst moet minimaal een jaarcontract zijn
- De huurovereenkomst wordt aangegaan voor de minimale duur van 1 jaar
- De waarborgsom bedraagt 2x de maandhuur
- Huisdieren niet toegestaan
- Huurovereenkomst wordt gesloten na goedkeuring van de eigenaar
Graag ontvangen wij de volgende gegevens in PDF:
U bent werknemer in vaste dienst:
- kopie paspoort/ID-kaart
- verklaring huidige hypotheekverstrekker of verhuurder
- werkgeversverklaring
- kopie 3 recente salarisstroken
- bankafschrift uitbetaling loon/uitkering laatste 3 maanden
U bent zelfstandig ondernemer:
- kopie paspoort/ID-kaart
- verklaring huidige verhuurder of hypotheekverstrekker
- kopie balans en winst-/verliesrekening, goedgekeurd door een erkend accountant
- kopie inschrijving handelsregister KvK
To be eligible for this property, you must take into account a number of conditions and documents to be supplied:
Conditions:
- Pets not allowed;
- Rental agreement is concluded after approval of the owner;
- Employment contract of at least one year;
- Energy and internet costs are for the account of the tenant;
- Minimum rental period is 1 year.
- 2 Month deposit;
- A credit check is part of the selection procedure.
We would like to receive the following information in PDF:
You are a permanent employee:
- copy of passport/ID card;
- statement current mortgage lender or landlord;
- employer's declaration;
- copy of 3 recent salary slips;
- Document of payment salary of your bankaccount.
You are an independent entrepreneur:
- copy of passport/ID card;
- statement current landlord or mortgage lender;
- copy commerce of chambre
Indeling:
Begane grond: portaal met toegang tot het appartement. Woonkamer voorzien van een visgraatvloer en erker (ca. 26 m²) met open keuken (ca. 9 m²). De keuken is voorzien van inbouwapparatuur zoals inductiekookplaat, vaatwasser, combi-oven en een koel-vriescombinatie.
2 slaapkamers (resp. ca. 8 en 14 m²) waarvan één slaapkamer toegang geeft tot de patiotuin (ca. 24 m²) middels openslaande deuren. Badkamer met inloopdouche en wastafelmeubel. Separate toilet met fonteintje. Gang met toegang tot de grote provisiekelder (ca. 48 m²). Muurkast welke is voorzien van de witgoedaansluiting.
Bijzonderheden: Woonoppervlak ca. 73m2. Overig inpandige ruimte (kelder) 48m2. Externe berging ca. 4 m².
Aanvaarding in overleg. Minimale huurtermijn van 1 jaar (voorkeur verhuurder 2 jaar).
Huurprijs: € 1.195, -- per maand, exclusief internet en energiekosten
Stoffering + meubilering: € 275,-- per maand
Voorschot servicekosten: € 10,-- per maand
Voorwaarden:
- Als inkomenseis hanteert verhuurder de norm dat uw bruto maandinkomen (inclusief vakantiegeld) minimaal gelijk dient te zijn aan 3,5 - 4 maal de maandhuur (bespreekbaar)
- Uw arbeidsovereenkomst moet minimaal een jaarcontract zijn
- De huurovereenkomst wordt aangegaan voor de minimale duur van 1 jaar
- De waarborgsom bedraagt 2x de maandhuur
- Huisdieren niet toegestaan
- Huurovereenkomst wordt gesloten na goedkeuring van de eigenaar
Graag ontvangen wij de volgende gegevens in PDF:
U bent werknemer in vaste dienst:
- kopie paspoort/ID-kaart
- verklaring huidige hypotheekverstrekker of verhuurder
- werkgeversverklaring
- kopie 3 recente salarisstroken
- bankafschrift uitbetaling loon/uitkering laatste 3 maanden
U bent zelfstandig ondernemer:
- kopie paspoort/ID-kaart
- verklaring huidige verhuurder of hypotheekverstrekker
- kopie balans en winst-/verliesrekening, goedgekeurd door een erkend accountant
- kopie inschrijving handelsregister KvK
To be eligible for this property, you must take into account a number of conditions and documents to be supplied:
Conditions:
- Pets not allowed;
- Rental agreement is concluded after approval of the owner;
- Employment contract of at least one year;
- Energy and internet costs are for the account of the tenant;
- Minimum rental period is 1 year.
- 2 Month deposit;
- A credit check is part of the selection procedure.
We would like to receive the following information in PDF:
You are a permanent employee:
- copy of passport/ID card;
- statement current mortgage lender or landlord;
- employer's declaration;
- copy of 3 recent salary slips;
- Document of payment salary of your bankaccount.
You are an independent entrepreneur:
- copy of passport/ID card;
- statement current landlord or mortgage lender;
- copy commerce of chambre
+ Lees meer
- Lees minder
Bouw: {{
product.build_year }}
Bouw: {{ product.build_period.start }} -
{{ product.build_period.end }}
Appartement
, Benedenwoning
{{ product.rooms }} Kamers
{{ product.bedrooms
}} Slaapkamers
Woonruimte: {{
product.living_space }} m²
Perceel: {{
product.plot_surface }} m²
Energielabel: {{ product.energy_class }}
Energie index: {{ product.energy_index }}
Kenmerken
{{ field.label }}
{{ field.value }}
+ Lees meer
{{ field.label }}
{{ field.value }}
- Lees minder
{{ product.company.name }}
Contact opnemen
{{ product.company.phone.replace('-', ' ').substr(0, 7) }}...
{{ product.company.phone.replace('-', ' ') }}
Delen:
Datum