Verhuurd
€ {{ product.price_rental.replace(/\B(?=(\d{4})+(?!\d))/g, ".") }} {{ __(product.price_rental_condition) }}
Foto’s
{{ product.images.length }}
Plattegrond
{{ product.plans.length }}
360° foto's {{ product.panoramas.length }}
Video’s {{ product.videos.length }}
Kaarten
Alle media
Appartement te huur Henri Hermanslaan 97 Geleen
€ {{ product.price_rental.replace(/\B(?=(\d{4})+(?!\d))/g, ".") }} {{ __(product.price_rental_condition) }}
Verhuurd
Omschrijving
Centraal gelegen maisonnette gelegen op de eerste verdieping van het appartementencomplex. Dit appartement beschikt over twee slaapkamers, ruime woonkamer met sierhaard, dakterras en tuin. Geheel voorzien van dubbele beglazing en kunststof kozijnen. Basisvoorzieningen zoals supermarkten en basisscholen zijn op korte afstand bereikbaar, alsook autosnelwegen A2 en A76.
INDELING:
Souterrain:
Kelder (6m2)
Begane grond:
Bellentableau en brievenbussen
Betegelde tuin (45m2) met berging (ca. 2.80m x 1.90m) gelegen op het noordwesten en via achtergelegen pad met toegangspoort te bereiken alsook via het dakterras.
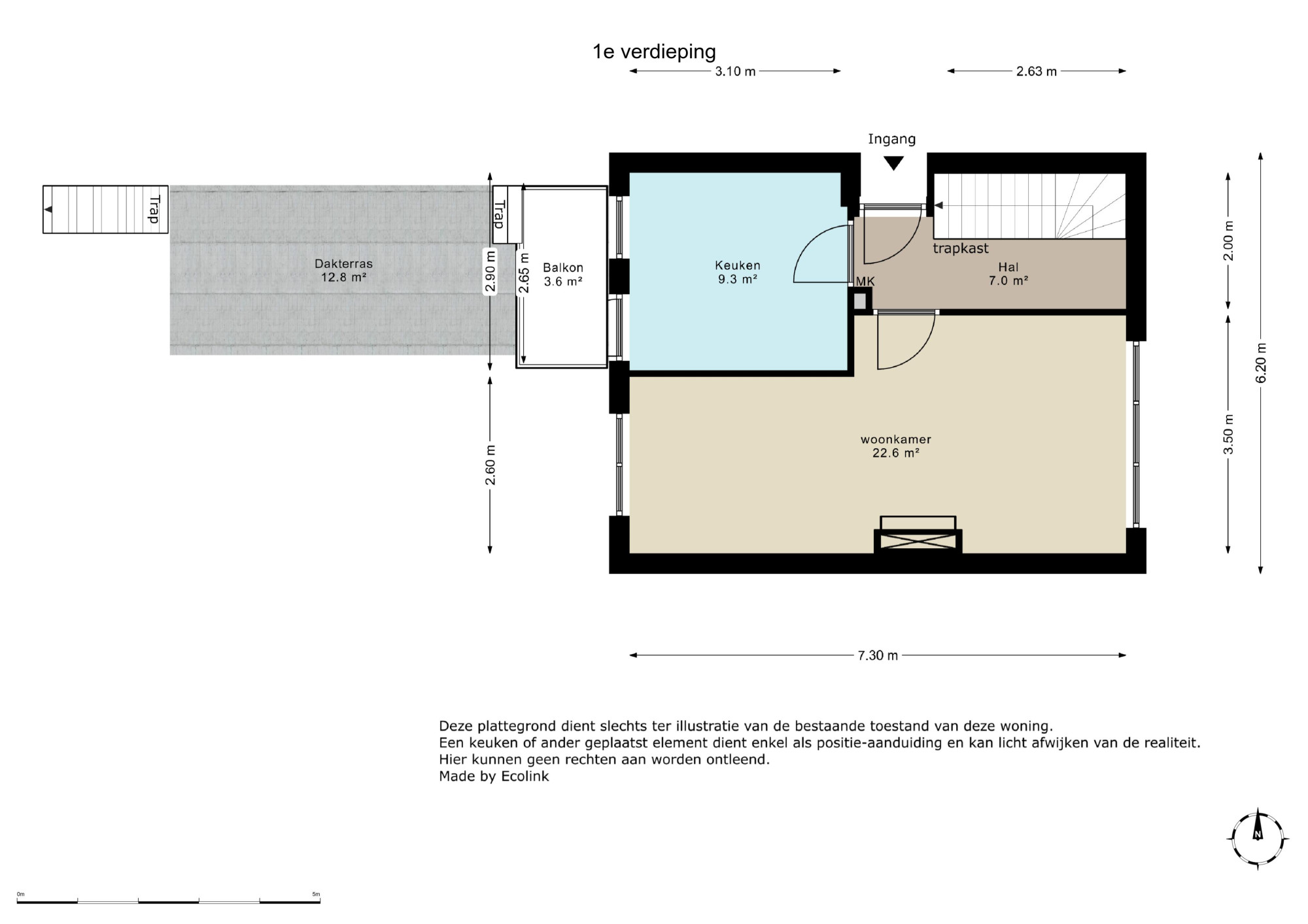
Eerste verdieping:
Toegangsdeur/entree, hal met moderne meterkast en toegang tot keuken, woonkamer, muurkast en opgang naar verdieping. Keuken (ca. 3.46m x 2.86m) is voorzien van een tegelvloer met 4-pits gaskookplaat, oven, koelvriescombinatie en geeft toegang naar het dakterras. Woonkamer (ca. 7.62m x 3.50m/2.60m) voorzien van sierhaard.
Tweede verdieping:
Overloop met toegang tot badkamer en twee slaapkamers, respectievelijk:
- Slaapkamer 1: ca. 4.50m x 3.00m
- Slaapkamer 2: ca. 4.46m x 2.58m voorzien van wastafel
Badkamer (ca. 3.47m x 2.65m) volledig betegeld en voorzien van ligbad, zwevend closet, wastafelmeubel en de voorzieningen voor de wasapparatuur.
Derde verdieping:
Bergzolder (ca. 22m2) bereikbaar via vlizotrap en tevens standplaats c.v.-ketel.
Huuprijs
€ 940,- per maand (excl. servicekosten)
Servicekosten
€ 30,- per maand
Waarborgsom
€ 1.880,-
BIJZONDERHEDEN:
- Ingangsdatum huurperiode per direct;
- Geen huisdieren gewenst;
- Gelegen op loopafstand van alle dagelijkse voorzieningen;
- Nabij uitvalswegen;
- Dakterras en ruime tuin;
- Appartement is momenteel verhuur dus foto's kunnen afwijken van de werkelijkheid;
AANSPRAKELIJKHEID
Het bovenstaande behelst slechts een globale omschrijving van een object. De informatie berust deels op door derden aan onze kantoren verstrekte gegevens. Met de meeste zorg hebben wij deze informatie verwerkt doch kunnen ten aanzien van de juistheid van deze gegevens geen aansprakelijkheid aanvaarden. Aan deze aanbiedingstekst kunnen geen rechten worden ontleend.
INDELING:
Souterrain:
Kelder (6m2)
Begane grond:
Bellentableau en brievenbussen
Betegelde tuin (45m2) met berging (ca. 2.80m x 1.90m) gelegen op het noordwesten en via achtergelegen pad met toegangspoort te bereiken alsook via het dakterras.
Eerste verdieping:
Toegangsdeur/entree, hal met moderne meterkast en toegang tot keuken, woonkamer, muurkast en opgang naar verdieping. Keuken (ca. 3.46m x 2.86m) is voorzien van een tegelvloer met 4-pits gaskookplaat, oven, koelvriescombinatie en geeft toegang naar het dakterras. Woonkamer (ca. 7.62m x 3.50m/2.60m) voorzien van sierhaard.
Tweede verdieping:
Overloop met toegang tot badkamer en twee slaapkamers, respectievelijk:
- Slaapkamer 1: ca. 4.50m x 3.00m
- Slaapkamer 2: ca. 4.46m x 2.58m voorzien van wastafel
Badkamer (ca. 3.47m x 2.65m) volledig betegeld en voorzien van ligbad, zwevend closet, wastafelmeubel en de voorzieningen voor de wasapparatuur.
Derde verdieping:
Bergzolder (ca. 22m2) bereikbaar via vlizotrap en tevens standplaats c.v.-ketel.
Huuprijs
€ 940,- per maand (excl. servicekosten)
Servicekosten
€ 30,- per maand
Waarborgsom
€ 1.880,-
BIJZONDERHEDEN:
- Ingangsdatum huurperiode per direct;
- Geen huisdieren gewenst;
- Gelegen op loopafstand van alle dagelijkse voorzieningen;
- Nabij uitvalswegen;
- Dakterras en ruime tuin;
- Appartement is momenteel verhuur dus foto's kunnen afwijken van de werkelijkheid;
AANSPRAKELIJKHEID
Het bovenstaande behelst slechts een globale omschrijving van een object. De informatie berust deels op door derden aan onze kantoren verstrekte gegevens. Met de meeste zorg hebben wij deze informatie verwerkt doch kunnen ten aanzien van de juistheid van deze gegevens geen aansprakelijkheid aanvaarden. Aan deze aanbiedingstekst kunnen geen rechten worden ontleend.
+ Lees meer
- Lees minder
Bouw: {{
product.build_year }}
Bouw: {{ product.build_period.start }} -
{{ product.build_period.end }}
Appartement
, Maisonnette
{{ product.rooms }} Kamers
{{ product.bedrooms
}} Slaapkamers
Woonruimte: {{
product.living_space }} m²
Perceel: {{
product.plot_surface }} m²
Energielabel: {{ product.energy_class }}
Energie index: {{ product.energy_index }}
Kenmerken
{{ field.label }}
{{ field.value }}
+ Lees meer
{{ field.label }}
{{ field.value }}
- Lees minder
{{ product.company.name }}
Contact opnemen
{{ product.company.phone.replace('-', ' ').substr(0, 7) }}...
{{ product.company.phone.replace('-', ' ') }}
Delen:
Datum