Sold
€ {{ product.price.replace(/\B(?=(\d{4})+(?!\d))/g, ".") }} {{ __(product.price_condition) }}
Photo’s
{{ product.images.length }}
Floorplan
{{ product.plans.length }}
360° photo’s {{ product.panoramas.length }}
Video’s {{ product.videos.length }}
Maps
All media
House for sale Coenraad Abelsstraat 18 Weert
€ {{ product.price.replace(/\B(?=(\d{4})+(?!\d))/g, ".") }} {{ __(product.price_condition) }}
Sold
Description
In de rustige en karakteristieke wijk Fatima bevindt zich deze fijne tussenwoning. Deze uitgebouwde woning beschikt over een halfopen keuken, een ruime woonkamer met eetkamer in de aanbouw, drie slaapkamers (met de mogelijkheid om meer kamers te realiseren), 10 zonnepanelen en een overdekte patiotuin met vrije achterom en een praktische berging. Bovendien ligt het geheel op loopafstand van het centrum van Weert, met al haar voorzieningen binnen handbereik.
Indeling:
Begane grond:
Bij binnenkomst betreedt u de hal, waar u de meterkast, de trapopgang naar de eerste verdieping en een toiletruimte met zwevend toilet en fonteintje aantreft. De halfopen keuken heeft een praktische indeling en is uitgerust met een inductiekookplaat en een afzuigkap. Daarnaast biedt de handige trapkast extra opbergruimte. De keuken staat in directe verbinding met de woonkamer, wat zorgt voor een ruimtelijke en gezellige sfeer. Aan de achterzijde van de woning bevindt zich de aanbouw, waarin een eetkamer is gerealiseerd. Deze ruimte biedt via een schuifpui en een loopdeur toegang tot de overdekte patiotuin. De begane grond is deels afgewerkt met een tegelvloer en deels met een parketvloer.
Eerste verdieping:
Op de eerste verdieping geeft de overloop toegang tot drie comfortabele slaapkamers en een moderne badkamer. De badkamer is voorzien van een inloopdouche, een wastafel met meubel en een toilet. Daarnaast is er een berging met aansluitingen voor de wasmachine en droger.
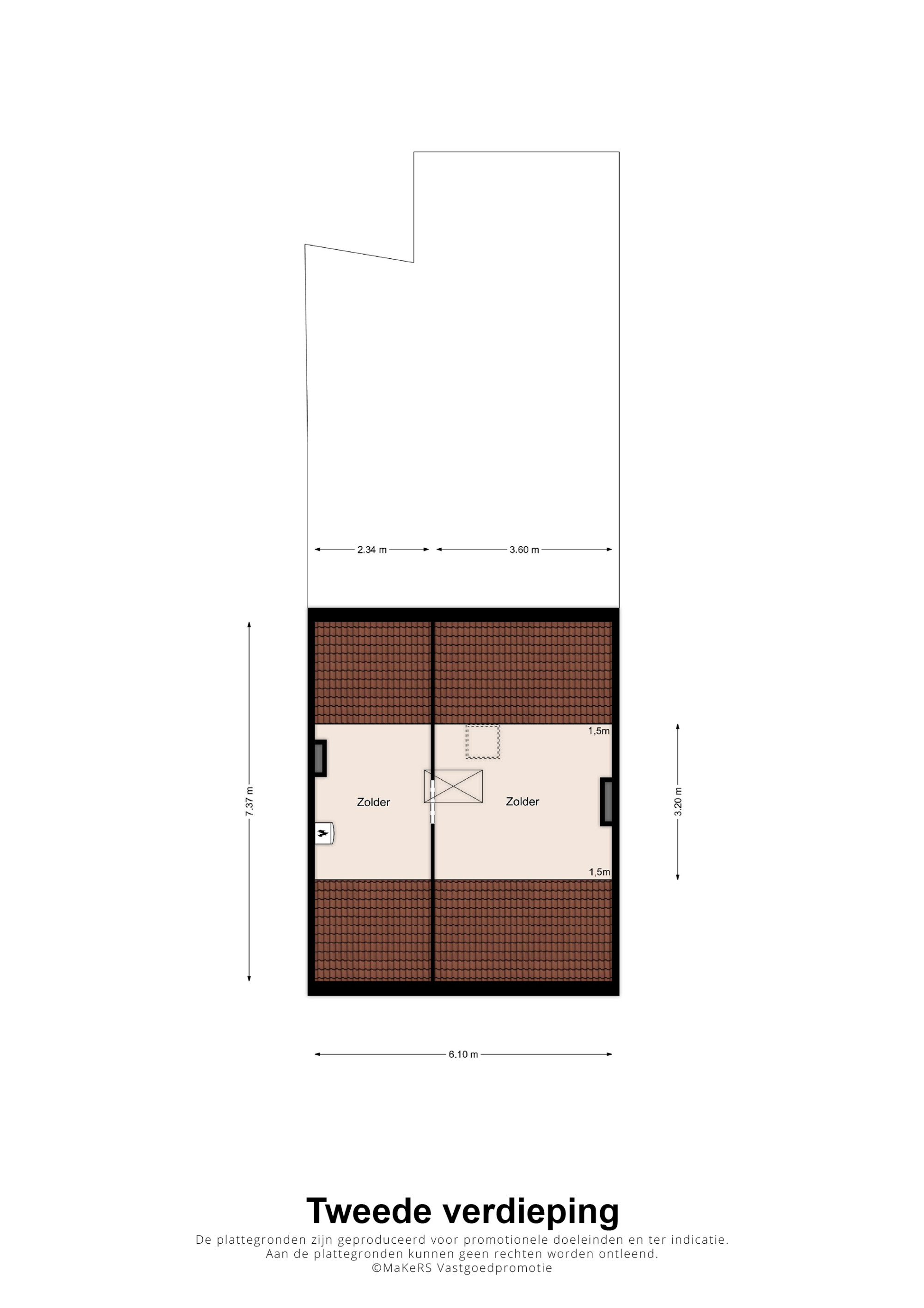
Tweede verdieping:
De tweede verdieping is bereikbaar via een vlizotrap. Hier bevindt zich de cv-ketel (Intergas HR, ca. 2011, eigendom) en een royale ruimte die geschikt is om extra kamers te realiseren door het plaatsen van een vaste trap.
Exterieur:
De gezellige overdekte patiotuin is een fijne plek om te ontspannen. De tuin beschikt over een vrije achterom en een stenen berging, ideaal voor het opbergen van fietsen en tuinspullen.
Bijzonderheden:
De woning is altijd met veel liefde bewoond door de huidige eigenaren. De kozijnen zijn deels van hout en deels van kunststof, grotendeels voorzien van dubbel glas en deels uitgerust met rolluiken. Daarnaast is de woning voorzien van dak- en spouwisolatie, 10 zonnepanelen en een airco in de aanbouw, wat resulteert in een energielabel B.
Ligging:
De woning is gelegen op loopafstand van het gezellige stadscentrum van Weert, met een breed aanbod aan winkels en horecagelegenheden. Ook het NS-Intercitystation bevindt zich op korte afstand. Verder is er een uitstekende verbinding naar de autosnelweg A2 (Maastricht - Eindhoven) en diverse uitvalswegen.
Interactief:
Kijk ook op onze Homevision site om de plattegronden van de woning te bekijken en interactief in te kunnen richten met uw eigen meubel opstelling.
Indeling:
Begane grond:
Bij binnenkomst betreedt u de hal, waar u de meterkast, de trapopgang naar de eerste verdieping en een toiletruimte met zwevend toilet en fonteintje aantreft. De halfopen keuken heeft een praktische indeling en is uitgerust met een inductiekookplaat en een afzuigkap. Daarnaast biedt de handige trapkast extra opbergruimte. De keuken staat in directe verbinding met de woonkamer, wat zorgt voor een ruimtelijke en gezellige sfeer. Aan de achterzijde van de woning bevindt zich de aanbouw, waarin een eetkamer is gerealiseerd. Deze ruimte biedt via een schuifpui en een loopdeur toegang tot de overdekte patiotuin. De begane grond is deels afgewerkt met een tegelvloer en deels met een parketvloer.
Eerste verdieping:
Op de eerste verdieping geeft de overloop toegang tot drie comfortabele slaapkamers en een moderne badkamer. De badkamer is voorzien van een inloopdouche, een wastafel met meubel en een toilet. Daarnaast is er een berging met aansluitingen voor de wasmachine en droger.
Tweede verdieping:
De tweede verdieping is bereikbaar via een vlizotrap. Hier bevindt zich de cv-ketel (Intergas HR, ca. 2011, eigendom) en een royale ruimte die geschikt is om extra kamers te realiseren door het plaatsen van een vaste trap.
Exterieur:
De gezellige overdekte patiotuin is een fijne plek om te ontspannen. De tuin beschikt over een vrije achterom en een stenen berging, ideaal voor het opbergen van fietsen en tuinspullen.
Bijzonderheden:
De woning is altijd met veel liefde bewoond door de huidige eigenaren. De kozijnen zijn deels van hout en deels van kunststof, grotendeels voorzien van dubbel glas en deels uitgerust met rolluiken. Daarnaast is de woning voorzien van dak- en spouwisolatie, 10 zonnepanelen en een airco in de aanbouw, wat resulteert in een energielabel B.
Ligging:
De woning is gelegen op loopafstand van het gezellige stadscentrum van Weert, met een breed aanbod aan winkels en horecagelegenheden. Ook het NS-Intercitystation bevindt zich op korte afstand. Verder is er een uitstekende verbinding naar de autosnelweg A2 (Maastricht - Eindhoven) en diverse uitvalswegen.
Interactief:
Kijk ook op onze Homevision site om de plattegronden van de woning te bekijken en interactief in te kunnen richten met uw eigen meubel opstelling.
+ Read more
- Read less
Construction: {{
product.build_year }}
Construction: {{ product.build_period.start }} -
{{ product.build_period.end }}
House
, Single-family house
{{ product.rooms }} rooms
{{ product.bedrooms
}} bedrooms
Living space: {{
product.living_space }} m²
Plot: {{
product.plot_surface }} m²
Energy class: {{ product.energy_class }}
Energy index: {{ product.energy_index }}
Characteristics
{{ field.label }}
{{ field.value }}
+ Read more
{{ field.label }}
{{ field.value }}
- Read less
{{ product.company.name }}
Contact us
{{ product.company.phone.replace('-', ' ').substr(0, 7) }}...
{{ product.company.phone.replace('-', ' ') }}
Share:
Date