Sold
€ {{ product.price.replace(/\B(?=(\d{4})+(?!\d))/g, ".") }} {{ __(product.price_condition) }}
Photo’s
{{ product.images.length }}
Floorplan
{{ product.plans.length }}
360° photo’s {{ product.panoramas.length }}
Video’s {{ product.videos.length }}
Maps
All media
House for sale Tromplaan 144 Weert
€ {{ product.price.replace(/\B(?=(\d{4})+(?!\d))/g, ".") }} {{ __(product.price_condition) }}
Sold
Description
Goed onderhouden en uitgebouwd halfvrijstaand woonhuis met o.a. een oprit die leidt naar de garage, alsmede een apart multifunctioneel vrijstaand bijgebouw/hobbyruimte, maar liefst 2 badkamers, 4 slaapkamers, een royale woonkamer en een complete keuken. Gelegen aan een rustige straat in de gewilde woonwijk Leuken op loopafstand van de dagelijkse voorzieningen, winkels, speeltuintje en nabij een school met kinderopvang. Ook het centrum van Weert is nabij gelegen!
Indeling:
Begane grond:
Ruime hal met de meterkast, de trapopgang naar de eerste verdieping en toegang tot de royale woonkamer. De woonkamer is strak afgewerkt en beschikt over een sfeervolle gashaard en biedt voldoende ruimte voor een royale zithoek en een eetgedeelte. De woonkamer is uitgerust met een fraaie massief eiken vloer. Middels een schuifpui is de achtertuin toegankelijk. In de aanbouw is de keuken gelegen welke is voorzien van de navolgende inbouwapparatuur; inductiekookplaat, afzuigkap, combi-oven, koelkast en een vaatwasser. Aangrenzend is een portaal gelegen met enerzijds toegang tot de moderne toiletruimte met zwevend toilet en fonteintje en anderzijds toegang tot de achtertuin.
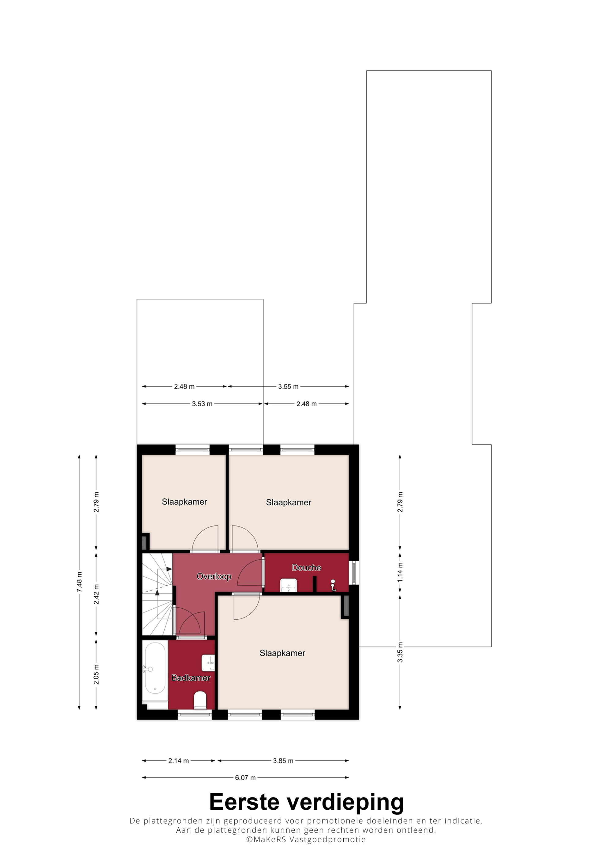
Eerste verdieping:
De overloop biedt toegang tot de eerste 3 slaapkamers en maar liefst 2 badkamers. De eerste badkamer is uitgerust met een ligbad, zwevend toilet en wastafel met meubel. De tweede badkamer beschikt over een inloopdouche en een wastafel met meubel. De eerste verdieping is grotendeels voorzien van een parketvloer.
Tweede verdieping:
Middels een vaste trap toegankelijke extra woonlaag met een 4e (zolder)kamer met een dakkapel en vaste kaste en een wastafel. Verder bevindt zich op deze verdieping de opstelling van de cv-ketel (Vaillant Ecotec Plus, ca. 2014, eigendom) en de witgoedaansluitingen.
Exterieur:
Er is een mooi aangelegde voortuin met een oprit dit leidt naar de garage. De garage met een tegelvloer beschikt over een lichtkoepel en openslaande garagedeuren. Middels een loopdeur is de achtertuin toegankelijk, alsmede een overkapping met toegang tot het multifunctioneel bijgebouw met hobbyruimte, welke voor diverse doeleinden geschikt is. Nu in gebruik als atelier. De achtertuin biedt verder naast de overkapping bestrating, borders en aanplant.
Bijzonderheden:
Deze degelijk gebouwde woning is de afgelopen jaren gemoderniseerd en verkeert in een zeer goede staat van onderhoud! Kozijnen zijn in deels kunststof en deels hout uitgevoerd met deels HR ++ glas. Tevens zijn nagenoeg alle ramen voorzien van rolluiken. Verder is er dak- en spouwisolatie aanwezig en beschikt de woning over 9 zonnepanelen (eigendom).
Ligging:
Gelegen in een rustige straat in de geliefde en kindvriendelijke woonwijk Leuken. De basisschool met kinderopvang (IKC Leuken) en het recent gebouwde uitgebreide wijkwinkelcentrum (met o.a. supermarkten Albert Heijn en Aldi) zijn op loopafstand gelegen. Verder zijn er in de buurt diverse speel-, sport- en groenvoorzieningen aanwezig. Binnen enkele minuten fietsen bevindt u zich in het centrum van Weert, alsmede het centraal station. Ook de A2 is binnen enkele minuten te bereiken.
Interactief:
Kijk ook op onze Homevision site om de plattegronden van de woning te bekijken en interactief in te kunnen richten met uw eigen meubel opstelling.
Indeling:
Begane grond:
Ruime hal met de meterkast, de trapopgang naar de eerste verdieping en toegang tot de royale woonkamer. De woonkamer is strak afgewerkt en beschikt over een sfeervolle gashaard en biedt voldoende ruimte voor een royale zithoek en een eetgedeelte. De woonkamer is uitgerust met een fraaie massief eiken vloer. Middels een schuifpui is de achtertuin toegankelijk. In de aanbouw is de keuken gelegen welke is voorzien van de navolgende inbouwapparatuur; inductiekookplaat, afzuigkap, combi-oven, koelkast en een vaatwasser. Aangrenzend is een portaal gelegen met enerzijds toegang tot de moderne toiletruimte met zwevend toilet en fonteintje en anderzijds toegang tot de achtertuin.
Eerste verdieping:
De overloop biedt toegang tot de eerste 3 slaapkamers en maar liefst 2 badkamers. De eerste badkamer is uitgerust met een ligbad, zwevend toilet en wastafel met meubel. De tweede badkamer beschikt over een inloopdouche en een wastafel met meubel. De eerste verdieping is grotendeels voorzien van een parketvloer.
Tweede verdieping:
Middels een vaste trap toegankelijke extra woonlaag met een 4e (zolder)kamer met een dakkapel en vaste kaste en een wastafel. Verder bevindt zich op deze verdieping de opstelling van de cv-ketel (Vaillant Ecotec Plus, ca. 2014, eigendom) en de witgoedaansluitingen.
Exterieur:
Er is een mooi aangelegde voortuin met een oprit dit leidt naar de garage. De garage met een tegelvloer beschikt over een lichtkoepel en openslaande garagedeuren. Middels een loopdeur is de achtertuin toegankelijk, alsmede een overkapping met toegang tot het multifunctioneel bijgebouw met hobbyruimte, welke voor diverse doeleinden geschikt is. Nu in gebruik als atelier. De achtertuin biedt verder naast de overkapping bestrating, borders en aanplant.
Bijzonderheden:
Deze degelijk gebouwde woning is de afgelopen jaren gemoderniseerd en verkeert in een zeer goede staat van onderhoud! Kozijnen zijn in deels kunststof en deels hout uitgevoerd met deels HR ++ glas. Tevens zijn nagenoeg alle ramen voorzien van rolluiken. Verder is er dak- en spouwisolatie aanwezig en beschikt de woning over 9 zonnepanelen (eigendom).
Ligging:
Gelegen in een rustige straat in de geliefde en kindvriendelijke woonwijk Leuken. De basisschool met kinderopvang (IKC Leuken) en het recent gebouwde uitgebreide wijkwinkelcentrum (met o.a. supermarkten Albert Heijn en Aldi) zijn op loopafstand gelegen. Verder zijn er in de buurt diverse speel-, sport- en groenvoorzieningen aanwezig. Binnen enkele minuten fietsen bevindt u zich in het centrum van Weert, alsmede het centraal station. Ook de A2 is binnen enkele minuten te bereiken.
Interactief:
Kijk ook op onze Homevision site om de plattegronden van de woning te bekijken en interactief in te kunnen richten met uw eigen meubel opstelling.
+ Read more
- Read less
Construction: {{
product.build_year }}
Construction: {{ product.build_period.start }} -
{{ product.build_period.end }}
House
, Single-family house
{{ product.rooms }} rooms
{{ product.bedrooms
}} bedrooms
Living space: {{
product.living_space }} m²
Plot: {{
product.plot_surface }} m²
Energy class: {{ product.energy_class }}
Energy index: {{ product.energy_index }}
Characteristics
{{ field.label }}
{{ field.value }}
+ Read more
{{ field.label }}
{{ field.value }}
- Read less
{{ product.company.name }}
Contact us
{{ product.company.phone.replace('-', ' ').substr(0, 7) }}...
{{ product.company.phone.replace('-', ' ') }}
Share:
Date