Sold
€ {{ product.price.replace(/\B(?=(\d{4})+(?!\d))/g, ".") }} {{ __(product.price_condition) }}
Photo’s
{{ product.images.length }}
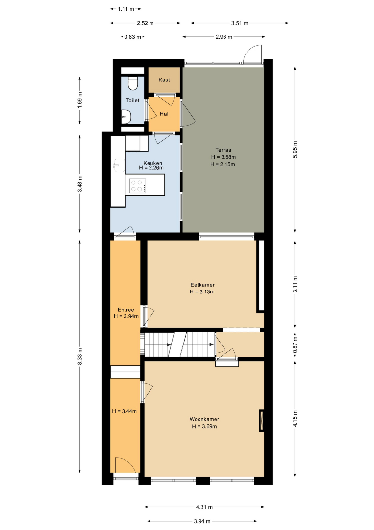
Floorplan
{{ product.plans.length }}
360° photo’s {{ product.panoramas.length }}
Video’s {{ product.videos.length }}
Maps
All media
House for sale Straelseweg 116 Venlo
€ {{ product.price.replace(/\B(?=(\d{4})+(?!\d))/g, ".") }} {{ __(product.price_condition) }}
Sold
Description
Nabij het centrum van Venlo, scholen en supermarkt gelegen nog af te werken tussenwoning met tuin op het zuidoosten met overdekt terras en tuinhuis.
Indeling:
Kelder.
Begane grond:
Entree met tegelvloer. Hangend toilet met fonteintje . Zitkamer met laminaatvloer en middels enkele treden te bereiken eetkamer met eveneens laminaatvloer. De aparte keuken is voorzien van houten aanrechtblad, spoelbak, en inbouwapparatuur zoals: 4-pits inductie kookplaat en afzuigkap. In de bijkeuken bevindt zich de aansluiting voor de wasmachine.
Eerste verdieping:
Overloop welke toegang biedt tot de twee slaapkamers met laminaatvloer. tussenkamer met houten vloer en aangrenzende badkamer. De badkamer is uitgerust met ligbad, douche, wastafel en een tweede toilet.
Tweede verdieping:
Middels vaste trap te bereiken zolderruimte met CV-opstelling (gehuurde HR Intergas met een huurprijs van €38,57 per maand).
Bijzonderheden: Bouwjaar: 1908. Perceeloppervlakte 175m2. Woonoppervlakte 120m2. Overige inpandige ruimte 16m2. Externe bergruimte 17m2. Gebouw gebonden buitenruimte 17m2. Inhoud woning 516m3.
De woning is voorzien van dakisolatie en grotendeels kunststof kozijnen met dubbele beglazing. Aanvaarding in overleg
Indeling:
Kelder.
Begane grond:
Entree met tegelvloer. Hangend toilet met fonteintje . Zitkamer met laminaatvloer en middels enkele treden te bereiken eetkamer met eveneens laminaatvloer. De aparte keuken is voorzien van houten aanrechtblad, spoelbak, en inbouwapparatuur zoals: 4-pits inductie kookplaat en afzuigkap. In de bijkeuken bevindt zich de aansluiting voor de wasmachine.
Eerste verdieping:
Overloop welke toegang biedt tot de twee slaapkamers met laminaatvloer. tussenkamer met houten vloer en aangrenzende badkamer. De badkamer is uitgerust met ligbad, douche, wastafel en een tweede toilet.
Tweede verdieping:
Middels vaste trap te bereiken zolderruimte met CV-opstelling (gehuurde HR Intergas met een huurprijs van €38,57 per maand).
Bijzonderheden: Bouwjaar: 1908. Perceeloppervlakte 175m2. Woonoppervlakte 120m2. Overige inpandige ruimte 16m2. Externe bergruimte 17m2. Gebouw gebonden buitenruimte 17m2. Inhoud woning 516m3.
De woning is voorzien van dakisolatie en grotendeels kunststof kozijnen met dubbele beglazing. Aanvaarding in overleg
+ Read more
- Read less
Construction: {{
product.build_year }}
Construction: {{ product.build_period.start }} -
{{ product.build_period.end }}
House
, Single-family house
{{ product.rooms }} rooms
{{ product.bedrooms
}} bedrooms
Living space: {{
product.living_space }} m²
Plot: {{
product.plot_surface }} m²
Energy class: {{ product.energy_class }}
Energy index: {{ product.energy_index }}
Characteristics
{{ field.label }}
{{ field.value }}
+ Read more
{{ field.label }}
{{ field.value }}
- Read less
{{ product.company.name }}
Contact us
{{ product.company.phone.replace('-', ' ').substr(0, 7) }}...
{{ product.company.phone.replace('-', ' ') }}
Share:
Date