Sold
€ {{ product.price.replace(/\B(?=(\d{4})+(?!\d))/g, ".") }} {{ __(product.price_condition) }}
Photo’s
{{ product.images.length }}
Floorplan
{{ product.plans.length }}
360° photo’s {{ product.panoramas.length }}
Video’s {{ product.videos.length }}
Maps
All media
House for sale Van Peltstraat 20 Valkenburg
€ {{ product.price.replace(/\B(?=(\d{4})+(?!\d))/g, ".") }} {{ __(product.price_condition) }}
Sold
Description
Laat je verrassen door de ruimte achter de gevel van Van Peltstraat 20! Deze charmante tussenwoning in het rustige en sfeervolle Houthem - Sint Gerlach (gemeente Valkenburg) biedt niet alleen 82 m² aan comfortabele woonoppervlakte, maar ook nog eens 52 m² extra gebruiksruimte in het ruime souterrain. Dit souterrain loopt over de volledige breedte van de woning en is voorzien van een deur die naar de tuin leidt – een echte bonus die de woning groter maakt dan je in eerste instantie zou verwachten. Combineer dat met een vrije ligging aan de achterzijde met uitzicht op weilanden, drie slaapkamers, een vaste trap naar de zolder en een tuin met achterom, en je hebt hier een woning die verrassend veel te bieden heeft voor wie op zoek is naar ruimte, rust én bereikbaarheid.
Leuk om te weten
- Bouwjaar: 1961 (conform BAG), perceel: 185 m² (conform kadaster);
- Woonoppervlakte woning: ca. 82 m² (NEN 2580 meetrapport aanwezig);
- Volledig onderkelderd ca. 52 m²
- Tuin en riant dakterras met vrije ligging aan de achterzijde;
- Energielabel D;
- Gelegen op loopafstand van station en centrum Valkenburg;
- Uitvalswegen op slechts 2 minuten rijden.
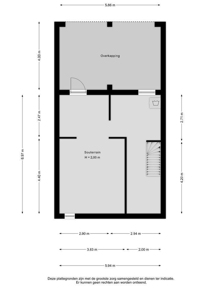
Souterrain:
Een echt pluspunt van deze woning is het volledige souterrain, bestaande uit meerdere ruimtes die naar eigen wens in te delen zijn.
De eerste kelderruimte (ca. 3,53 x 2,97 m) is voorzien van een aansluiting voor wasmachine en biedt voldoende plaats voor was- en bergruimte.
De tweede kelder (ca. 3,38 x 2,77 m) is ideaal als provisieruimte of hobbyruimte.
De derde, royale kelderruimte (ca. 3,71 x 4,25 m + 2,72 m + 2,88 m) beschikt over daglichttoetreding en heeft een directe toegang tot de tuin – perfect voor een praktijkruimte, werkplek of speelkamer.
Begane grond:
Via de nette voortuin bereik je de entree van de woning. De hal biedt toegang tot:
- De meterkast;
- Een keurige toiletruimte met fonteintje;
- De trap naar de verdieping;
- En uiteraard de woonkamer.
De lichte woonkamer van ca. 32 m² beschikt over een eet- en zitgedeelte en is afgewerkt met een moderne pvc-vloer. Vanuit de woonkamer is er open toegang tot de keuken, die is voorzien van een moderne keukenopstelling met koelkast, gaskookplaat, afzuigkap, oven en vaatwasser. Vanuit de keuken loop je zo het terras op van ca. 23 m² – een heerlijke plek om te genieten van het uitzicht over de tuin en de achterliggende weilanden.
Eerste verdieping:
Op de eerste verdieping bevinden zich drie fijne slaapkamers en een badkamer:
- Slaapkamer 1: ca. 2,92 x 2,72 m;
- Slaapkamer 2: ca. 2,85 x 3,95 m;
- Slaapkamer 3: ca. 2,97 x 3,78 m.
Alle slaapkamers zijn goed van formaat en voorzien van natuurlijke lichtinval. De badkamer is compact maar compleet met een douche, wastafel en toilet (afmeting ca. 1,99 x 1,88 m).
Zolder:
De zolderverdieping is bereikbaar via een vaste trap en biedt verrassend veel ruimte. Hier bevindt zich tevens de cv-installatie. Deze verdieping is uitermate geschikt als extra slaapkamer, hobbyruimte of opslag. Met een dakkapel of dakraam is de ruimte perfect uit te breiden.
Tuin:
De achtertuin is een oase van rust: met een terras direct achter de woning, een achterom en een open ligging aan weilandzijde. Hierdoor heb je volop privacy én een groen uitzicht. Hier kun je in alle rust genieten van het buitenleven, spelen met de kinderen of een gezellige barbecue houden met vrienden.
De waarborgsom/bankgarantie is 10% van de koopsom. De koper dient deze, indien de verkoper en koper dit overeenkomen, binnen 2 weken nadat het financieringsvoorbehoud is verlopen bij de desbetreffende notaris te deponeren.
Ter bescherming van de belangen van zowel koper als ook verkoper wordt uitdrukkelijk gesteld dat een koopovereenkomst met betrekking tot deze onroerende zaak eerst dan tot stand komt nadat koper en verkoper de koopovereenkomst hebben getekend (schriftelijkheidsvereiste).
Indien c.v. ketel en/of warmwatervoorziening een huurtoestel is, dient koper de huurovereenkomst over te nemen.
Alle door ons kantoor verstrekte informatie omtrent onroerende zaken, moet beschouwd worden als een uitnodiging om in onderhandeling te treden, en is geheel vrijblijvend! Alle vermelde maten en afmetingen zijn slechts bij benadering. Aan deze beperkte info kunnen geen rechten worden ontleend. Indien in enige documentatie of op enige website informatie staat die niet overeen komt met de werkelijkheid, dan geldt de feitelijke situatie waarin de woning zich bevindt, zoals koper deze tijdens de bezichtiging heeft kunnen waarnemen, en wordt de woning in deze feitelijke situatie/staat verkocht. Een (eventueel) bijgevoegde plattegrond dient uitsluitend als globale indicatie/visualisatie. Hieraan kunnen uitdrukkelijk geen rechten worden ontleend.
De makelaar Ray van der Venne nodigt u uit voor een bezichtiging.
Leuk om te weten
- Bouwjaar: 1961 (conform BAG), perceel: 185 m² (conform kadaster);
- Woonoppervlakte woning: ca. 82 m² (NEN 2580 meetrapport aanwezig);
- Volledig onderkelderd ca. 52 m²
- Tuin en riant dakterras met vrije ligging aan de achterzijde;
- Energielabel D;
- Gelegen op loopafstand van station en centrum Valkenburg;
- Uitvalswegen op slechts 2 minuten rijden.
Souterrain:
Een echt pluspunt van deze woning is het volledige souterrain, bestaande uit meerdere ruimtes die naar eigen wens in te delen zijn.
De eerste kelderruimte (ca. 3,53 x 2,97 m) is voorzien van een aansluiting voor wasmachine en biedt voldoende plaats voor was- en bergruimte.
De tweede kelder (ca. 3,38 x 2,77 m) is ideaal als provisieruimte of hobbyruimte.
De derde, royale kelderruimte (ca. 3,71 x 4,25 m + 2,72 m + 2,88 m) beschikt over daglichttoetreding en heeft een directe toegang tot de tuin – perfect voor een praktijkruimte, werkplek of speelkamer.
Begane grond:
Via de nette voortuin bereik je de entree van de woning. De hal biedt toegang tot:
- De meterkast;
- Een keurige toiletruimte met fonteintje;
- De trap naar de verdieping;
- En uiteraard de woonkamer.
De lichte woonkamer van ca. 32 m² beschikt over een eet- en zitgedeelte en is afgewerkt met een moderne pvc-vloer. Vanuit de woonkamer is er open toegang tot de keuken, die is voorzien van een moderne keukenopstelling met koelkast, gaskookplaat, afzuigkap, oven en vaatwasser. Vanuit de keuken loop je zo het terras op van ca. 23 m² – een heerlijke plek om te genieten van het uitzicht over de tuin en de achterliggende weilanden.
Eerste verdieping:
Op de eerste verdieping bevinden zich drie fijne slaapkamers en een badkamer:
- Slaapkamer 1: ca. 2,92 x 2,72 m;
- Slaapkamer 2: ca. 2,85 x 3,95 m;
- Slaapkamer 3: ca. 2,97 x 3,78 m.
Alle slaapkamers zijn goed van formaat en voorzien van natuurlijke lichtinval. De badkamer is compact maar compleet met een douche, wastafel en toilet (afmeting ca. 1,99 x 1,88 m).
Zolder:
De zolderverdieping is bereikbaar via een vaste trap en biedt verrassend veel ruimte. Hier bevindt zich tevens de cv-installatie. Deze verdieping is uitermate geschikt als extra slaapkamer, hobbyruimte of opslag. Met een dakkapel of dakraam is de ruimte perfect uit te breiden.
Tuin:
De achtertuin is een oase van rust: met een terras direct achter de woning, een achterom en een open ligging aan weilandzijde. Hierdoor heb je volop privacy én een groen uitzicht. Hier kun je in alle rust genieten van het buitenleven, spelen met de kinderen of een gezellige barbecue houden met vrienden.
De waarborgsom/bankgarantie is 10% van de koopsom. De koper dient deze, indien de verkoper en koper dit overeenkomen, binnen 2 weken nadat het financieringsvoorbehoud is verlopen bij de desbetreffende notaris te deponeren.
Ter bescherming van de belangen van zowel koper als ook verkoper wordt uitdrukkelijk gesteld dat een koopovereenkomst met betrekking tot deze onroerende zaak eerst dan tot stand komt nadat koper en verkoper de koopovereenkomst hebben getekend (schriftelijkheidsvereiste).
Indien c.v. ketel en/of warmwatervoorziening een huurtoestel is, dient koper de huurovereenkomst over te nemen.
Alle door ons kantoor verstrekte informatie omtrent onroerende zaken, moet beschouwd worden als een uitnodiging om in onderhandeling te treden, en is geheel vrijblijvend! Alle vermelde maten en afmetingen zijn slechts bij benadering. Aan deze beperkte info kunnen geen rechten worden ontleend. Indien in enige documentatie of op enige website informatie staat die niet overeen komt met de werkelijkheid, dan geldt de feitelijke situatie waarin de woning zich bevindt, zoals koper deze tijdens de bezichtiging heeft kunnen waarnemen, en wordt de woning in deze feitelijke situatie/staat verkocht. Een (eventueel) bijgevoegde plattegrond dient uitsluitend als globale indicatie/visualisatie. Hieraan kunnen uitdrukkelijk geen rechten worden ontleend.
De makelaar Ray van der Venne nodigt u uit voor een bezichtiging.
+ Read more
- Read less
Construction: {{
product.build_year }}
Construction: {{ product.build_period.start }} -
{{ product.build_period.end }}
House
, Single-family house
{{ product.rooms }} rooms
{{ product.bedrooms
}} bedrooms
Living space: {{
product.living_space }} m²
Plot: {{
product.plot_surface }} m²
Energy class: {{ product.energy_class }}
Energy index: {{ product.energy_index }}
Characteristics
{{ field.label }}
{{ field.value }}
+ Read more
{{ field.label }}
{{ field.value }}
- Read less
{{ product.company.name }}
Contact us
{{ product.company.phone.replace('-', ' ').substr(0, 7) }}...
{{ product.company.phone.replace('-', ' ') }}
Share:
Date