Available
€ {{ product.price.replace(/\B(?=(\d{4})+(?!\d))/g, ".") }} {{ __(product.price_condition) }}
Photo’s
{{ product.images.length }}
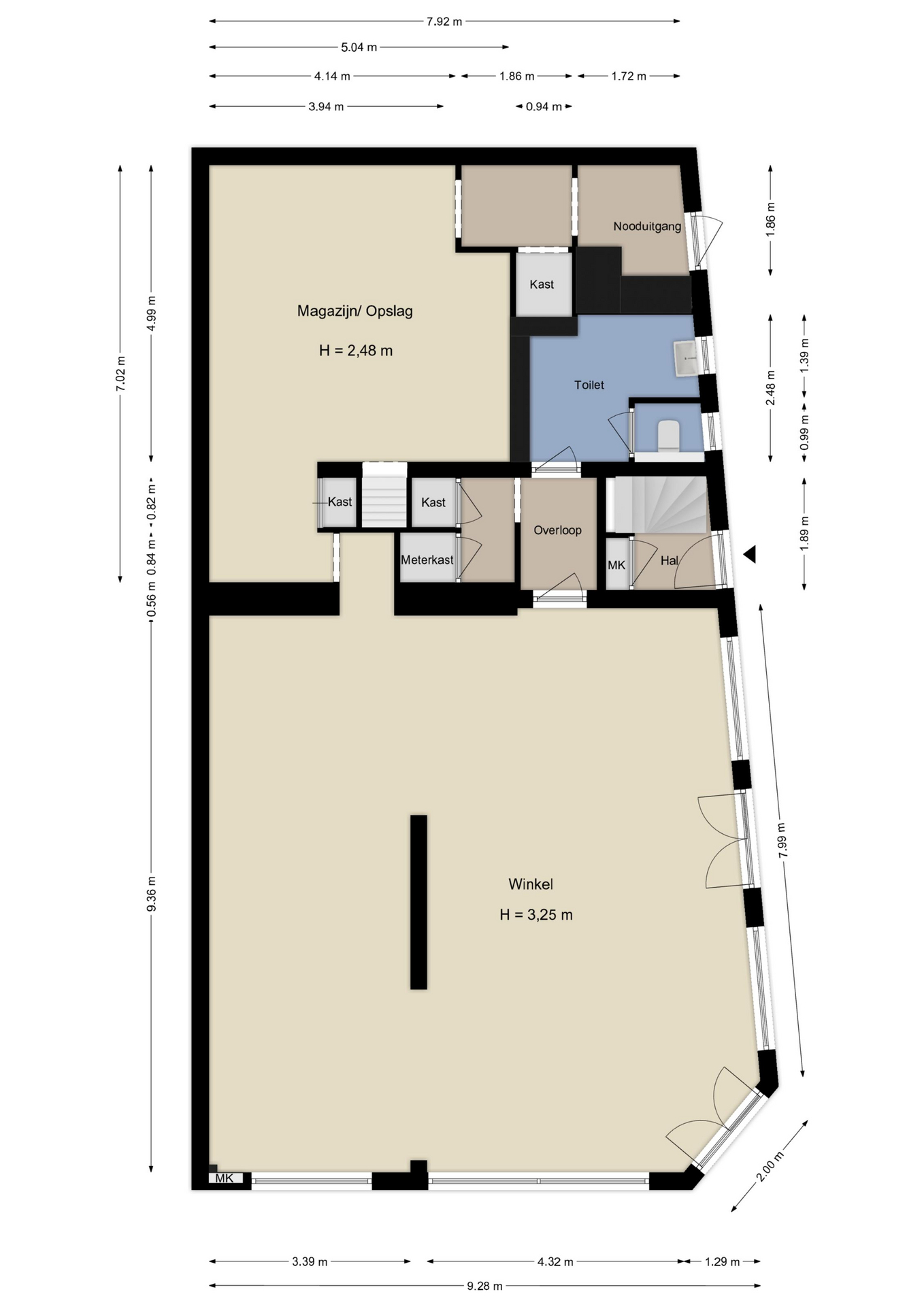
Floorplan
{{ product.plans.length }}
360° photo’s {{ product.panoramas.length }}
Video’s {{ product.videos.length }}
Maps
All media
House for sale Wilhelminalaan 42 Valkenburg
€ {{ product.price.replace(/\B(?=(\d{4})+(?!\d))/g, ".") }} {{ __(product.price_condition) }}
Available
Description
Dit riante beleggingspand heeft een horeca/winkelruimte op de begane grond en drie appartementen, twee studio's en twee kamers op de verdiepingen. Het pand ligt op een mooie zicht locatie op de hoek van de Wilhelminalaan en de Jan Deckerstraat, welke toegang geeft tot het centrumgebied. De voormalige restaurantruimte op de begane grond heeft een totale oppervlakte van 135m2 op de begane grond en er is nog een opslagkelder van 77m2. Het pand heeft een aparte zij-ingang, magazijn en toilet. De bruto huuropbrengst van de bovenverdiepingen bedraagt op jaarbasis € 43.068,-.
Voor meer informatie kunt u contact opnemen met de heer R. Last van ons kantoor.
Datum van oplevering:
Op korte termijn mogelijk.
Bestemmingsplan:
Informatie inzake de gebruiksmogelijkheden en voorschriften is te krijgen bij de gemeente Valkenburg a/d Geul of via de website www.ruimtelijkeplannen.nl.
Zekerheidsstelling:
De waarborgsom/bankgarantie is 10% van de koopsom. De koper dient deze binnen 2 weken na de wilsovereenkomst bij de betreffende notaris te deponeren.
Vastlegging:
De koopakte wordt opgesteld volgens model VBO.
Onderzoeksplicht:
Koper is ten alle tijde gerechtigd voor eigen rekening en risico nader onderzoek te laten verrichten door hem in te schakelen adviseurs.
Oplevering:
Het pand zal op de begane grond leeg en ontruimd worden opgeleverd. De appartementen in verhuurde staat.
Disclaimer:
Alle door ons kantoor verstrekte informatie omtrent onroerende zaken, moet beschouwd worden als een uitnodiging om in onderhandeling te treden, en is geheel vrijblijvend! Alle vermelde maten en afmetingen zijn slechts bij benadering. Aan deze beperkte informatie kunnen geen rechten worden ontleend. Indien in enige documentatie of op enige website informatie staat die niet overeen komt met de werkelijkheid, dan geldt de feitelijke situatie waarin het perceel zich bevindt, zoals koper deze tijdens de bezichtiging heeft kunnen waarnemen, en wordt het perceel in deze feitelijke situatie/staat verkocht. Een (eventueel) bijgevoegde plattegrond dient uitsluitend als globale indicatie/visualisatie. Hieraan kunnen uitdrukkelijk geen rechten worden ontleend.
Voor meer informatie kunt u contact opnemen met de heer R. Last van ons kantoor.
Datum van oplevering:
Op korte termijn mogelijk.
Bestemmingsplan:
Informatie inzake de gebruiksmogelijkheden en voorschriften is te krijgen bij de gemeente Valkenburg a/d Geul of via de website www.ruimtelijkeplannen.nl.
Zekerheidsstelling:
De waarborgsom/bankgarantie is 10% van de koopsom. De koper dient deze binnen 2 weken na de wilsovereenkomst bij de betreffende notaris te deponeren.
Vastlegging:
De koopakte wordt opgesteld volgens model VBO.
Onderzoeksplicht:
Koper is ten alle tijde gerechtigd voor eigen rekening en risico nader onderzoek te laten verrichten door hem in te schakelen adviseurs.
Oplevering:
Het pand zal op de begane grond leeg en ontruimd worden opgeleverd. De appartementen in verhuurde staat.
Disclaimer:
Alle door ons kantoor verstrekte informatie omtrent onroerende zaken, moet beschouwd worden als een uitnodiging om in onderhandeling te treden, en is geheel vrijblijvend! Alle vermelde maten en afmetingen zijn slechts bij benadering. Aan deze beperkte informatie kunnen geen rechten worden ontleend. Indien in enige documentatie of op enige website informatie staat die niet overeen komt met de werkelijkheid, dan geldt de feitelijke situatie waarin het perceel zich bevindt, zoals koper deze tijdens de bezichtiging heeft kunnen waarnemen, en wordt het perceel in deze feitelijke situatie/staat verkocht. Een (eventueel) bijgevoegde plattegrond dient uitsluitend als globale indicatie/visualisatie. Hieraan kunnen uitdrukkelijk geen rechten worden ontleend.
+ Read more
- Read less
Construction: {{
product.build_year }}
Construction: {{ product.build_period.start }} -
{{ product.build_period.end }}
House
, Mansion
{{ product.rooms }} rooms
{{ product.bedrooms
}} bedrooms
Living space: {{
product.living_space }} m²
Plot: {{
product.plot_surface }} m²
Energy class: {{ product.energy_class }}
Energy index: {{ product.energy_index }}
Characteristics
{{ field.label }}
{{ field.value }}
+ Read more
{{ field.label }}
{{ field.value }}
- Read less
{{ product.company.name }}
Contact us
{{ product.company.phone.replace('-', ' ').substr(0, 7) }}...
{{ product.company.phone.replace('-', ' ') }}
Share:
Date