Available
€ {{ product.price.replace(/\B(?=(\d{4})+(?!\d))/g, ".") }} {{ __(product.price_condition) }}
Photo’s
{{ product.images.length }}
Floorplan
{{ product.plans.length }}
360° photo’s {{ product.panoramas.length }}
Video’s {{ product.videos.length }}
Maps
All media
House for sale Torenstraat 43 Urmond
€ {{ product.price.replace(/\B(?=(\d{4})+(?!\d))/g, ".") }} {{ __(product.price_condition) }}
Available
Description
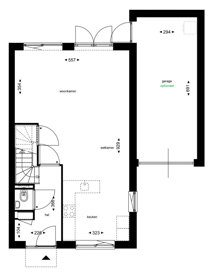
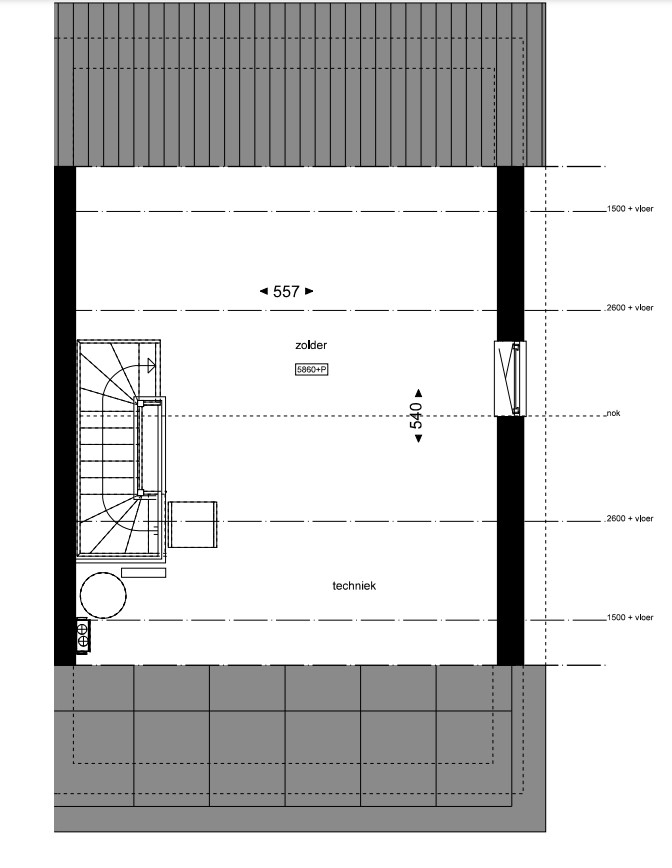
Nabij het buitengebied gelegen, nog te realiseren ruime zeer energiezuinige (verwacht energielabel A++++) twee-onder-een-kap woning (ca. 122m² woonoppervlakte) met aan de voorzijde vrij uitzicht op het Julianakanaal. Indeling: woonkamer met open keuken, 1ste verdieping: 3 slaapkamers en casco badkamer, vaste trap naar casco 2de verdieping met mogelijkheid realisatie 4de slaapkamer/berging/technische ruimte. Perceelgrootte 262 m² waardoor de achtertuin ca. 20 m. diep is.
Start bouw zomer 2023. LET OP: GOOGLE MAPS KAART WIJKT AF, ZIE BIJGEVOEGDE LUCHTFOTO VOOR DE JUISTE LOCATIE.
Kenmerkend voor deze ruime moderne comfortabele woning: ligging in Oud-Urmond in een leuke rustige nieuwbouwwijk, uitstekend isolatiepakket, 24 zonnepanelen i.c.m. een warmtepomp dus zéér lage maandelijkse energielasten.
Start bouw zomer 2023. LET OP: GOOGLE MAPS KAART WIJKT AF, ZIE BIJGEVOEGDE LUCHTFOTO VOOR DE JUISTE LOCATIE.
Kenmerkend voor deze ruime moderne comfortabele woning: ligging in Oud-Urmond in een leuke rustige nieuwbouwwijk, uitstekend isolatiepakket, 24 zonnepanelen i.c.m. een warmtepomp dus zéér lage maandelijkse energielasten.
+ Read more
- Read less
Construction: {{
product.build_year }}
Construction: {{ product.build_period.start }} -
{{ product.build_period.end }}
House
, Single-family house
{{ product.rooms }} rooms
{{ product.bedrooms
}} bedrooms
Living space: {{
product.living_space }} m²
Plot: {{
product.plot_surface }} m²
Energy class: {{ product.energy_class }}
Energy index: {{ product.energy_index }}
Characteristics
{{ field.label }}
{{ field.value }}
+ Read more
{{ field.label }}
{{ field.value }}
- Read less
{{ product.company.name }}
Contact us
{{ product.company.phone.replace('-', ' ').substr(0, 7) }}...
{{ product.company.phone.replace('-', ' ') }}
Share:
Date