Sold
€ {{ product.price.replace(/\B(?=(\d{4})+(?!\d))/g, ".") }} {{ __(product.price_condition) }}
Photo’s
{{ product.images.length }}
Floorplan
{{ product.plans.length }}
360° photo’s {{ product.panoramas.length }}
Video’s {{ product.videos.length }}
Maps
All media

House for sale Vindelsweg 17 Tegelen

€ {{ product.price.replace(/\B(?=(\d{4})+(?!\d))/g, ".") }} {{ __(product.price_condition) }}
Sold

Description

Sfeervol woongenot in deze bijzonder charmante halfvrijstaande jaren '30 woning met een diepe tuin mét eigen oprit én garage! Het geheel is de afgelopen jaren gemoderniseerd én verduurzaamd (o.a. 10 zonnepanelen, triple glas en een compleet isolatiepakket!) en biedt  o.a. een ruime L-vormige woonkamer, een gezellige open keuken, een riante bijkeuken/hobbykamer (ook te gebruiken als thuiswerkplek), een vernieuwde, luxe badkamer en 4 slaapkamers op de 1e verdieping. De vrijstaande garage met oprit, 2 overkappingen en de diepe, groene achtertuin mét privacy en een vrije achterom maken het totaal helemaal af! 

Indeling:

Souterrain:
Praktische provisiekelder.

Begane grond (voorzien van een plavuizenvloer met vloerverwarming):
Bij binnenkomst in de hal/entree wordt u meteen omarmd door de warmte en gezelligheid van dit huis. De hal geeft toegang tot het moderne zwevende toilet alsmede naar de sfeervolle en ruime L-vormige woonkamer met veel lichtinval met tevens toegang tot de terrasoverkapping en de diepe tuin. Aangrenzend bevindt zich de open keuken, uitgevoerd met een combinatie in 2 delen met inbouwapparatuur, waaronder een inductiekookplaat, afzuigkap, combi oven, close-in boiler, een koel-/vriescombinatie en een aansluiting voor een vaatwasser. Zeer praktisch is vanuit de keuken de kelder te bereiken. De keuken leidt tevens naar een tussenhal met bijkeuken gedeelte met witgoedaansluitingen. Deze L-vormige ruimte is ruim genoeg om ook als thuiswerkplek of hobbyruimte te gebruiken. Vanuit de bijkeuken is een 2e overkapping en de tuin te bereiken en is er een extra deur naar een extra entree aan de voorzijde. De gehele begane grond met uitzondering van de bijkeuken is voorzien van vloerverwarming.

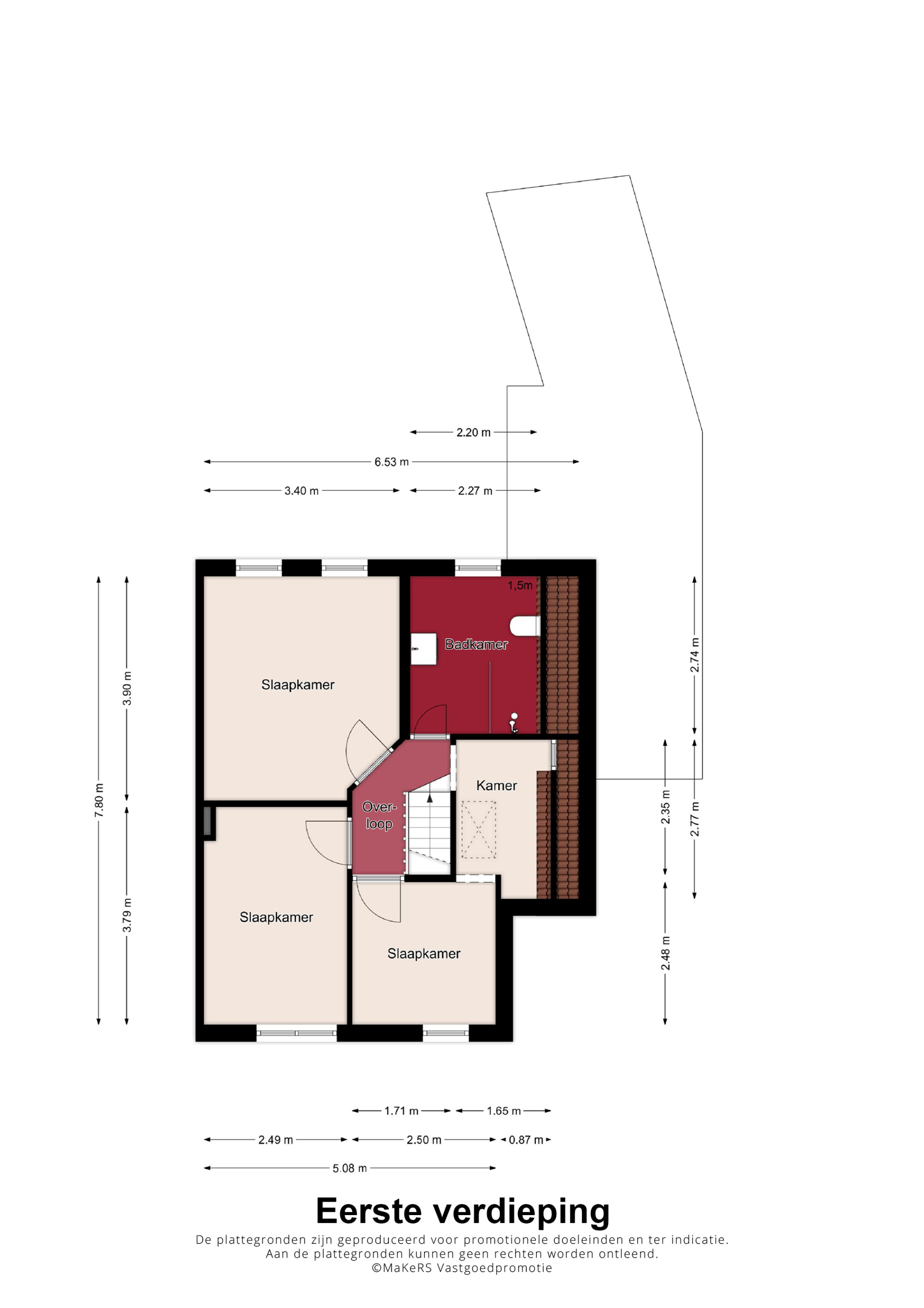
Eerste verdieping (grotendeels voorzien van een laminaatvloer):
Via de overloop bereikt u 4 slaapkamers (3 ruime en 1 kleine) en de vernieuwde badkamer (2020). De badkamer is voorzien van een inloopdouche, wastafel met meubel, zwevend toilet en een design radiator. 

Tweede verdieping:
De tweede verdieping is bereikbaar via een vlizotrap en biedt een praktische bergzolder, ideaal voor het opbergen van al uw spullen. Ook is hier de CV-combi ketel gesitueerd (Remeha Tzerra HR, 2015, eigendom).

Exterieur:
Er is een voortuin met een extra entree aan de voorzijde en een diepe, zonnige achtertuin met heel verrassend aan de achterzijde van de tuin een brede achterom mét een eigen oprit en garage! De tuin is een heerlijke plek om tot rust te komen en biedt een ruim terras met een tweetal overkappingen, gazon, diverse beplanting en biedt veel privacy!

Bijzonderheden:
Deze charmante woning met een heerlijke sfeer is goed onderhouden, gemoderniseerd én verduurzaamd met een compleet modern isolatiepakket met vloerisolatie, spouwisolatie en dakisolatie. Kozijnen zijn in hoogwaardig kunststof uitgevoerd met o.a. Triple glas (HR+++ ). De 10 zonnepanelen maken het geheel af. De basis is zo ook gelegd om eventueel in de toekomst een warmtepomp te installeren. Energielabel C.

Ligging:
Gelegen in een kindvriendelijke en rustige woonomgeving in Tegelen (gemeente Venlo), op loopafstand van alle dagelijkse voorzieningen, waaronder scholen, winkels, sportverenigingen, natuurgebied en nabij het centrum van Tegelen. Ook het NS-station is zelfs op loopafstand gelegen. De uitvalswegen A73 en A67 zijn binnen enkele autominuten te bereiken!

Interactief:
Kijk ook op onze Homevision site om de plattegronden van de woning te bekijken en interactief in te richten met uw eigen meubelopstelling.
+ Read more
- Read less
Construction: {{ product.build_year }}
Construction: {{ product.build_period.start }} - {{ product.build_period.end }}
House , Single-family house
{{ product.rooms }} rooms
{{ product.bedrooms }} bedrooms
Living space: {{ product.living_space }} m²
Plot: {{ product.plot_surface }} m²
Energy class:    {{ product.energy_class }}
Energy index: {{ product.energy_index }}

Characteristics

{{ field.label }}
{{ field.value }}

{{ field.label }}
{{ field.value }}
{{ product.company.name }}
Contact us
{{ product.company.phone.replace('-', ' ').substr(0, 7) }}...
{{ product.company.phone.replace('-', ' ') }}
Share:

Similar objects in the neighborhood