Sold
Price on request
Photo’s
{{ product.images.length }}
Floorplan
{{ product.plans.length }}
360° photo’s {{ product.panoramas.length }}
Video’s {{ product.videos.length }}
Maps
All media

House for sale Boutestraat 16 Swalmen

Price on request
Sold

Description

Bent u op zoek naar een locatie voor een bouwproject of droomhuis? Dan is dit object aan de Boutestraat 16 in Swalmen de perfecte kans! Dit ruime perceel van ca. 430 m² biedt u de vrijheid om uw vernieuwbouwplannen te verwezenlijken. Het pand wordt te koop aangeboden in de huidige staat (sloopwoning). De koper is verantwoordelijk voor de sloop, maar met reeds vergunde bouwtekeningen in de hand, kunt u direct aan de slag met uw eigen droomwoning. De plannen zijn goedgekeurd en bieden volop ruimte en mogelijkheden.

Indeling (op basis van vergunde tekeningen):

Begane grond:
Royale hal met meterkast en toegang tot een ruime woonkeuken. Deze diente nog helemaal naar eigen smaak samengesteld te worden. Verder biedt de begane grond de mogelijkheid voor een gelijkvloerse slaapkamer met badkamer ensuite, een riante woonkamer met openslaande tuindeuren naar de tuin, een praktische berging en een toiletruimte. Vanuit de hal is er de mogelijkheid een loopdeur naar de tuin.

Eerste verdieping:
overloop, slaapkamer twee en drie, de tweede badkamer en een berging waar de witgoedaansluitingen gerealiseerd kunnen worden.

Tweede verdieping:
Een riante bergzolder biedt extra opbergruimte of ruimte voor eventuele uitbreiding.

Exterieur:
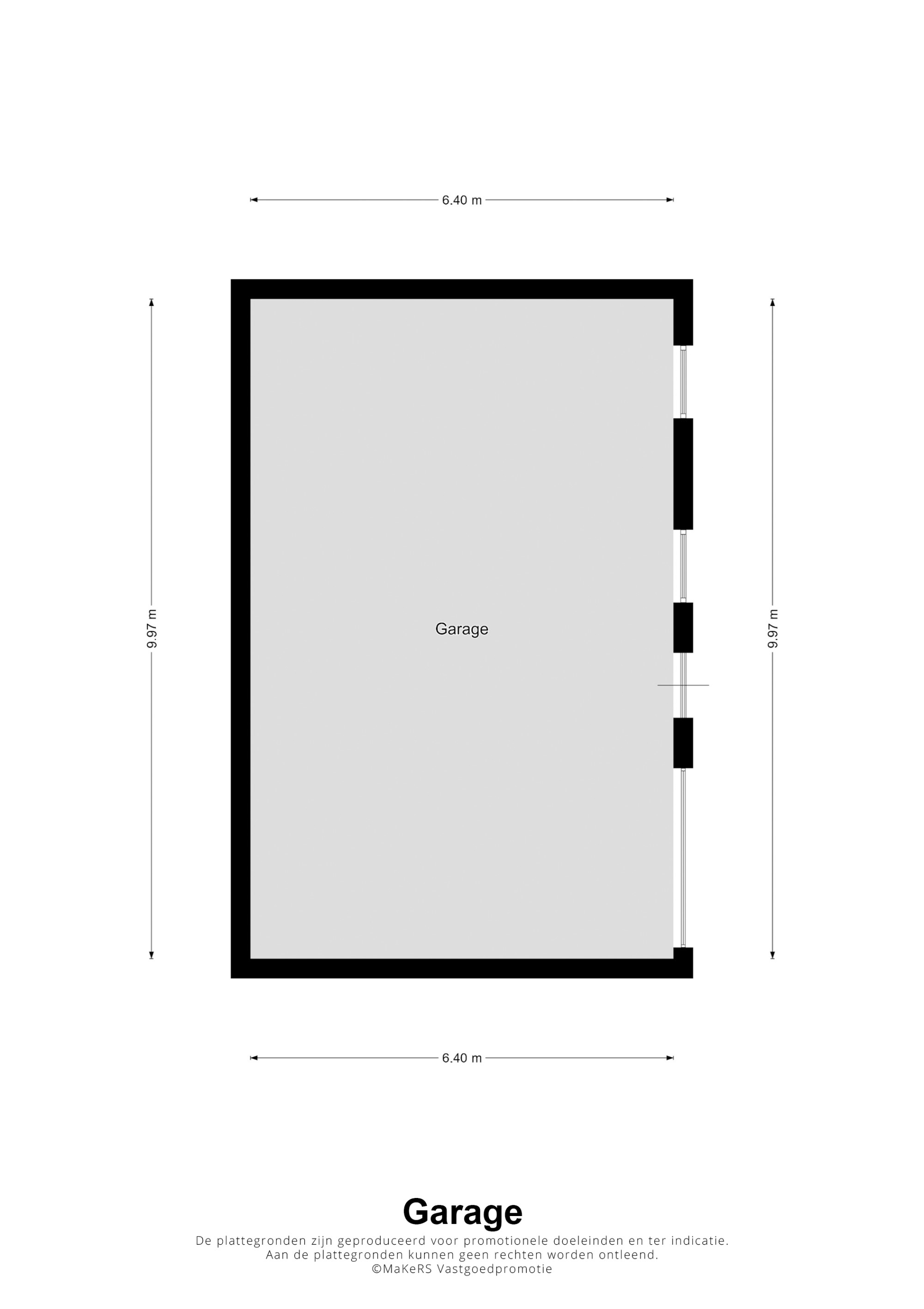
De vrijstaande garage op het perceel is al deels opnieuw opgebouwd, maar moet nog verder worden afgebouwd. De oprit aan de linkerzijde is gemeenschappelijk om te komen en te gaan naar de garage. De garage biedt na realisatie plaats aan meerdere voertuigen en de tuin wacht nog op verdere aanleg naar eigen smaak en invulling.

Bijzonderheden:
Deze locatie biedt een unieke kans om een woning volledig naar uw eigen wensen te realiseren, met alle ruimte die u nodig heeft voor comfort en luxe. Grijp deze kans en bouw uw droomhuis op deze prachtige locatie in Swalmen! Leuk detail: de aanwezige bouwmaterialen worden ter overname aangeboden. Het pand wordt niet gebruikt en dient gesloopt te worden. Het pand is niet bewoond door de verkoper en hier dient dan ook rekening mee gehouden te worden. De bouwvergunning is in 2020 afgegeven doch koper is zelf voor actualisering verantwoordelijk, alsmede voor eventuele andere onderzoeken of vergunningen indien benodigd.

Ligging:
De ligging van de woning is gunstig direct aan het centrum met diverse voorzieningen op loopafstand en daarnaast op korte afstand van het treinstation en met een goede bereikbaarheid ten opzichte van uitvalswegen. Swalmen is een sfeervol dorp gelegen in de gemeente Roermond, midden in de prachtige provincie Limburg. Bekend om zijn landelijke charme en groene omgeving, biedt Swalmen een rustige woonplek met veel ruimte voor ontspanning en natuurbeleving. Het dorp wordt omringd door uitgestrekte bossen, pittoreske weilanden en de rivier de Swalm, wat het ideaal maakt voor liefhebbers van wandelen, fietsen en buitenactiviteiten.
Ondanks de landelijke ligging beschikt Swalmen over alle benodigde voorzieningen, zoals winkels, scholen, en sportfaciliteiten. Daarnaast is het dorp uitstekend verbonden met de nabijgelegen stad Roermond, waar je kunt genieten van een breed scala aan winkels, restaurants en culturele activiteiten.
+ Read more
- Read less
Construction: {{ product.build_year }}
Construction: {{ product.build_period.start }} - {{ product.build_period.end }}
House , Single-family house
{{ product.rooms }} rooms
{{ product.bedrooms }} bedrooms
Living space: {{ product.living_space }} m²
Plot: {{ product.plot_surface }} m²
Energy class:    {{ product.energy_class }}
Energy index: {{ product.energy_index }}

Characteristics

{{ field.label }}
{{ field.value }}

{{ field.label }}
{{ field.value }}
{{ product.company.name }}
Contact us
{{ product.company.phone.replace('-', ' ').substr(0, 7) }}...
{{ product.company.phone.replace('-', ' ') }}
Share:

Similar objects in the neighborhood