Sold
€ {{ product.price.replace(/\B(?=(\d{4})+(?!\d))/g, ".") }} {{ __(product.price_condition) }}
Photo’s
{{ product.images.length }}
Floorplan
{{ product.plans.length }}
360° photo’s {{ product.panoramas.length }}
Video’s {{ product.videos.length }}
Maps
All media
House for sale Keulsebaan 7 Roermond
€ {{ product.price.replace(/\B(?=(\d{4})+(?!\d))/g, ".") }} {{ __(product.price_condition) }}
Sold
Description
Deze verrassend ruime tussenwoning combineert een praktische indeling met fijne buitenruimte en een rustige, centrale ligging. De woning beschikt over een zonnige tuin op het zuidoosten met een overkapping, drie volwaardige slaapkamers, een complete badkamer en een eigen garage. Dankzij de functionele basis, kunststof kozijnen, zonnepanelen en rolluiken is er veel comfort aanwezig. Een fijne woning met volop mogelijkheden om het geheel verder naar eigen wens in te richten.
Indeling:
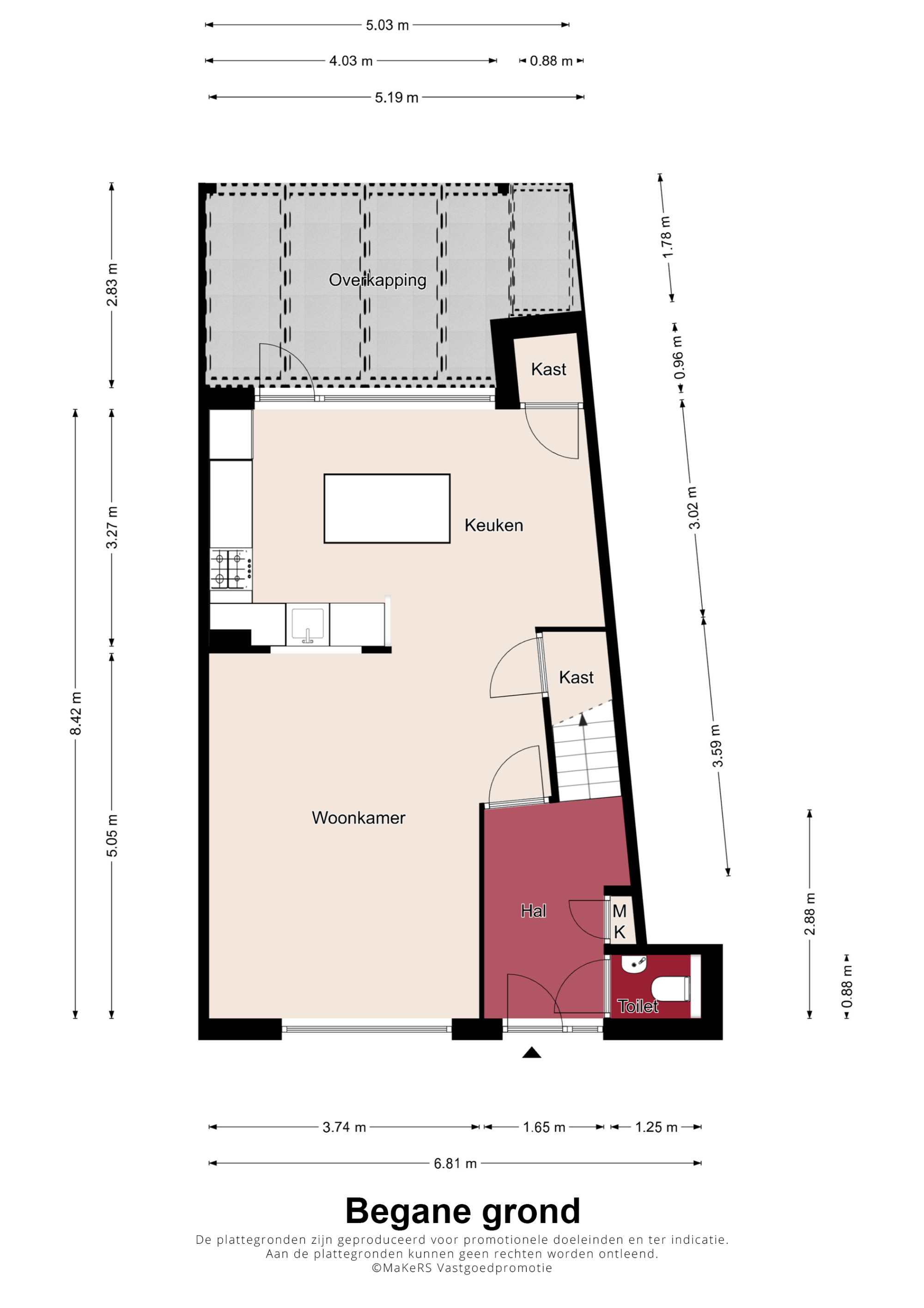
Begane grond:
De woning betreed je via een ruime hal met meterkast, trapopgang en een toiletruimte voorzien van een zwevend toilet en fonteintje. De doorzonwoonkamer heeft een prettige lichtinval en beschikt over een handige trapkast. De open keuken is geplaatst in een hoekopstelling met centraal keukeneiland en ingericht met een gasfornuis, afzuigkap en een losse vaatwasser. Vanuit de keuken leidt een deur direct naar de achtertuin. De leefruimte is praktisch van opzet en biedt een goede basis voor diverse woonwensen. De begane grond is afgewerkt met een siergrindvloer.
Eerste verdieping:
Op de eerste verdieping bevinden zich drie slaapkamers van goed formaat, waarvan twee met ingebouwde muurkast. De ruime badkamer is betegeld en voorzien van een ligbad, douche, toilet en wastafel. Op de overloop bevindt zich een aparte kast met aansluitingen voor wasmachine en droger.
Tweede verdieping:
Via een vlizotrap is de zolder bereikbaar. Deze verdieping biedt volop ruimte voor opslag en huisvest de Nefit Ecomline HR cv-installatie (circa 2006, eigendom).
Exterieur:
De voortuin is verzorgd aangelegd en geeft de woning een nette uitstraling. De achtertuin ligt op het zuidoosten en biedt dankzij de aluminium overkapping een beschutte plek om van het buitenleven te genieten. De tuin is grotendeels bestraat en onderhoudsvriendelijk ingericht. Achterin bevindt zich een vrijstaande berging en via de voorzijde is er toegang tot een eigen garagebox.
Bijzonderheden:
De woning is voorzien van kunststof kozijnen met dubbele beglazing en beschikt over rolluiken, waarvan een deel elektrisch bedienbaar is. Het dak is geïsoleerd en op het dak zijn 8 zonnepanelen geplaatst, wat bijdraagt aan een lagere energierekening. De woning beschikt over een keurig label B. Voor de verwarming is een Nefit Ecomline HR cv-ketel aanwezig (circa 2006, eigendom). Deze ruime woning biedt volop mogelijkheden voor verdere modernisering naar eigen inzicht.
Ligging:
De woning is gunstig gelegen aan een buurtweg in een woonwijk met goede bereikbaarheid. Een bushalte ligt op korte loopafstand en ook de uitvalswegen A73 en N280 zijn snel te bereiken. In de nabije omgeving zijn diverse voorzieningen aanwezig zoals winkels, scholen, sportfaciliteiten en recreatiegebieden. De Maasplassen en Nationaal Park De Meinweg liggen op korte afstand, ideaal voor ontspanning in de natuur.
Interactief:
Kijk ook op onze Homevision site om de plattegronden van de woning te bekijken en interactief in te richten met uw eigen meubelopstelling.
Indeling:
Begane grond:
De woning betreed je via een ruime hal met meterkast, trapopgang en een toiletruimte voorzien van een zwevend toilet en fonteintje. De doorzonwoonkamer heeft een prettige lichtinval en beschikt over een handige trapkast. De open keuken is geplaatst in een hoekopstelling met centraal keukeneiland en ingericht met een gasfornuis, afzuigkap en een losse vaatwasser. Vanuit de keuken leidt een deur direct naar de achtertuin. De leefruimte is praktisch van opzet en biedt een goede basis voor diverse woonwensen. De begane grond is afgewerkt met een siergrindvloer.
Eerste verdieping:
Op de eerste verdieping bevinden zich drie slaapkamers van goed formaat, waarvan twee met ingebouwde muurkast. De ruime badkamer is betegeld en voorzien van een ligbad, douche, toilet en wastafel. Op de overloop bevindt zich een aparte kast met aansluitingen voor wasmachine en droger.
Tweede verdieping:
Via een vlizotrap is de zolder bereikbaar. Deze verdieping biedt volop ruimte voor opslag en huisvest de Nefit Ecomline HR cv-installatie (circa 2006, eigendom).
Exterieur:
De voortuin is verzorgd aangelegd en geeft de woning een nette uitstraling. De achtertuin ligt op het zuidoosten en biedt dankzij de aluminium overkapping een beschutte plek om van het buitenleven te genieten. De tuin is grotendeels bestraat en onderhoudsvriendelijk ingericht. Achterin bevindt zich een vrijstaande berging en via de voorzijde is er toegang tot een eigen garagebox.
Bijzonderheden:
De woning is voorzien van kunststof kozijnen met dubbele beglazing en beschikt over rolluiken, waarvan een deel elektrisch bedienbaar is. Het dak is geïsoleerd en op het dak zijn 8 zonnepanelen geplaatst, wat bijdraagt aan een lagere energierekening. De woning beschikt over een keurig label B. Voor de verwarming is een Nefit Ecomline HR cv-ketel aanwezig (circa 2006, eigendom). Deze ruime woning biedt volop mogelijkheden voor verdere modernisering naar eigen inzicht.
Ligging:
De woning is gunstig gelegen aan een buurtweg in een woonwijk met goede bereikbaarheid. Een bushalte ligt op korte loopafstand en ook de uitvalswegen A73 en N280 zijn snel te bereiken. In de nabije omgeving zijn diverse voorzieningen aanwezig zoals winkels, scholen, sportfaciliteiten en recreatiegebieden. De Maasplassen en Nationaal Park De Meinweg liggen op korte afstand, ideaal voor ontspanning in de natuur.
Interactief:
Kijk ook op onze Homevision site om de plattegronden van de woning te bekijken en interactief in te richten met uw eigen meubelopstelling.
+ Read more
- Read less
Construction: {{
product.build_year }}
Construction: {{ product.build_period.start }} -
{{ product.build_period.end }}
House
, Single-family house
{{ product.rooms }} rooms
{{ product.bedrooms
}} bedrooms
Living space: {{
product.living_space }} m²
Plot: {{
product.plot_surface }} m²
Energy class: {{ product.energy_class }}
Energy index: {{ product.energy_index }}
Characteristics
{{ field.label }}
{{ field.value }}
+ Read more
{{ field.label }}
{{ field.value }}
- Read less
{{ product.company.name }}
Contact us
{{ product.company.phone.replace('-', ' ').substr(0, 7) }}...
{{ product.company.phone.replace('-', ' ') }}
Share:
Date