Sold
€ {{ product.price.replace(/\B(?=(\d{4})+(?!\d))/g, ".") }} {{ __(product.price_condition) }}
Photo’s
{{ product.images.length }}
Floorplan
{{ product.plans.length }}
360° photo’s {{ product.panoramas.length }}
Video’s {{ product.videos.length }}
Maps
All media
House for sale De Steeg 2 Posterholt
€ {{ product.price.replace(/\B(?=(\d{4})+(?!\d))/g, ".") }} {{ __(product.price_condition) }}
Sold
Description
Deze landelijke woonboerderij is heerlijk rustig gelegen aan een doodlopend straatje "De Steeg". De ruime woonboerderij met kapschuur is op loopafstand van het dorpscentrum van Posterholt gelegen met al haar voorzieningen! De woning beschikt over een zeer ruime en prachtig aangelegde achtertuin met een extra berging, 3 slaapkamers, woonkamer, eetkamer, werkkamer, gelijkvloerse slaapkamer, badkamer, Landelijke keuken en een fijne terrasoverkapping.
Droomt u ook van zo'n heerlijk landelijk plekje!
Indeling:
Kelder:
Zeer riante kelderruimte, welke als provisieruimte en berging te gebruiken is.
Begane grond:
De royale hal biedt via een hardhouten trap met vide toegang tot de eerste verdieping, de toiletruimte met zwevend toilet en fonteintje, meterkast, werkkamer, badkamer, eetkamer, keuken en de woonkamer. De sfeervolle woonkamer met rustiek balkenplafond, beschikt over een schouw met een houtkachel en biedt voldoende ruimte voor een apart eet- en zitgedeelte. Vanuit de woonkamer is er een luik naar de praktische provisiekelder. Via de hal en door de gezellige eetkamer (thans muziekkamer) met potkachel heeft men toegang tot de ruime slaapkamer op de begane grond. De dichte landelijk keuken is voorzien van een moderne combinatie met een 4-pitsgaskookplaat, afzuigkap, vaatwasser, oven met grillfunctie, combimagnetron en koelkast en geeft een heerlijk zicht op de fraaie tuin en een loopdeur naar de overkapping. Aan de voorzijde van de woning is de werkkamer, welke een heerlijke thuiswerkplek is. Vanuit de hal bereikt men tevens de inpandige badkamer, welke uitgerust is met een inloopdouche, wastafel met meubel en een designradiator. Via de overkapping is de inpandige berging te bereiken met de cv opstelling (Valliant ca. 2019 eigendom) en de witgoedaansluitingen.
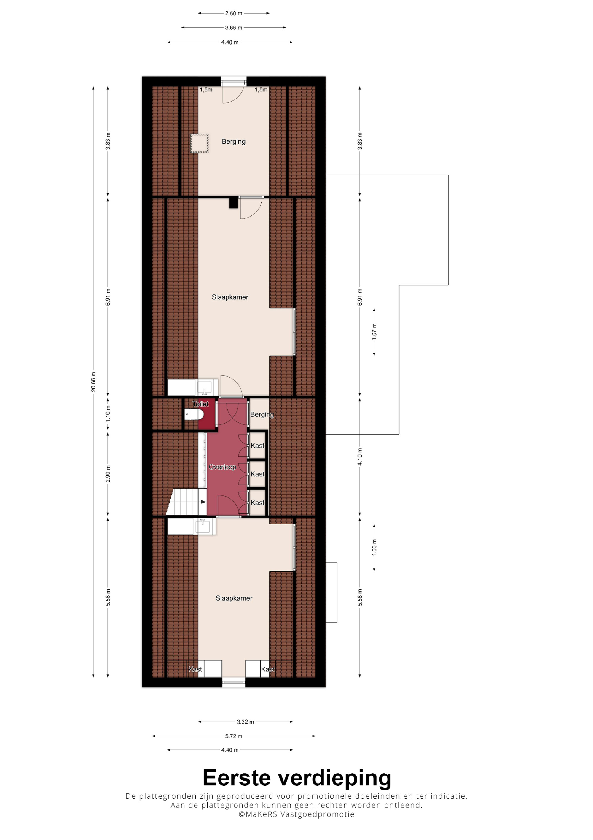
Eerste verdieping:
Overloop/vide met vaste kasten wand, welke toegang geeft tot 2 zeer ruime slaapkamers. Via slaapkamer 2 is tevens de voormalige hooizolder te bereiken, welke nu in gebruik is als zolderruimte. Beide slaapkamers beschikken over een wastafel met meubel op de kamer.
Exterieur:
De riante tuin achter de woning is voorzien van een achterom via een dubbele hekwerk, meerdere terrassen, een overkapping, riant gazon en diverse borders met aanplant. De zeer royale kapschuur met berging is voorzien van 16 stuks zonnepanelen (eigendom) en biedt ruimte aan meerdere auto's. Daarnaast is er nog een praktische extra berging voor de opslag van tuinspullen of het opkweken van planten. Het is natuurlijk ook een handige klus/werkruimte voor de hobbyist of doe-het-zelver.
Bijzonderheden:
Deze woonboerderij verkeert in goede staat van onderhoud. Kozijnen zijn zowel in hout als kunststof uitgevoerd met dubbel glas. Het vernieuwde dak is geïsoleerd (circa 2017). Door de ruimte en indeling is deze woning voor meerdere doeleinden geschikt. Het energielabel voor deze woning betreft een label D. Er is glasvezelinternet mogelijk, deze ligt in de straat.
Ligging:
Het pand is gelegen aan diverse ANWB fietsroutes in het groene Posterholt, kastelen, nabij natuur, een natuurreservaat én de Duitse grens. Roermond en de A73 zijn bereikbaar binnen ca. 15 minuten. Posterholt heeft verder alle basisvoorzieningen zoals winkels, school, sportfaciliteiten en daarbij een rijk verenigingsleven! Verder centraal ten opzichte van alle voorzieningen in Posterholt en de directe grensstreek: o.a. scholen, fitnesscentrum, een indoor
Interactief:
Kijk ook op onze Homevision website om de plattegronden van de woning te bekijken en interactief in te kunnen richten met uw eigen meubel opstelling.
Droomt u ook van zo'n heerlijk landelijk plekje!
Indeling:
Kelder:
Zeer riante kelderruimte, welke als provisieruimte en berging te gebruiken is.
Begane grond:
De royale hal biedt via een hardhouten trap met vide toegang tot de eerste verdieping, de toiletruimte met zwevend toilet en fonteintje, meterkast, werkkamer, badkamer, eetkamer, keuken en de woonkamer. De sfeervolle woonkamer met rustiek balkenplafond, beschikt over een schouw met een houtkachel en biedt voldoende ruimte voor een apart eet- en zitgedeelte. Vanuit de woonkamer is er een luik naar de praktische provisiekelder. Via de hal en door de gezellige eetkamer (thans muziekkamer) met potkachel heeft men toegang tot de ruime slaapkamer op de begane grond. De dichte landelijk keuken is voorzien van een moderne combinatie met een 4-pitsgaskookplaat, afzuigkap, vaatwasser, oven met grillfunctie, combimagnetron en koelkast en geeft een heerlijk zicht op de fraaie tuin en een loopdeur naar de overkapping. Aan de voorzijde van de woning is de werkkamer, welke een heerlijke thuiswerkplek is. Vanuit de hal bereikt men tevens de inpandige badkamer, welke uitgerust is met een inloopdouche, wastafel met meubel en een designradiator. Via de overkapping is de inpandige berging te bereiken met de cv opstelling (Valliant ca. 2019 eigendom) en de witgoedaansluitingen.
Eerste verdieping:
Overloop/vide met vaste kasten wand, welke toegang geeft tot 2 zeer ruime slaapkamers. Via slaapkamer 2 is tevens de voormalige hooizolder te bereiken, welke nu in gebruik is als zolderruimte. Beide slaapkamers beschikken over een wastafel met meubel op de kamer.
Exterieur:
De riante tuin achter de woning is voorzien van een achterom via een dubbele hekwerk, meerdere terrassen, een overkapping, riant gazon en diverse borders met aanplant. De zeer royale kapschuur met berging is voorzien van 16 stuks zonnepanelen (eigendom) en biedt ruimte aan meerdere auto's. Daarnaast is er nog een praktische extra berging voor de opslag van tuinspullen of het opkweken van planten. Het is natuurlijk ook een handige klus/werkruimte voor de hobbyist of doe-het-zelver.
Bijzonderheden:
Deze woonboerderij verkeert in goede staat van onderhoud. Kozijnen zijn zowel in hout als kunststof uitgevoerd met dubbel glas. Het vernieuwde dak is geïsoleerd (circa 2017). Door de ruimte en indeling is deze woning voor meerdere doeleinden geschikt. Het energielabel voor deze woning betreft een label D. Er is glasvezelinternet mogelijk, deze ligt in de straat.
Ligging:
Het pand is gelegen aan diverse ANWB fietsroutes in het groene Posterholt, kastelen, nabij natuur, een natuurreservaat én de Duitse grens. Roermond en de A73 zijn bereikbaar binnen ca. 15 minuten. Posterholt heeft verder alle basisvoorzieningen zoals winkels, school, sportfaciliteiten en daarbij een rijk verenigingsleven! Verder centraal ten opzichte van alle voorzieningen in Posterholt en de directe grensstreek: o.a. scholen, fitnesscentrum, een indoor
Interactief:
Kijk ook op onze Homevision website om de plattegronden van de woning te bekijken en interactief in te kunnen richten met uw eigen meubel opstelling.
+ Read more
- Read less
Construction: {{
product.build_year }}
Construction: {{ product.build_period.start }} -
{{ product.build_period.end }}
House
, Farmhouse
{{ product.rooms }} rooms
{{ product.bedrooms
}} bedrooms
Living space: {{
product.living_space }} m²
Plot: {{
product.plot_surface }} m²
Energy class: {{ product.energy_class }}
Energy index: {{ product.energy_index }}
Characteristics
{{ field.label }}
{{ field.value }}
+ Read more
{{ field.label }}
{{ field.value }}
- Read less
{{ product.company.name }}
Contact us
{{ product.company.phone.replace('-', ' ').substr(0, 7) }}...
{{ product.company.phone.replace('-', ' ') }}
Share:
Date