Sold
€ {{ product.price.replace(/\B(?=(\d{4})+(?!\d))/g, ".") }} {{ __(product.price_condition) }}
Photo’s
{{ product.images.length }}
Floorplan
{{ product.plans.length }}
360° photo’s {{ product.panoramas.length }}
Video’s {{ product.videos.length }}
Maps
All media

House for sale Hoge Notte 67 Nederweert

€ {{ product.price.replace(/\B(?=(\d{4})+(?!\d))/g, ".") }} {{ __(product.price_condition) }}
Sold

Description

Een riant vrijstaand woonhuis in de leukste straat van Nederweert!

Zeer goed onderhouden energiezuinige woning met grote aanpandige garage, 4 slaapkamers en heerlijke tuin. De woning is gelegen op een unieke locatie van de wijk 'Kerneel' in Nederweert!
Gehele woning is volledig geïsoleerd vanuit de bouw in 2005, v.v. hardhouten kozijnen met isolatie-glas en nagenoeg alle ramen met rolluiken. De begane grond is grotendeels v.v. vloerverwarming.
In totaal zijn er maar liefst 20 zonnepanelen geplaatst.
Vanuit de woning een uitstekende verbinding naar autosnelweg A2 Maastricht – Eindhoven.

Indeling

Begane grond

Vanuit de grote brede oprit, met grote carport en garage, toegang tot de centrale hal.

Heerlijk lichte ontvangsthal met uitgebreide meterkast, en toiletruimte en houten trap naar de eerste verdieping.
Deur naar de royale woonkamer met veel natuurlijk daglicht vanwege de vele raampartijen aan de voor-, zij- en achterkant. De woonkamer is voorzien van een airco, vloerverarming en gashaard. In de woonkamer heb je schitterend vrij uitzicht.

Zowel vanuit de eetkamer als de open keuken heb je toegang tot de sfeervolle tuin.
De keuken is voorzien van een inductiekookplaat, afzuigkap, koelkast, heteluchtoven, magnetron, vaatwasser en een quooker!

Vanuit de keuken toegang tot een handige bijkeuken en garage beide voorzien van keukenblok. Garage met tegelvloer en een afzuigkap.

Eerste verdieping

Deze eerste verdieping biedt 2 ruime slaapkamers met airco en een aparte inloopkast.
De master bedroom beschikt over een eigen balkon met prachtig uitzicht.

Complete badkamer met ligbad, dubbele wastafel, grote inloopdouche en designradiator.
Op de overloop is een separate toiletruimte gesitueerd.

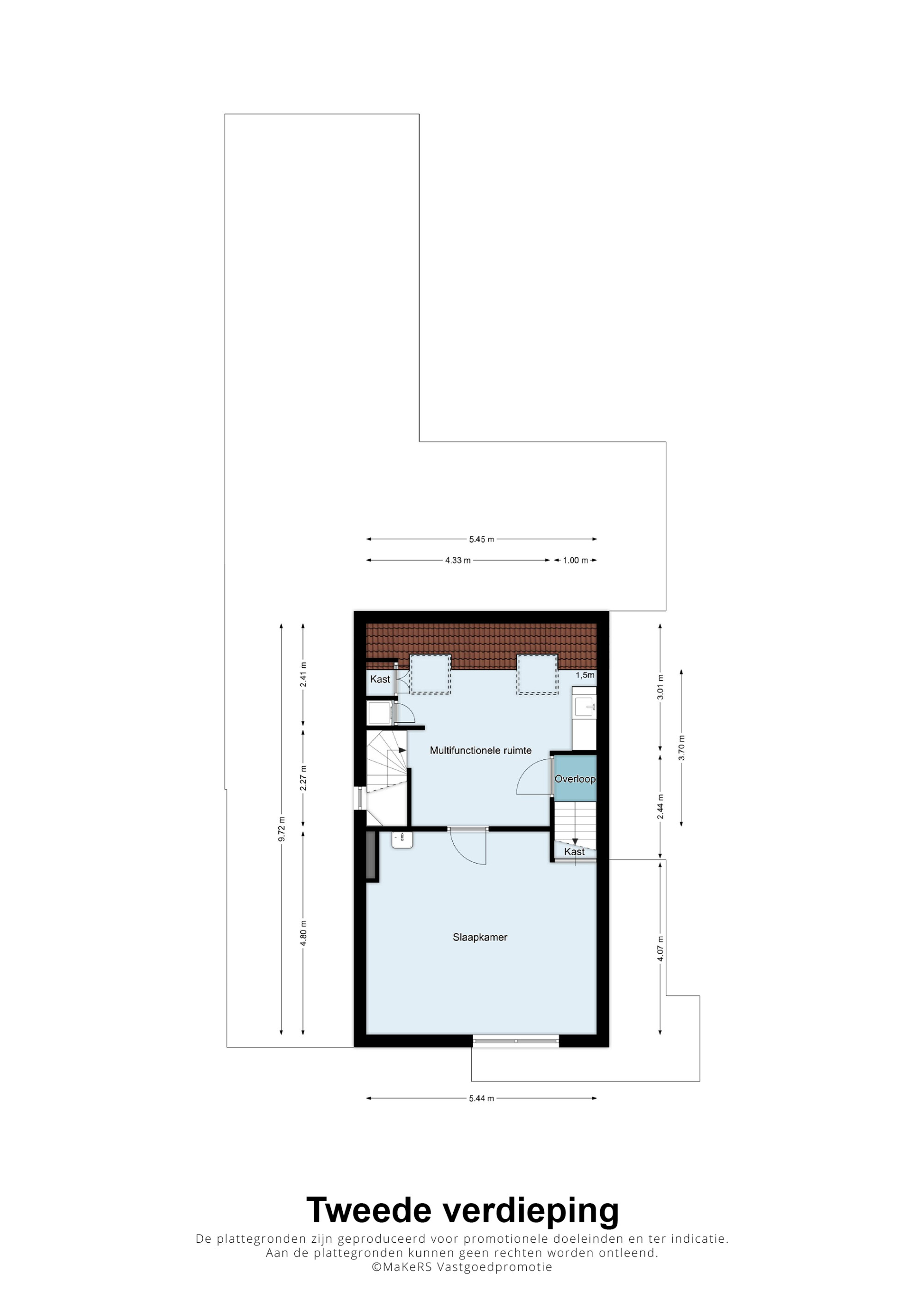
Tweede verdieping

Via een vaste trap naar de tweede verdieping.
Hier is een centrale ruimte met toegang tot een royale slaapkamer. De centrale ruimte is voor diverse doeleinden geschikt, slaapkamer, hobbykamer of wasruimte. De wasmachine en drogeraansluitingen zijn hier in een nette inbouwkast aanwezig.
De naastgelegen slaapkamer beschikt over een eigen wastafelmeubel.

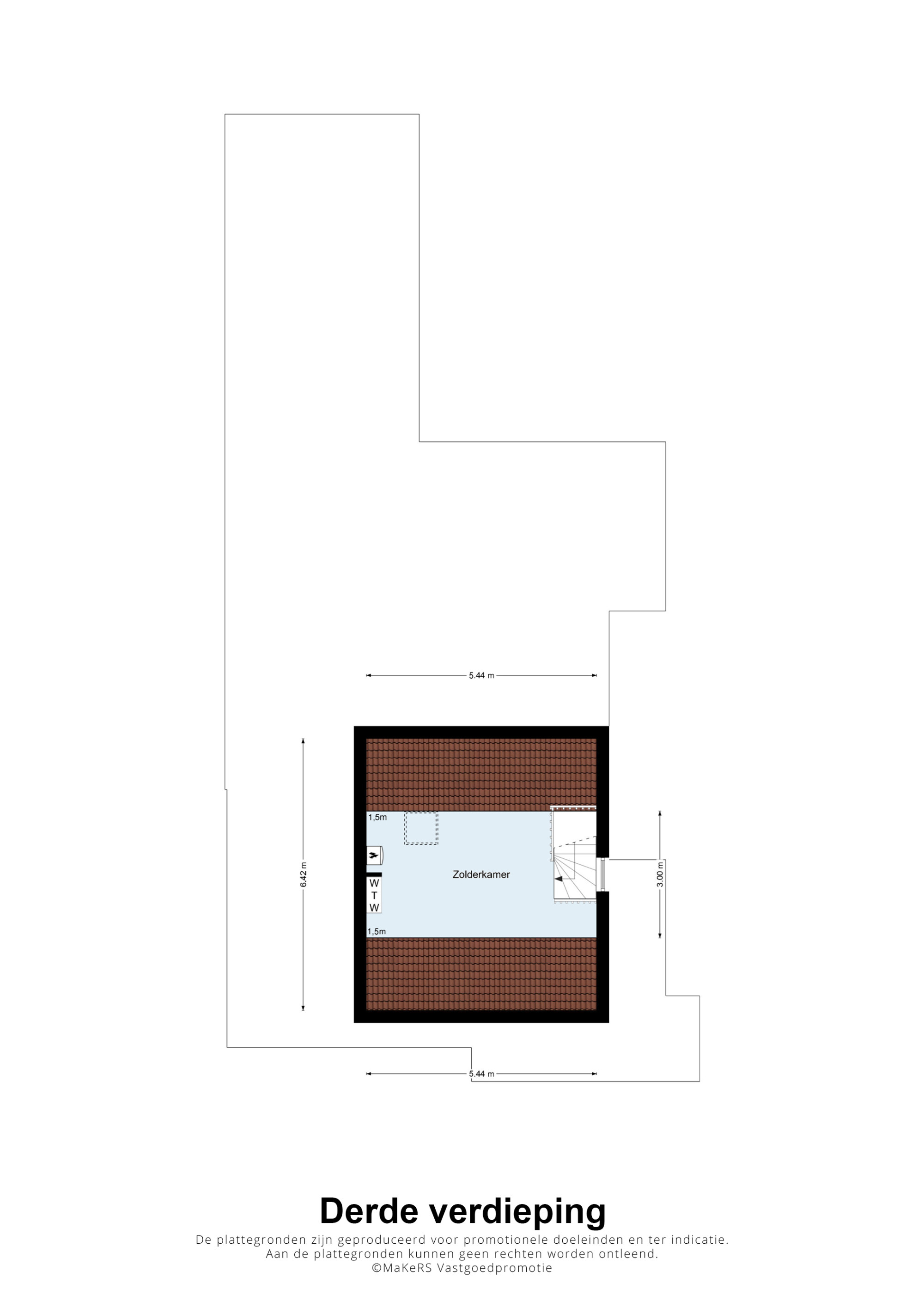
Derde verdieping

De derde verdieping met WTW installatie en Nefit HR Ketel (2019) is bereikbaar via een vaste trap. Deze ruimte biedt de mogelijkheid om een extra slaapkamer te realiseren.

Buitenruimte

Sfeervolle aangelegde tuin voorzien van een tweetal ruime overkappingen en terrassen. Geïsoleerd in spouw uitgevoerd praktisch tuinhuis voorzien van boiler ten behoeve van de heerlijke buitendouche.
Er is een vrije achterom aanwezig.

Highlights van de Hoge Notte 67:

Volledig geïsoleerde royale woning
Gelegen op een unieke hoeklocatie in Nederweert
Gehele woning is zeer goed onderhouden
Gecoate dakpannen met over de gehele nok anti duivenpinnen
Hardhouten kozijnen met rolluiken en HR++-isolatieglas
Maar liefst 20 zonnepanelen
3 airconditioners
Nefit HR ketel uit 2019
WTW-installatie
4 slaapkamers met mogelijkheid tot 5!
+ Read more
- Read less
Construction: {{ product.build_year }}
Construction: {{ product.build_period.start }} - {{ product.build_period.end }}
House , Single-family house
{{ product.rooms }} rooms
{{ product.bedrooms }} bedrooms
Living space: {{ product.living_space }} m²
Plot: {{ product.plot_surface }} m²
Energy class:    {{ product.energy_class }}
Energy index: {{ product.energy_index }}

Characteristics

{{ field.label }}
{{ field.value }}

{{ field.label }}
{{ field.value }}
{{ product.company.name }}
Contact us
{{ product.company.phone.replace('-', ' ').substr(0, 7) }}...
{{ product.company.phone.replace('-', ' ') }}
Share:

Similar objects in the neighborhood