Available
€ {{ product.price.replace(/\B(?=(\d{4})+(?!\d))/g, ".") }} {{ __(product.price_condition) }}
Photo’s
{{ product.images.length }}
Floorplan
{{ product.plans.length }}
360° photo’s {{ product.panoramas.length }}
Video’s {{ product.videos.length }}
Maps
All media
House for sale Brusselseweg 406 Maastricht
€ {{ product.price.replace(/\B(?=(\d{4})+(?!\d))/g, ".") }} {{ __(product.price_condition) }}
Available
Description
DEZE WONING WORDT AANGEBODEN DOOR POOTERS MAKELAARDIJ
Zeer ruime halfvrijstaande woning voorzien van een woonkamer, keuken, badkamer, 4 slaapkamers, een zolderberging en een royale tuin met vijverpartij. De woning beschikt tevens over een oprit (met parkeermogelijkheid voor 3 auto's) en een vrijstaande garage.
Indeling:
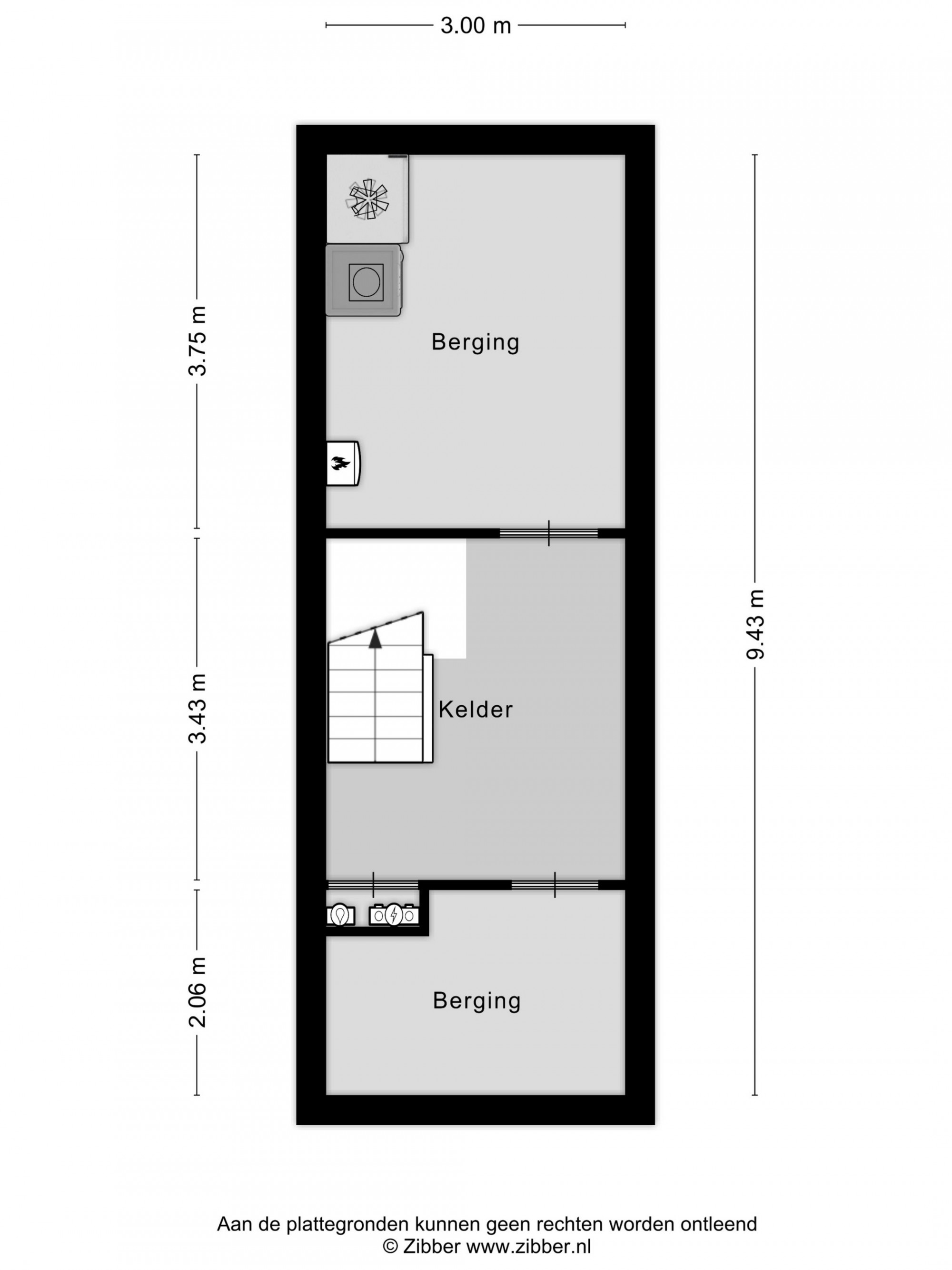
Souterrain:
Stahoog souterrain verdeelt in 3 ruimtes van respectievelijk 11m², 10m² en 6m². Op deze verdieping is de meterkast en c.v. installatie geplaatst en zijn de aansluitingen voor de wasmachine.
Begane grond:
Entree/hal met marmeren vloer en toegang naar het toilet met fonteintje. De woonkamer is verdeelt in een zit- en eetgedeelte. Het eetgedeelte (16m²) is aan de voorzijde van de woning gelegen. Het zitgedeelte (20m²) is voorzien van een sierhaard, inbouwkast en biedt toegang naar de achtertuin middels riante schuifpui. Op de vloer ligt vloerbedekking. De gesloten keuken (11m²) in hoekopstelling is zeer ruim en uitgerust met de volgende (inbouw)apparatuur, te weten: 5-pits gasfornuis met afzuigkap, oven, koelkast, vaatwasser (2023) en een spoelbak.
De royale achtertuin, gesitueerd op het oosten, geniet van veel privacy en beschikt over een vijverpartij en veel groen. De garage (19m²) is bereikbaar vanuit de achtertuin en oprit en is voorzien van een elektrische sectionaalpoort, water en elektra.
Eerste verdieping:
Royale overloop (9m²) met toegang naar 4 slaapkamers en de badkamer. De ouderslaapkamer/slaapkamer 1 (15m²) is voorzien van een muurkast en ligt net als slaapkamer 2 (11m²) aan de achterzijde met uitzicht over de tuin. Beide slaapkamers hebben toegang naar een balkon middels openslaande deur. Slaapkamer 2 beschikt over een eigen vaste wastafel. Slaapkamer 3 (10m²) en slaapkamer 4 (13m²) liggen beiden aan de voorzijde van de woning. Vanuit slaapkamer 3 is het balkon aan de voorzijde te bereiken en slaapkamer 4 is voorzien van een vaste wastafel en inbouwkast. Volledig betegelde badkamer (4m²) met een inloopdouche, vaste wastafel in ombouwmeubel en een 2e toilet.
Tweede verdieping:
Via vlizotrap te bereiken ruime zolderberging (39m²) met twee dakramen en een nokhoogte van ± 3 meter. Mogelijkheid creëren extra slaapkamers. Hier is de geiser geplaatst t.b.v. het warm water in de badkamer.
Extra informatie:
- De woning is netjes onderhouden. Modernisering wenselijk
- Voorzien van houten kozijnen met deels dubbele beglazing.
- Verwarming en warm water wordt verkregen middels combiketel (Atag; bj 2022; huur). € 40,82 per maand. Er is eveneens een gasgeiser aanwezig t.b.v. het warme water in de badkamer (Nefit; bj 2018; huur) € 32,35 per maand.
- Veel parkeergelegenheid op eigen terrein.
- Alarminstallatie aanwezig.
- Mogelijkheid creëren extra slaapkamers op tweede verdieping.
- Dak- en spouwmuurisolatie aanwezig.
- Definitief energielabel 'C'.
Algemene informatie:
De woning is op steenworp afstand van het winkelcentrum 'Brusselsepoort' en loopafstand naar het stadscentrum. Eveneens gelegen in de nabijheid van scholen, huisarts, appotheek en openbaar vervoer. Autosnelwegen richting Eindhoven/Luik en Heerlen/Aken zijn goed te bereiken.
Ter bescherming van de belangen van zowel koper als verkoper, wordt uitdrukkelijk gesteld dat een koopovereenkomst met betrekking tot deze onroerende zaak eerst dan tot stand komt nadat koper en verkoper de koopovereenkomst hebben getekend ("schriftelijkheidsvereiste"). De termijn die wordt opgenomen voor eventuele (overeengekomen) ontbindende voorwaarden (bv. Financiering) is in de regel 4 tot 6 weken na het sluiten van de mondelinge wilsovereenkomst. De waarborgsom/bankgarantie is 10% van de koopsom. De koper dient deze 2 weken ná het vervallen van de ontbindende voorwaarden bij de desbetreffende notaris te deponeren.
Koper is te allen tijde gerechtigd voor eigen rekening een bouwkundige keuring te (laten) verrichten dan wel andere adviseurs te raadplegen teneinde een goed inzicht te verkrijgen over de staat van onderhoud.
Bovenstaande vrijblijvende informatie is door Pooters Makelaardij met de nodige zorgvuldigheid samengesteld. Echter aanvaard Pooters Makelaardij geen enkele aansprakelijkheid voor enige onvolledigheid, onjuistheid of anderszins, dan wel de gevolgen daarvan. Oppervlakten en maten zijn indicatief.
Zeer ruime halfvrijstaande woning voorzien van een woonkamer, keuken, badkamer, 4 slaapkamers, een zolderberging en een royale tuin met vijverpartij. De woning beschikt tevens over een oprit (met parkeermogelijkheid voor 3 auto's) en een vrijstaande garage.
Indeling:
Souterrain:
Stahoog souterrain verdeelt in 3 ruimtes van respectievelijk 11m², 10m² en 6m². Op deze verdieping is de meterkast en c.v. installatie geplaatst en zijn de aansluitingen voor de wasmachine.
Begane grond:
Entree/hal met marmeren vloer en toegang naar het toilet met fonteintje. De woonkamer is verdeelt in een zit- en eetgedeelte. Het eetgedeelte (16m²) is aan de voorzijde van de woning gelegen. Het zitgedeelte (20m²) is voorzien van een sierhaard, inbouwkast en biedt toegang naar de achtertuin middels riante schuifpui. Op de vloer ligt vloerbedekking. De gesloten keuken (11m²) in hoekopstelling is zeer ruim en uitgerust met de volgende (inbouw)apparatuur, te weten: 5-pits gasfornuis met afzuigkap, oven, koelkast, vaatwasser (2023) en een spoelbak.
De royale achtertuin, gesitueerd op het oosten, geniet van veel privacy en beschikt over een vijverpartij en veel groen. De garage (19m²) is bereikbaar vanuit de achtertuin en oprit en is voorzien van een elektrische sectionaalpoort, water en elektra.
Eerste verdieping:
Royale overloop (9m²) met toegang naar 4 slaapkamers en de badkamer. De ouderslaapkamer/slaapkamer 1 (15m²) is voorzien van een muurkast en ligt net als slaapkamer 2 (11m²) aan de achterzijde met uitzicht over de tuin. Beide slaapkamers hebben toegang naar een balkon middels openslaande deur. Slaapkamer 2 beschikt over een eigen vaste wastafel. Slaapkamer 3 (10m²) en slaapkamer 4 (13m²) liggen beiden aan de voorzijde van de woning. Vanuit slaapkamer 3 is het balkon aan de voorzijde te bereiken en slaapkamer 4 is voorzien van een vaste wastafel en inbouwkast. Volledig betegelde badkamer (4m²) met een inloopdouche, vaste wastafel in ombouwmeubel en een 2e toilet.
Tweede verdieping:
Via vlizotrap te bereiken ruime zolderberging (39m²) met twee dakramen en een nokhoogte van ± 3 meter. Mogelijkheid creëren extra slaapkamers. Hier is de geiser geplaatst t.b.v. het warm water in de badkamer.
Extra informatie:
- De woning is netjes onderhouden. Modernisering wenselijk
- Voorzien van houten kozijnen met deels dubbele beglazing.
- Verwarming en warm water wordt verkregen middels combiketel (Atag; bj 2022; huur). € 40,82 per maand. Er is eveneens een gasgeiser aanwezig t.b.v. het warme water in de badkamer (Nefit; bj 2018; huur) € 32,35 per maand.
- Veel parkeergelegenheid op eigen terrein.
- Alarminstallatie aanwezig.
- Mogelijkheid creëren extra slaapkamers op tweede verdieping.
- Dak- en spouwmuurisolatie aanwezig.
- Definitief energielabel 'C'.
Algemene informatie:
De woning is op steenworp afstand van het winkelcentrum 'Brusselsepoort' en loopafstand naar het stadscentrum. Eveneens gelegen in de nabijheid van scholen, huisarts, appotheek en openbaar vervoer. Autosnelwegen richting Eindhoven/Luik en Heerlen/Aken zijn goed te bereiken.
Ter bescherming van de belangen van zowel koper als verkoper, wordt uitdrukkelijk gesteld dat een koopovereenkomst met betrekking tot deze onroerende zaak eerst dan tot stand komt nadat koper en verkoper de koopovereenkomst hebben getekend ("schriftelijkheidsvereiste"). De termijn die wordt opgenomen voor eventuele (overeengekomen) ontbindende voorwaarden (bv. Financiering) is in de regel 4 tot 6 weken na het sluiten van de mondelinge wilsovereenkomst. De waarborgsom/bankgarantie is 10% van de koopsom. De koper dient deze 2 weken ná het vervallen van de ontbindende voorwaarden bij de desbetreffende notaris te deponeren.
Koper is te allen tijde gerechtigd voor eigen rekening een bouwkundige keuring te (laten) verrichten dan wel andere adviseurs te raadplegen teneinde een goed inzicht te verkrijgen over de staat van onderhoud.
Bovenstaande vrijblijvende informatie is door Pooters Makelaardij met de nodige zorgvuldigheid samengesteld. Echter aanvaard Pooters Makelaardij geen enkele aansprakelijkheid voor enige onvolledigheid, onjuistheid of anderszins, dan wel de gevolgen daarvan. Oppervlakten en maten zijn indicatief.
+ Read more
- Read less
Construction: {{
product.build_year }}
Construction: {{ product.build_period.start }} -
{{ product.build_period.end }}
House
, Single-family house
{{ product.rooms }} rooms
{{ product.bedrooms
}} bedrooms
Living space: {{
product.living_space }} m²
Plot: {{
product.plot_surface }} m²
Energy class: {{ product.energy_class }}
Energy index: {{ product.energy_index }}
Characteristics
{{ field.label }}
{{ field.value }}
+ Read more
{{ field.label }}
{{ field.value }}
- Read less
{{ product.company.name }}
Contact us
{{ product.company.phone.replace('-', ' ').substr(0, 7) }}...
{{ product.company.phone.replace('-', ' ') }}
Share:
Date