Sold
€ {{ product.price.replace(/\B(?=(\d{4})+(?!\d))/g, ".") }} {{ __(product.price_condition) }}
Photo’s
{{ product.images.length }}
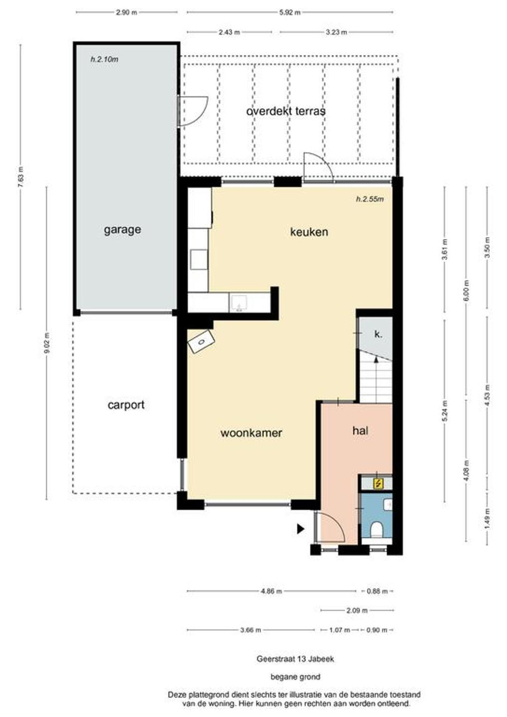
Floorplan
{{ product.plans.length }}
360° photo’s {{ product.panoramas.length }}
Video’s {{ product.videos.length }}
Maps
All media

House for sale Geerstraat 13 Jabeek

€ {{ product.price.replace(/\B(?=(\d{4})+(?!\d))/g, ".") }} {{ __(product.price_condition) }}
Sold

Description

NET BINNEN !!verdere fotos volgen !!

Rustig wonen met ruimte en comfort!
Sfeervolle halfvrijstaande woning met 4 slaapkamers, vrijstaande garage, zonnige tuin en veel privacy.
Op een geliefde en rustige locatie mogen wij deze verrassend ruime halfvrijstaande woning aanbieden.
Met maar liefst 4 slaapkamers, een moderne keuken, vrijstaande garage, onderhoudsvriendelijke tuin met vijver en overkapping, én zonnepanelen, biedt deze woning alles wat je nodig hebt voor comfortabel en toekomstgericht wonen.
Laat je verrassen door de ruimte, sfeer en praktische indeling van deze fijne gezinswoning.Geïnteresseerd? Wacht niet te lang. Neem contact met ons op voor een bezichtiging!

Indeling:
Begane grond:
Stap binnen via de verzorgde entree met meterkast, garderobe en modern zwevend toilet met fonteintje.
De sfeervolle woonkamer is een oase van warmte en karakter, dankzij de Braziliaanse leistenen vloer met vloerverwarming.
Extra opbergruimte bevindt zich in de trapkast.De ruime leefkeuken in hoekopstelling is van alle gemakken voorzien: 5-pits gaskookplaat, afzuigkap, koelkast, vaatwasser, oven en magnetron.
Ook hier vind je de stijlvolle leistenen vloer met vloerverwarming terug.
Door de grote raampartijen is er prachtig contact met de achtertuin.De fraai aangelegde tuin beschikt over een vijverpartij en een grote overkapping — de perfecte plek om te genieten van rust, privacy en het buitenleven.

1e verdieping:
Overloop met separaat tweede toilet.
Slaapkamer(3.64m×2.47m).
Slaapkamer(3.63m×3.33m).
Slaapkame(4.00m×3.66m).
Alle slaapkamers zijn voorzien van een laminaatvloer.
De vernieuwde badkamer is luxe en compleet: een ligbad, royale inloopdouche, fraai badmeubel en designradiator zorgen voor een wellnessgevoel in eigen huis.

2e verdieping:
Via een vaste trap bereik je de bovenste verdieping:
Overloop met laminaatvloer.
Slaapkamer(3.38m×2.72m) met bergruimte onder de dakschuinte.
Was-/cv-ruimte: royaal en praktisch, ook met laminaatvloer en extra bergruimte.

Goed om te weten:
Rustige en fijne ligging op goede locatie.Vrijstaande garage op eigen perceel.Onderhoudsvriendelijke tuin met overkapping en vijver.
4 volwaardige slaapkamers.
Energiezuinig dankzij 12 zonnepanelen.
Grotendeels kunststof kozijnen met dubbele beglazing.
Cv-installatie Nefit (eigendom, 2023).
Deels voorzien van rolluiken.
Perceeloppervlakte: 220 m².

12 ZONNEPANELEN.

VOOR CONTACT KUN JE BELLEN OF MAILEN NAAR :
RIET QUADEN MAKELAARS 06-23409058/046-4519644
+ Read more
- Read less
Construction: {{ product.build_year }}
Construction: {{ product.build_period.start }} - {{ product.build_period.end }}
House , Single-family house
{{ product.rooms }} rooms
{{ product.bedrooms }} bedrooms
Living space: {{ product.living_space }} m²
Plot: {{ product.plot_surface }} m²
Energy class:    {{ product.energy_class }}
Energy index: {{ product.energy_index }}

Characteristics

{{ field.label }}
{{ field.value }}

{{ field.label }}
{{ field.value }}
{{ product.company.name }}
Contact us
{{ product.company.phone.replace('-', ' ').substr(0, 7) }}...
{{ product.company.phone.replace('-', ' ') }}
Share:

Similar objects in the neighborhood