Sold under reservation
€ {{ product.price.replace(/\B(?=(\d{4})+(?!\d))/g, ".") }} {{ __(product.price_condition) }}
Photo’s
{{ product.images.length }}
Floorplan
{{ product.plans.length }}
360° photo’s {{ product.panoramas.length }}
Video’s {{ product.videos.length }}
Maps
All media
House for sale Rozenstraat 20 Ittervoort
€ {{ product.price.replace(/\B(?=(\d{4})+(?!\d))/g, ".") }} {{ __(product.price_condition) }}
Sold under reservation
Description
In een rustige en prettige woonstraat, is op een ruim perceel deze halfvrijstaande woning gelegen met een fantastische, diepe tuin met o.a. veel privacy, een terrasoverkapping, een hobbyruimte, een eigen oprit met carport en de mogelijkheid garage door terugplaatsen garagedeuren in de berging. Een fijne woning waar u kunt genieten van een lichte woonkamer en keuken, een praktische bijkeuken/berging, drie slaapkamers en een riante bergzolder. Hier woont u comfortabel, met volop leefruimte binnen én buiten, in een groene en kindvriendelijke omgeving nabij voorzieningen.
Indeling:
Souterrain:
Praktische provisiekelder, ideaal voor het opslaan van uw voorraad en overige spullen.
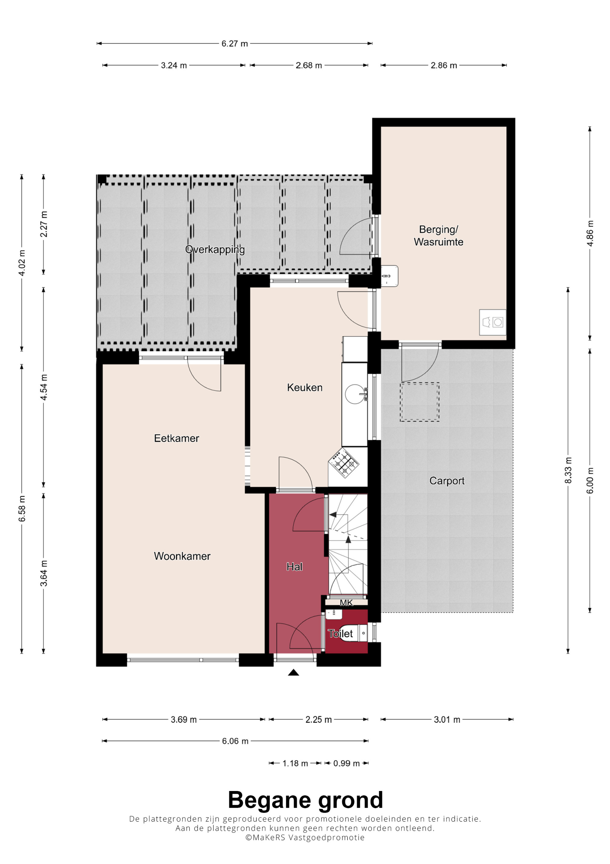
Begane grond:
Via de entree bereikt u de hal met toiletruimte voorzien van een toilet en fonteintje, de meterkast, de trapopgang en toegang tot het souterrain. Vanuit de hal heeft u toegang tot de keuken met veel lichtinval, ingericht met een combinatie in hoekopstelling met inbouwapparatuur, waaronder een gasfornuis, afzuigkap, oven en een vaatwasser. Aansluitend bereikt u de woonkamer, die profiteert van een prettige lichtinval en beschikt over een extra loopdeur naar de achtertuin. Vanuit de keuken is tevens inpandig de voormalige garage bereikbaar, welke thans is ingericht als ruime berging/bijkeuken met witgoedaansluitingen, een wastafel en loopdeuren naar zowel de voorgelegen carport als de achtertuin. De begane grond is grotendeels afgewerkt met een laminaatvloer.
Eerste verdieping:
De overloop, voorzien van airconditioning, geeft toegang tot drie slaapkamers en de badkamer. De badkamer is uitgerust met een inloopdouche en een wastafel. Ook deze verdieping is grotendeels voorzien van een laminaatvloer.
Tweede verdieping:
Via een vlizotrap bereikt u de zolderberging, ideaal voor extra opslag. Hier bevindt zich tevens de opstelling van de cv-ketel (AWB HR, eigendom, ca. 2003).
Exterieur:
Aan de voorzijde beschikt u over een onderhoudsvriendelijke voortuin en een ruime oprit met carport, geschikt voor het parkeren van meerdere voertuigen op eigen terrein. De achtertuin vormt een absoluut hoogtepunt: diep, beschut en met veel privacy! Het royale overdekte terras nodigt uit tot lange, ontspannen momenten buiten, terwijl de houten tuinberging/hobbyruimte zorgt voor extra gebruiksgemak. Een heerlijke plek om in alle rust van het buitenleven te genieten.
Bijzonderheden:
De woning is voorzien van kunststof kozijnen en houten buitendeuren met isolerende beglazing, o.a. HR++, met uitzondering van de berging, en deels (elektrische) rolluiken. Verder is er o.a. dakisolatie aanwezig en is er op de eerste verdieping airconditioning aanwezig.
Diverse meubilering is ter overname bespreekbaar, indien gewenst.
Ligging:
U woont hier in een rustige, groene en kindvriendelijke woonwijk van Ittervoort. Op loopafstand bevinden zich onder andere een supermarkt, bloemist, horecagelegenheden en een groot speelveld. Leuk detail voor mensen met kinderen of een kinderwens in de toekomst; een nieuwe basisschool wordt nog gerealiseerd nabij. Dankzij de gunstige ligging nabij de A2 zijn Weert, Roermond en Maaseik uitstekend bereikbaar. Ook het pittoreske Thorn ligt in de directe omgeving, evenals prachtige wandel- en fietsroutes door het omliggende landschap.
Interactief:
Kijk ook op onze Homevision site om de plattegronden van de woning te bekijken en interactief in te kunnen richten met uw eigen meubel opstelling.
Indeling:
Souterrain:
Praktische provisiekelder, ideaal voor het opslaan van uw voorraad en overige spullen.
Begane grond:
Via de entree bereikt u de hal met toiletruimte voorzien van een toilet en fonteintje, de meterkast, de trapopgang en toegang tot het souterrain. Vanuit de hal heeft u toegang tot de keuken met veel lichtinval, ingericht met een combinatie in hoekopstelling met inbouwapparatuur, waaronder een gasfornuis, afzuigkap, oven en een vaatwasser. Aansluitend bereikt u de woonkamer, die profiteert van een prettige lichtinval en beschikt over een extra loopdeur naar de achtertuin. Vanuit de keuken is tevens inpandig de voormalige garage bereikbaar, welke thans is ingericht als ruime berging/bijkeuken met witgoedaansluitingen, een wastafel en loopdeuren naar zowel de voorgelegen carport als de achtertuin. De begane grond is grotendeels afgewerkt met een laminaatvloer.
Eerste verdieping:
De overloop, voorzien van airconditioning, geeft toegang tot drie slaapkamers en de badkamer. De badkamer is uitgerust met een inloopdouche en een wastafel. Ook deze verdieping is grotendeels voorzien van een laminaatvloer.
Tweede verdieping:
Via een vlizotrap bereikt u de zolderberging, ideaal voor extra opslag. Hier bevindt zich tevens de opstelling van de cv-ketel (AWB HR, eigendom, ca. 2003).
Exterieur:
Aan de voorzijde beschikt u over een onderhoudsvriendelijke voortuin en een ruime oprit met carport, geschikt voor het parkeren van meerdere voertuigen op eigen terrein. De achtertuin vormt een absoluut hoogtepunt: diep, beschut en met veel privacy! Het royale overdekte terras nodigt uit tot lange, ontspannen momenten buiten, terwijl de houten tuinberging/hobbyruimte zorgt voor extra gebruiksgemak. Een heerlijke plek om in alle rust van het buitenleven te genieten.
Bijzonderheden:
De woning is voorzien van kunststof kozijnen en houten buitendeuren met isolerende beglazing, o.a. HR++, met uitzondering van de berging, en deels (elektrische) rolluiken. Verder is er o.a. dakisolatie aanwezig en is er op de eerste verdieping airconditioning aanwezig.
Diverse meubilering is ter overname bespreekbaar, indien gewenst.
Ligging:
U woont hier in een rustige, groene en kindvriendelijke woonwijk van Ittervoort. Op loopafstand bevinden zich onder andere een supermarkt, bloemist, horecagelegenheden en een groot speelveld. Leuk detail voor mensen met kinderen of een kinderwens in de toekomst; een nieuwe basisschool wordt nog gerealiseerd nabij. Dankzij de gunstige ligging nabij de A2 zijn Weert, Roermond en Maaseik uitstekend bereikbaar. Ook het pittoreske Thorn ligt in de directe omgeving, evenals prachtige wandel- en fietsroutes door het omliggende landschap.
Interactief:
Kijk ook op onze Homevision site om de plattegronden van de woning te bekijken en interactief in te kunnen richten met uw eigen meubel opstelling.
+ Read more
- Read less
Construction: {{
product.build_year }}
Construction: {{ product.build_period.start }} -
{{ product.build_period.end }}
House
, Single-family house
{{ product.rooms }} rooms
{{ product.bedrooms
}} bedrooms
Living space: {{
product.living_space }} m²
Plot: {{
product.plot_surface }} m²
Energy class: {{ product.energy_class }}
Energy index: {{ product.energy_index }}
Characteristics
{{ field.label }}
{{ field.value }}
+ Read more
{{ field.label }}
{{ field.value }}
- Read less
{{ product.company.name }}
Contact us
{{ product.company.phone.replace('-', ' ').substr(0, 7) }}...
{{ product.company.phone.replace('-', ' ') }}
Share:
Date