Sold
€ {{ product.price.replace(/\B(?=(\d{4})+(?!\d))/g, ".") }} {{ __(product.price_condition) }}
Photo’s
{{ product.images.length }}
Floorplan
{{ product.plans.length }}
360° photo’s {{ product.panoramas.length }}
Video’s {{ product.videos.length }}
Maps
All media
House for sale Nobelstraat 65 Heerlen
€ {{ product.price.replace(/\B(?=(\d{4})+(?!\d))/g, ".") }} {{ __(product.price_condition) }}
Sold
Description
Typering:
Aan de rand van het centrum van Heerlen ligt deze prachtige karaktervolle goed onderhouden ruime woning ( Bwj.1910) met riante aanbouw, groot overdekt terras en fijne achtergelegen tuin met houten tuinhuis.
Indeling:
Souterrain:
Berging 1:
8.68mx1.45m
Berging 2:
3.73mx4.11m
Berging3:
3.50mx4.43m
Begane grond:
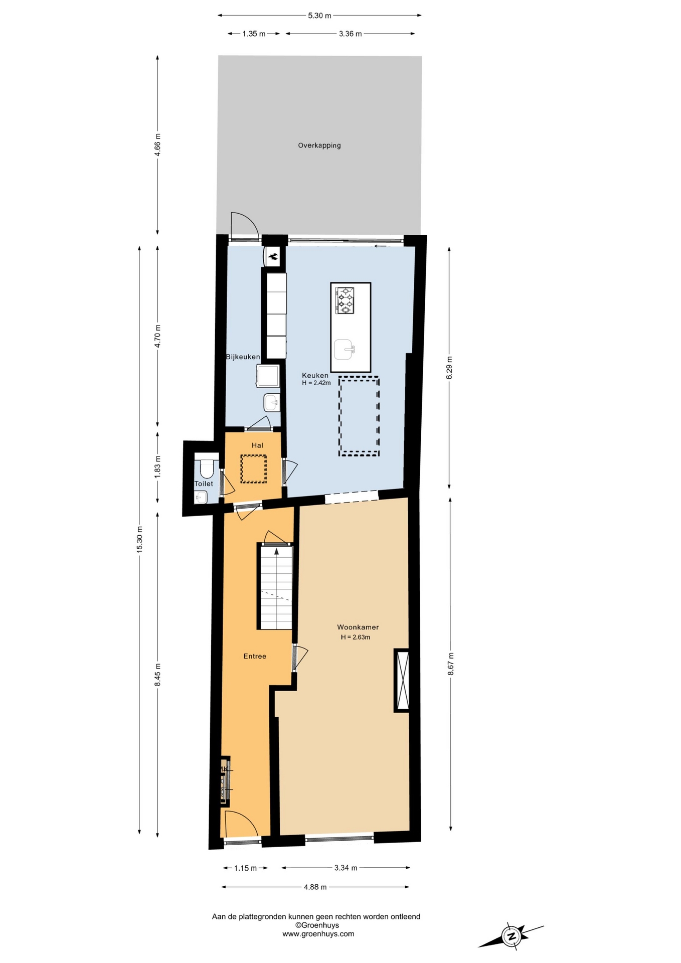
Royale hal/entree voorzien van fraaie authentieke terrazzo vloer, meterkast.
Ruime woonkamer (8.67mx3.34) voorzien van hardhouten parketvloer.
Riante aanbouw (6.29mx3.36m) met lichtkoepel voorzien van plavuizenvloer (inclusief vloerverwarming) en moderne keukeninstallatie met eiland en inbouwapparatuur, te weten, vaatwasser (Bosch), koelkast (Bosch), wasemkap, 5 pits gaskookplaat en combi-oven (Bosch). Vanuit de aanbouw/keuken heeft men via een schuifpui toegang tot het heerlijke overdekte terras met toegang en zicht op de achtergelegen tuin en houten tuinhuis. Via de entree/hal en de keuken is het verdeelportaal (1.35mx1.83m) bereikbaar. Betegelde toiletruimte met fonteintje. Was berging met buitendeur (achterzijde) en aansluitpunten voor de wasmachine en droger, alsmede een vaste wastafel en standplaats van de Cv-combi (Nefit Ecomline HR 2007, eigendom)
1e verdieping:
Via de fraaie bordestrap is de overloop op de eerste verdieping bereikbaar met parketvloer.
Vanuit de overloop toegang tot achtereenvolgens de badkamer en de 2 ruime slaapkamers.
Geheel betegelde moderne badkamer (1.62mx3.99m) voorzien van een douche, ligbad, 2e toilet, dubbele wastafelmeubel en wandradiator.
Slaapkamer 1 v/z (3.14mx3.85m) voorzien van parketvloer
Slaapkamer 2 a/z (3.11mx3.33m) voorzien van parketvloer en ruime inloopkast (1.15mx2.00)
2e verdieping:
Via bordestrap te bereiken overloop (1.73mx4.30m) op de 2e verdieping met parketvloer.
Riante ouderslaapkamer 3: (4.88mx3.91) voorzien van parketvloer en beschikt over een tv-aansluiting en open vliering (via losse trap begaanbaar) en toegang naar een riante dressing/walk-in closet (3.00mx4.30m) eveneens voorzien van parketvloer. Bij behoefte is het mogelijk de kleedkamer in gebruik te nemen als 4e slaapkamer.
- Bouwjaar: ca. 1910
- Woonopp: 152m2
- Bruto inhoud woonhuis: 685,08m3
- Perceel: 205m2
- Karaktervolle uitgebouwde stadwoning met alle belangrijke fraaie authentieke elementen!
- Dit woonhuis verkeerd in zeer goede staat van onderhoud.
Aan de rand van het centrum van Heerlen ligt deze prachtige karaktervolle goed onderhouden ruime woning ( Bwj.1910) met riante aanbouw, groot overdekt terras en fijne achtergelegen tuin met houten tuinhuis.
Indeling:
Souterrain:
Berging 1:
8.68mx1.45m
Berging 2:
3.73mx4.11m
Berging3:
3.50mx4.43m
Begane grond:
Royale hal/entree voorzien van fraaie authentieke terrazzo vloer, meterkast.
Ruime woonkamer (8.67mx3.34) voorzien van hardhouten parketvloer.
Riante aanbouw (6.29mx3.36m) met lichtkoepel voorzien van plavuizenvloer (inclusief vloerverwarming) en moderne keukeninstallatie met eiland en inbouwapparatuur, te weten, vaatwasser (Bosch), koelkast (Bosch), wasemkap, 5 pits gaskookplaat en combi-oven (Bosch). Vanuit de aanbouw/keuken heeft men via een schuifpui toegang tot het heerlijke overdekte terras met toegang en zicht op de achtergelegen tuin en houten tuinhuis. Via de entree/hal en de keuken is het verdeelportaal (1.35mx1.83m) bereikbaar. Betegelde toiletruimte met fonteintje. Was berging met buitendeur (achterzijde) en aansluitpunten voor de wasmachine en droger, alsmede een vaste wastafel en standplaats van de Cv-combi (Nefit Ecomline HR 2007, eigendom)
1e verdieping:
Via de fraaie bordestrap is de overloop op de eerste verdieping bereikbaar met parketvloer.
Vanuit de overloop toegang tot achtereenvolgens de badkamer en de 2 ruime slaapkamers.
Geheel betegelde moderne badkamer (1.62mx3.99m) voorzien van een douche, ligbad, 2e toilet, dubbele wastafelmeubel en wandradiator.
Slaapkamer 1 v/z (3.14mx3.85m) voorzien van parketvloer
Slaapkamer 2 a/z (3.11mx3.33m) voorzien van parketvloer en ruime inloopkast (1.15mx2.00)
2e verdieping:
Via bordestrap te bereiken overloop (1.73mx4.30m) op de 2e verdieping met parketvloer.
Riante ouderslaapkamer 3: (4.88mx3.91) voorzien van parketvloer en beschikt over een tv-aansluiting en open vliering (via losse trap begaanbaar) en toegang naar een riante dressing/walk-in closet (3.00mx4.30m) eveneens voorzien van parketvloer. Bij behoefte is het mogelijk de kleedkamer in gebruik te nemen als 4e slaapkamer.
- Bouwjaar: ca. 1910
- Woonopp: 152m2
- Bruto inhoud woonhuis: 685,08m3
- Perceel: 205m2
- Karaktervolle uitgebouwde stadwoning met alle belangrijke fraaie authentieke elementen!
- Dit woonhuis verkeerd in zeer goede staat van onderhoud.
+ Read more
- Read less
Construction: {{
product.build_year }}
Construction: {{ product.build_period.start }} -
{{ product.build_period.end }}
House
, Single-family house
{{ product.rooms }} rooms
{{ product.bedrooms
}} bedrooms
Living space: {{
product.living_space }} m²
Plot: {{
product.plot_surface }} m²
Energy class: {{ product.energy_class }}
Energy index: {{ product.energy_index }}
Characteristics
{{ field.label }}
{{ field.value }}
+ Read more
{{ field.label }}
{{ field.value }}
- Read less
{{ product.company.name }}
Contact us
{{ product.company.phone.replace('-', ' ').substr(0, 7) }}...
{{ product.company.phone.replace('-', ' ') }}
Share:
Date