Sold
€ {{ product.price.replace(/\B(?=(\d{4})+(?!\d))/g, ".") }} {{ __(product.price_condition) }}
Photo’s
{{ product.images.length }}
Floorplan
{{ product.plans.length }}
360° photo’s {{ product.panoramas.length }}
Video’s {{ product.videos.length }}
Maps
All media
House for sale Adenauerlaan 21 K Heerlen
€ {{ product.price.replace(/\B(?=(\d{4})+(?!\d))/g, ".") }} {{ __(product.price_condition) }}
Sold
Description
WELKOM BIJ ADENAUERLAAN 21K IN HEERLEN!
Ontdek het comfort van deze sfeervolle twee-onder-een-kapwoning in een rustige, verkeersluwe buurt, ideaal voor gezinnen. Deze lichte en ruime woning heeft alles wat u zoekt!
Stap binnen in de royale woonkamer met een prachtige houten plankenvloer, waar de voorzijde is ingericht als comfortabele living en de achterzijde als eetkamer. De dubbele openslaande tuindeuren brengen u naar het overdekte terras en de zonnige tuin, een heerlijke plek om te ontspannen en gezellig buiten te eten.
De halfopen keuken biedt ruimte voor een moderne inbouwkeuken die helemaal naar wens kan worden ingericht. Aangrenzend bevindt zich de bijkeuken met aansluitingen voor de wasmachine en droger, extra opbergruimte en een praktische doorgang naar zowel de oprit als de achtertuin.
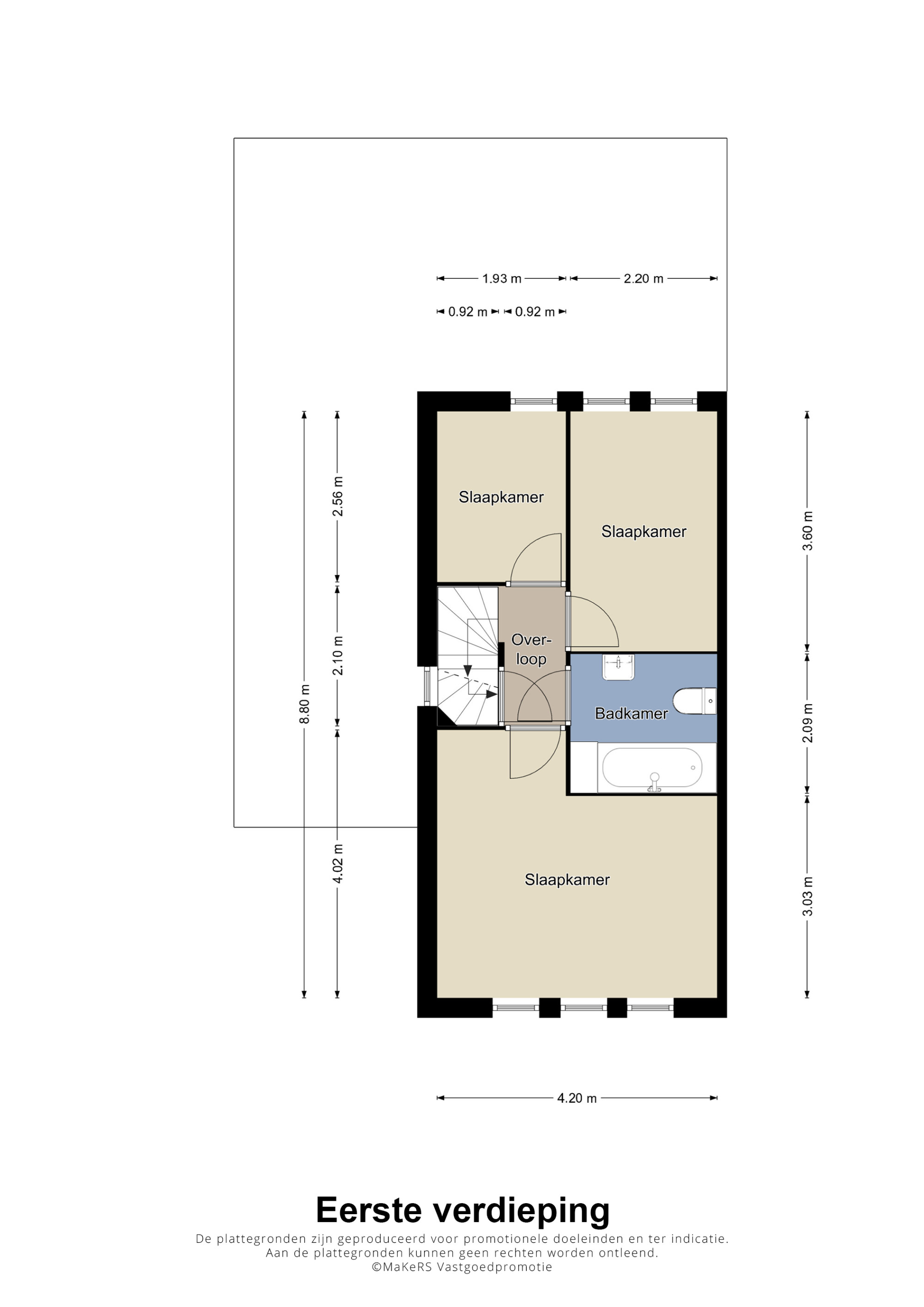
Op de eerste verdieping vindt u drie ruime slaapkamers en een complete badkamer met een ligbad en tweede toilet. Deze etage is voorzien van rolluiken rondom, voor extra comfort en privacy.
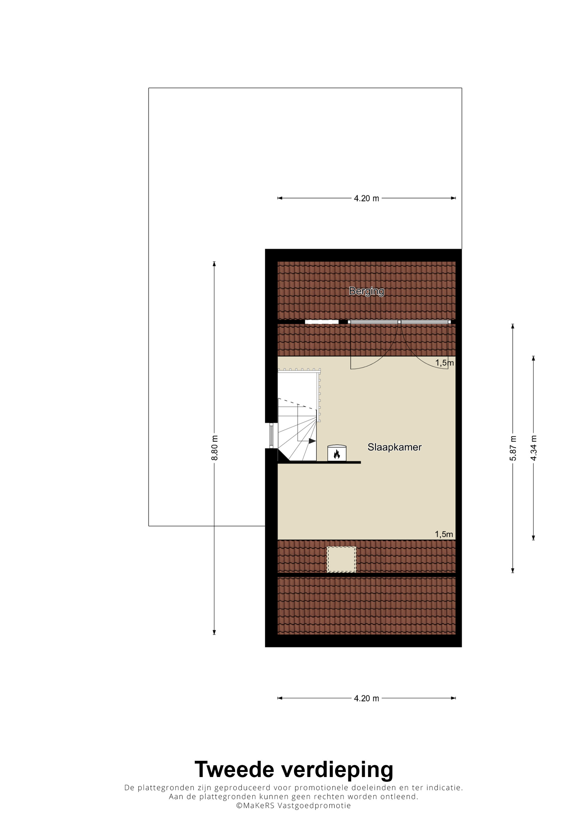
De vaste trap brengt u naar de zolder, die volop mogelijkheden biedt! Met veel opbergruimte en de optie om een vierde slaapkamer te creëren, is dit een waardevolle uitbreiding van de leefruimte.
De woning is goed geïsoleerd met dak- en spouwmuurisolatie, dubbele beglazing en maar liefst 12 zonnepanelen op het dak. Met een energielabel A bent u verzekerd van lage energiekosten en een duurzaam huis.
De woning is gelegen in een kindvriendelijke wijk met alle voorzieningen binnen handbereik: een basisschool, voortgezet onderwijs, sportfaciliteiten, een cafetaria en een supermarkt. De aansluiting op de N300 zorgt voor een goede bereikbaarheid.
Kortom, Adenauerlaan 21k biedt alles voor wie op zoek is naar ruimte, comfort, en een fijne woonomgeving. Maak snel een afspraak voor een bezichtiging en ervaar zelf de mogelijkheden van deze prachtige woning!
INDELING:
BEGANE GROND:
Hal / Entree en garderobehoek. Meterkast voorzien van 6 groepsinstallatie / 3 fase aansluiting / aardlekschakelaar / separate groep voor zonnepanelen, digitale meters met dag- en nachtstroomaansluiting. Gastentoilet geheel betegeld met staand closet en fonteintje. Loopdeur naar de woonkamer.
Ruime woonkamer voorzien van een houten planken vloer, met lounge/living aan de voorzijde. Achtergelegen eetkamer met dubbele openslaande deuren naar het overdekte terras. In de woonkamer geplaatste trap naar de verdieping.
Halfopen keukenruimte met een eenvoudig aanrechtblok, maar waar voldoende ruimte is om een volwaardige inbouwkeuken te plaatsen. Naastgelegen bijkeuken met witgoedaansluitingen voor wasmachine/droger en veel extra bergruimte voor provisie en opslag. Loopdeur naar de voorgelegen oprit, de achtertuin en het terras.
Brede achtertuin voorzien van een beklinkerd terras met overkapping, borders met aanplanting en veel privacy. De oprit aan de voorzijde biedt parkeergelegenheid aan meerdere voertuigen op eigen terrein.
VERDIEPING:
Overloop met toegang tot de slaapvertrekken en de badkamer.
Over de gehele voorzijde van de woning gelegen royale hoofdslaapkamer
Centraal op de verdieping bevindt zich de moderne badkamer voorzien van een ligbad / wastafel in een badkamermeubel / handdoekradiator / mechanische ventilatie en tweede toilet.
Aan de achterzijde bevinden zich twee ruime slaapkamers.
De gehele verdiepingsvloer is voorzien van laminaat.
ZOLDER:
Bereikbaar middels een vaste trap. Ruime bergzolder waar geplaatst de gehuurde Bosch CV-Combiketel van het bouwjaar 2013, mechanische ventilatie-box alsmede de omvormer voor de 12 zonnepanelen welke aanwezig zijn op het hoofddak geplaatst middels het Zonnepanelenproject Parkstad. Witgoedaansluitingen voor wasmachine en droger. Veel bergruimte in de schuinte van de dakconstructie. Het is mogelijk hier een hobbyruimte of extra slaapkamer te realiseren.
BIJZONDERHEDEN:
* GESCHAKELDE TWEEKAPPER IN KINDVRIENDELIJKE WOONOMGEVING
* LICHTE WOONKAMER VOORZIEN VAN EEN HOUTENPLANKEN VLOER
* EETKAMER MET DUBBELE OPENSLAANDE TUINDEUREN NAAR HET OVERDEKTE TERRAS
* KEUKENRUIMTE WAAR TE PLAATSEN EEN INBOUWKEUKEN
* BIJKEUKEN MET WITGOEDAANSLUITINGEN EN OPSLAGMOGELIJKHJEDEN
* DRIE SLAAPKAMERS OP DE VERDIEPING
* BADKAMER MET LIGBAD, WASTAFEL IN BADKAMERMEUBEL EN TWEEDE TOILET
* ZOLDER MET VEEL BERGRUIMTE, WITGOEDAANSLUITINGEN, GEHUURDE CV EN VENTILATIEBOX
* HOUTEN KOZIJNEN MET DUBBELE BEGLAZING
* ROLLUIKEN OP DE VERDIEPING
* BOSCH CV-COMBIKETEL (HUUR /BOUWJAAR 2013)
* 12 ZONNEPANELEN AANWEZIG OP BASIS VAN DE "PARKSTADREGELING"
* BREDE ACHTERTUIN MET OVERDEKT TERRAS, BORDERS VOORZIEN VAN AANPLANTING EN VEEL PRIVACY
* VOORGELEGEN OPRIT VOOR MEERDERE VOERUIGEN OP EIGEN TERREIN
* ENERGIELABEL "A"
DEZE WONING IS NETJES ONDERHOUDEN. VOORZIEN VAN HOUTEN KOZIJNEN MET DUBBELE BEGLAZING EN RONDOM ROLLUIKEN OP DE VERDIEPING. GEHUURDE BOSCH CV-COMBIKETEL (BOUWJAAR 2013), 12 ZONNEPANELEN, GEPLAATST OP BASIS VAN DE "PARKSTADREGELING". BREDE ACHTERTUIN MET OVERDEKT TERRAS, BORDERS MET AANPLANTING EN VEEL PRIVACY. OPRIT MET PARKEERGELEGENHEID VOOR MEEDERE VOERTUIGEN OP EIGEN TERREIN.
HET GEHEEL IS GELEGEN IN EEN VERKEERSLUWE EN KINDVRIENDELIJKE WOONOMGEVING. IN DE DIRECTE NABIJHEID BEVINDEN ZICH EEN BASISSCHOOL, DIVERSE SPORTFACILITEITEN, EEN VOORTGEZET ONDERWIJS, CAFETARIA EN SUPERMARKT. GOEDE ONTSLUITING MIDDELS UITVALSWEGEN EN AANSLUITING OP DE PARKSTADRING (N300) RICHTING MAASTRICHT, AKEN EN EINDHOVEN.
Ter bescherming van de belangen van zowel koper als ook verkoper wordt uitdrukkelijk gesteld dat een koopovereenkomst met betrekking tot deze onroerende zaak eerst dan tot stand komt nadat koper en verkoper de koopovereenkomst hebben ondertekend (schriftelijkheidsvereiste).
De waarborgsom/bankgarantie is 10% van de koopsom. De koper dient deze binnen 2 weken nadat het financieringsvoorbehoud is verlopen bij de desbetreffende notaris te deponeren.
Indien cv-ketel en/of warmwatervoorziening een huurtoestel is, dient koper de huurovereenkomst over te nemen. Dit geldt ook wanneer de installatie voor de zonnepanelen op huurbasis aanwezig is.
Alle door ons kantoor verstrekte informatie omtrent onroerende zaken, moet beschouwd worden als een uitnodiging om in onderhandeling te treden en is geheel vrijblijvend! Alle vermelde maten en afmetingen zijn slechts bij benadering. Een (eventueel) bijgevoegde plattegrond dient uitsluitend als globale indicatie/visualisatie. Aan deze beperkte informatie
kunnen geen rechten worden ontleend.
Indien in enige documentatie of op enige website informatie staat die niet overeen komt met de werkelijkheid, dan geldt de feitelijke situatie waarin de woning zich bevindt, zoals koper deze tijdens de bezichtiging heeft kunnen waarnemen, en wordt de woning in deze feitelijke situatie/staat verkocht.
Ontdek het comfort van deze sfeervolle twee-onder-een-kapwoning in een rustige, verkeersluwe buurt, ideaal voor gezinnen. Deze lichte en ruime woning heeft alles wat u zoekt!
Stap binnen in de royale woonkamer met een prachtige houten plankenvloer, waar de voorzijde is ingericht als comfortabele living en de achterzijde als eetkamer. De dubbele openslaande tuindeuren brengen u naar het overdekte terras en de zonnige tuin, een heerlijke plek om te ontspannen en gezellig buiten te eten.
De halfopen keuken biedt ruimte voor een moderne inbouwkeuken die helemaal naar wens kan worden ingericht. Aangrenzend bevindt zich de bijkeuken met aansluitingen voor de wasmachine en droger, extra opbergruimte en een praktische doorgang naar zowel de oprit als de achtertuin.
Op de eerste verdieping vindt u drie ruime slaapkamers en een complete badkamer met een ligbad en tweede toilet. Deze etage is voorzien van rolluiken rondom, voor extra comfort en privacy.
De vaste trap brengt u naar de zolder, die volop mogelijkheden biedt! Met veel opbergruimte en de optie om een vierde slaapkamer te creëren, is dit een waardevolle uitbreiding van de leefruimte.
De woning is goed geïsoleerd met dak- en spouwmuurisolatie, dubbele beglazing en maar liefst 12 zonnepanelen op het dak. Met een energielabel A bent u verzekerd van lage energiekosten en een duurzaam huis.
De woning is gelegen in een kindvriendelijke wijk met alle voorzieningen binnen handbereik: een basisschool, voortgezet onderwijs, sportfaciliteiten, een cafetaria en een supermarkt. De aansluiting op de N300 zorgt voor een goede bereikbaarheid.
Kortom, Adenauerlaan 21k biedt alles voor wie op zoek is naar ruimte, comfort, en een fijne woonomgeving. Maak snel een afspraak voor een bezichtiging en ervaar zelf de mogelijkheden van deze prachtige woning!
INDELING:
BEGANE GROND:
Hal / Entree en garderobehoek. Meterkast voorzien van 6 groepsinstallatie / 3 fase aansluiting / aardlekschakelaar / separate groep voor zonnepanelen, digitale meters met dag- en nachtstroomaansluiting. Gastentoilet geheel betegeld met staand closet en fonteintje. Loopdeur naar de woonkamer.
Ruime woonkamer voorzien van een houten planken vloer, met lounge/living aan de voorzijde. Achtergelegen eetkamer met dubbele openslaande deuren naar het overdekte terras. In de woonkamer geplaatste trap naar de verdieping.
Halfopen keukenruimte met een eenvoudig aanrechtblok, maar waar voldoende ruimte is om een volwaardige inbouwkeuken te plaatsen. Naastgelegen bijkeuken met witgoedaansluitingen voor wasmachine/droger en veel extra bergruimte voor provisie en opslag. Loopdeur naar de voorgelegen oprit, de achtertuin en het terras.
Brede achtertuin voorzien van een beklinkerd terras met overkapping, borders met aanplanting en veel privacy. De oprit aan de voorzijde biedt parkeergelegenheid aan meerdere voertuigen op eigen terrein.
VERDIEPING:
Overloop met toegang tot de slaapvertrekken en de badkamer.
Over de gehele voorzijde van de woning gelegen royale hoofdslaapkamer
Centraal op de verdieping bevindt zich de moderne badkamer voorzien van een ligbad / wastafel in een badkamermeubel / handdoekradiator / mechanische ventilatie en tweede toilet.
Aan de achterzijde bevinden zich twee ruime slaapkamers.
De gehele verdiepingsvloer is voorzien van laminaat.
ZOLDER:
Bereikbaar middels een vaste trap. Ruime bergzolder waar geplaatst de gehuurde Bosch CV-Combiketel van het bouwjaar 2013, mechanische ventilatie-box alsmede de omvormer voor de 12 zonnepanelen welke aanwezig zijn op het hoofddak geplaatst middels het Zonnepanelenproject Parkstad. Witgoedaansluitingen voor wasmachine en droger. Veel bergruimte in de schuinte van de dakconstructie. Het is mogelijk hier een hobbyruimte of extra slaapkamer te realiseren.
BIJZONDERHEDEN:
* GESCHAKELDE TWEEKAPPER IN KINDVRIENDELIJKE WOONOMGEVING
* LICHTE WOONKAMER VOORZIEN VAN EEN HOUTENPLANKEN VLOER
* EETKAMER MET DUBBELE OPENSLAANDE TUINDEUREN NAAR HET OVERDEKTE TERRAS
* KEUKENRUIMTE WAAR TE PLAATSEN EEN INBOUWKEUKEN
* BIJKEUKEN MET WITGOEDAANSLUITINGEN EN OPSLAGMOGELIJKHJEDEN
* DRIE SLAAPKAMERS OP DE VERDIEPING
* BADKAMER MET LIGBAD, WASTAFEL IN BADKAMERMEUBEL EN TWEEDE TOILET
* ZOLDER MET VEEL BERGRUIMTE, WITGOEDAANSLUITINGEN, GEHUURDE CV EN VENTILATIEBOX
* HOUTEN KOZIJNEN MET DUBBELE BEGLAZING
* ROLLUIKEN OP DE VERDIEPING
* BOSCH CV-COMBIKETEL (HUUR /BOUWJAAR 2013)
* 12 ZONNEPANELEN AANWEZIG OP BASIS VAN DE "PARKSTADREGELING"
* BREDE ACHTERTUIN MET OVERDEKT TERRAS, BORDERS VOORZIEN VAN AANPLANTING EN VEEL PRIVACY
* VOORGELEGEN OPRIT VOOR MEERDERE VOERUIGEN OP EIGEN TERREIN
* ENERGIELABEL "A"
DEZE WONING IS NETJES ONDERHOUDEN. VOORZIEN VAN HOUTEN KOZIJNEN MET DUBBELE BEGLAZING EN RONDOM ROLLUIKEN OP DE VERDIEPING. GEHUURDE BOSCH CV-COMBIKETEL (BOUWJAAR 2013), 12 ZONNEPANELEN, GEPLAATST OP BASIS VAN DE "PARKSTADREGELING". BREDE ACHTERTUIN MET OVERDEKT TERRAS, BORDERS MET AANPLANTING EN VEEL PRIVACY. OPRIT MET PARKEERGELEGENHEID VOOR MEEDERE VOERTUIGEN OP EIGEN TERREIN.
HET GEHEEL IS GELEGEN IN EEN VERKEERSLUWE EN KINDVRIENDELIJKE WOONOMGEVING. IN DE DIRECTE NABIJHEID BEVINDEN ZICH EEN BASISSCHOOL, DIVERSE SPORTFACILITEITEN, EEN VOORTGEZET ONDERWIJS, CAFETARIA EN SUPERMARKT. GOEDE ONTSLUITING MIDDELS UITVALSWEGEN EN AANSLUITING OP DE PARKSTADRING (N300) RICHTING MAASTRICHT, AKEN EN EINDHOVEN.
Ter bescherming van de belangen van zowel koper als ook verkoper wordt uitdrukkelijk gesteld dat een koopovereenkomst met betrekking tot deze onroerende zaak eerst dan tot stand komt nadat koper en verkoper de koopovereenkomst hebben ondertekend (schriftelijkheidsvereiste).
De waarborgsom/bankgarantie is 10% van de koopsom. De koper dient deze binnen 2 weken nadat het financieringsvoorbehoud is verlopen bij de desbetreffende notaris te deponeren.
Indien cv-ketel en/of warmwatervoorziening een huurtoestel is, dient koper de huurovereenkomst over te nemen. Dit geldt ook wanneer de installatie voor de zonnepanelen op huurbasis aanwezig is.
Alle door ons kantoor verstrekte informatie omtrent onroerende zaken, moet beschouwd worden als een uitnodiging om in onderhandeling te treden en is geheel vrijblijvend! Alle vermelde maten en afmetingen zijn slechts bij benadering. Een (eventueel) bijgevoegde plattegrond dient uitsluitend als globale indicatie/visualisatie. Aan deze beperkte informatie
kunnen geen rechten worden ontleend.
Indien in enige documentatie of op enige website informatie staat die niet overeen komt met de werkelijkheid, dan geldt de feitelijke situatie waarin de woning zich bevindt, zoals koper deze tijdens de bezichtiging heeft kunnen waarnemen, en wordt de woning in deze feitelijke situatie/staat verkocht.
+ Read more
- Read less
Construction: {{
product.build_year }}
Construction: {{ product.build_period.start }} -
{{ product.build_period.end }}
House
, Single-family house
{{ product.rooms }} rooms
{{ product.bedrooms
}} bedrooms
Living space: {{
product.living_space }} m²
Plot: {{
product.plot_surface }} m²
Energy class: {{ product.energy_class }}
Energy index: {{ product.energy_index }}
Characteristics
{{ field.label }}
{{ field.value }}
+ Read more
{{ field.label }}
{{ field.value }}
- Read less
{{ product.company.name }}
Contact us
{{ product.company.phone.replace('-', ' ').substr(0, 7) }}...
{{ product.company.phone.replace('-', ' ') }}
Share:
Date