Sold
€ {{ product.price.replace(/\B(?=(\d{4})+(?!\d))/g, ".") }} {{ __(product.price_condition) }}
Photo’s
{{ product.images.length }}
Floorplan
{{ product.plans.length }}
360° photo’s {{ product.panoramas.length }}
Video’s {{ product.videos.length }}
Maps
All media
House for sale Schutteheide 1 216 Heel
€ {{ product.price.replace(/\B(?=(\d{4})+(?!\d))/g, ".") }} {{ __(product.price_condition) }}
Sold
Description
Maaspark Boschmolenplas:
In Midden-Limburg in het plaatsje Heel (gemeente Maasgouw) ligt dit prachtige resort ideaal voor watersporters, wandelaars en fietsers. Het park is geschikt voor alle leeftijden en beschikt over een duikschool. Centraal in het park ligt de jachthaven die een open vaarverbinding heeft naar de Maas. Zeer korte verbinding naar A2 richting Eindhoven en Roermond. Deze woning is uw aandacht absoluut waard!
Omschrijving
Deze prachtige 6-persoon type Tuinvilla nr. 216 is gelegen midden op Maaspark de Boschmolenplas en ligt op een prachtige en rustige locatie met zicht op klein vennetje..
Begane grond:
Voortuin met eigen parkeerplaats en entree. Hal, gastentoilet volledig betegelde voorzien van wandcloset en fonteintje. Woonkamer met zit en eetgedeelte en met directe toegang via de grote schuifpui tot tuin op het zuidwesten, een mooi terras en zicht op het water. Op de begane grond vinden we een ruime tweepersoons slaapkamer met daarbij aparte doucheruimte met wastafel. Half open keuken met luxe keukeninstallatie in hoekopstelling voorzien van 4-pits gasfornuis, afzuigkap, vaatwasser, koelkast, combimagnetron en spoelbak. Binnenberging met opstelling van de cv-installatie, meterkast en wasmachineaansluiting en deze ruimte heeft een eigen toegangsdeur vanaf de buitenzijde.
De gehele beneden verdieping is voorzien van een prachtige tegelvloer en er zijn hoogwaardige materialen gebruikt..
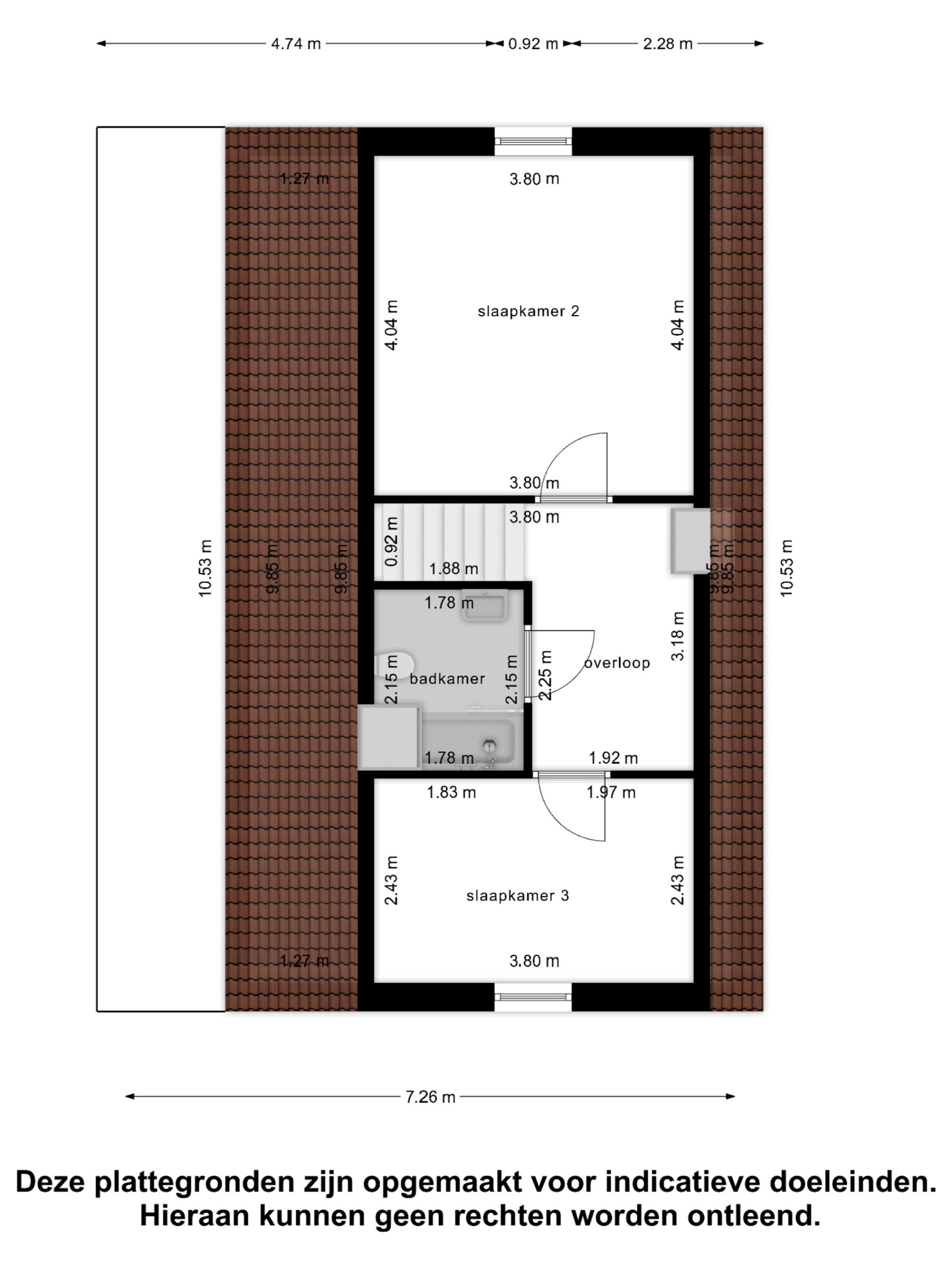
Eerste verdieping:
Overloop met toegang tot de twee ruime slaapkamers en de volledig betegelde badkamer met ligbad, wastafel en wandcloset.
Tuin:
Tuin aan de voorzijde en achterzijde en vanaf het terras heeft u een prachtig zicht op het water.
Bijzonderheden
• Woonoppervlakte ca. 100 m2.
• Centrale verwarming en warm water middels HR CV-combiketel
• Prima geïsoleerd, zoals dubbele beglazing, spouwmuur- en vloerisolatie.
• Op het park is een luxe jachthaven aanwezig alsmede een restaurant en brasserie.
• Er zijn voldoende mogelijkheden om in de omgeving te zeilen, surfen, vissen, duiken of te sporten.
• Dubbele parkeerplaats aan voorzijde.
AANSPRAKELIJKHEID
Het bovenstaande behelst slechts een globale omschrijving van een object. De informatie berust deels op door derden aan onze kantoren verstrekte gegevens. Met de meeste zorg hebben wij deze informatie verwerkt doch kunnen ten aanzien van de juistheid van deze gegevens geen aansprakelijkheid aanvaarden. Aan deze brochure kunnen geen rechten worden ontleend.
ONTBINDING
De termijn die wordt opgenomen voor eventuele (overeengekomen) ontbindende voorwaarden (b.v. financiering) is in de regel circa 4 weken na het sluiten van de mondelinge wilsovereenkomst.
ZEKERHEIDSSTELLING
De waarborgsom/bankgarantie is 10% van de koopsom. De koper dient deze binnen 7 dagen na definitieve overeenkomst bij de desbetreffende notaris te deponeren.
ONDERZOEKSPLICHT VAN DE KOPER
Koper is te allen tijde gerechtigd voor eigen rekening een bouwkundige keuring te (laten) verrichten dan wel andere adviseurs te raadplegen teneinde een goed inzicht te verkrijgen in de staat van onderhoud.
In Midden-Limburg in het plaatsje Heel (gemeente Maasgouw) ligt dit prachtige resort ideaal voor watersporters, wandelaars en fietsers. Het park is geschikt voor alle leeftijden en beschikt over een duikschool. Centraal in het park ligt de jachthaven die een open vaarverbinding heeft naar de Maas. Zeer korte verbinding naar A2 richting Eindhoven en Roermond. Deze woning is uw aandacht absoluut waard!
Omschrijving
Deze prachtige 6-persoon type Tuinvilla nr. 216 is gelegen midden op Maaspark de Boschmolenplas en ligt op een prachtige en rustige locatie met zicht op klein vennetje..
Begane grond:
Voortuin met eigen parkeerplaats en entree. Hal, gastentoilet volledig betegelde voorzien van wandcloset en fonteintje. Woonkamer met zit en eetgedeelte en met directe toegang via de grote schuifpui tot tuin op het zuidwesten, een mooi terras en zicht op het water. Op de begane grond vinden we een ruime tweepersoons slaapkamer met daarbij aparte doucheruimte met wastafel. Half open keuken met luxe keukeninstallatie in hoekopstelling voorzien van 4-pits gasfornuis, afzuigkap, vaatwasser, koelkast, combimagnetron en spoelbak. Binnenberging met opstelling van de cv-installatie, meterkast en wasmachineaansluiting en deze ruimte heeft een eigen toegangsdeur vanaf de buitenzijde.
De gehele beneden verdieping is voorzien van een prachtige tegelvloer en er zijn hoogwaardige materialen gebruikt..
Eerste verdieping:
Overloop met toegang tot de twee ruime slaapkamers en de volledig betegelde badkamer met ligbad, wastafel en wandcloset.
Tuin:
Tuin aan de voorzijde en achterzijde en vanaf het terras heeft u een prachtig zicht op het water.
Bijzonderheden
• Woonoppervlakte ca. 100 m2.
• Centrale verwarming en warm water middels HR CV-combiketel
• Prima geïsoleerd, zoals dubbele beglazing, spouwmuur- en vloerisolatie.
• Op het park is een luxe jachthaven aanwezig alsmede een restaurant en brasserie.
• Er zijn voldoende mogelijkheden om in de omgeving te zeilen, surfen, vissen, duiken of te sporten.
• Dubbele parkeerplaats aan voorzijde.
AANSPRAKELIJKHEID
Het bovenstaande behelst slechts een globale omschrijving van een object. De informatie berust deels op door derden aan onze kantoren verstrekte gegevens. Met de meeste zorg hebben wij deze informatie verwerkt doch kunnen ten aanzien van de juistheid van deze gegevens geen aansprakelijkheid aanvaarden. Aan deze brochure kunnen geen rechten worden ontleend.
ONTBINDING
De termijn die wordt opgenomen voor eventuele (overeengekomen) ontbindende voorwaarden (b.v. financiering) is in de regel circa 4 weken na het sluiten van de mondelinge wilsovereenkomst.
ZEKERHEIDSSTELLING
De waarborgsom/bankgarantie is 10% van de koopsom. De koper dient deze binnen 7 dagen na definitieve overeenkomst bij de desbetreffende notaris te deponeren.
ONDERZOEKSPLICHT VAN DE KOPER
Koper is te allen tijde gerechtigd voor eigen rekening een bouwkundige keuring te (laten) verrichten dan wel andere adviseurs te raadplegen teneinde een goed inzicht te verkrijgen in de staat van onderhoud.
+ Read more
- Read less
Construction: {{
product.build_year }}
Construction: {{ product.build_period.start }} -
{{ product.build_period.end }}
House
, Single-family house
{{ product.rooms }} rooms
{{ product.bedrooms
}} bedrooms
Living space: {{
product.living_space }} m²
Plot: {{
product.plot_surface }} m²
Energy class: {{ product.energy_class }}
Energy index: {{ product.energy_index }}
Characteristics
{{ field.label }}
{{ field.value }}
+ Read more
{{ field.label }}
{{ field.value }}
- Read less
{{ product.company.name }}
Contact us
{{ product.company.phone.replace('-', ' ').substr(0, 7) }}...
{{ product.company.phone.replace('-', ' ') }}
Share:
Date