Sold
€ {{ product.price.replace(/\B(?=(\d{4})+(?!\d))/g, ".") }} {{ __(product.price_condition) }}
Photo’s
{{ product.images.length }}
Floorplan
{{ product.plans.length }}
360° photo’s {{ product.panoramas.length }}
Video’s {{ product.videos.length }}
Maps
All media
House for sale Hubertusstraat 83 Echt
€ {{ product.price.replace(/\B(?=(\d{4})+(?!\d))/g, ".") }} {{ __(product.price_condition) }}
Sold
Description
Deze leuke starters woning met diepe tuin is centraal en rustig gelegen. De woning is de laatste jaren op vele punten gemoderniseerd en is o.a. voorzien van een nieuwe moderne open keuken (2021), een sfeervolle woonkamer. De voor- en achtertuin zijn volledig vernieuwd. De woning beschikt verder over 3 nette slaapkamers, een royale bergzolder met de mogelijkheid voor een 4e slaapkamer en een diepe tuin met hierin een royale vrijstaande stenen berging, overkapping en een vrije achterom. De tuin is aan de achterzijde geheel vrij gelegen en biedt hierdoor veel privacy.
Indeling:
Kelder:
Praktische provisiekelder.
Begane grond:
De hal/entree met pvc vloer biedt hier toegang tot de vernieuwde meterkast, de moderne toiletruimte met zwevend toilet en fonteintje, de trapopgang naar de eerste verdieping en de woonkamer. De woonkamer is tevens voorzien van een pvc vloer en heeft veel lichtinval door de grote raampartijen. Via de open keuken is de woonkamer bereikbaar, deze is ook voorzien van dezelfde pvc vloer. De keuken is voorzien van een moderne keukencombinatie met inbouwapparatuur; inductiekookplaat, afzuigkap, koelkast, combimagnetron en vaatwasser. De moderne keuken biedt toegang tot een praktische provisiekelder en de achtertuin met overkapping en berging.
Eerste verdieping:
De ruime overloop geeft hier toegang tot de 3 slaapkamers, een tussenkamer en de badkamer. De badkamer beschikt over een douchecabine, een toilet en een wastafel met spiegelkast. De overloop en de slaapkamers zijn voorzien van één vinylvloer.
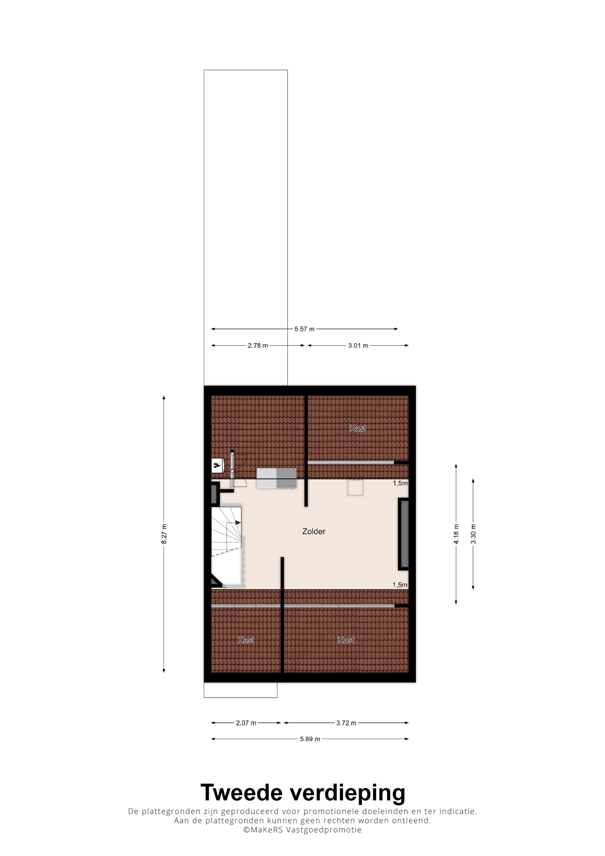
Tweede verdieping:
Via de tussenkamer met vaste trap is er toegang tot de tweede verdieping met dakraam. Hier bevindt zich de opstelling van de cv-ketel (Nefit Trendline HRC30 / CW5, 2016, eigendom) en de witgoedaansluitingen. De mogelijkheid van een extra 4e slaapkamer is hier aanwezig.
Exterieur:
De woning is aan de voor- en achterzijde voorzien van een opnieuw aangelegde tuin.
De achtertuin heeft de beschikking over een overkapping, terras, gazon, een achterom en een vrijstaande stenen berging.
Deze berging met pannen dak is voorzien van elektra.
Bijzonderheden:
Recent zijn veel zaken in de woning aangepakt. Zo is onder andere de keuken vernieuwd (2021), is de toiletruimte op de begane grond vernieuwd, meterkast (elektra) vernieuwd, stucwerk en zijn enkele binnenmuren extra geïsoleerd, zijn de deuren geschilderd en zijn de begane grond (pvc) en eerste verdieping (vinyl) voorzien van nieuwe vloeren. Verder is de gehele woning voorzien van kunststof kozijnen met grotendeels dubbele beglazing (HR++), rolluiken (deels elektrisch), 12 zonnepanelen en een energielabel B.
Locatie:
De woning is rustig gelegen in een woonwijk. Het centrum van Echt is nabij en kent uitgebreide winkelvoorzieningen, basis-/ en voortgezet onderwijs, sportfaciliteiten, een rijk verenigingsleven en een perfecte bereikbaarheid via de A2 en A73. Daarnaast is er een bushalte op loopstand en het NS-station, met directe treinverbindingen naar Roermond, Maastricht, Eindhoven en Venlo op steenworp afstand.
Interactief:
Kijk ook op onze Homevision site om de plattegronden van de woning te bekijken en interactief in te richten met uw eigen meubelopstelling.
Indeling:
Kelder:
Praktische provisiekelder.
Begane grond:
De hal/entree met pvc vloer biedt hier toegang tot de vernieuwde meterkast, de moderne toiletruimte met zwevend toilet en fonteintje, de trapopgang naar de eerste verdieping en de woonkamer. De woonkamer is tevens voorzien van een pvc vloer en heeft veel lichtinval door de grote raampartijen. Via de open keuken is de woonkamer bereikbaar, deze is ook voorzien van dezelfde pvc vloer. De keuken is voorzien van een moderne keukencombinatie met inbouwapparatuur; inductiekookplaat, afzuigkap, koelkast, combimagnetron en vaatwasser. De moderne keuken biedt toegang tot een praktische provisiekelder en de achtertuin met overkapping en berging.
Eerste verdieping:
De ruime overloop geeft hier toegang tot de 3 slaapkamers, een tussenkamer en de badkamer. De badkamer beschikt over een douchecabine, een toilet en een wastafel met spiegelkast. De overloop en de slaapkamers zijn voorzien van één vinylvloer.
Tweede verdieping:
Via de tussenkamer met vaste trap is er toegang tot de tweede verdieping met dakraam. Hier bevindt zich de opstelling van de cv-ketel (Nefit Trendline HRC30 / CW5, 2016, eigendom) en de witgoedaansluitingen. De mogelijkheid van een extra 4e slaapkamer is hier aanwezig.
Exterieur:
De woning is aan de voor- en achterzijde voorzien van een opnieuw aangelegde tuin.
De achtertuin heeft de beschikking over een overkapping, terras, gazon, een achterom en een vrijstaande stenen berging.
Deze berging met pannen dak is voorzien van elektra.
Bijzonderheden:
Recent zijn veel zaken in de woning aangepakt. Zo is onder andere de keuken vernieuwd (2021), is de toiletruimte op de begane grond vernieuwd, meterkast (elektra) vernieuwd, stucwerk en zijn enkele binnenmuren extra geïsoleerd, zijn de deuren geschilderd en zijn de begane grond (pvc) en eerste verdieping (vinyl) voorzien van nieuwe vloeren. Verder is de gehele woning voorzien van kunststof kozijnen met grotendeels dubbele beglazing (HR++), rolluiken (deels elektrisch), 12 zonnepanelen en een energielabel B.
Locatie:
De woning is rustig gelegen in een woonwijk. Het centrum van Echt is nabij en kent uitgebreide winkelvoorzieningen, basis-/ en voortgezet onderwijs, sportfaciliteiten, een rijk verenigingsleven en een perfecte bereikbaarheid via de A2 en A73. Daarnaast is er een bushalte op loopstand en het NS-station, met directe treinverbindingen naar Roermond, Maastricht, Eindhoven en Venlo op steenworp afstand.
Interactief:
Kijk ook op onze Homevision site om de plattegronden van de woning te bekijken en interactief in te richten met uw eigen meubelopstelling.
+ Read more
- Read less
Construction: {{
product.build_year }}
Construction: {{ product.build_period.start }} -
{{ product.build_period.end }}
House
, Single-family house
{{ product.rooms }} rooms
{{ product.bedrooms
}} bedrooms
Living space: {{
product.living_space }} m²
Plot: {{
product.plot_surface }} m²
Energy class: {{ product.energy_class }}
Energy index: {{ product.energy_index }}
Characteristics
{{ field.label }}
{{ field.value }}
+ Read more
{{ field.label }}
{{ field.value }}
- Read less
{{ product.company.name }}
Contact us
{{ product.company.phone.replace('-', ' ').substr(0, 7) }}...
{{ product.company.phone.replace('-', ' ') }}
Share:
Date