Sold
€ {{ product.price.replace(/\B(?=(\d{4})+(?!\d))/g, ".") }} {{ __(product.price_condition) }}
Photo’s
{{ product.images.length }}
Floorplan
{{ product.plans.length }}
360° photo’s {{ product.panoramas.length }}
Video’s {{ product.videos.length }}
Maps
All media

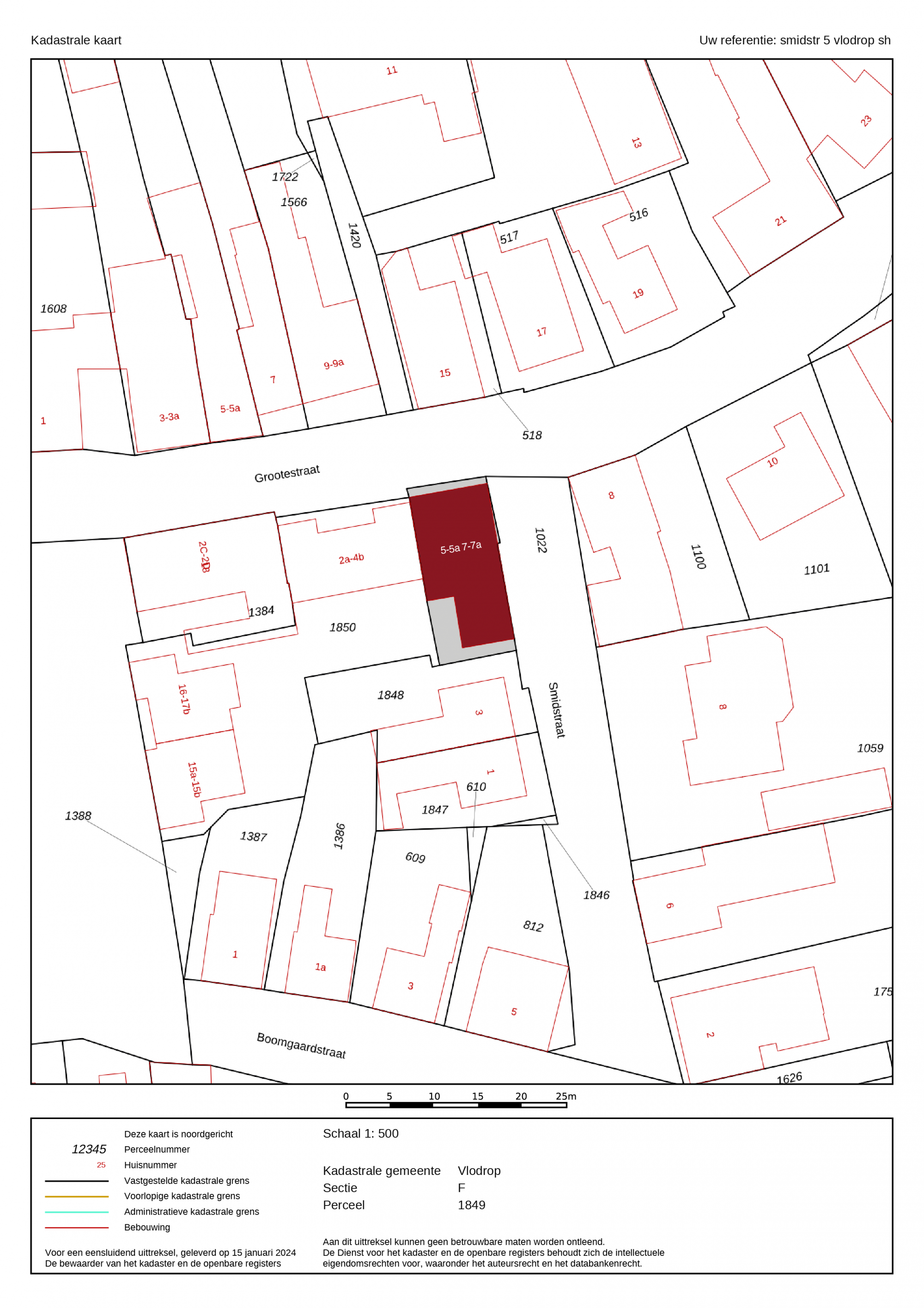
Apartment for sale Smidstraat 5 Vlodrop

€ {{ product.price.replace(/\B(?=(\d{4})+(?!\d))/g, ".") }} {{ __(product.price_condition) }}
Sold

Description

Beleggingsobject te koop met maar liefst 4 appartementen in verhuurde staat met een interessant rendement!
Gelegen in het dorpshart van Vlodrop in een rustige, centrale én groene omgeving.

Dit kleinschalige appartementencomplex bestaat uit maar liefst vier appartementen: twee op de begane grond en twee op de eerste verdieping. Elk appartement is zelfstandig en het complex is bouwkundig gesplitst in 2017. Een unieke kans voor investeerders, want alle appartementen zijn momenteel goed verhuurd (interessante huuropbrengsten op aanvraag beschikbaar).

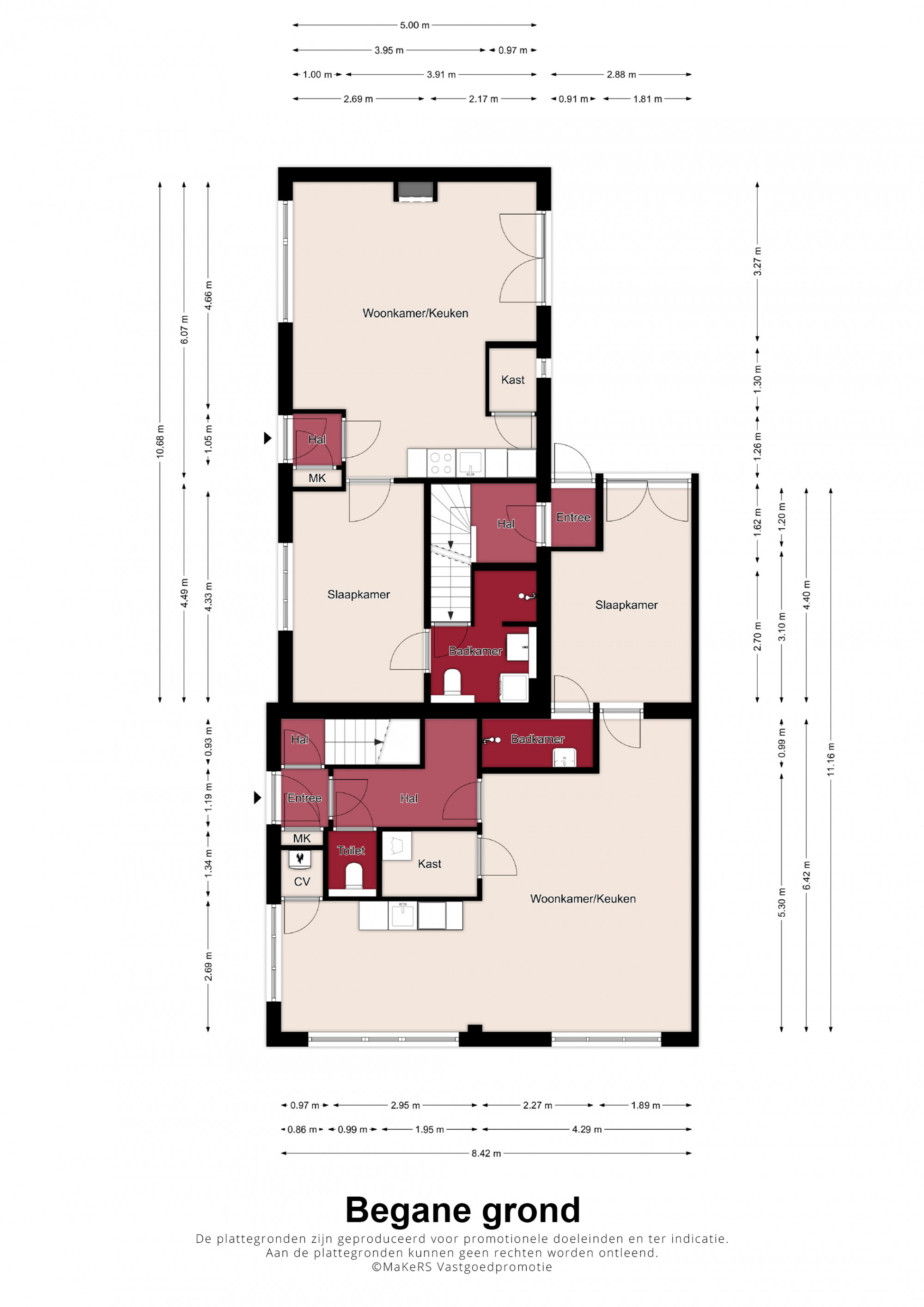
Indeling:

Kelder: Provisieruimte/berging (Appartement 5a heeft een eigen kelder. Meerdere kelderruimtes toegankelijk via een luik, trap en afgesloten deur. Momenteel niet in gebruik).

Begane Grond (appartement 1 & 2 van 4 in het totaal):

- Appartement nr. 5 (49 m²): Eigen entree, hal, woonkamer met open keuken (kookplaat, afzuigkap, oven), slaapkamer met tuindeuren naar buitenplaats, complete badkamer (wastafel, inloopdouche, toilet, witgoedaansluiting).

- Appartement nr. 7 (62 m²): Eigen entree, hal, woonkamer met open keuken (afzuigkap), slaapkamer met tuindeuren naar buitenplaats, badkamer (wastafel, douche), cv-ruimte en bergkast met witgoedaansluiting.

Eerste Verdieping (appartement 3 en 4):

- Appartement nr. 5a (52 m²): Eigen trap naar hal, woonkamer met open keuken (kookplaat, afzuigkap), slaapkamer, badkamer (wastafel, douche, toilet), berging, bergkast met wasmachineaansluiting.

- Appartement nr. 7a (57 m²): Eigen trap naar hal, woonkamer met open keuken (kookplaat, afzuigkap), slaapkamer, badkamer (wastafel, inloopdouche, toilet, wasmachineaansluiting), vliering (momenteel deels als slaapplaats).

Bijzonderheden:
Kozijnen deels hout en kunststof, grotendeels dubbel glas en deels rolluiken.
Gedeeltelijke dak-, plafond- en muurisolatie. In 2023 is het dak van binnenuit geïsoleerd .
20 zonnepanelen (2 installaties 11+9).
Gehele complex gemoderniseerd in 2017
Eigen buitenplaats en kelderruimte in het souterrain.
Verkoop in verhuurde staat als totaal complex (wordt niet in delen verkocht).

Energielabels zijn nog van vóór de aanpassingen:
Appartement 5: Label F
Appartement 5a: Label E
Appartement 7: Label E
Appartement 7a: Label E
(Labels E in 2020, daarna dubbel glas, zolderisolatie en zonnepanelen toegevoegd).

Ligging:
Gelegen in het dorpshart van Vlodrop in een rustige en groene omgeving.
Op loopafstand van dagelijkse voorzieningen: winkels, restaurants, basisschool, sportfaciliteiten.
Dicht bij N293 (Roermond/Duitse grens) en A73, met goede verbindingen naar Maastricht, Eindhoven en Venlo. Nationaal Park “De Meinweg” op enkele minuten rijden.

Interactief:
Bezoek onze Homevision-site voor interactieve plattegronden en uw eigen meubelopstelling.
Voor meer informatie en/of een bezichtiging kunt u contact opnemen met ons kantoor voor meer informatie in de vragenlijst.
+ Read more
- Read less
Construction: {{ product.build_year }}
Construction: {{ product.build_period.start }} - {{ product.build_period.end }}
Apartment
{{ product.rooms }} rooms
{{ product.bedrooms }} bedrooms
Living space: {{ product.living_space }} m²
Plot: {{ product.plot_surface }} m²
Energy class:    {{ product.energy_class }}
Energy index: {{ product.energy_index }}

Characteristics

{{ field.label }}
{{ field.value }}

{{ field.label }}
{{ field.value }}
{{ product.company.name }}
Contact us
{{ product.company.phone.replace('-', ' ').substr(0, 7) }}...
{{ product.company.phone.replace('-', ' ') }}
Share:

Similar objects in the neighborhood