Sold
€ {{ product.price.replace(/\B(?=(\d{4})+(?!\d))/g, ".") }} {{ __(product.price_condition) }}
Photo’s
{{ product.images.length }}
Floorplan
{{ product.plans.length }}
360° photo’s {{ product.panoramas.length }}
Video’s {{ product.videos.length }}
Maps
All media
Apartment for sale B1 ong Simpelveld
€ {{ product.price.replace(/\B(?=(\d{4})+(?!\d))/g, ".") }} {{ __(product.price_condition) }}
Sold
Description
Welkom in het bruisende hart van Simpelveld! Een prachtige gemeente gelegen in het hart van Limburg.
Deze nieuwbouw appartementen aan de markt bieden je de unieke mogelijkheid om te genieten van een
dynamische omgeving met alle voorzieningen binnen handbereik. Het centrum biedt een scala aan winkels,
boetiekjes en horeca, waardoor je mogelijkheden hebt om te winkelen, te dineren en te genieten van de lokale
cultuur.
Het nieuwbouw appartement zorgt voor een luxueuze leefomgeving. Elke woning is zorgvuldig ontworpen met
hoogwaardige materialen en aandacht voor detail, waardoor je het gevoel van exclusiviteit ervaart. De ruime
indeling van de appartementen biedt voldoende ruimte om te ontspannen en tot rust te komen. Geniet van het
prachtige uitzicht over het plein en de markt vanaf je loggia.
Het nieuwbouw project An d'r Maat in het centrum van Simpelveld, bestaat uit 26 appartementen in 2 bouwblokken. Beide complexen kijken uit op een leuke binnenplaats.
Er komen verschillende typen appartementen, waarvan 23 type A appartementen.
Type B, Appartement 02.09 op de eerste verdieping en tweede verdieping
Indeling
Er komt slechts 1 type B1 woning. Deze woning is op de hoek gelegen waardoor er zowel uitzicht op het plein als op de markt is.
De woonkamer met open keuken (ca. 42m2) heeft een balkon/ loggia van ca. 3.1 x 1.8 m met uitzicht op het gezellig aangelegde plein aan de voorzijde.
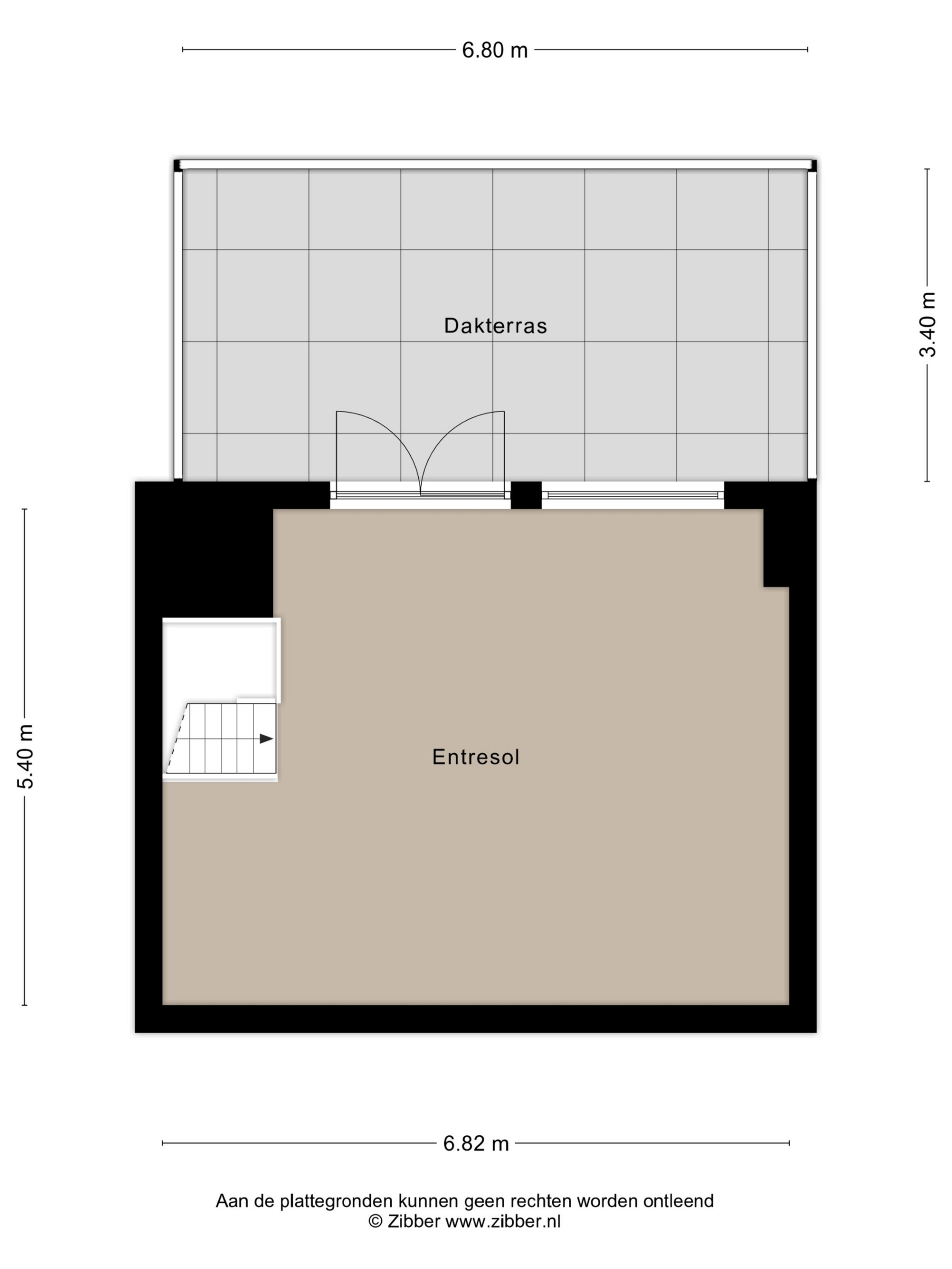
Daarnaast beschikt het appartement over 2 slaapkamers ( 4.5 x 2.9m en 2.6 x 3.3m) en een badkamer. Deze badkamer is ingericht met een inloopdouche en wastafel. De woning beschikt over een separaat toilet met fonteintje en een berging met de aansluiting voor de wasmachine en droger. Vanuit de hal is middels een vaste trap de entresol (6.8 x 5.4m) bereikbaar met aansluitend het dakterras (ca. 6.8 x 3.4m)
Kijk voor meer informatie op de projectwebsite www.an-dr-maat.nl
AANSPRAKELIJKHEID
Het bovenstaande behelst slechts een globale omschrijving van een object. De informatie berust deels op door derden aan onze kantoren verstrekte gegevens. Met de meeste zorg hebben wij deze informatie verwerkt doch kunnen ten aanzien van de juistheid van deze gegevens geen aansprakelijkheid aanvaarden. Aan deze brochure kunnen geen rechten worden ontleend.
Deze nieuwbouw appartementen aan de markt bieden je de unieke mogelijkheid om te genieten van een
dynamische omgeving met alle voorzieningen binnen handbereik. Het centrum biedt een scala aan winkels,
boetiekjes en horeca, waardoor je mogelijkheden hebt om te winkelen, te dineren en te genieten van de lokale
cultuur.
Het nieuwbouw appartement zorgt voor een luxueuze leefomgeving. Elke woning is zorgvuldig ontworpen met
hoogwaardige materialen en aandacht voor detail, waardoor je het gevoel van exclusiviteit ervaart. De ruime
indeling van de appartementen biedt voldoende ruimte om te ontspannen en tot rust te komen. Geniet van het
prachtige uitzicht over het plein en de markt vanaf je loggia.
Het nieuwbouw project An d'r Maat in het centrum van Simpelveld, bestaat uit 26 appartementen in 2 bouwblokken. Beide complexen kijken uit op een leuke binnenplaats.
Er komen verschillende typen appartementen, waarvan 23 type A appartementen.
Type B, Appartement 02.09 op de eerste verdieping en tweede verdieping
Indeling
Er komt slechts 1 type B1 woning. Deze woning is op de hoek gelegen waardoor er zowel uitzicht op het plein als op de markt is.
De woonkamer met open keuken (ca. 42m2) heeft een balkon/ loggia van ca. 3.1 x 1.8 m met uitzicht op het gezellig aangelegde plein aan de voorzijde.
Daarnaast beschikt het appartement over 2 slaapkamers ( 4.5 x 2.9m en 2.6 x 3.3m) en een badkamer. Deze badkamer is ingericht met een inloopdouche en wastafel. De woning beschikt over een separaat toilet met fonteintje en een berging met de aansluiting voor de wasmachine en droger. Vanuit de hal is middels een vaste trap de entresol (6.8 x 5.4m) bereikbaar met aansluitend het dakterras (ca. 6.8 x 3.4m)
Kijk voor meer informatie op de projectwebsite www.an-dr-maat.nl
AANSPRAKELIJKHEID
Het bovenstaande behelst slechts een globale omschrijving van een object. De informatie berust deels op door derden aan onze kantoren verstrekte gegevens. Met de meeste zorg hebben wij deze informatie verwerkt doch kunnen ten aanzien van de juistheid van deze gegevens geen aansprakelijkheid aanvaarden. Aan deze brochure kunnen geen rechten worden ontleend.
+ Read more
- Read less
Construction: {{
product.build_year }}
Construction: {{ product.build_period.start }} -
{{ product.build_period.end }}
Apartment
, Gallery flat
{{ product.rooms }} rooms
{{ product.bedrooms
}} bedrooms
Living space: {{
product.living_space }} m²
Plot: {{
product.plot_surface }} m²
Energy class: {{ product.energy_class }}
Energy index: {{ product.energy_index }}
Characteristics
{{ field.label }}
{{ field.value }}
+ Read more
{{ field.label }}
{{ field.value }}
- Read less
{{ product.company.name }}
Contact us
{{ product.company.phone.replace('-', ' ').substr(0, 7) }}...
{{ product.company.phone.replace('-', ' ') }}
Share:
Date