Available
€ {{ product.price.replace(/\B(?=(\d{4})+(?!\d))/g, ".") }} {{ __(product.price_condition) }}
Photo’s
{{ product.images.length }}
Floorplan
{{ product.plans.length }}
360° photo’s {{ product.panoramas.length }}
Video’s {{ product.videos.length }}
Maps
All media
Apartment for sale Calvariestraat 52 C Maastricht
€ {{ product.price.replace(/\B(?=(\d{4})+(?!\d))/g, ".") }} {{ __(product.price_condition) }}
Available
Description
Welkom aan de Calvariestraat 52C, een sfeervol appartement in het hart van Maastricht! Dit karaktervolle appartement, met een woonoppervlakte van ca. 78m², is ideaal gelegen op loopafstand van het Vrijthof en biedt een unieke kans om te wonen in een historische omgeving met alle moderne gemakken. Met twee slaapkamers, een ruime woonkamer en extra zolderruimte combineert deze woning het beste van twee werelden: de charme van een historisch gebouw en het comfort van moderne voorzieningen. Gelegen op een toplocatie, met winkels, restaurants en cultuur binnen handbereik, is dit de perfecte woning voor wie op zoek is naar comfort en een centrale ligging.
LET OP! Palmen & Dassen project notaris.
Souterrain:
Bij binnenkomst via de eigen entree op de begane grond, heeft u toegang tot de kelderruimte. Deze kelder is alleen toegankelijk voor de gas- en watermeter en niet voor opslag.
Begane grond:
De begane grond fungeert als entreehal voor het appartement. Via de entree aan de voorzijde van het gebouw komt u binnen in een ruime hal met een hoogte van 3,20 meter, die toegang biedt tot de trap naar de eerste verdieping. Deze entreehal is breed genoeg om fietsen of andere spullen te plaatsen.
Tweede verdieping:
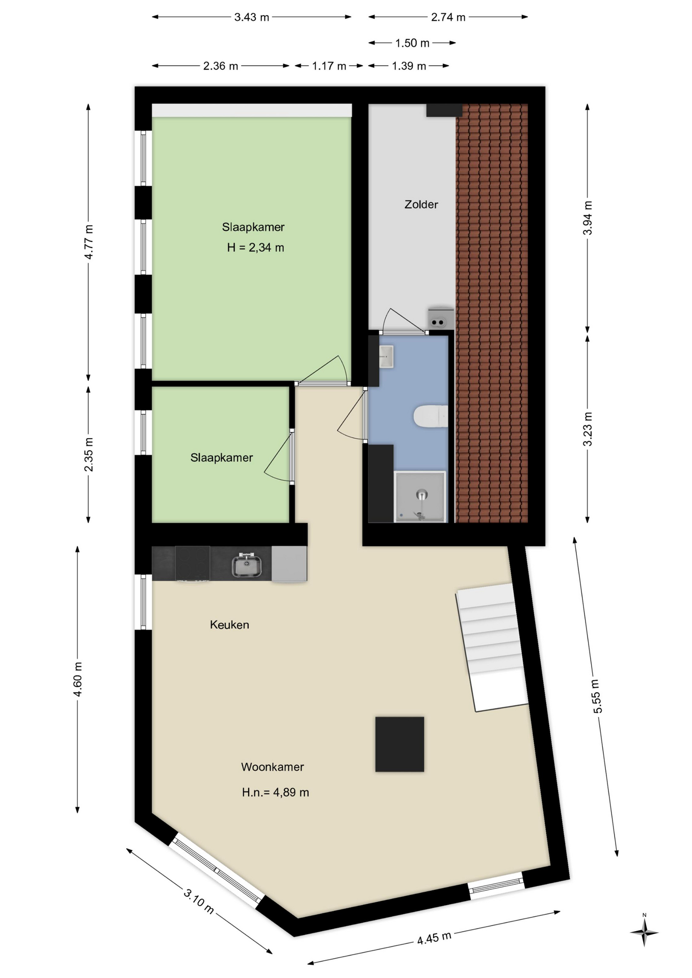
De tweede verdieping is het hart van het appartement. De ruime woonkamer met een indrukwekkende plafondhoogte van 4,89 meter is voorzien van grote ramen, waardoor de ruimte licht en luchtig aanvoelt. De open keuken is uitgerust met inbouwapparatuur zoals een gasfornuis, afzuigkap, en een oven, wat het koken tot een plezierige ervaring maakt.
Op deze verdieping bevinden zich ook twee comfortabele slaapkamers. Beide kamers zijn ruim en licht, met voldoende ruimte voor bedden en opbergmeubels. De badkamer, gelegen op de overloop, is voorzien van een inloopdouche, een hang closet, en een wastafel, waardoor u van alle gemakken bent voorzien.
De vide biedt extra ruimte in de vorm van een zolder, ideaal voor het opslaan van seizoensgebonden spullen of als hobbyruimte. Deze verdieping kan tevens worden ingericht als een werkruimte of logeerkamer, afhankelijk van uw behoeften.
Leuk om te weten:
- Bouwjaar 1926 (conform BAG);
- Woonoppervlakte ca. 78m² (NEN 2580 meetrapport aanwezig);
- Twee slaapkamers;
- GEHEEL VERNIEUWD DAK!!!
- VVE-bijdrage € 75,-- /mnd;
- Op 3 minuten loopafstand van het Vrijthof;
- Aanvaarding in overleg!
De waarborgsom/bankgarantie is 10% van de koopsom. De koper dient deze, indien de verkoper en koper dit overeenkomen, binnen 2 weken nadat het financieringsvoorbehoud is verlopen bij de desbetreffende notaris te deponeren.
Ter bescherming van de belangen van zowel koper als ook verkoper wordt uitdrukkelijk gesteld dat een koopovereenkomst met betrekking tot deze onroerende zaak eerst dan tot stand komt nadat koper en verkoper de koopovereenkomst hebben getekend (schriftelijkheidsvereiste).
Indien c.v.ketel en/of warmwatervoorziening een huurtoestel is, dient koper de huurovereenkomst over te nemen.
Alle door ons kantoor verstrekte informatie omtrent onroerende zaken, moet beschouwd worden als een uitnodiging om in onderhandeling te treden, en is geheel vrijblijvend! Alle vermelde maten en afmetingen zijn slechts bij benadering. Aan deze beperkte info kunnen geen rechten worden ontleend. Indien in enige documentatie of op enige website informatie staat die niet overeen komt met de werkelijkheid, dan geldt de feitelijke situatie waarin de woning zich bevindt, zoals koper deze tijdens de bezichtiging heeft kunnen waarnemen, en wordt de woning in deze feitelijke situatie/staat verkocht. Een (eventueel) bijgevoegde plattegrond dient uitsluitend als globale indicatie/visualisatie. Hieraan kunnen uitdrukkelijk geen rechten worden ontleend.
De makelaar Ray van der Venne nodigt u uit voor een bezichtiging.
LET OP! Palmen & Dassen project notaris.
Souterrain:
Bij binnenkomst via de eigen entree op de begane grond, heeft u toegang tot de kelderruimte. Deze kelder is alleen toegankelijk voor de gas- en watermeter en niet voor opslag.
Begane grond:
De begane grond fungeert als entreehal voor het appartement. Via de entree aan de voorzijde van het gebouw komt u binnen in een ruime hal met een hoogte van 3,20 meter, die toegang biedt tot de trap naar de eerste verdieping. Deze entreehal is breed genoeg om fietsen of andere spullen te plaatsen.
Tweede verdieping:
De tweede verdieping is het hart van het appartement. De ruime woonkamer met een indrukwekkende plafondhoogte van 4,89 meter is voorzien van grote ramen, waardoor de ruimte licht en luchtig aanvoelt. De open keuken is uitgerust met inbouwapparatuur zoals een gasfornuis, afzuigkap, en een oven, wat het koken tot een plezierige ervaring maakt.
Op deze verdieping bevinden zich ook twee comfortabele slaapkamers. Beide kamers zijn ruim en licht, met voldoende ruimte voor bedden en opbergmeubels. De badkamer, gelegen op de overloop, is voorzien van een inloopdouche, een hang closet, en een wastafel, waardoor u van alle gemakken bent voorzien.
De vide biedt extra ruimte in de vorm van een zolder, ideaal voor het opslaan van seizoensgebonden spullen of als hobbyruimte. Deze verdieping kan tevens worden ingericht als een werkruimte of logeerkamer, afhankelijk van uw behoeften.
Leuk om te weten:
- Bouwjaar 1926 (conform BAG);
- Woonoppervlakte ca. 78m² (NEN 2580 meetrapport aanwezig);
- Twee slaapkamers;
- GEHEEL VERNIEUWD DAK!!!
- VVE-bijdrage € 75,-- /mnd;
- Op 3 minuten loopafstand van het Vrijthof;
- Aanvaarding in overleg!
De waarborgsom/bankgarantie is 10% van de koopsom. De koper dient deze, indien de verkoper en koper dit overeenkomen, binnen 2 weken nadat het financieringsvoorbehoud is verlopen bij de desbetreffende notaris te deponeren.
Ter bescherming van de belangen van zowel koper als ook verkoper wordt uitdrukkelijk gesteld dat een koopovereenkomst met betrekking tot deze onroerende zaak eerst dan tot stand komt nadat koper en verkoper de koopovereenkomst hebben getekend (schriftelijkheidsvereiste).
Indien c.v.ketel en/of warmwatervoorziening een huurtoestel is, dient koper de huurovereenkomst over te nemen.
Alle door ons kantoor verstrekte informatie omtrent onroerende zaken, moet beschouwd worden als een uitnodiging om in onderhandeling te treden, en is geheel vrijblijvend! Alle vermelde maten en afmetingen zijn slechts bij benadering. Aan deze beperkte info kunnen geen rechten worden ontleend. Indien in enige documentatie of op enige website informatie staat die niet overeen komt met de werkelijkheid, dan geldt de feitelijke situatie waarin de woning zich bevindt, zoals koper deze tijdens de bezichtiging heeft kunnen waarnemen, en wordt de woning in deze feitelijke situatie/staat verkocht. Een (eventueel) bijgevoegde plattegrond dient uitsluitend als globale indicatie/visualisatie. Hieraan kunnen uitdrukkelijk geen rechten worden ontleend.
De makelaar Ray van der Venne nodigt u uit voor een bezichtiging.
+ Read more
- Read less
Construction: {{
product.build_year }}
Construction: {{ product.build_period.start }} -
{{ product.build_period.end }}
Apartment
, Top floor
{{ product.rooms }} rooms
{{ product.bedrooms
}} bedrooms
Living space: {{
product.living_space }} m²
Plot: {{
product.plot_surface }} m²
Energy class: {{ product.energy_class }}
Energy index: {{ product.energy_index }}
Characteristics
{{ field.label }}
{{ field.value }}
+ Read more
{{ field.label }}
{{ field.value }}
- Read less
{{ product.company.name }}
Contact us
{{ product.company.phone.replace('-', ' ').substr(0, 7) }}...
{{ product.company.phone.replace('-', ' ') }}
Share:
Date