Sold
€ {{ product.price.replace(/\B(?=(\d{4})+(?!\d))/g, ".") }} {{ __(product.price_condition) }}
Photo’s
{{ product.images.length }}
Floorplan
{{ product.plans.length }}
360° photo’s {{ product.panoramas.length }}
Video’s {{ product.videos.length }}
Maps
All media
Apartment for sale Deken Bernardstraat 23 Maasmechelen
€ {{ product.price.replace(/\B(?=(\d{4})+(?!\d))/g, ".") }} {{ __(product.price_condition) }}
Sold
Description
Centraal gelegen in Maasmechelen, bieden wij u met veel enthousiasme dit exclusief duplex-appartement aan!
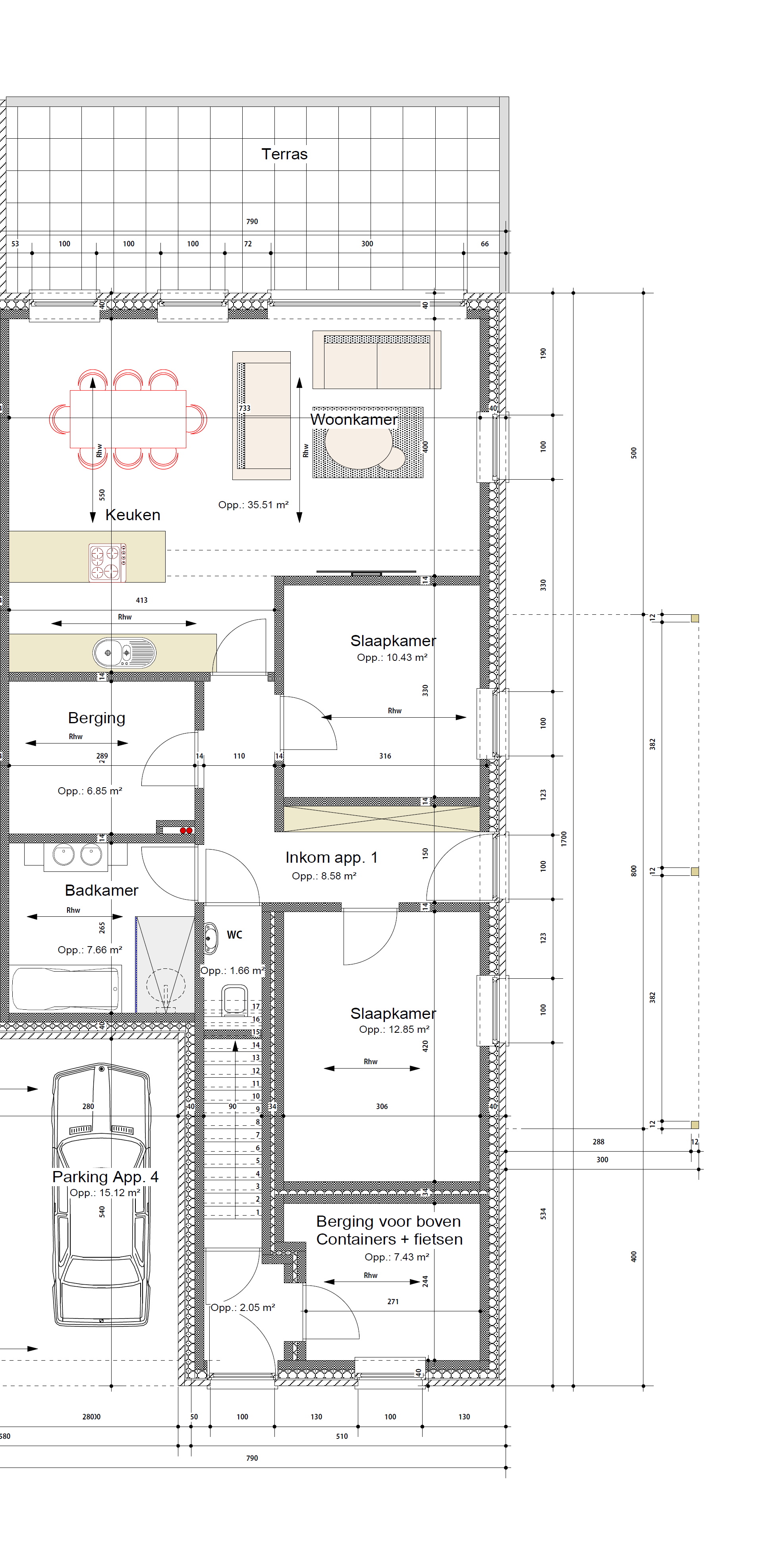
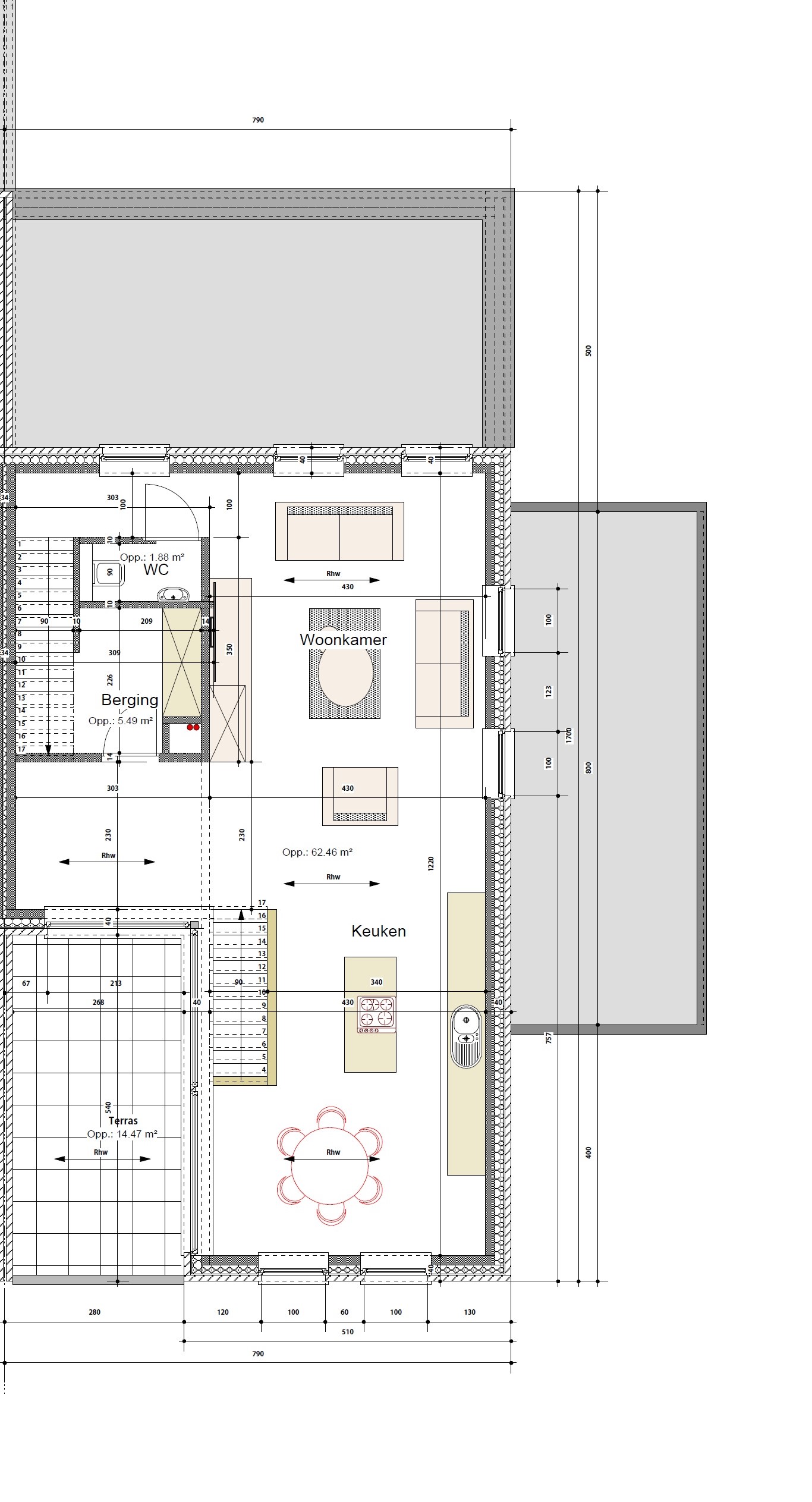
Dit nieuwbouw appartement beschikt over een bewoonbare oppervlakte van maar liefst 155m² en is bereikbaar via de voorzijde met een aparte ingang.
Het maakt deel uit van een 4-delig wooncomplex dat in 2022 werd gebouwd. Scholen, winkels, openbaar vervoer en de autostrade maken dat dit appartement perfect gelokaliseerd is!
Gelijkvloers kan u via een aparte inkomhal het appartement betreden, waar u ruimte heeft voor een vestiaire of de mogelijkheid heeft fietsen te plaatsen. Via de trappen bereikt u de ruime leefruimte met open keuken op de eerste verdieping,
Vlakbij de keuken is er de berging met aansluitingen voor uw droger en wasmachine en via een schuifraam krijgt u toegang tot het overdekt, zuid gericht terras.
Een apart toilet bevindt zich ook op deze verdieping.
Op de tweede verdieping zijn er 2 grote slaapkamers aanwezig, alsook de badkamer die uitgerust zal worden met douche, ligbad, toilet en lavabo.
Ook een extra bergruimte ontbreekt hier niet.
De derde (zolder)verdieping is niet afgewerkt.
Troeven:
- Kleine residentie op ideale locatie, geen gemeenschappelijke kosten
- BEN appartement (bijna energie neutraal) -> Extra bonus: 5 jaar vrijgesteld voor 50% van het kadastraal inkomen!
- Bewoonbaar oppervlakte van 155m²
- Zonnepanelen
- 2 autostaanplaatsen, waarvan 1 overdekt + voorziening voor het installeren van een laadpaal
- Het appartement wordt volledig afgewerkt
We geven u met veel plezier een rondleiding om zo de kwaliteiten van dit mooi appartement te ontdekken!
Contacteer ons op het nummer 0484.35.70.31 of mail naar diana@jemar.be voor een bezoek ter plaatse!
Dit nieuwbouw appartement beschikt over een bewoonbare oppervlakte van maar liefst 155m² en is bereikbaar via de voorzijde met een aparte ingang.
Het maakt deel uit van een 4-delig wooncomplex dat in 2022 werd gebouwd. Scholen, winkels, openbaar vervoer en de autostrade maken dat dit appartement perfect gelokaliseerd is!
Gelijkvloers kan u via een aparte inkomhal het appartement betreden, waar u ruimte heeft voor een vestiaire of de mogelijkheid heeft fietsen te plaatsen. Via de trappen bereikt u de ruime leefruimte met open keuken op de eerste verdieping,
Vlakbij de keuken is er de berging met aansluitingen voor uw droger en wasmachine en via een schuifraam krijgt u toegang tot het overdekt, zuid gericht terras.
Een apart toilet bevindt zich ook op deze verdieping.
Op de tweede verdieping zijn er 2 grote slaapkamers aanwezig, alsook de badkamer die uitgerust zal worden met douche, ligbad, toilet en lavabo.
Ook een extra bergruimte ontbreekt hier niet.
De derde (zolder)verdieping is niet afgewerkt.
Troeven:
- Kleine residentie op ideale locatie, geen gemeenschappelijke kosten
- BEN appartement (bijna energie neutraal) -> Extra bonus: 5 jaar vrijgesteld voor 50% van het kadastraal inkomen!
- Bewoonbaar oppervlakte van 155m²
- Zonnepanelen
- 2 autostaanplaatsen, waarvan 1 overdekt + voorziening voor het installeren van een laadpaal
- Het appartement wordt volledig afgewerkt
We geven u met veel plezier een rondleiding om zo de kwaliteiten van dit mooi appartement te ontdekken!
Contacteer ons op het nummer 0484.35.70.31 of mail naar diana@jemar.be voor een bezoek ter plaatse!
+ Read more
- Read less
Construction: {{
product.build_year }}
Construction: {{ product.build_period.start }} -
{{ product.build_period.end }}
Apartment
, Top floor
{{ product.rooms }} rooms
{{ product.bedrooms
}} bedrooms
Living space: {{
product.living_space }} m²
Plot: {{
product.plot_surface }} m²
Energy class: {{ product.energy_class }}
Energy index: {{ product.energy_index }}
Characteristics
{{ field.label }}
{{ field.value }}
+ Read more
{{ field.label }}
{{ field.value }}
- Read less
{{ product.company.name }}
Contact us
{{ product.company.phone.replace('-', ' ').substr(0, 7) }}...
{{ product.company.phone.replace('-', ' ') }}
Share:
Date