Sold under reservation
€ {{ product.price.replace(/\B(?=(\d{4})+(?!\d))/g, ".") }} {{ __(product.price_condition) }}
Photo’s
{{ product.images.length }}
Floorplan
{{ product.plans.length }}
360° photo’s {{ product.panoramas.length }}
Video’s {{ product.videos.length }}
Maps
All media
Apartment for sale Vrieheidepark 39 Heerlen
€ {{ product.price.replace(/\B(?=(\d{4})+(?!\d))/g, ".") }} {{ __(product.price_condition) }}
Sold under reservation
Description
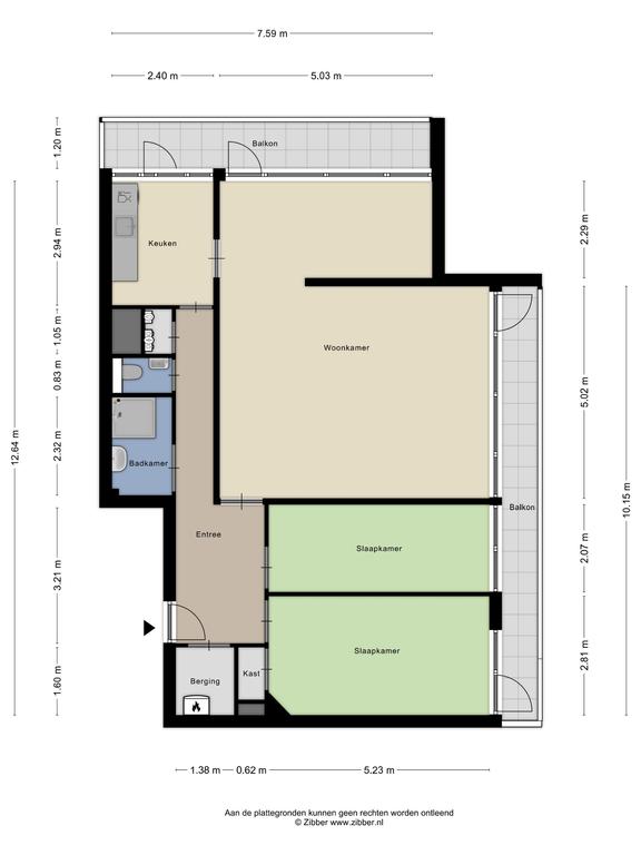
Nabij de Brunssummerheide staat dit appartementencomplex. Op de begane grond is dit ruime appartement gesitueerd met een berging in het souterrain. Het complex beschikt over een liftinstallatie en is gelegen nabij de voorzieningen van centrum Heerlerheide
Souterrain
Afgesloten berging
Begane grond
Centrale ingang met bellenplateau, brievenbussen en liftinstallatie; voldoende parkeergelegenheid rondom het complex.
Begane grond
Verdeelhal met toegang tot de appartementen. Entree met ruime hal en toegang tot alle vertrekken; techniekruimte alwaar CV installatie (Intergas - eigendom en wasautomaat aansluiting).
Ruime woonkamer met separate eetkamer beiden met toegang tot een balkon. Vanuit de eetkamer en hal toegang tot de keuken met eenvoudig keukenblok
Slaapkamer 1 met dubbele muurkast met toegang tot het balkon.
Slaapkamer 2
Geheel betegelde badkamer met douche en vaste wastafel., separaat toilet met closet en fonteintje.
Bijzonderheden
Ruim appartement en gelegen nabij Brunssumerheide.
Keuze notaris is aan verkoper. Er geldt een projectnotaris
VvE bijdrage thans € 270,49 per maand
Gehele complex wordt vanaf 2024 voorzien van HR++ beglazing incl. borstwering isolatie, muurisolatie, dakisolatie en zonnepanelen.
Aansprakelijkheid
Het bovenstaande behelst slechts een globale omschrijving van een object. De informatie berust deels op door derden aan onze kantoren verstrekte gegevens. Met de meeste zorg hebben wij deze informatie verwerkt doch kunnen ten aanzien van de juistheid van deze gegevens geen aansprakelijkheid aanvaarden. Aan deze brochure kunnen geen rechten worden ontleend.
Ontbinding
De termijn die wordt opgenomen voor eventuele (overeengekomen) ontbindende voorwaarden (b.v. financiering) is in de regel circa 4 weken na het sluiten van de mondelinge wilsovereenkomst.
Zekerheidsstelling
De waarborgsom/bankgarantie is 10% van de koopsom. De koper dient deze binnen 7 dagen na definitieve overeenkomst bij de desbetreffende notaris te deponeren.
Onderzoeksplicht van de koper
Koper is te allen tijde gerechtigd voor eigen rekening een bouwkundige keuring te (laten) verrichten dan wel andere adviseurs te raadplegen teneinde een goed inzicht te verkrijgen in de staat van onderhoud.
Souterrain
Afgesloten berging
Begane grond
Centrale ingang met bellenplateau, brievenbussen en liftinstallatie; voldoende parkeergelegenheid rondom het complex.
Begane grond
Verdeelhal met toegang tot de appartementen. Entree met ruime hal en toegang tot alle vertrekken; techniekruimte alwaar CV installatie (Intergas - eigendom en wasautomaat aansluiting).
Ruime woonkamer met separate eetkamer beiden met toegang tot een balkon. Vanuit de eetkamer en hal toegang tot de keuken met eenvoudig keukenblok
Slaapkamer 1 met dubbele muurkast met toegang tot het balkon.
Slaapkamer 2
Geheel betegelde badkamer met douche en vaste wastafel., separaat toilet met closet en fonteintje.
Bijzonderheden
Ruim appartement en gelegen nabij Brunssumerheide.
Keuze notaris is aan verkoper. Er geldt een projectnotaris
VvE bijdrage thans € 270,49 per maand
Gehele complex wordt vanaf 2024 voorzien van HR++ beglazing incl. borstwering isolatie, muurisolatie, dakisolatie en zonnepanelen.
Aansprakelijkheid
Het bovenstaande behelst slechts een globale omschrijving van een object. De informatie berust deels op door derden aan onze kantoren verstrekte gegevens. Met de meeste zorg hebben wij deze informatie verwerkt doch kunnen ten aanzien van de juistheid van deze gegevens geen aansprakelijkheid aanvaarden. Aan deze brochure kunnen geen rechten worden ontleend.
Ontbinding
De termijn die wordt opgenomen voor eventuele (overeengekomen) ontbindende voorwaarden (b.v. financiering) is in de regel circa 4 weken na het sluiten van de mondelinge wilsovereenkomst.
Zekerheidsstelling
De waarborgsom/bankgarantie is 10% van de koopsom. De koper dient deze binnen 7 dagen na definitieve overeenkomst bij de desbetreffende notaris te deponeren.
Onderzoeksplicht van de koper
Koper is te allen tijde gerechtigd voor eigen rekening een bouwkundige keuring te (laten) verrichten dan wel andere adviseurs te raadplegen teneinde een goed inzicht te verkrijgen in de staat van onderhoud.
+ Read more
- Read less
Construction: {{
product.build_year }}
Construction: {{ product.build_period.start }} -
{{ product.build_period.end }}
Apartment
, Porch flat
{{ product.rooms }} rooms
{{ product.bedrooms
}} bedrooms
Living space: {{
product.living_space }} m²
Plot: {{
product.plot_surface }} m²
Energy class: {{ product.energy_class }}
Energy index: {{ product.energy_index }}
Characteristics
{{ field.label }}
{{ field.value }}
+ Read more
{{ field.label }}
{{ field.value }}
- Read less
{{ product.company.name }}
Contact us
{{ product.company.phone.replace('-', ' ').substr(0, 7) }}...
{{ product.company.phone.replace('-', ' ') }}
Share:
Date