Sold
€ {{ product.price.replace(/\B(?=(\d{4})+(?!\d))/g, ".") }} {{ __(product.price_condition) }}
Photo’s
{{ product.images.length }}
Floorplan
{{ product.plans.length }}
360° photo’s {{ product.panoramas.length }}
Video’s {{ product.videos.length }}
Maps
All media
Apartment for sale Mirbachstraat 23 Eygelshoven
€ {{ product.price.replace(/\B(?=(\d{4})+(?!\d))/g, ".") }} {{ __(product.price_condition) }}
Sold
Description
Rustig echter nabij het centrum van Eygelshoven gelegen royale bovenwoning met maar liefst 4 slaapkamers en verdeeld over maar liefst 4 verdiepingen!
Indeling:
Souterrain:
Kelderruimte 1: v.v. tegelvloer en aansluitpunt voor wasmachine en droger.
Kelderruimte 2: Hobbykamer / provisieruimte.
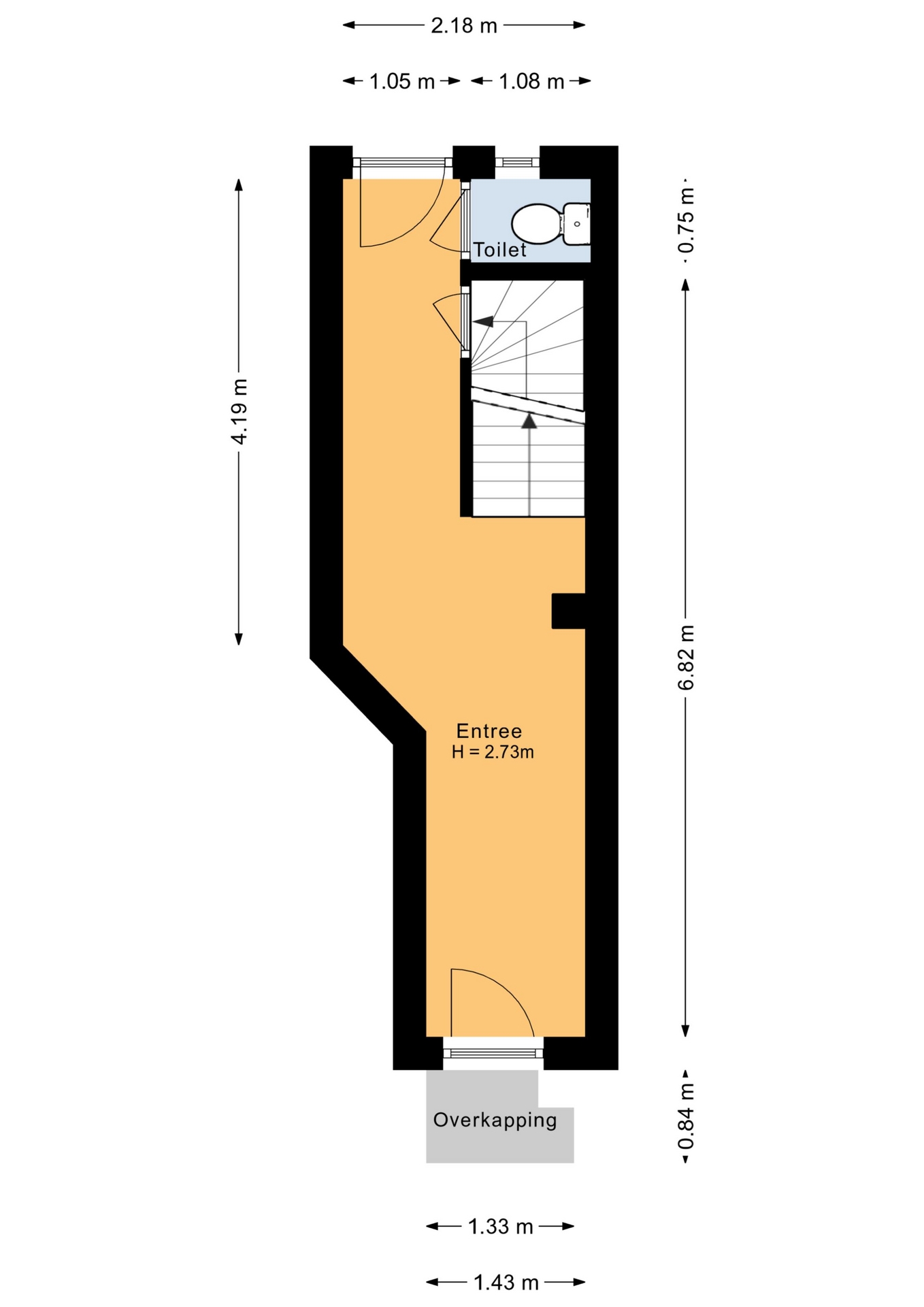
Begane grond:
Ruime hal/entree v.v. granieten plavuizenvloer, meterkast en betegelde toiletruimte alsmede de trap naar de 1e verdieping.
1e Verdieping:
Overloop v.v. laminaatvloer, L-woonkamer v.v. parketvloer en open keuken met aanbouwinstallatie inclusief inbouwapparatuur, te weten, oven, koelkast, vaatwasser afzuiging en keramische kookplaat. Vanuit de keuken heeft men toegang tot het gezellige gedeeltelijk overdekte dakterras v.v. houten vlonderplanken.
1 slaapkamer v.v. laminaatvloer en rolluik.
1 slaapkamer v.v. laminaatvloer en rolluik
2e verdieping:
Overloop v.v. laminaatvloer, betegelde toiletruimte, ruime geheel betegelde nette badkamer v.v. inloopdouche, ligbad en vaste wastafel.
1 slaapkamer v.v. laminaatvloer, dakraam en vaste kastenwand. Via deze slaapkamer heeft men toegang tot de eventueel 4e slaapkamer en/of kleedruimte v.v. laminaatvloer en dakkapel met rolluik.
3e Verdieping:
Middels een vlizotrap is de bergzolder bereikbaar alwaar standplaats C.v-installatie (Remeha, 2022, eigendom)
- Bouwjaar: 1933
- Woonopp: ca. 121m2
- Bruto inhoud bovenwoning totaal: 536m3
- Dakisolatie
- Nagenoeg geheel v.v. dubbel glas in houten kozijnwerk.
- C.v-combi installatie (Remeha, eigendom, 2022)
- Energielabel E
- Het geheel verkeert in goede staat van onderhoud
- Op korte termijn te aanvaarden
Ter bescherming van de belangen van zowel koper als verkoper, wordt uitdrukkelijk gesteld dat een koopovereenkomst met betrekking tot deze onroerende zaak eerst dan tot stand komt nadat koper en verkoper de koopovereenkomst hebben getekend (“schriftelijkheidsvereiste”).
Indien er in de woning huurtoestellen aanwezig zijn zoals CV-ketel, boiler, zonnepanelen, mechanische ventilatie etc. dan dienen deze door de koper te worden overgenomen.
De termijn die wordt opgenomen voor eventuele (overeengekomen) ontbindende voorwaarden (bv. Financiering) is in de regel 4 tot 6 weken na het sluiten van de mondelinge wilsovereenkomst.
De waarborgsom/bankgarantie is 10% van de koopsom. De koper dient deze 3 dagen ná het vervallen van de ontbindende voorwaarden bij de desbetreffende notaris te deponeren.
Koper is te allen tijde gerechtigd voor eigen rekening een bouwkundige keuring te (laten) verrichten dan wel andere adviseurs te raadplegen teneinde een goed inzicht te verkrijgen over de staat van onderhoud.
Deze informatie is door ons, Zuyderhuys Makelaardij met de nodige zorgvuldigheid samengesteld. Onzerzijds wordt echter geen enkele aansprakelijkheid aanvaard voor enige onvolledigheid, onjuist of anderszins, dan wel de gevolgen daarvan. Alle opgegeven maten en oppervlakten zijn indicatief.
Indeling:
Souterrain:
Kelderruimte 1: v.v. tegelvloer en aansluitpunt voor wasmachine en droger.
Kelderruimte 2: Hobbykamer / provisieruimte.
Begane grond:
Ruime hal/entree v.v. granieten plavuizenvloer, meterkast en betegelde toiletruimte alsmede de trap naar de 1e verdieping.
1e Verdieping:
Overloop v.v. laminaatvloer, L-woonkamer v.v. parketvloer en open keuken met aanbouwinstallatie inclusief inbouwapparatuur, te weten, oven, koelkast, vaatwasser afzuiging en keramische kookplaat. Vanuit de keuken heeft men toegang tot het gezellige gedeeltelijk overdekte dakterras v.v. houten vlonderplanken.
1 slaapkamer v.v. laminaatvloer en rolluik.
1 slaapkamer v.v. laminaatvloer en rolluik
2e verdieping:
Overloop v.v. laminaatvloer, betegelde toiletruimte, ruime geheel betegelde nette badkamer v.v. inloopdouche, ligbad en vaste wastafel.
1 slaapkamer v.v. laminaatvloer, dakraam en vaste kastenwand. Via deze slaapkamer heeft men toegang tot de eventueel 4e slaapkamer en/of kleedruimte v.v. laminaatvloer en dakkapel met rolluik.
3e Verdieping:
Middels een vlizotrap is de bergzolder bereikbaar alwaar standplaats C.v-installatie (Remeha, 2022, eigendom)
- Bouwjaar: 1933
- Woonopp: ca. 121m2
- Bruto inhoud bovenwoning totaal: 536m3
- Dakisolatie
- Nagenoeg geheel v.v. dubbel glas in houten kozijnwerk.
- C.v-combi installatie (Remeha, eigendom, 2022)
- Energielabel E
- Het geheel verkeert in goede staat van onderhoud
- Op korte termijn te aanvaarden
Ter bescherming van de belangen van zowel koper als verkoper, wordt uitdrukkelijk gesteld dat een koopovereenkomst met betrekking tot deze onroerende zaak eerst dan tot stand komt nadat koper en verkoper de koopovereenkomst hebben getekend (“schriftelijkheidsvereiste”).
Indien er in de woning huurtoestellen aanwezig zijn zoals CV-ketel, boiler, zonnepanelen, mechanische ventilatie etc. dan dienen deze door de koper te worden overgenomen.
De termijn die wordt opgenomen voor eventuele (overeengekomen) ontbindende voorwaarden (bv. Financiering) is in de regel 4 tot 6 weken na het sluiten van de mondelinge wilsovereenkomst.
De waarborgsom/bankgarantie is 10% van de koopsom. De koper dient deze 3 dagen ná het vervallen van de ontbindende voorwaarden bij de desbetreffende notaris te deponeren.
Koper is te allen tijde gerechtigd voor eigen rekening een bouwkundige keuring te (laten) verrichten dan wel andere adviseurs te raadplegen teneinde een goed inzicht te verkrijgen over de staat van onderhoud.
Deze informatie is door ons, Zuyderhuys Makelaardij met de nodige zorgvuldigheid samengesteld. Onzerzijds wordt echter geen enkele aansprakelijkheid aanvaard voor enige onvolledigheid, onjuist of anderszins, dan wel de gevolgen daarvan. Alle opgegeven maten en oppervlakten zijn indicatief.
+ Read more
- Read less
Construction: {{
product.build_year }}
Construction: {{ product.build_period.start }} -
{{ product.build_period.end }}
Apartment
, Top floor
{{ product.rooms }} rooms
{{ product.bedrooms
}} bedrooms
Living space: {{
product.living_space }} m²
Plot: {{
product.plot_surface }} m²
Energy class: {{ product.energy_class }}
Energy index: {{ product.energy_index }}
Characteristics
{{ field.label }}
{{ field.value }}
+ Read more
{{ field.label }}
{{ field.value }}
- Read less
{{ product.company.name }}
Contact us
{{ product.company.phone.replace('-', ' ').substr(0, 7) }}...
{{ product.company.phone.replace('-', ' ') }}
Share:
Date