Sold
€ {{ product.price.replace(/\B(?=(\d{4})+(?!\d))/g, ".") }} {{ __(product.price_condition) }}
Photo’s
{{ product.images.length }}
Floorplan
{{ product.plans.length }}
360° photo’s {{ product.panoramas.length }}
Video’s {{ product.videos.length }}
Maps
All media
Apartment for sale Kleteborg 16 Eijsden
€ {{ product.price.replace(/\B(?=(\d{4})+(?!\d))/g, ".") }} {{ __(product.price_condition) }}
Sold
Description
In het geliefde kerkdorp Eijsden ligt dit royale appartement van circa 114 m² met 2 slaapkamers en garagebox.
LIGGING
Het appartement ligt in het kleinschalige appartementencomplex Villa Soetegaerdt, in de kern van Eijsden op loopafstand van het winkelcentrum, het authentieke marktplein en de sfeervolle Diepstraat met een scala van horecagelegenheden. De bereikbaarheid met zowel eigen- als met openbaar vervoer is goed. Zo ook de bereikbaarheid t.o.v. Maastricht, het MUMC+, UWC en de UM.
INDELING
Begane grond
- Gezamenlijke entree met bellentableau, video intercom installatie, brievenbussen, lift en trappenhuis.
Derde verdieping
- Ontvangsthal met toegang tot de vertrekken.
- Betegelde toiletruimte met zwevend closet en fonteintje.
- Woonkamer van circa 30 m² met trapopgang naar de verdieping, grote raampartijen en schuifpui naar de op het zuidwesten gelegen loggia met uitzicht over uitgestrekte weilanden.
- De separate keuken van ca. 16 m² is voorzien van een witte, L-vormige keukenopstelling met diverse inbouwapparatuur.
- Riante slaapkamer van respectievelijk ca. 20 m².
- Betegelde badkamer van ca. 6 m² met ligbad, douche en wastafel.
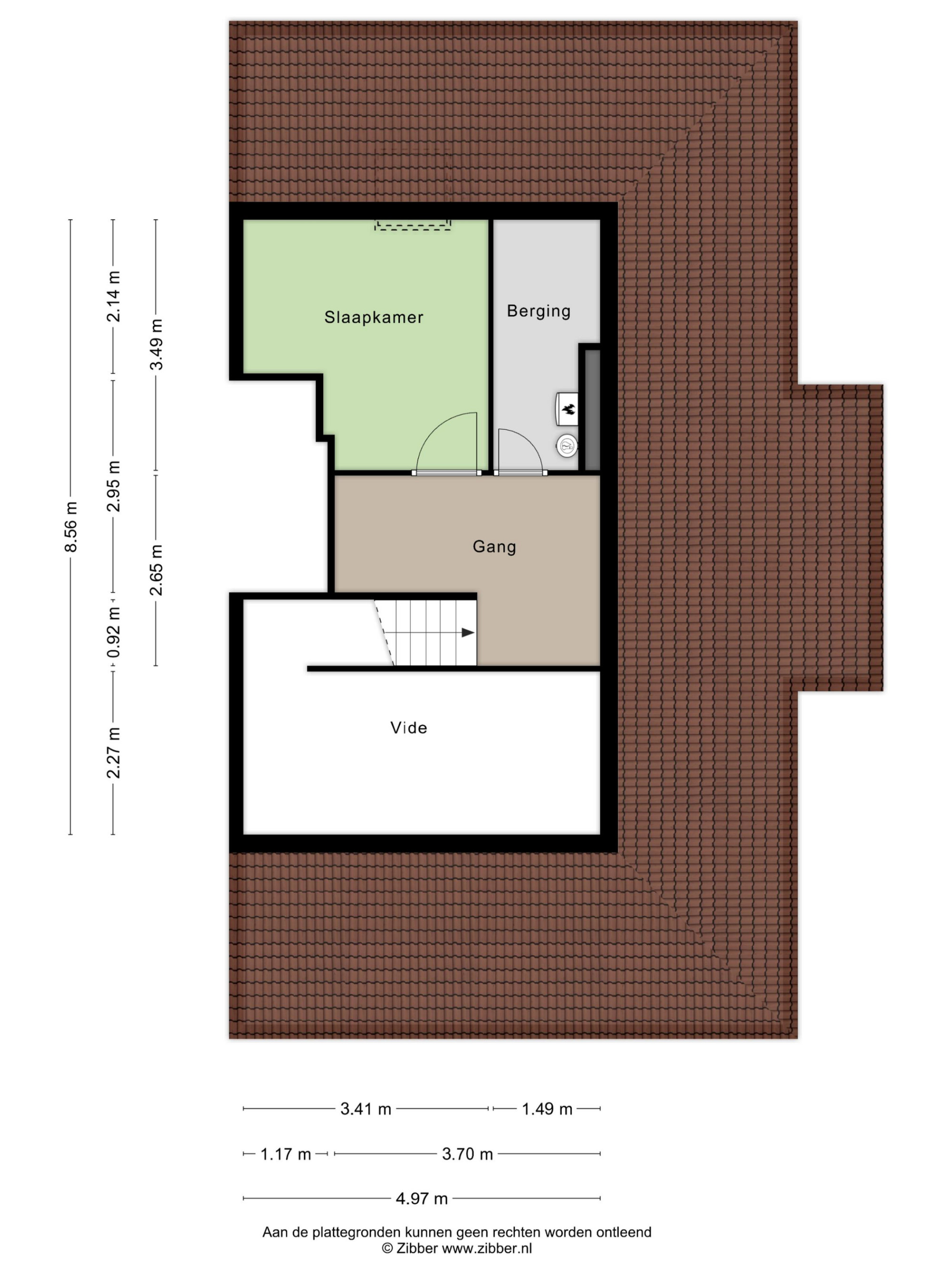
Vierde verdieping
- Middels vaste trap bereikbare functionele overloop met zicht over de woonkamer en toegang tot de vertrekken.
- Slaapkamer van ca. 10 m².
- Praktische berging van ca. 5 m² met de HR combi installatie en aansluitpunt voor de wasmachine.
Garage
- Op het buitenterrein ligt de privégarage van ca. 12 m² voorzien van een elektrisch bedienbare stalen kantelpoort.
Gemeenschappelijke voorzieningen
- Gemeenschappelijke fietsenstalling op het buitenterrein.
BIJZONDERHEDEN:
- Door de grote raampartijen in vrijwel alle woonvertrekken heeft de woning een vrij uitzicht en goede lichtinval.
- EPA label A, geldig tot 19-07-2034.
- De maandelijkse VvE bijdrage voor het appartement bedraagt € 324,57 en voor de garagebox € 8,37 ten behoeve van o.a. opstal- brand- en glasverzekering, reservering groot onderhoud, onderhoud gemeenschappelijke ruimtes, kosten van de administrateur.
ONDERHOUD
De staat van onderhoud en beoordeling van de bouwkundige staat geldt op basis van visuele waarnemingen, gerelateerd aan de ouderdom van het object. Een uitgebreide bouwkundige opname valt nadrukkelijk buiten het kader van deze brochure. Dit behoort eventueel tot de onderzoeksplicht van de kandidaat-koper(s).
PROJECTNOTARIS
Wyck Notarissen te Maastricht
AANSPRAKELIJKHEID
Het bovenstaande behelst slechts een globale omschrijving van een object. De informatie berust deels op door derden aan onze kantoren verstrekte gegevens. Met de meeste zorg hebben wij deze informatie verwerkt doch kunnen ten aanzien van de juistheid van deze gegevens geen aansprakelijkheid aanvaarden. Aan deze brochure kunnen geen rechten worden ontleend.
KOOPAKTE
De koopakte wordt opgesteld volgens model NVM.
TOELICHTINGSCLAUSULE NEN2580
De Meetinstructie is gebaseerd op de NEN2580. De Meetinstructie is bedoeld om een meer eenduidige manier van meten toe te passen voor het geven van een indicatie van de gebruiksoppervlakte. De Meetinstructie sluit verschillen in meetuitkomsten niet volledig uit, door bijvoorbeeld interpretatieverschillen, afrondingen of beperkingen bij het uitvoeren van de meting.
ONTBINDING
De termijn die wordt opgenomen voor eventuele (overeengekomen) ontbindende voorwaarden (b.v. financiering) is in de regel circa 4 weken na het sluiten van de mondelinge wilsovereenkomst.
ZEKERHEIDSSTELLING
De waarborgsom/ bankgarantie is 10% van de koopsom. De koper dient deze uiterlijk binnen 7 dagen na het verlopen van de ontbindende voorwaarden bij de desbetreffende notaris te deponeren.
ONDERZOEKSPLICHT VAN DE KOPER
Koper is te allen tijde gerechtigd voor eigen rekening een bouwkundige keuring te (laten) verrichten dan wel andere adviseurs te raadplegen teneinde een goed inzicht te verkrijgen over de staat van onderhoud.
LIGGING
Het appartement ligt in het kleinschalige appartementencomplex Villa Soetegaerdt, in de kern van Eijsden op loopafstand van het winkelcentrum, het authentieke marktplein en de sfeervolle Diepstraat met een scala van horecagelegenheden. De bereikbaarheid met zowel eigen- als met openbaar vervoer is goed. Zo ook de bereikbaarheid t.o.v. Maastricht, het MUMC+, UWC en de UM.
INDELING
Begane grond
- Gezamenlijke entree met bellentableau, video intercom installatie, brievenbussen, lift en trappenhuis.
Derde verdieping
- Ontvangsthal met toegang tot de vertrekken.
- Betegelde toiletruimte met zwevend closet en fonteintje.
- Woonkamer van circa 30 m² met trapopgang naar de verdieping, grote raampartijen en schuifpui naar de op het zuidwesten gelegen loggia met uitzicht over uitgestrekte weilanden.
- De separate keuken van ca. 16 m² is voorzien van een witte, L-vormige keukenopstelling met diverse inbouwapparatuur.
- Riante slaapkamer van respectievelijk ca. 20 m².
- Betegelde badkamer van ca. 6 m² met ligbad, douche en wastafel.
Vierde verdieping
- Middels vaste trap bereikbare functionele overloop met zicht over de woonkamer en toegang tot de vertrekken.
- Slaapkamer van ca. 10 m².
- Praktische berging van ca. 5 m² met de HR combi installatie en aansluitpunt voor de wasmachine.
Garage
- Op het buitenterrein ligt de privégarage van ca. 12 m² voorzien van een elektrisch bedienbare stalen kantelpoort.
Gemeenschappelijke voorzieningen
- Gemeenschappelijke fietsenstalling op het buitenterrein.
BIJZONDERHEDEN:
- Door de grote raampartijen in vrijwel alle woonvertrekken heeft de woning een vrij uitzicht en goede lichtinval.
- EPA label A, geldig tot 19-07-2034.
- De maandelijkse VvE bijdrage voor het appartement bedraagt € 324,57 en voor de garagebox € 8,37 ten behoeve van o.a. opstal- brand- en glasverzekering, reservering groot onderhoud, onderhoud gemeenschappelijke ruimtes, kosten van de administrateur.
ONDERHOUD
De staat van onderhoud en beoordeling van de bouwkundige staat geldt op basis van visuele waarnemingen, gerelateerd aan de ouderdom van het object. Een uitgebreide bouwkundige opname valt nadrukkelijk buiten het kader van deze brochure. Dit behoort eventueel tot de onderzoeksplicht van de kandidaat-koper(s).
PROJECTNOTARIS
Wyck Notarissen te Maastricht
AANSPRAKELIJKHEID
Het bovenstaande behelst slechts een globale omschrijving van een object. De informatie berust deels op door derden aan onze kantoren verstrekte gegevens. Met de meeste zorg hebben wij deze informatie verwerkt doch kunnen ten aanzien van de juistheid van deze gegevens geen aansprakelijkheid aanvaarden. Aan deze brochure kunnen geen rechten worden ontleend.
KOOPAKTE
De koopakte wordt opgesteld volgens model NVM.
TOELICHTINGSCLAUSULE NEN2580
De Meetinstructie is gebaseerd op de NEN2580. De Meetinstructie is bedoeld om een meer eenduidige manier van meten toe te passen voor het geven van een indicatie van de gebruiksoppervlakte. De Meetinstructie sluit verschillen in meetuitkomsten niet volledig uit, door bijvoorbeeld interpretatieverschillen, afrondingen of beperkingen bij het uitvoeren van de meting.
ONTBINDING
De termijn die wordt opgenomen voor eventuele (overeengekomen) ontbindende voorwaarden (b.v. financiering) is in de regel circa 4 weken na het sluiten van de mondelinge wilsovereenkomst.
ZEKERHEIDSSTELLING
De waarborgsom/ bankgarantie is 10% van de koopsom. De koper dient deze uiterlijk binnen 7 dagen na het verlopen van de ontbindende voorwaarden bij de desbetreffende notaris te deponeren.
ONDERZOEKSPLICHT VAN DE KOPER
Koper is te allen tijde gerechtigd voor eigen rekening een bouwkundige keuring te (laten) verrichten dan wel andere adviseurs te raadplegen teneinde een goed inzicht te verkrijgen over de staat van onderhoud.
+ Read more
- Read less
Construction: {{
product.build_year }}
Construction: {{ product.build_period.start }} -
{{ product.build_period.end }}
Apartment
, Duplex
{{ product.rooms }} rooms
{{ product.bedrooms
}} bedrooms
Living space: {{
product.living_space }} m²
Plot: {{
product.plot_surface }} m²
Energy class: {{ product.energy_class }}
Energy index: {{ product.energy_index }}
Characteristics
{{ field.label }}
{{ field.value }}
+ Read more
{{ field.label }}
{{ field.value }}
- Read less
{{ product.company.name }}
Contact us
{{ product.company.phone.replace('-', ' ').substr(0, 7) }}...
{{ product.company.phone.replace('-', ' ') }}
Share:
Date